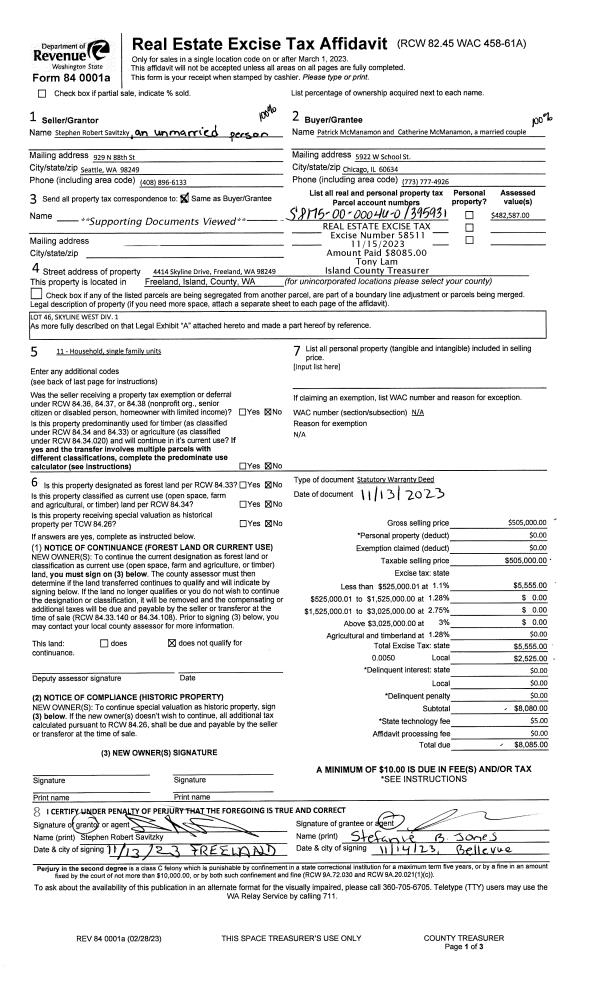
Property
Account |
| Property ID: | 88167 | Abbreviated Legal Description: | 32 - IN GL 1: BG NW CR GL1 S2*W460.2' S75*E220.82' N64 *E132.18' N66*E144.02' N76* E198.81' N76*E140.19' N89*E 17' TPB N17*W242'TO RD SWLY ALG RD 169' S20*E200' S20* E190' TO HI TIDE NELY ALG HI TIDE 144' TP S17*E FR TPB N17*W172' TPB TGW & SUB EZ |
| Geographic ID: | R23202-103-0740 | Agent Code: | |
| Type: | Real | | |
| Tax Area: | 112 - APPRAISER-OH Schl Dist, outside OH, improved, greater than 1 acre | Land Use Code | 11 |
| Open Space: | N | DFL | N |
| Historic Property: | N | Remodel Property: | N |
| Multi-Family Redevelopment: | N | | |
| Township: | 32 | Section: | 02 |
| Range: | R2 |
Location |
| Address: | | Mapsco: | |
| Neighborhood: | Cycle 6 | Map ID: | 537 |
| Neighborhood CD: | 6 |
Owner |
| Name: | ERICKSON, JAMES | Owner ID: | 286706 |
| Mailing Address: | 1654 POLNELL RD OAK HARBOR, WA 98277 | % Ownership: | 100.0000000000% |
| | | Exemptions: | |
Taxes and Assessment Details
Values
| (+) Improvement Homesite Value: | + | $0 | |
| (+) Improvement Non-Homesite Value: | + | $800 | |
| (+) Land Homesite Value: | + | $0 | |
| (+) Land Non-Homesite Value: | + | $300,000 | |
| (+) Curr Use (HS): | + | $0 | $0 |
| (+) Curr Use (NHS): | + | $0 | $0 |
| | | -------------------------- | |
| (=) Market Value: | = | $300,800 | |
| (–) Productivity Loss: | – | $0 | |
| | | -------------------------- | |
| (=) Subtotal: | = | $300,800 | |
| (+) Senior Appraised Value: | + | $0 | |
| (+) Non-Senior Appraised Value: | + | $300,800 | |
| | | -------------------------- | |
| (=) Total Appraised Value: | = | $300,800 | |
| (–) Senior Exemption Loss: | – | $0 | |
| (–) Exemption Loss: | – | $0 | |
| | | -------------------------- | |
| (=) Taxable Value: | = | $300,800 | |
Taxing Jurisdiction
| Owner: | ERICKSON, JAMES | | |
| % Ownership: | 100.0000000000% | | |
| Total Value: | $300,800 | | |
| Tax Area: | 112 - APPRAISER-OH Schl Dist, outside OH, improved, greater than 1 acre |
| CF | Conservation Futures | 0.0316035091 | $300,800 | $300,800 | $9.51 | | |
| CEM1 | Cemetery #1 | 0.0040320932 | $300,800 | $300,800 | $1.21 | | |
| FIRE2 | Fire & Rescue Dist #2 N Whidbey GEN | 0.5475949600 | $300,800 | $300,800 | $164.72 | | |
| HOBOND | Hospital BOND | 0.1910887512 | $300,800 | $300,800 | $57.48 | | |
| HOGEN | Hospital GEN | 0.3902502903 | $300,800 | $300,800 | $117.39 | | |
| CE | County Current Expense | 0.3708482477 | $300,800 | $300,800 | $111.55 | | |
| CR | County Roads | 0.4584763726 | $300,800 | $300,800 | $137.91 | | |
| ISLANDEMS | Hospital GEN (EMS) | 0.5000000000 | $300,800 | $300,800 | $150.40 | | |
| LIB | Library Sno-Isle GEN | 0.3153421757 | $300,800 | $300,800 | $94.85 | | |
| NWHIDPRMT | P & R N Whidbey GEN | 0.2004466701 | $300,800 | $300,800 | $60.29 | | |
| SCH201MO | School 201 Enrichment | 1.8559231640 | $300,800 | $300,800 | $558.26 | | |
| ST | State School | 1.3035497053 | $300,800 | $300,800 | $392.11 | | |
| ST2 | State School Part 2 | 0.8169543533 | $300,800 | $300,800 | $245.74 | | |
| | Total Tax Rate: | 6.9861102925 | | | | | |
| | | | | Taxes w/Current Exemptions: | $2,101.42 | | |
| | | | | Taxes w/o Exemptions: | $2,101.42 | | |
Improvement / Building
| Improvement #1: | RESIDENTIAL | State Code: | Y | 0.0 sqft | Value: | $800 |
Sketch
Property Image
Land
| 1 | HB | HIGH BLUFF | 1.4500 | 63162.00 | 120.00 | 0.00 | 1.00 | $300,000 | $0 |
Roll Value History
| 2026 | N/A | N/A | N/A | N/A | N/A |
| 2025 | $800 | $300,000 | $0 | $300,800 | $300,800 |
| 2024 | $800 | $275,000 | $0 | $275,800 | $275,800 |
| 2023 | $800 | $250,000 | $0 | $250,800 | $250,800 |
| 2022 | $0 | $225,000 | $0 | $225,000 | $225,000 |
| 2021 | $0 | $200,000 | $0 | $200,000 | $200,000 |
| 2020 | $0 | $175,000 | $0 | $175,000 | $175,000 |
| 2019 | $0 | $200,000 | $0 | $200,000 | $200,000 |
| 2018 | $0 | $180,000 | $0 | $180,000 | $180,000 |
| 2017 | $0 | $150,000 | $0 | $150,000 | $150,000 |
| 2016 | $0 | $150,000 | $0 | $150,000 | $150,000 |
| 2015 | $0 | $150,000 | $0 | $150,000 | $150,000 |
| 2014 | $0 | $200,000 | $0 | $200,000 | $200,000 |
| 2013 | $0 | $103,231 | $0 | $103,231 | $103,231 |
| 2012 | $0 | $103,231 | $0 | $103,231 | $103,231 |
| 2011 | $0 | $103,231 | $0 | $103,231 | $103,231 |
| 2010 | $0 | $103,231 | $0 | $103,231 | $103,231 |
| 2009 | $0 | $120,167 | $0 | $120,167 | $120,167 |
| 2008 | $0 | $120,167 | $0 | $120,167 | $120,167 |
| 2007 | $0 | $115,463 | $0 | $115,463 | $115,463 |
Deed and Sales History
| 1 | 08/27/2018 | WD | Warranty Deed | WINSTEN TTEE, DONNABELLE R | ERICKSON, JAMES | | | $34,000.00 | 35708 | 4450930 |
| 2 | 08/25/2005 | OTHER | Other - Misc. Documents | WINSTEN, DONNABELLE ROSE | WINSTEN TTEE, DONNABELLE R | | | $0.00 | 70609 | 0 |
| 3 | 05/29/1998 | QCD | Quit Claim Deed | WINSTEN, DONNABELLE ROSE | WINSTEN, DONNABELLE ROSE | | | $0.00 | 82100 | 98010988 |
| 4 | 05/29/1998 | QCD | Quit Claim Deed | CRAM, JACK R | WINSTEN, DONNABELLE ROSE | | | $0.00 | 82098 | 98010986 |
| 5 | 09/01/1996 | QCD | Quit Claim Deed | CRAM, JACK R | CRAM, JACK R | | | $0.00 | 63411 | 96016852 |
| 6 | 10/01/1987 | QCD | Quit Claim Deed | CRAM, JACK R | CRAM, JACK R | | | $0.00 | 73430 | 87015030 |
| 7 | 04/01/1983 | REC | Real Estate Contract | SHELLEY, WIFE Q | CRAM, JACK R | | | $52,000.00 | 30910 | 408173 |
| 8 | 03/01/1980 | CD | DNU - Correction Deed | COCHRAN, G L | SHELLEY, WIFE Q | | | $0.00 | 936 | 366551 |
| 9 | 10/01/1979 | REC | Real Estate Contract | VANICELLI, FLAVIO | COCHRAN, G L | | | $52,000.00 | 95033 | 360296 |
| 10 | 05/01/1979 | OTHER | Other - Misc. Documents | Unknown | VANICELLI, FLAVIO | | | $40,000.00 | 923440 | 3524830 |
Payout Agreement
| No payout information available.. |