Property
Account |
| Property ID: | 88194 | Abbreviated Legal Description: | 0.5600 Acres ins Section 02s Township 32s Range R2s LOT A BLA 046-21 AF#4518841;s |
| Geographic ID: | R23202-113-0090 | Agent Code: | |
| Type: | Real | | |
| Tax Area: | 110 - APPRAISER-OH Schl Dist, outside OH, improved & 1 acre or less | Land Use Code | 11 |
| Open Space: | N | DFL | N |
| Historic Property: | N | Remodel Property: | N |
| Multi-Family Redevelopment: | N | | |
| Township: | 32 | Section: | 02 |
| Range: | R2 |
Location |
| Address: | 1615 POLNELL RD OAK HARBOR, WA 98277 | Mapsco: | |
| Neighborhood: | Cycle 6 | Map ID: | 537 |
| Neighborhood CD: | 6 |
Owner |
| Name: | ESTUDILLO, FERNANDO GUTIERREZ | Owner ID: | 314631 |
| Mailing Address: | ALIDA MARIA ESTUDILLO 1615 POLNELL RD OAK HARBOR, WA 98277 | % Ownership: | 100.0000000000% |
| | | Exemptions: | |
Taxes and Assessment Details
Values
| (+) Improvement Homesite Value: | + | $0 | |
| (+) Improvement Non-Homesite Value: | + | $538,089 | |
| (+) Land Homesite Value: | + | $0 | |
| (+) Land Non-Homesite Value: | + | $260,000 | |
| (+) Curr Use (HS): | + | $0 | $0 |
| (+) Curr Use (NHS): | + | $0 | $0 |
| | | -------------------------- | |
| (=) Market Value: | = | $798,089 | |
| (–) Productivity Loss: | – | $0 | |
| | | -------------------------- | |
| (=) Subtotal: | = | $798,089 | |
| (+) Senior Appraised Value: | + | $0 | |
| (+) Non-Senior Appraised Value: | + | $798,089 | |
| | | -------------------------- | |
| (=) Total Appraised Value: | = | $798,089 | |
| (–) Senior Exemption Loss: | – | $0 | |
| (–) Exemption Loss: | – | $0 | |
| | | -------------------------- | |
| (=) Taxable Value: | = | $798,089 | |
Taxing Jurisdiction
| Owner: | ESTUDILLO, FERNANDO GUTIERREZ | | |
| % Ownership: | 100.0000000000% | | |
| Total Value: | $798,089 | | |
| Tax Area: | 110 - APPRAISER-OH Schl Dist, outside OH, improved & 1 acre or less |
| CF | Conservation Futures | 0.0316035091 | $798,089 | $798,089 | $25.22 | | |
| CEM1 | Cemetery #1 | 0.0040320932 | $798,089 | $798,089 | $3.22 | | |
| FIRE2 | Fire & Rescue Dist #2 N Whidbey GEN | 0.5475949600 | $798,089 | $798,089 | $437.03 | | |
| HOBOND | Hospital BOND | 0.1910887512 | $798,089 | $798,089 | $152.51 | | |
| HOGEN | Hospital GEN | 0.3902502903 | $798,089 | $798,089 | $311.45 | | |
| CE | County Current Expense | 0.3708482477 | $798,089 | $798,089 | $295.97 | | |
| CR | County Roads | 0.4584763726 | $798,089 | $798,089 | $365.90 | | |
| ISLANDEMS | Hospital GEN (EMS) | 0.5000000000 | $798,089 | $798,089 | $399.04 | | |
| LIB | Library Sno-Isle GEN | 0.3153421757 | $798,089 | $798,089 | $251.67 | | |
| NWHIDPRMT | P & R N Whidbey GEN | 0.2004466701 | $798,089 | $798,089 | $159.97 | | |
| SCH201MO | School 201 Enrichment | 1.8559231640 | $798,089 | $798,089 | $1,481.19 | | |
| ST | State School | 1.3035497053 | $798,089 | $798,089 | $1,040.35 | | |
| ST2 | State School Part 2 | 0.8169543533 | $798,089 | $798,089 | $652.00 | | |
| | Total Tax Rate: | 6.9861102925 | | | | | |
| | | | | Taxes w/Current Exemptions: | $5,575.52 | | |
| | | | | Taxes w/o Exemptions: | $5,575.52 | | |
Improvement / Building
| Improvement #1: | RESIDENTIAL | State Code: | Y | 2234.0 sqft | Value: | $538,089 |
| Bathrooms: | 2.5 | Bedrooms: | 3 | | Ceiling: | DRYWALL PAINTED | Cooling: | HEAT PUMP/CONV/V | | Exterior Wall/Cover: | CEMENT FIBER | Floor Covering: | LAMINATE/LVP | | Floor Structure: | WOOD W/SUBFLOOR | Foundation: | CONCRETE | | Interior Finish: | DRYWALL PAINT | Plumbing Fixture Cnt: | 15 | | Roof Slope: | 5" IN 12" | Roof Structure/Cover: | CJ ASPHALT |
|
| | Type | Description | Class CD | Sub Class CD | Year Built | Area |
| | BAS | BASE/MAIN FLOOR | 4 | 0 | 2024 | 2234.0 |
| | AGR | ATTACHED GARAGE | 4 | 0 | 2024 | 434.0 |
| | OP4 | OPEN PORCH W/CEILING-ROOF | 4 | 0 | 2024 | 108.0 |
| | OWC | OPEN WOOD PORCH W/STEPS/ROOF/C | 4 | 0 | 2024 | 312.0 |
Sketch
| No sketches available for this property. |
Property Image
Land
| 1 | 16 | AC (00.51-01.00) | 0.5600 | 24393.60 | 0.00 | 0.00 | 1.00 | $260,000 | $0 |
Roll Value History
| 2026 | N/A | N/A | N/A | N/A | N/A |
| 2025 | $538,089 | $260,000 | $0 | $798,089 | $798,089 |
| 2024 | $84,875 | $110,000 | $0 | $194,875 | $194,875 |
| 2023 | $0 | $90,000 | $0 | $90,000 | $90,000 |
| 2022 | $0 | $70,000 | $0 | $70,000 | $70,000 |
| 2021 | $0 | $70,000 | $0 | $70,000 | $70,000 |
| 2020 | $0 | $50,000 | $0 | $50,000 | $50,000 |
| 2019 | $0 | $110,000 | $0 | $110,000 | $110,000 |
| 2018 | $0 | $110,000 | $0 | $110,000 | $110,000 |
| 2017 | $0 | $65,000 | $0 | $65,000 | $65,000 |
| 2016 | $0 | $65,000 | $0 | $65,000 | $65,000 |
| 2015 | $0 | $65,000 | $0 | $65,000 | $65,000 |
| 2014 | $0 | $90,000 | $0 | $90,000 | $90,000 |
| 2013 | $0 | $100,000 | $0 | $100,000 | $100,000 |
| 2012 | $0 | $100,000 | $0 | $100,000 | $100,000 |
| 2011 | $0 | $100,000 | $0 | $100,000 | $100,000 |
| 2010 | $0 | $100,000 | $0 | $100,000 | $100,000 |
| 2009 | $0 | $120,000 | $0 | $120,000 | $120,000 |
| 2008 | $0 | $120,000 | $0 | $120,000 | $120,000 |
| 2007 | $0 | $87,000 | $0 | $87,000 | $87,000 |
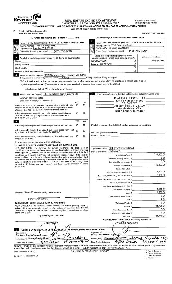
Deed and Sales History
| 1 | 11/14/2024 | WD | Warranty Deed | POLNELL PROPERTIES LLC | ESTUDILLO, FERNANDO GUTIERREZ | | | $849,900.00 | 61894 | 4579677 |
| 2 | 03/01/2024 | WD | Warranty Deed | MASSEY, SHEENA | POLNELL PROPERTIES LLC | | | $100,000.00 | 59341 | 4569973 |
| 3 | 05/17/2023 | QCD | Quit Claim Deed | MASSEY, SERGIO | MASSEY, SHEENA | | | $0.00 | 56737 | 4560023 |
| 4 | 05/29/2020 | WD | Warranty Deed | SIBLEY, RANDY | MASSEY, SERGIO | | | $97,000.00 | 43200 | 4487876 |
|   | |
| 5 | 01/01/1900 | OTHER | Other - Misc. Documents | Unknown | SIBLEY, RANDY | | | $0.00 | 0 | 0 |
Payout Agreement
| No payout information available.. |