Property
Account |
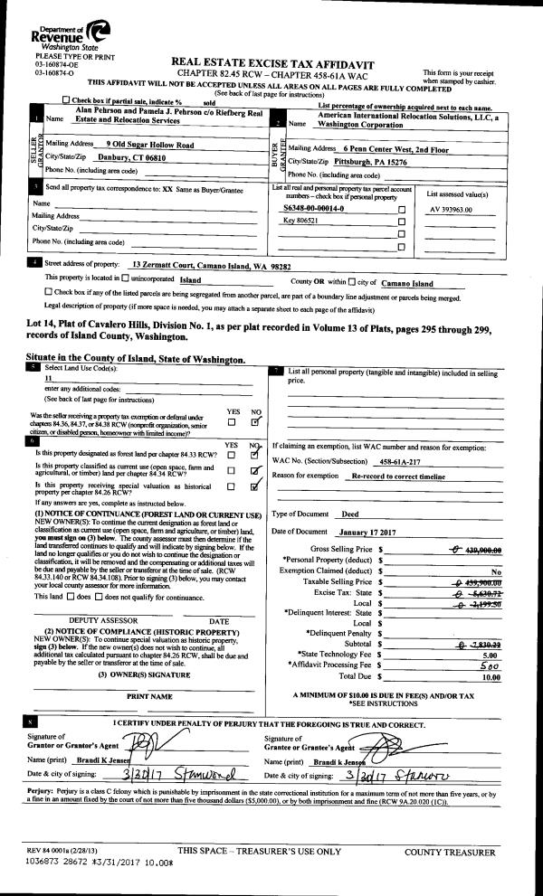
| Property ID: | 88979 | Abbreviated Legal Description: | 44 - IN GL 2 LOT 3 BLK 4 POLNELL HTS #2 UNREC |
| Geographic ID: | R23203-070-4970 | Agent Code: | |
| Type: | Real | | |
| Tax Area: | 110 - APPRAISER-OH Schl Dist, outside OH, improved & 1 acre or less | Land Use Code | 11 |
| Open Space: | N | DFL | N |
| Historic Property: | N | Remodel Property: | N |
| Multi-Family Redevelopment: | N | | |
| Township: | 32 | Section: | 03 |
| Range: | R2 |
Location |
| Address: | 1573 BLUE HERON LN OAK HARBOR, WA 98277 | Mapsco: | |
| Neighborhood: | Cycle 6 | Map ID: | 541 |
| Neighborhood CD: | 6 |
Owner |
| Name: | VANOORT, MARK L | Owner ID: | 279649 |
| Mailing Address: | DAWN M VANOORT 1573 BLUE HERON LN OAK HARBOR, WA 98277 | % Ownership: | 100.0000000000% |
| | | Exemptions: | |
Taxes and Assessment Details
Values
| (+) Improvement Homesite Value: | + | $0 | |
| (+) Improvement Non-Homesite Value: | + | $276,102 | |
| (+) Land Homesite Value: | + | $0 | |
| (+) Land Non-Homesite Value: | + | $250,000 | |
| (+) Curr Use (HS): | + | $0 | $0 |
| (+) Curr Use (NHS): | + | $0 | $0 |
| | | -------------------------- | |
| (=) Market Value: | = | $526,102 | |
| (–) Productivity Loss: | – | $0 | |
| | | -------------------------- | |
| (=) Subtotal: | = | $526,102 | |
| (+) Senior Appraised Value: | + | $0 | |
| (+) Non-Senior Appraised Value: | + | $526,102 | |
| | | -------------------------- | |
| (=) Total Appraised Value: | = | $526,102 | |
| (–) Senior Exemption Loss: | – | $0 | |
| (–) Exemption Loss: | – | $0 | |
| | | -------------------------- | |
| (=) Taxable Value: | = | $526,102 | |
Taxing Jurisdiction
| Owner: | VANOORT, MARK L | | |
| % Ownership: | 100.0000000000% | | |
| Total Value: | $526,102 | | |
| Tax Area: | 110 - APPRAISER-OH Schl Dist, outside OH, improved & 1 acre or less |
| CF | Conservation Futures | 0.0316035091 | $526,102 | $526,102 | $16.63 | | |
| CEM1 | Cemetery #1 | 0.0040320932 | $526,102 | $526,102 | $2.12 | | |
| FIRE2 | Fire & Rescue Dist #2 N Whidbey GEN | 0.5475949600 | $526,102 | $526,102 | $288.09 | | |
| HOBOND | Hospital BOND | 0.1910887512 | $526,102 | $526,102 | $100.53 | | |
| HOGEN | Hospital GEN | 0.3902502903 | $526,102 | $526,102 | $205.31 | | |
| CE | County Current Expense | 0.3708482477 | $526,102 | $526,102 | $195.10 | | |
| CR | County Roads | 0.4584763726 | $526,102 | $526,102 | $241.21 | | |
| ISLANDEMS | Hospital GEN (EMS) | 0.5000000000 | $526,102 | $526,102 | $263.05 | | |
| LIB | Library Sno-Isle GEN | 0.3153421757 | $526,102 | $526,102 | $165.90 | | |
| NWHIDPRMT | P & R N Whidbey GEN | 0.2004466701 | $526,102 | $526,102 | $105.46 | | |
| SCH201MO | School 201 Enrichment | 1.8559231640 | $526,102 | $526,102 | $976.40 | | |
| ST | State School | 1.3035497053 | $526,102 | $526,102 | $685.80 | | |
| ST2 | State School Part 2 | 0.8169543533 | $526,102 | $526,102 | $429.80 | | |
| | Total Tax Rate: | 6.9861102925 | | | | | |
| | | | | Taxes w/Current Exemptions: | $3,675.40 | | |
| | | | | Taxes w/o Exemptions: | $3,675.40 | | |
Improvement / Building
| Improvement #1: | RESIDENTIAL | State Code: | Y | 1968.0 sqft | Value: | $276,102 |
| Bathrooms: | 2.5 | Bedrooms: | 3 | | Ceiling: | DRYWALL PAINTED | Cooling: | HEAT PUMP/CONV/V | | Exterior Wall/Cover: | PLY/HARDBOARD T-111 | Floor Covering: | CARPET/VINYL 80-20 | | Floor Structure: | WOOD W/SUBFLOOR | Foundation: | CONCRETE | | Interior Finish: | DRYWALL PAINT | Plumbing Fixture Cnt: | 11 | | Roof Slope: | 5" IN 12" | Roof Structure/Cover: | CJ ASPHALT |
|
| | Type | Description | Class CD | Sub Class CD | Year Built | Area |
| | BAS | BASE/MAIN FLOOR | 3 | 0 | 1982 | 1214.0 |
| | AGR | ATTACHED GARAGE | 3 | 0 | 1982 | 260.0 |
| | BGR | BASEMENT GARAGE | 3 | 0 | 1982 | 286.0 |
| | DWN | DOWNSTAIRS LIVING AREA | 3 | 0 | 1982 | 754.0 |
| | OWP | OPEN WOOD PORCH W/STEPS | 3 | 0 | 1982 | 336.0 |
Sketch
Property Image
Land
| 1 | 15 | SQ (12001-21780) | 0.4600 | 20037.60 | 0.00 | 0.00 | 1.00 | $250,000 | $0 |
Roll Value History
| 2026 | N/A | N/A | N/A | N/A | N/A |
| 2025 | $276,102 | $250,000 | $0 | $526,102 | $526,102 |
| 2024 | $279,722 | $240,000 | $0 | $519,722 | $519,722 |
| 2023 | $283,345 | $240,000 | $0 | $523,345 | $523,345 |
| 2022 | $250,003 | $230,000 | $0 | $480,003 | $480,003 |
| 2021 | $217,486 | $180,000 | $0 | $397,486 | $397,486 |
| 2020 | $212,169 | $150,000 | $0 | $362,169 | $362,169 |
| 2019 | $157,481 | $240,000 | $0 | $397,481 | $397,481 |
| 2018 | $157,979 | $225,000 | $0 | $382,979 | $382,979 |
| 2017 | $147,049 | $150,000 | $0 | $297,049 | $297,049 |
| 2016 | $142,733 | $150,000 | $0 | $292,733 | $292,733 |
| 2015 | $144,831 | $125,000 | $0 | $269,831 | $269,831 |
| 2014 | $146,931 | $117,000 | $0 | $263,931 | $263,931 |
| 2013 | $149,028 | $117,000 | $0 | $266,028 | $266,028 |
| 2012 | $151,127 | $117,000 | $0 | $268,127 | $268,127 |
| 2011 | $153,227 | $130,000 | $0 | $283,227 | $283,227 |
| 2010 | $162,376 | $130,000 | $0 | $292,376 | $292,376 |
| 2009 | $169,522 | $140,000 | $0 | $309,522 | $309,522 |
| 2008 | $171,865 | $140,000 | $0 | $311,865 | $311,865 |
| 2007 | $172,072 | $125,341 | $0 | $297,413 | $297,413 |
Deed and Sales History
| 1 | 04/27/2017 | WD | Warranty Deed | PENDLETON, MICHAEL TOOD | VANOORT, MARK L | | | $425,000.00 | 29054 | 4421532 |
| 2 | 06/15/2009 | WD | Warranty Deed | HERTLING, STEPHEN R | PENDLETON, MICHAEL TOOD | | | $380,000.00 | 91313 | 4253654 |
| 3 | 02/01/1984 | WD | Warranty Deed | BODIN, ROBERT C | HERTLING, STEPHEN R | | | $106,518.00 | 40286 | 420544 |
| 4 | 05/01/1983 | WD | Warranty Deed | ALLEN, CHARLES E | BODIN, ROBERT C | | | $23,950.00 | 31285 | 409668 |
| 5 | 06/01/1978 | OTHER | Other - Misc. Documents | Unknown | ALLEN, CHARLES E | | | $15,000.00 | 82921 | 334943 |
Payout Agreement
| No payout information available.. |