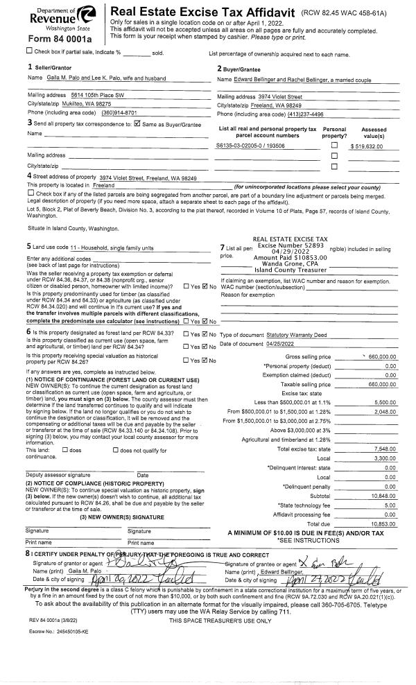
Property
Account |
| Property ID: | 89184 | Abbreviated Legal Description: | 58 - IN GL2: BG S20' & S89*E99.13' FR SWCR NETTER TR AF#121612 N296.77' TO CLN CO RD N30' TO NLN SD RD S89*W587.58' ALG SD RD TPB S89*W20' N1*E118' N88*W TO WLN GL2 NLY ALG SD WLN TO NWCR GL2 ELY ALG NLN GL2 TP N1*E FR TPB S1*W TPB TR B UNREC POLNELL HTS |
| Geographic ID: | R23203-112-4050 | Agent Code: | |
| Type: | Real | | |
| Tax Area: | 119 - APPRAISER-OH Schl Dist, outside OH, vacant & 50 acres or less | Land Use Code | 91 |
| Open Space: | N | DFL | N |
| Historic Property: | N | Remodel Property: | N |
| Multi-Family Redevelopment: | N | | |
| Township: | 32 | Section: | 03 |
| Range: | R2 |
Location |
| Address: | | Mapsco: | |
| Neighborhood: | Cycle 6 | Map ID: | 541 |
| Neighborhood CD: | 6 |
Owner |
| Name: | SUMNER, BRENT | Owner ID: | 301319 |
| Mailing Address: | SUSANNE SUMNER PO BOX 473 REDWOOD ESTATES, CA 95044 | % Ownership: | 100.0000000000% |
| | | Exemptions: | |
Taxes and Assessment Details
Values
| (+) Improvement Homesite Value: | + | $0 | |
| (+) Improvement Non-Homesite Value: | + | $0 | |
| (+) Land Homesite Value: | + | $0 | |
| (+) Land Non-Homesite Value: | + | $170,000 | |
| (+) Curr Use (HS): | + | $0 | $0 |
| (+) Curr Use (NHS): | + | $0 | $0 |
| | | -------------------------- | |
| (=) Market Value: | = | $170,000 | |
| (–) Productivity Loss: | – | $0 | |
| | | -------------------------- | |
| (=) Subtotal: | = | $170,000 | |
| (+) Senior Appraised Value: | + | $0 | |
| (+) Non-Senior Appraised Value: | + | $170,000 | |
| | | -------------------------- | |
| (=) Total Appraised Value: | = | $170,000 | |
| (–) Senior Exemption Loss: | – | $0 | |
| (–) Exemption Loss: | – | $0 | |
| | | -------------------------- | |
| (=) Taxable Value: | = | $170,000 | |
Taxing Jurisdiction
| Owner: | SUMNER, BRENT | | |
| % Ownership: | 100.0000000000% | | |
| Total Value: | $170,000 | | |
| Tax Area: | 119 - APPRAISER-OH Schl Dist, outside OH, vacant & 50 acres or less |
| CF | Conservation Futures | 0.0316035091 | $170,000 | $170,000 | $5.37 | | |
| CEM1 | Cemetery #1 | 0.0040320932 | $170,000 | $170,000 | $0.69 | | |
| HOBOND | Hospital BOND | 0.1910887512 | $170,000 | $170,000 | $32.49 | | |
| HOGEN | Hospital GEN | 0.3902502903 | $170,000 | $170,000 | $66.34 | | |
| CE | County Current Expense | 0.3708482477 | $170,000 | $170,000 | $63.04 | | |
| CR | County Roads | 0.4584763726 | $170,000 | $170,000 | $77.94 | | |
| ISLANDEMS | Hospital GEN (EMS) | 0.5000000000 | $170,000 | $170,000 | $85.00 | | |
| LIB | Library Sno-Isle GEN | 0.3153421757 | $170,000 | $170,000 | $53.61 | | |
| NWHIDPRMT | P & R N Whidbey GEN | 0.2004466701 | $170,000 | $170,000 | $34.08 | | |
| SCH201MO | School 201 Enrichment | 1.8559231640 | $170,000 | $170,000 | $315.51 | | |
| ST | State School | 1.3035497053 | $170,000 | $170,000 | $221.60 | | |
| ST2 | State School Part 2 | 0.8169543533 | $170,000 | $170,000 | $138.88 | | |
| | Total Tax Rate: | 6.4385153325 | | | | | |
| | | | | Taxes w/Current Exemptions: | $1,094.55 | | |
| | | | | Taxes w/o Exemptions: | $1,094.55 | | |
Improvement / Building
Sketch
| No sketches available for this property. |
Property Image
Land
| 1 | 17 | AC (01.01-02.00) | 1.7100 | 74487.60 | 0.00 | 0.00 | 1.00 | $170,000 | $0 |
Roll Value History
| 2026 | N/A | N/A | N/A | N/A | N/A |
| 2025 | $0 | $170,000 | $0 | $170,000 | $170,000 |
| 2024 | $0 | $150,000 | $0 | $150,000 | $150,000 |
| 2023 | $0 | $150,000 | $0 | $150,000 | $150,000 |
| 2022 | $0 | $140,000 | $0 | $140,000 | $140,000 |
| 2021 | $0 | $120,000 | $0 | $120,000 | $120,000 |
| 2020 | $0 | $120,000 | $0 | $120,000 | $120,000 |
| 2019 | $0 | $150,000 | $0 | $150,000 | $150,000 |
| 2018 | $0 | $125,000 | $0 | $125,000 | $125,000 |
| 2017 | $0 | $85,000 | $0 | $85,000 | $85,000 |
| 2016 | $0 | $85,000 | $0 | $85,000 | $85,000 |
| 2015 | $0 | $85,000 | $0 | $85,000 | $85,000 |
| 2014 | $0 | $82,000 | $0 | $82,000 | $82,000 |
| 2013 | $0 | $82,000 | $0 | $82,000 | $82,000 |
| 2012 | $0 | $82,000 | $0 | $82,000 | $82,000 |
| 2011 | $0 | $105,000 | $0 | $105,000 | $105,000 |
| 2010 | $0 | $105,000 | $0 | $105,000 | $105,000 |
| 2009 | $0 | $120,000 | $0 | $120,000 | $120,000 |
Deed and Sales History
| 1 | 12/29/2021 | WD | Warranty Deed | KRUGGEL TRUSTEE, EARLE E | SUMNER, BRENT | | | $70,000.00 | 51549 | 4537100 |
| 2 | 05/08/2009 | QCD | Quit Claim Deed | KRUGGEL TRUSTEE, EARLE E | KRUGGEL TRUSTEE, EARLE E | | | $0.00 | 91487 | 4255274 |
| 3 | 08/15/2005 | 5 | DNU - Marriage License/Name Change | KRUGGEL, EARLE E | KRUGGEL TRUSTEE, EARLE E | | | $0.00 | 54140 | 4145046 |
| 4 | 06/28/2005 | WD | Warranty Deed | LABARGE, PATRICIA/PETER D | KRUGGEL, EARLE E | | | $91,728.00 | 53446 | 4141078 |
| 5 | 10/01/1997 | WD | Warranty Deed | KLEIN, CHESTER L | LABARGE, PATRICIA/PETER D | | | $25,750.00 | 73838 | 97018357 |
| 6 | 02/01/1991 | QCD | Quit Claim Deed | KLEIN, CHESTER L | KLEIN, CHESTER L | | | $0.00 | 10897 | 91003913 |
| 7 | 09/01/1972 | TRUSTEED | Trustee's Deed | HAUSHALTER, WILLIAM H | KLEIN, CHESTER L | | | $0.00 | 45376 | 0 |
| 8 | 01/01/1900 | OTHER | Other - Misc. Documents | Unknown | HAUSHALTER, WILLIAM H | | | $0.00 | 0 | 0 |
Payout Agreement
| No payout information available.. |