Property
Account |
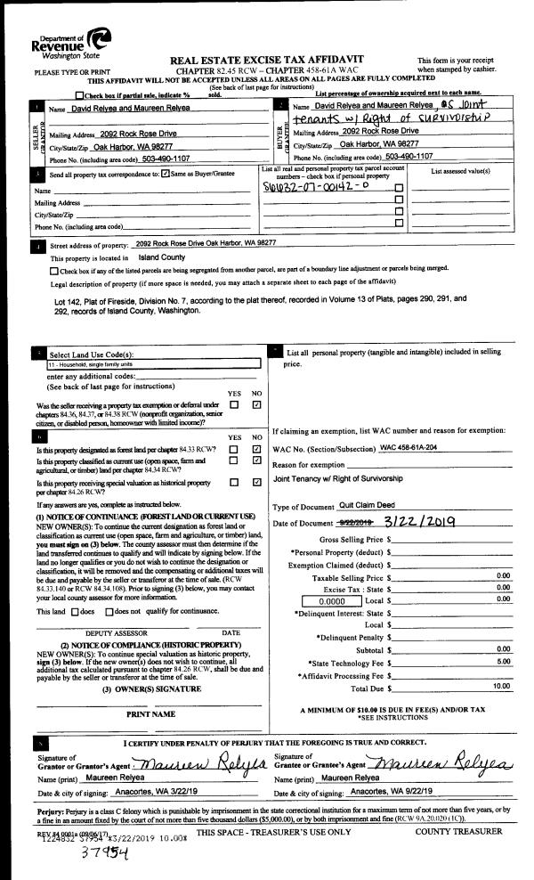
| Property ID: | 8921 | Abbreviated Legal Description: | 4 - IN SE NE: BG NLN SE NE & WLN HWY SELY ALG HWY 192 .25' TPB SW PERP TO HWY 270 SE PAR/TO HWY 160' NE PERP TO HWY 270' NW ALG HWY 160' TPB |
| Geographic ID: | R13113-363-4620 | Agent Code: | |
| Type: | Real | | |
| Tax Area: | 310 - APPRAISER-Cpvl Schl Dist, outside Cpvl, improved & 1 acre or less | Land Use Code | 11 |
| Open Space: | N | DFL | N |
| Historic Property: | N | Remodel Property: | N |
| Multi-Family Redevelopment: | N | | |
| Township: | 31 | Section: | 13 |
| Range: | R1 |
Location |
| Address: | 16879 SR20 COUPEVILLE, WA 98239 | Mapsco: | |
| Neighborhood: | Cycle 2 | Map ID: | 61 |
| Neighborhood CD: | 2 |
Owner |
| Name: | HOOD, AMIE | Owner ID: | 304772 |
| Mailing Address: | FRANCHESCA GARIBALDI 16879 SR 20 COUPEVILLE, WA 98239 | % Ownership: | 100.0000000000% |
| | | Exemptions: | |
Taxes and Assessment Details
Values
| (+) Improvement Homesite Value: | + | $0 | |
| (+) Improvement Non-Homesite Value: | + | $371,460 | |
| (+) Land Homesite Value: | + | $0 | |
| (+) Land Non-Homesite Value: | + | $220,000 | |
| (+) Curr Use (HS): | + | $0 | $0 |
| (+) Curr Use (NHS): | + | $0 | $0 |
| | | -------------------------- | |
| (=) Market Value: | = | $591,460 | |
| (–) Productivity Loss: | – | $0 | |
| | | -------------------------- | |
| (=) Subtotal: | = | $591,460 | |
| (+) Senior Appraised Value: | + | $0 | |
| (+) Non-Senior Appraised Value: | + | $591,460 | |
| | | -------------------------- | |
| (=) Total Appraised Value: | = | $591,460 | |
| (–) Senior Exemption Loss: | – | $0 | |
| (–) Exemption Loss: | – | $0 | |
| | | -------------------------- | |
| (=) Taxable Value: | = | $591,460 | |
Taxing Jurisdiction
| Owner: | HOOD, AMIE | | |
| % Ownership: | 100.0000000000% | | |
| Total Value: | $591,460 | | |
| Tax Area: | 310 - APPRAISER-Cpvl Schl Dist, outside Cpvl, improved & 1 acre or less |
| CF | Conservation Futures | 0.0316035091 | $591,460 | $591,460 | $18.69 | | |
| CEM2 | Cemetery #2 | 0.0095056933 | $591,460 | $591,460 | $5.62 | | |
| FIRE5 | Fire & Rescue Dist #5 C Whidbey GEN | 1.2008080668 | $591,460 | $591,460 | $710.23 | | |
| FIRE5BOND | Fire & Rescue Dist #5 C Whidbey BOND | 0.1400090713 | $591,460 | $591,460 | $82.81 | | |
| HOBOND | Hospital BOND | 0.1910887512 | $591,460 | $591,460 | $113.02 | | |
| HOGEN | Hospital GEN | 0.3902502903 | $591,460 | $591,460 | $230.82 | | |
| CE | County Current Expense | 0.3708482477 | $591,460 | $591,460 | $219.34 | | |
| CR | County Roads | 0.4584763726 | $591,460 | $591,460 | $271.17 | | |
| ISLANDEMS | Hospital GEN (EMS) | 0.5000000000 | $591,460 | $591,460 | $295.73 | | |
| LIB | Library Sno-Isle GEN | 0.3153421757 | $591,460 | $591,460 | $186.51 | | |
| LIBCAP | Library Sno-Isle BOND (Cap Fac Imp Area) | 0.0543427938 | $591,460 | $591,460 | $32.14 | | |
| POCOUP | Port of Coupeville GEN | 0.1093371703 | $591,460 | $591,460 | $64.67 | | |
| POCOUPIDD | Port of Coupeville IDD | 0.3409740022 | $591,460 | $591,460 | $201.67 | | |
| COUPSDTECH | School 204 CP (TECH) | 0.7545480007 | $591,460 | $591,460 | $446.28 | | |
| SCH204MO | School 204 Enrichment | 0.6716186034 | $591,460 | $591,460 | $397.24 | | |
| ST | State School | 1.3035497053 | $591,460 | $591,460 | $771.00 | | |
| ST2 | State School Part 2 | 0.8169543533 | $591,460 | $591,460 | $483.20 | | |
| | Total Tax Rate: | 7.6592568070 | | | | | |
| | | | | Taxes w/Current Exemptions: | $4,530.14 | | |
| | | | | Taxes w/o Exemptions: | $4,530.14 | | |
Improvement / Building
| Improvement #1: | RESIDENTIAL | State Code: | Y | 1747.5 sqft | Value: | $371,460 |
| Bathrooms: | 2 | Bedrooms: | 3 | | Ceiling: | BEAM PAINTED | Cooling: | HEAT PUMP/CONV/V | | Exterior Wall/Cover: | SHINGLE | Floor Covering: | SOFTWOOD/VINYL 80-20 | | Floor Structure: | WOOD W/SUBFLOOR | Foundation: | PIERS/CONCRETE | | Interior Finish: | DRYWALL PAINT | Plumbing Fixture Cnt: | 11 | | Roof Slope: | 12" IN 12" | Roof Structure/Cover: | BEAM ASPHALT |
|
| | Type | Description | Class CD | Sub Class CD | Year Built | Area |
| | BAS | BASE/MAIN FLOOR | 3 | 0 | 1932 | 1032.0 |
| | OWP | OPEN WOOD PORCH W/STEPS | 3 | 0 | 1932 | 540.0 |
| | UPH | HALF STORY | 3 | 0 | 1932 | 590.0 |
| | oCB2 | CABIN FIN | 3 | 0 | 1980 | 432.0 |
| | UTY | STORAGE/UTILITY | 3 | 0 | 1932 | 96.0 |
| | LOF | LOFT | 3 | 0 | 1980 | 125.5 |
| | UTY | STORAGE/UTILITY | 3 | 0 | 1980 | 280.0 |
| | UTY | STORAGE/UTILITY | 3 | 0 | 1980 | 248.0 |
| | OWC | OPEN WOOD PORCH W/STEPS/ROOF/C | 3 | 0 | 1932 | 56.0 |
| | OWC | OPEN WOOD PORCH W/STEPS/ROOF/C | 3 | 0 | 1932 | 32.0 |
Sketch
| No sketches available for this property. |
Property Image
Land
| 1 | HS | HOMESITE | 1.0000 | 43560.00 | 0.00 | 0.00 | 1.00 | $220,000 | $0 |
Roll Value History
| 2026 | N/A | N/A | N/A | N/A | N/A |
| 2025 | $371,460 | $220,000 | $0 | $591,460 | $591,460 |
| 2024 | $325,644 | $210,000 | $0 | $535,644 | $535,644 |
| 2023 | $329,914 | $200,000 | $0 | $529,914 | $529,914 |
| 2022 | $302,609 | $200,000 | $0 | $502,609 | $502,609 |
| 2021 | $266,505 | $150,000 | $0 | $416,505 | $416,505 |
| 2020 | $259,444 | $120,000 | $0 | $379,444 | $379,444 |
| 2019 | $187,681 | $170,000 | $0 | $357,681 | $357,681 |
| 2018 | $188,258 | $150,000 | $0 | $338,258 | $338,258 |
| 2017 | $189,413 | $130,000 | $0 | $319,413 | $319,413 |
| 2016 | $158,849 | $90,000 | $0 | $248,849 | $248,849 |
| 2015 | $160,586 | $90,000 | $0 | $250,586 | $250,586 |
| 2014 | $134,502 | $120,000 | $0 | $254,502 | $254,502 |
| 2013 | $136,215 | $95,000 | $0 | $231,215 | $231,215 |
| 2012 | $137,927 | $95,000 | $0 | $232,927 | $232,927 |
| 2011 | $139,639 | $95,000 | $0 | $234,639 | $101,682 |
| 2010 | $148,066 | $95,000 | $0 | $243,066 | $243,066 |
| 2009 | $151,993 | $85,496 | $0 | $237,489 | $237,489 |
| 2008 | $154,668 | $90,000 | $0 | $244,668 | $244,668 |
| 2007 | $156,845 | $90,000 | $0 | $246,845 | $246,845 |
Deed and Sales History
| 1 | 06/15/2022 | QCD | Quit Claim Deed | HOOD, JILL MASON | HOOD, AMIE | | | $0.00 | 53485 | 4546786 |
| 2 | 03/11/2019 | QCD | Quit Claim Deed | HOOD, JILL M | HOOD, JILL MASON | | | $0.00 | 37919 | 4460759 |
| 3 | 09/06/2018 | QCD | Quit Claim Deed | HOOD, JILL M | HOOD, JILL M | | | $0.00 | 35939 | 4451922 |
| 4 | 09/06/2018 | QCD | Quit Claim Deed | HOOD, HAROLD B | HOOD, JILL M | | | $0.00 | 35799 | 4451296 |
| 5 | 06/27/2016 | WD | Warranty Deed | STENNING, ELIZABETH L | HOOD, HAROLD B | | | $415,100.00 | 25038 | 4402273 |
|   | |
| 6 | 09/21/2012 | WD | Warranty Deed | PATRICK, JOE GORDON | STENNING, ELIZABETH L | | | $359,000.00 | 9012 | 4324037 |
|   | |
| 7 | 06/01/1989 | WD | Warranty Deed | WALDRIP, JAMES S | PATRICK, JOE G | | | $49,300.00 | 92288 | 89007831 |
| 8 | 09/01/1988 | QCD | Quit Claim Deed | REILLY, WILLIAM B | WALDRIP, JAMES S | | | $0.00 | 83040 | 88011357 |
| 9 | 04/01/1987 | DECREE | Divorce Decree/Legal Separation | REILLY, WM B | REILLY, WILLIAM B | | | $0.00 | 70919 | 87004745 |
| 10 | 08/01/1985 | WD | Warranty Deed | WALDRIP, JAMES S | REILLY, WM B | | | $46,500.00 | 52575 | 85010143 |
| 11 | 03/01/1984 | CD | DNU - Correction Deed | WALDRIP, JAMES S | WALDRIP, JAMES S | | | $0.00 | 60428 | 421755 |
| 12 | 01/01/1900 | OTHER | Other - Misc. Documents | Unknown | WALDRIP, JAMES S | | | $0.00 | 0 | 0 |
Payout Agreement
| No payout information available.. |