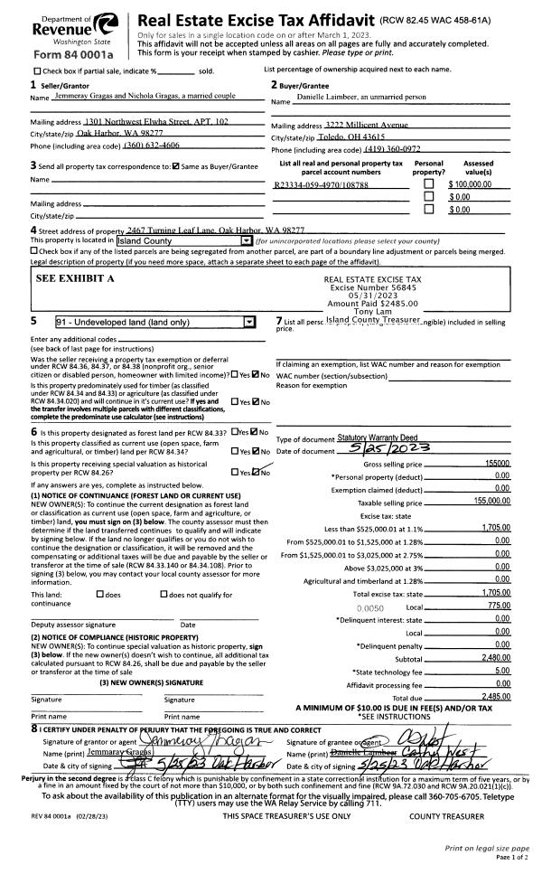
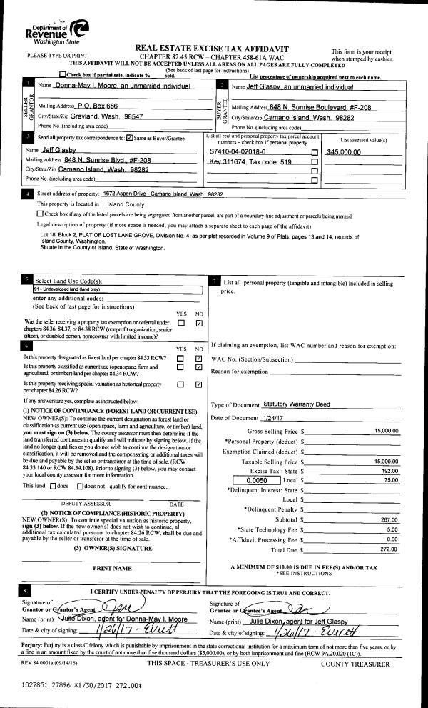
Property
Account |
| Property ID: | 89353 | Abbreviated Legal Description: | IN SE NW: PT W30 ACS OF SE NW LY N OF HIRSIG RD EX E545' OF W990.60' |
| Geographic ID: | R23203-355-1570 | Agent Code: | |
| Type: | Real | | |
| Tax Area: | 112 - APPRAISER-OH Schl Dist, outside OH, improved, greater than 1 acre | Land Use Code | 11 |
| Open Space: | N | DFL | N |
| Historic Property: | N | Remodel Property: | N |
| Multi-Family Redevelopment: | N | | |
| Township: | 32 | Section: | 03 |
| Range: | R2 |
Location |
| Address: | 2252 HAPPY VALLEY RD OAK HARBOR, WA 98277 | Mapsco: | |
| Neighborhood: | Cycle 6 | Map ID: | 542 |
| Neighborhood CD: | 6 |
Owner |
| Name: | KING, DAVID B | Owner ID: | 279082 |
| Mailing Address: | 2252 HAPPY VALLEY RD OAK HARBOR, WA 98277 | % Ownership: | 100.0000000000% |
| | | Exemptions: | |
Taxes and Assessment Details
Values
| (+) Improvement Homesite Value: | + | $0 | |
| (+) Improvement Non-Homesite Value: | + | $30,250 | |
| (+) Land Homesite Value: | + | $0 | |
| (+) Land Non-Homesite Value: | + | $300,000 | |
| (+) Curr Use (HS): | + | $0 | $0 |
| (+) Curr Use (NHS): | + | $0 | $0 |
| | | -------------------------- | |
| (=) Market Value: | = | $330,250 | |
| (–) Productivity Loss: | – | $0 | |
| | | -------------------------- | |
| (=) Subtotal: | = | $330,250 | |
| (+) Senior Appraised Value: | + | $0 | |
| (+) Non-Senior Appraised Value: | + | $330,250 | |
| | | -------------------------- | |
| (=) Total Appraised Value: | = | $330,250 | |
| (–) Senior Exemption Loss: | – | $0 | |
| (–) Exemption Loss: | – | $0 | |
| | | -------------------------- | |
| (=) Taxable Value: | = | $330,250 | |
Taxing Jurisdiction
| Owner: | KING, DAVID B | | |
| % Ownership: | 100.0000000000% | | |
| Total Value: | $330,250 | | |
| Tax Area: | 112 - APPRAISER-OH Schl Dist, outside OH, improved, greater than 1 acre |
| CF | Conservation Futures | 0.0316035091 | $330,250 | $330,250 | $10.44 | | |
| CEM1 | Cemetery #1 | 0.0040320932 | $330,250 | $330,250 | $1.33 | | |
| FIRE2 | Fire & Rescue Dist #2 N Whidbey GEN | 0.5475949600 | $330,250 | $330,250 | $180.84 | | |
| HOBOND | Hospital BOND | 0.1910887512 | $330,250 | $330,250 | $63.11 | | |
| HOGEN | Hospital GEN | 0.3902502903 | $330,250 | $330,250 | $128.88 | | |
| CE | County Current Expense | 0.3708482477 | $330,250 | $330,250 | $122.47 | | |
| CR | County Roads | 0.4584763726 | $330,250 | $330,250 | $151.41 | | |
| ISLANDEMS | Hospital GEN (EMS) | 0.5000000000 | $330,250 | $330,250 | $165.13 | | |
| LIB | Library Sno-Isle GEN | 0.3153421757 | $330,250 | $330,250 | $104.14 | | |
| NWHIDPRMT | P & R N Whidbey GEN | 0.2004466701 | $330,250 | $330,250 | $66.20 | | |
| SCH201MO | School 201 Enrichment | 1.8559231640 | $330,250 | $330,250 | $612.92 | | |
| ST | State School | 1.3035497053 | $330,250 | $330,250 | $430.50 | | |
| ST2 | State School Part 2 | 0.8169543533 | $330,250 | $330,250 | $269.80 | | |
| | Total Tax Rate: | 6.9861102925 | | | | | |
| | | | | Taxes w/Current Exemptions: | $2,307.17 | | |
| | | | | Taxes w/o Exemptions: | $2,307.17 | | |
Improvement / Building
| Improvement #1: | MANUFACTURED HOME | State Code: | Y | 1151.9 sqft | Value: | $30,250 |
| Bathrooms: | 0 | Bedrooms: | 0 | | Ceiling: | PLASTER PAINTED | Cooling: | EVAP NO DUCT | | Exterior Wall/Cover: | VINYL | Floor Covering: | CARPET 100% | | Floor Structure: | SLAB ON GRADE | Foundation: | SLAB | | Heating: | FHA ELECTRIC | Interior Finish: | PLASTER | | Plumbing Fixture Cnt: | 1 | Roof Slope: | FLAT | | Roof Structure/Cover: | CJ ALUMINIUM HEAVY |   |   |
|
| | Type | Description | Class CD | Sub Class CD | Year Built | Area |
| | BAS | BASE/MAIN FLOOR | 3 | 0 | 1973 | 1151.9 |
| | OCP | OPEN CARPORT | 3 | 0 | 1973 | 280.0 |
| | UTY | STORAGE/UTILITY | 3 | 0 | 1973 | 112.0 |
| | OWR | OPEN WOOD PORCH W/STEPS/ROOF | 3 | 0 | 1973 | 230.0 |
| | ENP | ENCLOSED PORCH | 3 | 0 | 1973 | 140.0 |
| | OWR | OPEN WOOD PORCH W/STEPS/ROOF | 3 | 0 | 1973 | 140.0 |
| | AGR | ATTACHED GARAGE | 3 | 0 | 1973 | 672.0 |
| | CPD | OPEN CARPORT DIRT FLOOR | 3 | 0 | 1973 | 792.0 |
Sketch
Property Image
Land
| 1 | 32 | AC (03.01-09.99) | 8.7000 | 378972.00 | 0.00 | 0.00 | 1.00 | $300,000 | $0 |
Roll Value History
| 2026 | N/A | N/A | N/A | N/A | N/A |
| 2025 | $30,250 | $300,000 | $0 | $330,250 | $330,250 |
| 2024 | $30,250 | $280,000 | $0 | $310,250 | $310,250 |
| 2023 | $30,250 | $270,000 | $0 | $300,250 | $300,250 |
| 2022 | $18,817 | $240,000 | $0 | $258,817 | $258,817 |
| 2021 | $16,360 | $160,000 | $0 | $176,360 | $176,360 |
| 2020 | $16,279 | $140,000 | $0 | $156,279 | $156,279 |
| 2019 | $12,932 | $200,000 | $0 | $212,932 | $212,932 |
| 2018 | $12,932 | $170,000 | $0 | $182,932 | $182,932 |
| 2017 | $14,175 | $150,000 | $0 | $164,175 | $164,175 |
| 2016 | $26,169 | $140,000 | $0 | $166,169 | $166,169 |
| 2015 | $26,748 | $155,000 | $0 | $181,748 | $181,748 |
| 2014 | $27,903 | $147,900 | $0 | $175,803 | $175,803 |
| 2013 | $28,480 | $147,900 | $0 | $176,380 | $176,380 |
| 2012 | $29,636 | $117,450 | $0 | $147,086 | $147,086 |
| 2011 | $28,158 | $130,500 | $0 | $158,658 | $114,551 |
| 2010 | $34,696 | $75,000 | $0 | $109,696 | $56,376 |
| 2009 | $17,891 | $289,753 | $145,000 | $162,644 | $56,375 |
| 2008 | $17,896 | $289,794 | $145,000 | $162,690 | $56,375 |
| 2007 | $15,476 | $34,448 | $0 | $49,924 | $49,924 |
Deed and Sales History
| 1 | 03/23/2017 | WD | Warranty Deed | J & D BUILDERS, INC | KING, DAVID B | | | $190,000.00 | 28569 | 4419433 |
| 2 | 08/28/2015 | WD | Warranty Deed | KEEN TRUSTEE, HAZEL J | J & D BUILDERS, INC | | | $139,000.00 | 21202 | 4385233 |
| 3 | 05/18/2015 | TOD | Transfer On Death Deed | KEEN TRUSTEE, JACK D | KEEN TRUSTEE, HAZEL J | | | | 86147 | |
| 4 | 12/04/2012 | CPADC | Comm Prop Agmnt & Death Cert | KEEN, MARCIA | KEEN TRUSTEE, JACK D | | | | 82550 | 4303355 |
| 5 | 03/30/2012 | QCD | Quit Claim Deed | KEEN, LAWRENCE W | HENDERSON, LAURA H | | | $0.00 | 8556 | 4321325 |
| 6 | 12/08/1998 | QCD | Quit Claim Deed | KEEN, LAWRENCE W | KEEN, LAWRENCE W/MARCIA & | | | $0.00 | 85126 | 98028050 |
| 7 | 07/01/1992 | WD | Warranty Deed | KEEN, LAWRENCE W | KEEN, LAWRENCE W | | | $25,000.00 | 23000 | 92014571 |
| 8 | 07/01/1992 | OTHER | Other - Misc. Documents | BYRON, M B | KEEN, LAWRENCE W | | | $25,000.00 | 22999 | 0 |
| 9 | 10/01/1983 | OTHER | Other - Misc. Documents | BYRON, M B | BYRON, M B | | | $0.00 | 33133 | 0 |
| 10 | 01/01/1900 | OTHER | Other - Misc. Documents | Unknown | BYRON, M B | | | $0.00 | 0 | 0 |
Payout Agreement
| No payout information available.. |