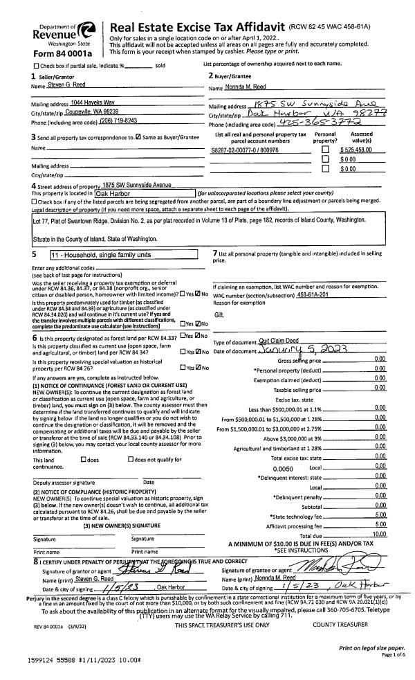
Property
Account |
| Property ID: | 89488 | Abbreviated Legal Description: | 21 - IN NE:BG NE CR NW W330 S1720' NE TP ELN NW 1570' S OF NE CR NW TP 270' E OF SW CR NW NE NE TP 430' N & 75' W OF ELN W15AC NW NE E75' N890' TO NLN SEC 3 W TPB TGW & SUB EZ AF#84005622 |
| Geographic ID: | R23203-456-2730 | Agent Code: | |
| Type: | Real | | |
| Tax Area: | 119 - APPRAISER-OH Schl Dist, outside OH, vacant & 50 acres or less | Land Use Code | 88 |
| Open Space: | N | DFL | Y |
| Historic Property: | N | Remodel Property: | N |
| Multi-Family Redevelopment: | N | | |
| Township: | 32 | Section: | 03 |
| Range: | R2 |
Location |
| Address: | | Mapsco: | |
| Neighborhood: | Cycle 6 | Map ID: | 543 |
| Neighborhood CD: | 6 |
Owner |
| Name: | HOWAT, NATHAN J | Owner ID: | 273577 |
| Mailing Address: | ELYA R HOWAT 2990 SLATER RD OAK HARBOR, WA 98277 | % Ownership: | 100.0000000000% |
| | | Exemptions: | |
Taxes and Assessment Details
Values
| (+) Improvement Homesite Value: | + | $0 | |
| (+) Improvement Non-Homesite Value: | + | $0 | |
| (+) Land Homesite Value: | + | $0 | |
| (+) Land Non-Homesite Value: | + | $0 | |
| (+) Curr Use (HS): | + | $0 | $0 |
| (+) Curr Use (NHS): | + | $290,000 | $3,845 |
| | | -------------------------- | |
| (=) Market Value: | = | $290,000 | |
| (–) Productivity Loss: | – | $286,155 | |
| | | -------------------------- | |
| (=) Subtotal: | = | $3,845 | |
| (+) Senior Appraised Value: | + | $0 | |
| (+) Non-Senior Appraised Value: | + | $3,845 | |
| | | -------------------------- | |
| (=) Total Appraised Value: | = | $3,845 | |
| (–) Senior Exemption Loss: | – | $0 | |
| (–) Exemption Loss: | – | $0 | |
| | | -------------------------- | |
| (=) Taxable Value: | = | $3,845 | |
Taxing Jurisdiction
| Owner: | HOWAT, NATHAN J | | |
| % Ownership: | 100.0000000000% | | |
| Total Value: | $290,000 | | |
| Tax Area: | 119 - APPRAISER-OH Schl Dist, outside OH, vacant & 50 acres or less |
| CF | Conservation Futures | 0.0316035091 | $3,845 | $3,845 | $0.12 | | |
| CEM1 | Cemetery #1 | 0.0040320932 | $3,845 | $3,845 | $0.02 | | |
| HOBOND | Hospital BOND | 0.1910887512 | $3,845 | $3,845 | $0.73 | | |
| HOGEN | Hospital GEN | 0.3902502903 | $3,845 | $3,845 | $1.50 | | |
| CE | County Current Expense | 0.3708482477 | $3,845 | $3,845 | $1.43 | | |
| CR | County Roads | 0.4584763726 | $3,845 | $3,845 | $1.76 | | |
| ISLANDEMS | Hospital GEN (EMS) | 0.5000000000 | $3,845 | $3,845 | $1.92 | | |
| LIB | Library Sno-Isle GEN | 0.3153421757 | $3,845 | $3,845 | $1.21 | | |
| NWHIDPRMT | P & R N Whidbey GEN | 0.2004466701 | $3,845 | $3,845 | $0.77 | | |
| SCH201MO | School 201 Enrichment | 1.8559231640 | $3,845 | $3,845 | $7.14 | | |
| ST | State School | 1.3035497053 | $3,845 | $3,845 | $5.01 | | |
| ST2 | State School Part 2 | 0.8169543533 | $3,845 | $3,845 | $3.14 | | |
| | Total Tax Rate: | 6.4385153325 | | | | | |
| | | | | Taxes w/Current Exemptions: | $24.75 | | |
| | | | | Taxes w/o Exemptions: | $24.75 | | |
Improvement / Building
Sketch
| No sketches available for this property. |
Property Image
Land
| 1 | 88 | DESIGNATED FOREST | 19.9600 | 869457.60 | 0.00 | 0.00 | 1.00 | $222,888 | $2,974 |
| 2 | 88 | DESIGNATED FOREST | 6.0100 | 261795.60 | 0.00 | 0.00 | 1.00 | $67,112 | $871 |
Roll Value History
| 2026 | N/A | N/A | N/A | N/A | N/A |
| 2025 | $0 | $290,000 | $3,845 | $3,845 | $3,845 |
| 2024 | $0 | $280,000 | $3,871 | $3,871 | $3,871 |
| 2023 | $0 | $260,000 | $3,715 | $3,715 | $3,715 |
| 2022 | $0 | $260,000 | $3,715 | $3,715 | $3,715 |
| 2021 | $0 | $260,000 | $3,715 | $3,715 | $3,715 |
| 2020 | $0 | $260,000 | $3,715 | $3,715 | $3,715 |
| 2019 | $0 | $260,000 | $3,585 | $3,585 | $3,585 |
| 2018 | $0 | $200,000 | $3,534 | $3,534 | $3,534 |
| 2017 | $0 | $180,000 | $3,534 | $3,534 | $3,534 |
| 2016 | $0 | $200,000 | $2,605 | $2,605 | $2,605 |
| 2015 | $0 | $200,000 | $2,605 | $2,605 | $2,605 |
| 2014 | $0 | $212,501 | $2,605 | $2,605 | $2,605 |
| 2013 | $0 | $212,501 | $2,605 | $2,605 | $2,605 |
| 2012 | $0 | $212,501 | $2,605 | $2,605 | $2,605 |
| 2011 | $0 | $250,000 | $2,605 | $2,605 | $2,605 |
| 2010 | $0 | $250,000 | $2,605 | $2,605 | $2,605 |
| 2009 | $0 | $5,210 | $2,605 | $2,605 | $2,605 |
Deed and Sales History
| 1 | 12/12/2022 | WD | Warranty Deed | YATES FAMILY PARTNERSHIP | HOWAT, NATHAN J | | | $900,000.00 | 55406 | 4554889 |
| 2 | 08/11/2008 | QCD | Quit Claim Deed | YATES, MILDRED E | YATES, BRADFORD C | | | $0.00 | 82584 | 4237727 |
| 3 | 08/11/2008 | OTHER | Other - Misc. Documents | YATES TRUSTEE, MILDRED E | YATES, MILDRED E | | | $0.00 | 82583 | 4237726 |
| 4 | 12/08/2004 | EXECUTORD | Executor Deed | YATES FAMILY TRUST, | YATES TRUSTEE, MILDRED E | | | $0.00 | 51359 | 4123998 |
| 5 | 12/08/2004 | PRD | Personal Representatives Deed | YATES, IRA C | YATES FAMILY TRUST, | | | $0.00 | 50295 | 4123998 |
| 6 | 11/01/1993 | QCD | Quit Claim Deed | YATES, FAMILY P | YATES, IRA C | | | $0.00 | 34718 | 93024610 |
| 7 | 11/01/1993 | QCD | Quit Claim Deed | YATES, IRA C | YATES, FAMILY P | | | $0.00 | 34881 | 93025512 |
| 8 | 01/01/1900 | OTHER | Other - Misc. Documents | Unknown | YATES, IRA C | | | $0.00 | 0 | 0 |
Payout Agreement
| No payout information available.. |