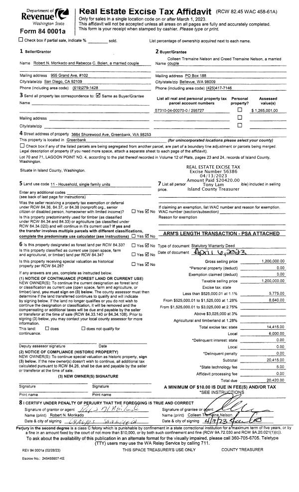
Property
Account |
| Property ID: | 89629 | Abbreviated Legal Description: | 71 - E/2 NE NE NE TGW & SUB EZ AF#281132 |
| Geographic ID: | R23203-498-5120 | Agent Code: | |
| Type: | Real | | |
| Tax Area: | 112 - APPRAISER-OH Schl Dist, outside OH, improved, greater than 1 acre | Land Use Code | 11 |
| Open Space: | N | DFL | N |
| Historic Property: | N | Remodel Property: | N |
| Multi-Family Redevelopment: | N | | |
| Township: | 32 | Section: | 03 |
| Range: | R2 |
Location |
| Address: | 2429 TURNING LEAF LN OAK HARBOR, WA 98277 | Mapsco: | |
| Neighborhood: | Cycle 6 | Map ID: | 543 |
| Neighborhood CD: | 6 |
Owner |
| Name: | BOCKELMAN, DON | Owner ID: | 25929 |
| Mailing Address: | LINDA BOCKELMAN PO BOX 1018 OAK HARBOR, WA 98277-1018 | % Ownership: | 100.0000000000% |
| | | Exemptions: | |
Taxes and Assessment Details
Values
| (+) Improvement Homesite Value: | + | $0 | |
| (+) Improvement Non-Homesite Value: | + | $58,320 | |
| (+) Land Homesite Value: | + | $0 | |
| (+) Land Non-Homesite Value: | + | $170,000 | |
| (+) Curr Use (HS): | + | $0 | $0 |
| (+) Curr Use (NHS): | + | $0 | $0 |
| | | -------------------------- | |
| (=) Market Value: | = | $228,320 | |
| (–) Productivity Loss: | – | $0 | |
| | | -------------------------- | |
| (=) Subtotal: | = | $228,320 | |
| (+) Senior Appraised Value: | + | $0 | |
| (+) Non-Senior Appraised Value: | + | $228,320 | |
| | | -------------------------- | |
| (=) Total Appraised Value: | = | $228,320 | |
| (–) Senior Exemption Loss: | – | $0 | |
| (–) Exemption Loss: | – | $0 | |
| | | -------------------------- | |
| (=) Taxable Value: | = | $228,320 | |
Taxing Jurisdiction
| Owner: | BOCKELMAN, DON | | |
| % Ownership: | 100.0000000000% | | |
| Total Value: | $228,320 | | |
| Tax Area: | 112 - APPRAISER-OH Schl Dist, outside OH, improved, greater than 1 acre |
| CF | Conservation Futures | 0.0316035091 | $228,320 | $228,320 | $7.22 | | |
| CEM1 | Cemetery #1 | 0.0040320932 | $228,320 | $228,320 | $0.92 | | |
| FIRE2 | Fire & Rescue Dist #2 N Whidbey GEN | 0.5475949600 | $228,320 | $228,320 | $125.03 | | |
| HOBOND | Hospital BOND | 0.1910887512 | $228,320 | $228,320 | $43.63 | | |
| HOGEN | Hospital GEN | 0.3902502903 | $228,320 | $228,320 | $89.10 | | |
| CE | County Current Expense | 0.3708482477 | $228,320 | $228,320 | $84.67 | | |
| CR | County Roads | 0.4584763726 | $228,320 | $228,320 | $104.68 | | |
| ISLANDEMS | Hospital GEN (EMS) | 0.5000000000 | $228,320 | $228,320 | $114.16 | | |
| LIB | Library Sno-Isle GEN | 0.3153421757 | $228,320 | $228,320 | $72.00 | | |
| NWHIDPRMT | P & R N Whidbey GEN | 0.2004466701 | $228,320 | $228,320 | $45.77 | | |
| SCH201MO | School 201 Enrichment | 1.8559231640 | $228,320 | $228,320 | $423.74 | | |
| ST | State School | 1.3035497053 | $228,320 | $228,320 | $297.63 | | |
| ST2 | State School Part 2 | 0.8169543533 | $228,320 | $228,320 | $186.53 | | |
| | Total Tax Rate: | 6.9861102925 | | | | | |
| | | | | Taxes w/Current Exemptions: | $1,595.08 | | |
| | | | | Taxes w/o Exemptions: | $1,595.08 | | |
Improvement / Building
| Improvement #1: | RESIDENTIAL | State Code: | Y | 0.0 sqft | Value: | $58,320 |
| Bathrooms: | 1 | Ceiling: | DRYWALL PAINTED | | Cooling: | (NONE) | Exterior Wall/Cover: | STL/ALUM/SINGWL WD F | | Floor Covering: | VINYL TILE | Floor Structure: | SLAB ON GRADE | | Foundation: | CONCRETE | Heating: | (NONE) | | Interior Finish: | DRYWALL PAINT | Plumbing Fixture Cnt: | 3 | | Roof Slope: | 4" IN 12" | Roof Structure/Cover: | CJ ALUMINIUM HEAVY |
|
| | Type | Description | Class CD | Sub Class CD | Year Built | Area |
| | BAS | BASE/MAIN FLOOR | 3 | 0 | 2013 | 0.0 |
| | DGR | DETACHED GARAGE | 3 | 0 | 2013 | 1080.0 |
| | OP1 | OPEN PORCH SLAB | 3 | 0 | 2013 | 432.0 |
Sketch
Property Image
Land
| 1 | 32 | AC (03.01-09.99) | 5.0000 | 0.00 | 0.00 | 0.00 | 1.00 | $170,000 | $0 |
Roll Value History
| 2026 | N/A | N/A | N/A | N/A | N/A |
| 2025 | $58,320 | $170,000 | $0 | $228,320 | $228,320 |
| 2024 | $58,320 | $150,000 | $0 | $208,320 | $208,320 |
| 2023 | $58,320 | $140,000 | $0 | $198,320 | $198,320 |
| 2022 | $70,458 | $100,000 | $0 | $170,458 | $170,458 |
| 2021 | $61,742 | $100,000 | $0 | $161,742 | $161,742 |
| 2020 | $60,091 | $90,000 | $0 | $150,091 | $150,091 |
| 2019 | $43,936 | $110,000 | $0 | $153,936 | $153,936 |
| 2018 | $44,053 | $110,000 | $0 | $154,053 | $154,053 |
| 2017 | $44,286 | $80,000 | $0 | $124,286 | $124,286 |
| 2016 | $24,570 | $80,000 | $0 | $104,570 | $104,570 |
| 2015 | $24,570 | $60,000 | $0 | $84,570 | $84,570 |
| 2014 | $24,570 | $55,000 | $0 | $79,570 | $79,570 |
| 2013 | $24,570 | $80,000 | $0 | $104,570 | $104,570 |
| 2012 | $24,570 | $84,744 | $0 | $109,314 | $109,314 |
| 2011 | $24,570 | $94,160 | $0 | $118,730 | $118,730 |
| 2010 | $27,338 | $94,160 | $0 | $121,498 | $121,498 |
| 2009 | $29,468 | $117,873 | $0 | $147,341 | $147,341 |
| 2008 | $20,196 | $98,605 | $0 | $118,801 | $118,801 |
| 2007 | $29,377 | $116,500 | $0 | $145,877 | $145,877 |
Deed and Sales History
| 1 | 08/04/2004 | WD | Warranty Deed | YOUNG AND, TERRY A | BOCKELMAN, DON | | | $52,000.00 | 43656 | 4109436 |
| 2 | 08/13/1998 | QCD | Quit Claim Deed | YOUNG, TERRY A | YOUNG AND, TERRY A | | | $0.00 | 83277 | 98018550 |
| 3 | 09/01/1989 | DECREE | Divorce Decree/Legal Separation | YOUNG, TERRY A | YOUNG, TERRY A | | | $0.00 | 93760 | 89012557 |
| 4 | 01/01/1900 | OTHER | Other - Misc. Documents | Unknown | YOUNG, TERRY A | | | $0.00 | 0 | 0 |
Payout Agreement
| No payout information available.. |