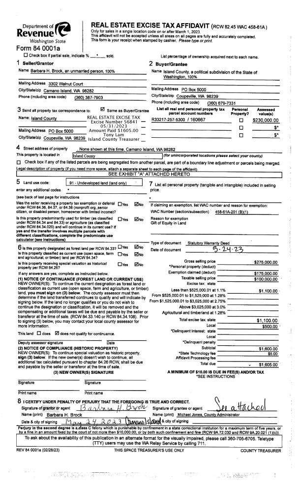
Property
Account |
| Property ID: | 89745 | Abbreviated Legal Description: | 9 - W/2 W/2 GL1 |
| Geographic ID: | R23204-200-4100 | Agent Code: | |
| Type: | Real | | |
| Tax Area: | 112 - APPRAISER-OH Schl Dist, outside OH, improved, greater than 1 acre | Land Use Code | 11 |
| Open Space: | N | DFL | N |
| Historic Property: | N | Remodel Property: | N |
| Multi-Family Redevelopment: | N | | |
| Township: | 32 | Section: | 04 |
| Range: | R2 |
Location |
| Address: | 1115 OLD POLNELL RD OAK HARBOR, WA 98277 | Mapsco: | |
| Neighborhood: | Cycle 6 | Map ID: | 545 |
| Neighborhood CD: | 6 |
Owner |
| Name: | MASON TTEE, LARRY | Owner ID: | 315109 |
| Mailing Address: | CYNTHIA ANN MASON TTEE 1115 OLD POLNELL RD OAK HARBOR, WA 98277 | % Ownership: | 100.0000000000% |
| | | Exemptions: | |
Taxes and Assessment Details
Values
| (+) Improvement Homesite Value: | + | $0 | |
| (+) Improvement Non-Homesite Value: | + | $704,203 | |
| (+) Land Homesite Value: | + | $0 | |
| (+) Land Non-Homesite Value: | + | $340,000 | |
| (+) Curr Use (HS): | + | $0 | $0 |
| (+) Curr Use (NHS): | + | $0 | $0 |
| | | -------------------------- | |
| (=) Market Value: | = | $1,044,203 | |
| (–) Productivity Loss: | – | $0 | |
| | | -------------------------- | |
| (=) Subtotal: | = | $1,044,203 | |
| (+) Senior Appraised Value: | + | $0 | |
| (+) Non-Senior Appraised Value: | + | $1,044,203 | |
| | | -------------------------- | |
| (=) Total Appraised Value: | = | $1,044,203 | |
| (–) Senior Exemption Loss: | – | $0 | |
| (–) Exemption Loss: | – | $0 | |
| | | -------------------------- | |
| (=) Taxable Value: | = | $1,044,203 | |
Taxing Jurisdiction
| Owner: | MASON TTEE, LARRY | | |
| % Ownership: | 100.0000000000% | | |
| Total Value: | $1,044,203 | | |
| Tax Area: | 112 - APPRAISER-OH Schl Dist, outside OH, improved, greater than 1 acre |
| CF | Conservation Futures | 0.0316035091 | $1,044,203 | $1,044,203 | $33.00 | | |
| CEM1 | Cemetery #1 | 0.0040320932 | $1,044,203 | $1,044,203 | $4.21 | | |
| FIRE2 | Fire & Rescue Dist #2 N Whidbey GEN | 0.5475949600 | $1,044,203 | $1,044,203 | $571.80 | | |
| HOBOND | Hospital BOND | 0.1910887512 | $1,044,203 | $1,044,203 | $199.54 | | |
| HOGEN | Hospital GEN | 0.3902502903 | $1,044,203 | $1,044,203 | $407.50 | | |
| CE | County Current Expense | 0.3708482477 | $1,044,203 | $1,044,203 | $387.24 | | |
| CR | County Roads | 0.4584763726 | $1,044,203 | $1,044,203 | $478.74 | | |
| ISLANDEMS | Hospital GEN (EMS) | 0.5000000000 | $1,044,203 | $1,044,203 | $522.10 | | |
| LIB | Library Sno-Isle GEN | 0.3153421757 | $1,044,203 | $1,044,203 | $329.28 | | |
| NWHIDPRMT | P & R N Whidbey GEN | 0.2004466701 | $1,044,203 | $1,044,203 | $209.31 | | |
| SCH201MO | School 201 Enrichment | 1.8559231640 | $1,044,203 | $1,044,203 | $1,937.96 | | |
| ST | State School | 1.3035497053 | $1,044,203 | $1,044,203 | $1,361.17 | | |
| ST2 | State School Part 2 | 0.8169543533 | $1,044,203 | $1,044,203 | $853.07 | | |
| | Total Tax Rate: | 6.9861102925 | | | | | |
| | | | | Taxes w/Current Exemptions: | $7,294.92 | | |
| | | | | Taxes w/o Exemptions: | $7,294.92 | | |
Improvement / Building
| Improvement #1: | RESIDENTIAL | State Code: | Y | 975.3 sqft | Value: | $138,395 |
| Bathrooms: | 1 | Bedrooms: | 3 | | Ceiling: | DRYWALL PAINTED | Exterior Wall/Cover: | CEMENT FIBER | | Floor Covering: | CARPET/VINYL 80-20 | Floor Structure: | WOOD W/SUBFLOOR | | Foundation: | PIERS/CONCRETE | Heating: | BASEBOARD ELECTRIC | | Interior Finish: | DRYWALL PAINT | Plumbing Fixture Cnt: | 6 | | Roof Slope: | 8" IN 12" | Roof Structure/Cover: | CJ ASPHALT |
|
| | Type | Description | Class CD | Sub Class CD | Year Built | Area |
| | BAS | BASE/MAIN FLOOR | 3 | 0 | 1932 | 975.3 |
| | OWP | OPEN WOOD PORCH W/STEPS | 3 | 0 | 1932 | 154.9 |
| | UTY | STORAGE/UTILITY | 3 | 0 | 1932 | 380.0 |
| | OP1 | OPEN PORCH SLAB | 3 | 0 | 1932 | 349.8 |
| | OWP | OPEN WOOD PORCH W/STEPS | 3 | 0 | 1932 | 91.4 |
| Improvement #2: | RESIDENTIAL | State Code: | Y | 2008.0 sqft | Value: | $565,808 |
| Bathrooms: | 2.5 | Bedrooms: | 2 | | Ceiling: | BEAM PAINTED | Exterior Wall/Cover: | WOOD SIDING | | Floor Covering: | HARDWOOD 100% | Floor Structure: | SLAB ON GRADE | | Foundation: | CONCRETE | Heating: | RADIANT FLOOR | | Interior Finish: | DRYWALL PAINT | Plumbing Fixture Cnt: | 12 | | Roof Slope: | 3" IN 12" | Roof Structure/Cover: | CJ ALUMINIUM HEAVY |
|
| | Type | Description | Class CD | Sub Class CD | Year Built | Area |
| | BAS | BASE/MAIN FLOOR | 4 | 0 | 2017 | 2008.0 |
| | OP1 | OPEN PORCH SLAB | 4 | 0 | 2017 | 139.0 |
| | DGR | DETACHED GARAGE | 4 | 0 | 2017 | 888.0 |
| | OP1 | OPEN PORCH SLAB | 4 | 0 | 2017 | 80.0 |
| | OP4 | OPEN PORCH W/CEILING-ROOF | 4 | 0 | 2017 | 180.0 |
Sketch
Property Image
Land
| 1 | 32 | AC (03.01-09.99) | 9.3300 | 406414.80 | 0.00 | 0.00 | 1.00 | $340,000 | $0 |
Roll Value History
| 2026 | N/A | N/A | N/A | N/A | N/A |
| 2025 | $704,203 | $340,000 | $0 | $1,044,203 | $1,044,203 |
| 2024 | $705,329 | $320,000 | $0 | $1,025,329 | $1,025,329 |
| 2023 | $711,873 | $320,000 | $0 | $1,031,873 | $1,031,873 |
| 2022 | $622,403 | $240,000 | $0 | $862,403 | $862,403 |
| 2021 | $548,299 | $160,000 | $0 | $708,299 | $708,299 |
| 2020 | $537,577 | $140,000 | $0 | $677,577 | $677,577 |
| 2019 | $404,544 | $200,000 | $0 | $604,544 | $604,544 |
| 2018 | $223,006 | $170,000 | $0 | $393,006 | $393,006 |
| 2017 | $78,959 | $150,000 | $0 | $228,959 | $228,959 |
| 2016 | $55,680 | $140,000 | $0 | $195,680 | $195,680 |
| 2015 | $56,657 | $155,000 | $0 | $211,657 | $211,657 |
| 2014 | $57,633 | $158,610 | $0 | $216,243 | $216,243 |
| 2013 | $58,611 | $158,610 | $0 | $217,221 | $217,221 |
| 2012 | $59,587 | $125,955 | $0 | $185,542 | $185,542 |
| 2011 | $60,564 | $139,950 | $0 | $200,514 | $200,514 |
| 2010 | $70,104 | $139,950 | $0 | $210,054 | $210,054 |
| 2009 | $73,274 | $205,260 | $0 | $278,534 | $278,534 |
| 2008 | $77,641 | $270,570 | $0 | $348,211 | $348,211 |
| 2007 | $79,033 | $282,139 | $0 | $361,172 | $361,172 |
Deed and Sales History
| 1 | 01/13/2025 | QCD | Quit Claim Deed | MASON, LARRY | MASON TTEE, LARRY | | | $10.00 | 62302 | 4581227 |
| 2 | 12/01/1997 | QCD | Quit Claim Deed | MASON, LARRY | MASON, LARRY/CYNTHIA A | | | $0.00 | 74329 | 97020804 |
| 3 | 06/20/1996 | WD | Warranty Deed | MASON, LARRY | MASON, LARRY | | | $0.00 | 81240 | 98006753 |
| 4 | 06/01/1996 | QCD | Quit Claim Deed | MASON, LARRY | MASON, LARRY | | | $0.00 | 62300 | 96011350 |
| 5 | 05/01/1995 | REC | Real Estate Contract | MASON, LARRY | MASON, LARRY | | | $60,000.00 | 51494 | 95006964 |
| 6 | 12/01/1976 | EXECUTORD | Executor Deed | CHAMBERS, J C | MASON, LARRY | | | $32,000.00 | 64437 | 0 |
| 7 | 01/01/1900 | OTHER | Other - Misc. Documents | Unknown | CHAMBERS, J C | | | $0.00 | 0 | 0 |
Payout Agreement
| No payout information available.. |