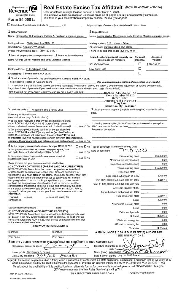
Property
Account |
| Property ID: | 90056 | Abbreviated Legal Description: | 3.3300 Acres ins Section 22s Township 32s Range R2s LOT A BLA 009-18 TL 7 - IN GL1;s |
| Geographic ID: | R23222-065-4700 | Agent Code: | |
| Type: | Real | | |
| Tax Area: | 512 - APPRAISER-Stan/Cam Schl Dist, improved, greater than 1 acre | Land Use Code | 11 |
| Open Space: | N | DFL | N |
| Historic Property: | N | Remodel Property: | N |
| Multi-Family Redevelopment: | N | | |
| Township: | 32 | Section: | 22 |
| Range: | R2 |
Location |
| Address: | 850 N SUNSET DR CAMANO ISLAND, WA 98282 | Mapsco: | |
| Neighborhood: | North Camano | Map ID: | 552 |
| Neighborhood CD: | 06-C |
Owner |
| Name: | WALTER, AARON ANDREW | Owner ID: | 257328 |
| Mailing Address: | 864 N SUNSET DR CAMANO ISLAND, WA 98282 | % Ownership: | 100.0000000000% |
| | | Exemptions: | |
Taxes and Assessment Details
Values
| (+) Improvement Homesite Value: | + | $0 | |
| (+) Improvement Non-Homesite Value: | + | $550,524 | |
| (+) Land Homesite Value: | + | $0 | |
| (+) Land Non-Homesite Value: | + | $360,000 | |
| (+) Curr Use (HS): | + | $0 | $0 |
| (+) Curr Use (NHS): | + | $0 | $0 |
| | | -------------------------- | |
| (=) Market Value: | = | $910,524 | |
| (–) Productivity Loss: | – | $0 | |
| | | -------------------------- | |
| (=) Subtotal: | = | $910,524 | |
| (+) Senior Appraised Value: | + | $0 | |
| (+) Non-Senior Appraised Value: | + | $910,524 | |
| | | -------------------------- | |
| (=) Total Appraised Value: | = | $910,524 | |
| (–) Senior Exemption Loss: | – | $0 | |
| (–) Exemption Loss: | – | $0 | |
| | | -------------------------- | |
| (=) Taxable Value: | = | $910,524 | |
Taxing Jurisdiction
| Owner: | WALTER, AARON ANDREW | | |
| % Ownership: | 100.0000000000% | | |
| Total Value: | $910,524 | | |
| Tax Area: | 512 - APPRAISER-Stan/Cam Schl Dist, improved, greater than 1 acre |
| CF | Conservation Futures | 0.0316035091 | $910,524 | $910,524 | $28.78 | | |
| EMS1 | Fire & Rescue Dist #1 Camano GEN (EMS) | 0.3677864386 | $910,524 | $910,524 | $334.88 | | |
| FIRE1 | Fire & Rescue Dist #1 Camano GEN | 1.2502910536 | $910,524 | $910,524 | $1,138.42 | | |
| FIRE1BOND | Fire & Rescue Dist #1 Camano BOND | 0.1570001679 | $910,524 | $910,524 | $142.95 | | |
| CE | County Current Expense | 0.3708482477 | $910,524 | $910,524 | $337.67 | | |
| CR | County Roads | 0.4584763726 | $910,524 | $910,524 | $417.45 | | |
| LCIB | Library Sno-Isle BOND (Camano Island) | 0.0396325772 | $910,524 | $910,524 | $36.09 | | |
| LIB | Library Sno-Isle GEN | 0.3153421757 | $910,524 | $910,524 | $287.13 | | |
| SCH205_401 | School 205-401 Enrichment | 1.2698420524 | $910,524 | $910,524 | $1,156.22 | | |
| SCH205BOND | School 205-401 BOND | 0.9396497583 | $910,524 | $910,524 | $855.57 | | |
| ST | State School | 1.3035497053 | $910,524 | $910,524 | $1,186.91 | | |
| ST2 | State School Part 2 | 0.8169543533 | $910,524 | $910,524 | $743.86 | | |
| | Total Tax Rate: | 7.3209764117 | | | | | |
| | | | | Taxes w/Current Exemptions: | $6,665.93 | | |
| | | | | Taxes w/o Exemptions: | $6,665.93 | | |
Improvement / Building
| Improvement #1: | RESIDENTIAL | State Code: | Y | 2618.6 sqft | Value: | $550,524 |
| Bathrooms: | 3.75 | Bedrooms: | 3 | | Ceiling: | DRYWALL PAINTED | Exterior Wall/Cover: | WOOD SIDING | | Floor Covering: | HARDWOOD/CARP 60-40 | Floor Structure: | WOOD W/SUBFLOOR | | Foundation: | CONCRETE | Heating: | RADIANT FLOOR | | Interior Finish: | DRYWALL PAINT | Plumbing Fixture Cnt: | 15 | | Roof Slope: | 4" IN 12" | Roof Structure/Cover: | CJ ALUMINIUM HEAVY |
|
| | Type | Description | Class CD | Sub Class CD | Year Built | Area |
| | BAS | BASE/MAIN FLOOR | 4 | 0 | 2007 | 1713.6 |
| | BIG | BUILT IN GARAGE | 4 | 0 | 2007 | 809.0 |
| | OWP | OPEN WOOD PORCH W/STEPS | 4 | 0 | 2007 | 144.0 |
| | OWC | OPEN WOOD PORCH W/STEPS/ROOF/C | 4 | 0 | 2007 | 289.0 |
| | DWN | DOWNSTAIRS LIVING AREA | 4 | 0 | 2007 | 905.0 |
| | OWP | OPEN WOOD PORCH W/STEPS | 4 | 0 | 2007 | 180.0 |
Sketch
Property Image
Land
| 1 | 32 | AC (03.01-09.99) | 3.3500 | 145926.00 | 0.00 | 0.00 | 1.00 | $360,000 | $0 |
Roll Value History
| 2026 | N/A | N/A | N/A | N/A | N/A |
| 2025 | $550,524 | $360,000 | $0 | $910,524 | $910,524 |
| 2024 | $556,762 | $340,000 | $0 | $896,762 | $896,762 |
| 2023 | $561,440 | $320,000 | $0 | $881,440 | $881,440 |
| 2022 | $468,428 | $300,000 | $0 | $768,428 | $768,428 |
| 2021 | $412,097 | $230,000 | $0 | $642,097 | $642,097 |
| 2020 | $401,524 | $190,000 | $0 | $591,524 | $591,524 |
| 2019 | $304,418 | $220,000 | $0 | $524,418 | $524,418 |
| 2018 | $305,280 | $175,000 | $0 | $480,280 | $480,280 |
| 2017 | $306,537 | $150,000 | $0 | $456,537 | $456,537 |
| 2016 | $309,403 | $150,000 | $0 | $459,403 | $459,403 |
| 2015 | $312,842 | $75,040 | $0 | $387,882 | $387,882 |
| 2014 | $316,279 | $75,040 | $0 | $391,319 | $391,319 |
| 2013 | $326,531 | $75,040 | $0 | $401,571 | $401,571 |
| 2012 | $330,042 | $75,040 | $0 | $405,082 | $405,082 |
| 2011 | $333,552 | $93,000 | $0 | $426,552 | $426,552 |
| 2010 | $311,651 | $93,000 | $0 | $404,651 | $404,651 |
| 2009 | $311,651 | $93,000 | $0 | $404,651 | $404,651 |
| 2008 | $329,517 | $145,725 | $0 | $475,242 | $475,242 |
| 2007 | $126,587 | $125,000 | $0 | $251,587 | $251,587 |
Deed and Sales History
| 1 | 07/05/2018 | QCD | Quit Claim Deed | WALTER, AARON ANDREW | WALTER, AARON ANDREW | | | $0.00 | 34871 | 4447469 |
| 2 | 11/10/2011 | QCD | Quit Claim Deed | WALTER, KATHLEEN ANN | WALTER, AARON ANDREW | | | $0.00 | 7343 | 4313335 |
| 3 | 04/26/2011 | QCD | Quit Claim Deed | WALTER, KATHLEEN ANN | WALTER, KATHLEEN ANN | | | $0.00 | 5425 | 4300513 |
| 4 | 09/09/2009 | QCD | Quit Claim Deed | WALTER, AARON A | WALTER, KATHLEEN ANN | | | $0.00 | 92120 | 4259882 |
| 5 | 09/28/2005 | WD | Warranty Deed | DUNCAN, KENNETH D | WALTER, AARON A | | | $100,000.00 | 55103 | 4150235 |
| 6 | 10/01/1982 | TRUSTEED | Trustee's Deed | CHAMBERS, BLAINE E | DUNCAN, KENNETH D | | | $5,500.00 | 22658 | 402393 |
| 7 | 06/01/1979 | TRUSTEED | Trustee's Deed | CHAMBERS, CLARENCE E | CHAMBERS, BLAINE E | | | $0.00 | 93847 | 356787 |
| 8 | 01/01/1900 | OTHER | Other - Misc. Documents | Unknown | CHAMBERS, CLARENCE E | | | $0.00 | 0 | 0 |
Payout Agreement
| No payout information available.. |