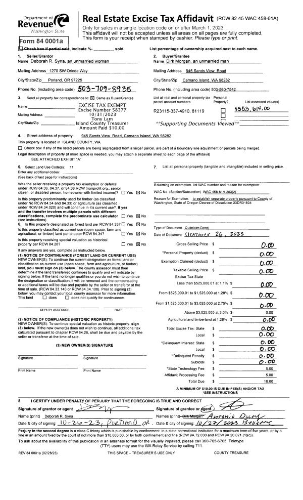
Property
Account |
| Property ID: | 90127 | Abbreviated Legal Description: | 13 - IN GL 1 W OF CO RD INCL ADJ TIDELANDS: N120'OF S1212' GL1 LY W OF SUNSET DR |
| Geographic ID: | R23222-115-3810 | Agent Code: | |
| Type: | Real | | |
| Tax Area: | 512 - APPRAISER-Stan/Cam Schl Dist, improved, greater than 1 acre | Land Use Code | 11 |
| Open Space: | N | DFL | N |
| Historic Property: | N | Remodel Property: | N |
| Multi-Family Redevelopment: | N | | |
| Township: | 32 | Section: | 22 |
| Range: | R2 |
Location |
| Address: | 885 N SUNSET DR CAMANO ISLAND, WA 98282 | Mapsco: | |
| Neighborhood: | North Camano | Map ID: | 552 |
| Neighborhood CD: | 06-C |
Owner |
| Name: | BERNER TTEE, HOWARD E | Owner ID: | 316248 |
| Mailing Address: | BARBARA BERNER TTEE 951 WYNHAVEN LANE BALLWIN, MO 63011 | % Ownership: | 100.0000000000% |
| | | Exemptions: | |
Taxes and Assessment Details
Values
| (+) Improvement Homesite Value: | + | $0 | |
| (+) Improvement Non-Homesite Value: | + | $498,776 | |
| (+) Land Homesite Value: | + | $0 | |
| (+) Land Non-Homesite Value: | + | $575,980 | |
| (+) Curr Use (HS): | + | $0 | $0 |
| (+) Curr Use (NHS): | + | $0 | $0 |
| | | -------------------------- | |
| (=) Market Value: | = | $1,074,756 | |
| (–) Productivity Loss: | – | $0 | |
| | | -------------------------- | |
| (=) Subtotal: | = | $1,074,756 | |
| (+) Senior Appraised Value: | + | $0 | |
| (+) Non-Senior Appraised Value: | + | $1,074,756 | |
| | | -------------------------- | |
| (=) Total Appraised Value: | = | $1,074,756 | |
| (–) Senior Exemption Loss: | – | $0 | |
| (–) Exemption Loss: | – | $0 | |
| | | -------------------------- | |
| (=) Taxable Value: | = | $1,074,756 | |
Taxing Jurisdiction
| Owner: | BERNER TTEE, HOWARD E | | |
| % Ownership: | 100.0000000000% | | |
| Total Value: | $1,074,756 | | |
| Tax Area: | 512 - APPRAISER-Stan/Cam Schl Dist, improved, greater than 1 acre |
| CF | Conservation Futures | 0.0316035091 | $1,074,756 | $1,074,756 | $33.97 | | |
| EMS1 | Fire & Rescue Dist #1 Camano GEN (EMS) | 0.3677864386 | $1,074,756 | $1,074,756 | $395.28 | | |
| FIRE1 | Fire & Rescue Dist #1 Camano GEN | 1.2502910536 | $1,074,756 | $1,074,756 | $1,343.76 | | |
| FIRE1BOND | Fire & Rescue Dist #1 Camano BOND | 0.1570001679 | $1,074,756 | $1,074,756 | $168.74 | | |
| CE | County Current Expense | 0.3708482477 | $1,074,756 | $1,074,756 | $398.57 | | |
| CR | County Roads | 0.4584763726 | $1,074,756 | $1,074,756 | $492.75 | | |
| LCIB | Library Sno-Isle BOND (Camano Island) | 0.0396325772 | $1,074,756 | $1,074,756 | $42.60 | | |
| LIB | Library Sno-Isle GEN | 0.3153421757 | $1,074,756 | $1,074,756 | $338.92 | | |
| SCH205_401 | School 205-401 Enrichment | 1.2698420524 | $1,074,756 | $1,074,756 | $1,364.77 | | |
| SCH205BOND | School 205-401 BOND | 0.9396497583 | $1,074,756 | $1,074,756 | $1,009.89 | | |
| ST | State School | 1.3035497053 | $1,074,756 | $1,074,756 | $1,401.00 | | |
| ST2 | State School Part 2 | 0.8169543533 | $1,074,756 | $1,074,756 | $878.03 | | |
| | Total Tax Rate: | 7.3209764117 | | | | | |
| | | | | Taxes w/Current Exemptions: | $7,868.28 | | |
| | | | | Taxes w/o Exemptions: | $7,868.28 | | |
Improvement / Building
| Improvement #1: | RESIDENTIAL | State Code: | Y | 1890.0 sqft | Value: | $371,972 |
| Bathrooms: | 2.5 | Bedrooms: | 2 | | Ceiling: | DRYWALL PAINTED | Exterior Wall/Cover: | WOOD SIDING | | Floor Covering: | CARPET/VINYL 80-20 | Floor Structure: | WOOD W/SUBFLOOR | | Foundation: | CONCRETE | Heating: | WALL HEAT ELECTRIC | | Interior Finish: | DRYWALL PAINT | Plumbing Fixture Cnt: | 11 | | Roof Slope: | 12" IN 12" | Roof Structure/Cover: | CJ WOOD SHAKES |
|
| | Type | Description | Class CD | Sub Class CD | Year Built | Area |
| | BAS | BASE/MAIN FLOOR | 4 | 0 | 1985 | 1406.0 |
| | AGR | ATTACHED GARAGE | 4 | 0 | 1985 | 472.0 |
| | UPS | UPPER STORY | 4 | 0 | 1985 | 484.0 |
| | OWP | OPEN WOOD PORCH W/STEPS | 4 | 0 | 1985 | 712.3 |
| | OWC | OPEN WOOD PORCH W/STEPS/ROOF/C | 4 | 0 | 1985 | 130.0 |
| | DGR | DETACHED GARAGE | 4 | 0 | 1985 | 320.0 |
| | OWP | OPEN WOOD PORCH W/STEPS | 4 | 0 | 1985 | 40.0 |
| | CPD | OPEN CARPORT DIRT FLOOR | 4 | 0 | 1985 | 128.0 |
| Improvement #2: | RESIDENTIAL | State Code: | Y | 825.0 sqft | Value: | $126,804 |
| Bathrooms: | 1 | Bedrooms: | 1 | | Ceiling: | DRYWALL PAINTED | Exterior Wall/Cover: | WOOD SIDING | | Floor Covering: | CARPET/VINYL 80-20 | Floor Structure: | WOOD W/SUBFLOOR | | Foundation: | PEIRS | Heating: | FHA ELECTRIC | | Interior Finish: | DRYWALL PAINT | Plumbing Fixture Cnt: | 5 | | Roof Slope: | 3" IN 12" | Roof Structure/Cover: | CJ ALUMINIUM HEAVY |
|
| | Type | Description | Class CD | Sub Class CD | Year Built | Area |
| | BAS | BASE/MAIN FLOOR | 3 | 0 | 1928 | 825.0 |
| | OWP | OPEN WOOD PORCH W/STEPS | 3 | 0 | 1928 | 855.5 |
| | OWR | OPEN WOOD PORCH W/STEPS/ROOF | 3 | 0 | 1928 | 25.5 |
Sketch
Property Image
Land
| 1 | HB | HIGH BLUFF | 0.0000 | 0.00 | 120.00 | 0.00 | 1.00 | $575,000 | $0 |
| 2 | 55 | TIDES | 0.0000 | 0.00 | 120.00 | 0.00 | 1.00 | $980 | $0 |
Roll Value History
| 2026 | N/A | N/A | N/A | N/A | N/A |
| 2025 | $498,776 | $575,980 | $0 | $1,074,756 | $1,074,756 |
| 2024 | $505,859 | $575,980 | $0 | $1,081,839 | $1,081,839 |
| 2023 | $512,941 | $575,980 | $0 | $1,088,921 | $1,088,921 |
| 2022 | $443,417 | $550,980 | $0 | $994,397 | $994,397 |
| 2021 | $390,866 | $450,980 | $0 | $841,846 | $841,846 |
| 2020 | $381,389 | $350,980 | $0 | $732,369 | $732,369 |
| 2019 | $282,550 | $350,980 | $0 | $633,530 | $633,530 |
| 2018 | $283,484 | $350,980 | $0 | $634,464 | $634,464 |
| 2017 | $285,346 | $350,980 | $0 | $636,326 | $636,326 |
| 2016 | $275,526 | $350,980 | $0 | $626,506 | $626,506 |
| 2015 | $279,486 | $350,980 | $0 | $630,466 | $630,466 |
| 2014 | $283,446 | $350,980 | $0 | $634,426 | $634,426 |
| 2013 | $287,406 | $310,956 | $0 | $598,362 | $598,362 |
| 2012 | $291,364 | $310,956 | $0 | $602,320 | $602,320 |
| 2011 | $295,325 | $388,450 | $0 | $683,775 | $683,775 |
| 2010 | $303,070 | $473,723 | $0 | $776,793 | $776,793 |
| 2009 | $313,222 | $509,288 | $0 | $822,510 | $822,510 |
| 2008 | $317,561 | $494,772 | $0 | $812,333 | $812,333 |
| 2007 | $321,874 | $493,932 | $0 | $815,806 | $815,806 |
Deed and Sales History
| 1 | 04/28/2025 | WD | Warranty Deed | BERNER JR, HOWARD E | BERNER TTEE, HOWARD E | | | $0.00 | 63283 | 4585076 |
| 2 | 12/03/2010 | WD | Warranty Deed | LEUSCHEL, OTTO H | BERNER JR, HOWARD E | | | $737,500.00 | 3079 | 4286552 |
| 3 | 01/01/1987 | WD | Warranty Deed | BELOVICH, MAX R | LEUSCHEL, OTTO H | | | $215,000.00 | 70069 | 87000542 |
| 4 | 06/01/1982 | TRUSTEED | Trustee's Deed | PETERS, MICHAEL J | BELOVICH, MAX R | | | $98,000.00 | 21452 | 397460 |
| 5 | 01/01/1900 | OTHER | Other - Misc. Documents | Unknown | PETERS, MICHAEL J | | | $0.00 | 0 | 0 |
Payout Agreement
| No payout information available.. |