Property
Account |
| Property ID: | 90555 | Abbreviated Legal Description: | 14 - W/2 S/2 NW SW SW SUB TO EZ W & S30' |
| Geographic ID: | R23223-083-0150 | Agent Code: | |
| Type: | Real | | |
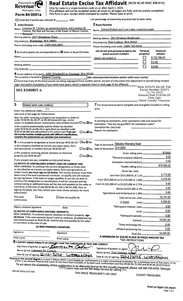
| Tax Area: | 512 - APPRAISER-Stan/Cam Schl Dist, improved, greater than 1 acre | Land Use Code | 11 |
| Open Space: | N | DFL | N |
| Historic Property: | N | Remodel Property: | N |
| Multi-Family Redevelopment: | N | | |
| Township: | 32 | Section: | 23 |
| Range: | R2 |
Location |
| Address: | 837 BURBIN LN CAMANO ISLAND, WA 98282 | Mapsco: | |
| Neighborhood: | North Camano | Map ID: | 554 |
| Neighborhood CD: | 06-C |
Owner |
| Name: | FANNING TTEE, DAVID P | Owner ID: | 286069 |
| Mailing Address: | MELODY S FANNING TTEE 98-1711 KAAHUMANU ST UNIT 30A AIEA, HI 96701 | % Ownership: | 100.0000000000% |
| | | Exemptions: | |
Taxes and Assessment Details
Values
| (+) Improvement Homesite Value: | + | $0 | |
| (+) Improvement Non-Homesite Value: | + | $259,379 | |
| (+) Land Homesite Value: | + | $0 | |
| (+) Land Non-Homesite Value: | + | $310,000 | |
| (+) Curr Use (HS): | + | $0 | $0 |
| (+) Curr Use (NHS): | + | $0 | $0 |
| | | -------------------------- | |
| (=) Market Value: | = | $569,379 | |
| (–) Productivity Loss: | – | $0 | |
| | | -------------------------- | |
| (=) Subtotal: | = | $569,379 | |
| (+) Senior Appraised Value: | + | $0 | |
| (+) Non-Senior Appraised Value: | + | $569,379 | |
| | | -------------------------- | |
| (=) Total Appraised Value: | = | $569,379 | |
| (–) Senior Exemption Loss: | – | $0 | |
| (–) Exemption Loss: | – | $0 | |
| | | -------------------------- | |
| (=) Taxable Value: | = | $569,379 | |
Taxing Jurisdiction
| Owner: | FANNING TTEE, DAVID P | | |
| % Ownership: | 100.0000000000% | | |
| Total Value: | $569,379 | | |
| Tax Area: | 512 - APPRAISER-Stan/Cam Schl Dist, improved, greater than 1 acre |
| CF | Conservation Futures | 0.0316035091 | $569,379 | $569,379 | $17.99 | | |
| EMS1 | Fire & Rescue Dist #1 Camano GEN (EMS) | 0.3677864386 | $569,379 | $569,379 | $209.41 | | |
| FIRE1 | Fire & Rescue Dist #1 Camano GEN | 1.2502910536 | $569,379 | $569,379 | $711.89 | | |
| FIRE1BOND | Fire & Rescue Dist #1 Camano BOND | 0.1570001679 | $569,379 | $569,379 | $89.39 | | |
| CE | County Current Expense | 0.3708482477 | $569,379 | $569,379 | $211.15 | | |
| CR | County Roads | 0.4584763726 | $569,379 | $569,379 | $261.05 | | |
| LCIB | Library Sno-Isle BOND (Camano Island) | 0.0396325772 | $569,379 | $569,379 | $22.57 | | |
| LIB | Library Sno-Isle GEN | 0.3153421757 | $569,379 | $569,379 | $179.55 | | |
| SCH205_401 | School 205-401 Enrichment | 1.2698420524 | $569,379 | $569,379 | $723.02 | | |
| SCH205BOND | School 205-401 BOND | 0.9396497583 | $569,379 | $569,379 | $535.02 | | |
| ST | State School | 1.3035497053 | $569,379 | $569,379 | $742.21 | | |
| ST2 | State School Part 2 | 0.8169543533 | $569,379 | $569,379 | $465.16 | | |
| | Total Tax Rate: | 7.3209764117 | | | | | |
| | | | | Taxes w/Current Exemptions: | $4,168.41 | | |
| | | | | Taxes w/o Exemptions: | $4,168.41 | | |
Improvement / Building
| Improvement #1: | RESIDENTIAL | State Code: | Y | 1575.0 sqft | Value: | $259,379 |
| Bathrooms: | 2 | Bedrooms: | 1 | | Ceiling: | DRYWALL PAINTED | Exterior Wall/Cover: | LOG TO 10" | | Floor Covering: | SOFTWOOD/VINYL 60-40 | Floor Structure: | WOOD W/SUBFLOOR | | Foundation: | CONCRETE | Heating: | (NONE) | | Interior Finish: | DRYWALL PAINT | Plumbing Fixture Cnt: | 9 | | Roof Slope: | 6" IN 12" | Roof Structure/Cover: | CJ ALUMINIUM HEAVY |
|
| | Type | Description | Class CD | Sub Class CD | Year Built | Area |
| | BAS | BASE/MAIN FLOOR | 3 | 0 | 2007 | 900.0 |
| | UB8 | BASEMENT UNFINISHED 8" | 3 | 0 | 2007 | 900.0 |
| | OWP | OPEN WOOD PORCH W/STEPS | 3 | 0 | 2007 | 128.0 |
| | LOF | LOFT | 3 | 0 | 2007 | 675.0 |
| | OWP | OPEN WOOD PORCH W/STEPS | 3 | 0 | 2007 | 128.0 |
Sketch
Property Image
Land
| 1 | 18 | AC (02.01-03.00) | 2.5000 | 108900.00 | 0.00 | 0.00 | 1.00 | $310,000 | $0 |
Roll Value History
| 2026 | N/A | N/A | N/A | N/A | N/A |
| 2025 | $259,379 | $310,000 | $0 | $569,379 | $569,379 |
| 2024 | $263,687 | $300,000 | $0 | $563,687 | $563,687 |
| 2023 | $261,245 | $300,000 | $0 | $561,245 | $561,245 |
| 2022 | $218,970 | $260,000 | $0 | $478,970 | $478,970 |
| 2021 | $182,509 | $230,000 | $0 | $412,509 | $412,509 |
| 2020 | $177,989 | $150,000 | $0 | $327,989 | $327,989 |
| 2019 | $130,872 | $190,000 | $0 | $320,872 | $320,872 |
| 2018 | $131,243 | $180,000 | $0 | $311,243 | $311,243 |
| 2017 | $117,319 | $120,000 | $0 | $237,319 | $237,319 |
| 2016 | $96,128 | $120,000 | $0 | $216,128 | $216,128 |
| 2015 | $97,194 | $65,000 | $0 | $162,194 | $162,194 |
| 2014 | $105,000 | $65,000 | $0 | $170,000 | $170,000 |
| 2013 | $105,000 | $65,000 | $0 | $170,000 | $170,000 |
| 2012 | $100,000 | $80,000 | $0 | $180,000 | $180,000 |
| 2011 | $108,305 | $100,000 | $0 | $208,305 | $208,305 |
| 2010 | $116,510 | $100,000 | $0 | $216,510 | $216,510 |
| 2009 | $102,866 | $160,000 | $0 | $262,866 | $262,866 |
| 2008 | $79,424 | $100,000 | $0 | $179,424 | $179,424 |
| 2007 | $11,961 | $100,000 | $0 | $111,961 | $111,961 |
Deed and Sales History
| 1 | 04/17/2018 | WD | Warranty Deed | FANNING, DAVID P | FANNING TTEE, DAVID P | | | $0.00 | 35069 | 4448299 |
| 2 | 06/29/2004 | WD | Warranty Deed | JENSEN, IRA R | FANNING, DAVID P | | | $45,000.00 | 43904 | 4110831 |
| 3 | 01/01/1900 | OTHER | Other - Misc. Documents | Unknown | JENSEN, IRA R | | | $0.00 | 0 | 0 |
Payout Agreement
| No payout information available.. |