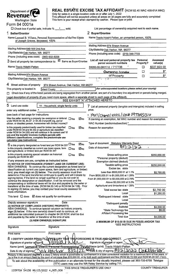
Property
Account |
| Property ID: | 90671 | Abbreviated Legal Description: | 117 - BG NW CR SWSE E1081.18'TO SE CR L11 ROC PT HT #2 TPB E25'S35 W50'N35'T TPB TGW EZ VALUED WITH LOTS SERVED |
| Geographic ID: | R23223-131-3710 | Agent Code: | |
| Type: | Real | | |
| Tax Area: | 510 - APPRAISER-Stan/Cam Schl Dist, improved & 1 acre or less | Land Use Code | 48 |
| Open Space: | N | DFL | N |
| Historic Property: | N | Remodel Property: | N |
| Multi-Family Redevelopment: | N | | |
| Township: | 32 | Section: | 23 |
| Range: | R2 |
Location |
| Address: | 505 ISLAND VIEW DR CAMANO ISLAND, WA 98282 | Mapsco: | |
| Neighborhood: | 52cRR-necamano rd | Map ID: | 555 |
| Neighborhood CD: | 52cRRnecam |
Owner |
| Name: | ROCKY PT HTS COMMUNITY CLUB | Owner ID: | 26060 |
| Mailing Address: | 927 N WEST CAMANO DR CAMANO ISLAND, WA 98282-6605 | % Ownership: | 100.0000000000% |
| | | Exemptions: | EX |
Taxes and Assessment Details
Values
| (+) Improvement Homesite Value: | + | $0 | |
| (+) Improvement Non-Homesite Value: | + | $171,750 | |
| (+) Land Homesite Value: | + | $0 | |
| (+) Land Non-Homesite Value: | + | $450 | |
| (+) Curr Use (HS): | + | $0 | $0 |
| (+) Curr Use (NHS): | + | $0 | $0 |
| | | -------------------------- | |
| (=) Market Value: | = | $172,200 | |
| (–) Productivity Loss: | – | $0 | |
| | | -------------------------- | |
| (=) Subtotal: | = | $172,200 | |
| (+) Senior Appraised Value: | + | $0 | |
| (+) Non-Senior Appraised Value: | + | $172,200 | |
| | | -------------------------- | |
| (=) Total Appraised Value: | = | $172,200 | |
| (–) Senior Exemption Loss: | – | $0 | |
| (–) Exemption Loss: | – | $172,200 | |
| | | -------------------------- | |
| (=) Taxable Value: | = | $0 | |
Taxing Jurisdiction
| Owner: | ROCKY PT HTS COMMUNITY CLUB | | |
| % Ownership: | 100.0000000000% | | |
| Total Value: | $172,200 | | |
| Tax Area: | 510 - APPRAISER-Stan/Cam Schl Dist, improved & 1 acre or less |
| CF | Conservation Futures | 0.0316035091 | $172,200 | $0 | $0.00 | | |
| EMS1 | Fire & Rescue Dist #1 Camano GEN (EMS) | 0.3677864386 | $172,200 | $0 | $0.00 | | |
| FIRE1 | Fire & Rescue Dist #1 Camano GEN | 1.2502910536 | $172,200 | $0 | $0.00 | | |
| FIRE1BOND | Fire & Rescue Dist #1 Camano BOND | 0.1570001679 | $172,200 | $0 | $0.00 | | |
| CE | County Current Expense | 0.3708482477 | $172,200 | $0 | $0.00 | | |
| CR | County Roads | 0.4584763726 | $172,200 | $0 | $0.00 | | |
| LCIB | Library Sno-Isle BOND (Camano Island) | 0.0396325772 | $172,200 | $0 | $0.00 | | |
| LIB | Library Sno-Isle GEN | 0.3153421757 | $172,200 | $0 | $0.00 | | |
| SCH205_401 | School 205-401 Enrichment | 1.2698420524 | $172,200 | $0 | $0.00 | | |
| SCH205BOND | School 205-401 BOND | 0.9396497583 | $172,200 | $0 | $0.00 | | |
| ST | State School | 1.3035497053 | $172,200 | $0 | $0.00 | | |
| ST2 | State School Part 2 | 0.8169543533 | $172,200 | $0 | $0.00 | | |
| | Total Tax Rate: | 7.3209764117 | | | | | |
| | | | | Taxes w/Current Exemptions: | $0.00 | | |
| | | | | Taxes w/o Exemptions: | $1,260.67 | | |
Improvement / Building
| Improvement #1: | RESIDENTIAL | State Code: | F1 | 0.0 sqft | Value: | $171,750 |
| | Type | Description | Class CD | Sub Class CD | Year Built | Area |
| | oWT5 | 50K GALLON TANK | 3 | 0 | 1900 | 0.0 |
| | oFN1 | WD FNC 6' | 3 | 0 | 1900 | 0.0 |
Sketch
Property Image
Land
| 1 | 12 | SQ (00000-06000) | 0.0400 | 1742.40 | 0.00 | 0.00 | 1.00 | $450 | $0 |
Roll Value History
| 2026 | N/A | N/A | N/A | N/A | N/A |
| 2025 | $171,750 | $450 | $0 | $172,200 | $0 |
| 2024 | $171,750 | $450 | $0 | $172,200 | $0 |
| 2023 | $171,750 | $450 | $0 | $172,200 | $0 |
| 2022 | $171,750 | $450 | $0 | $172,200 | $0 |
| 2021 | $25,138 | $9,000 | $0 | $34,138 | $0 |
| 2020 | $25,138 | $9,000 | $0 | $34,138 | $0 |
| 2019 | $25,138 | $9,000 | $0 | $34,138 | $0 |
| 2018 | $25,138 | $9,000 | $0 | $34,138 | $0 |
| 2017 | $25,138 | $9,000 | $0 | $34,138 | $0 |
| 2016 | $25,138 | $9,000 | $0 | $34,138 | $0 |
| 2015 | $25,138 | $20,000 | $0 | $45,138 | $0 |
| 2014 | $25,138 | $20,000 | $0 | $45,138 | $0 |
| 2013 | $25,138 | $20,000 | $0 | $45,138 | $0 |
| 2012 | $25,138 | $20,000 | $0 | $45,138 | $0 |
| 2011 | $25,138 | $20,000 | $0 | $45,138 | $0 |
| 2010 | $25,138 | $20,000 | $0 | $45,138 | $0 |
| 2009 | $25,138 | $0 | $0 | $25,138 | $0 |
| 2008 | $25,138 | $0 | $0 | $25,138 | $0 |
| 2007 | $25,138 | $0 | $0 | $25,138 | $0 |
Deed and Sales History
| 1 | 01/01/1900 | OTHER | Other - Misc. Documents | Unknown | ROCKY, PT H | | | $0.00 | 0 | 0 |
Payout Agreement
| No payout information available.. |