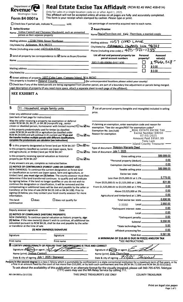
Property
Account |
| Property ID: | 9074 | Abbreviated Legal Description: | 50 - W/2 NE NW NW SUBJ TO EZ ON S30' |
| Geographic ID: | R13113-496-0820 | Agent Code: | |
| Type: | Real | | |
| Tax Area: | 312 - APPRAISER-Cpvl Schl Dist, outside Cpvl, improved, greater than 1 acre | Land Use Code | 11 |
| Open Space: | N | DFL | N |
| Historic Property: | N | Remodel Property: | N |
| Multi-Family Redevelopment: | N | | |
| Township: | 31 | Section: | 13 |
| Range: | R1 |
Location |
| Address: | 340 BIG CEDAR LN COUPEVILLE, WA 98239 | Mapsco: | |
| Neighborhood: | Cycle 2 | Map ID: | 60 |
| Neighborhood CD: | 2 |
Owner |
| Name: | GRIMM, DAVID NASH | Owner ID: | 295135 |
| Mailing Address: | 340 BIG CEDAR LN COUPEVILLE, WA 98239 | % Ownership: | 100.0000000000% |
| | | Exemptions: | |
Taxes and Assessment Details
Values
| (+) Improvement Homesite Value: | + | $0 | |
| (+) Improvement Non-Homesite Value: | + | $133,760 | |
| (+) Land Homesite Value: | + | $0 | |
| (+) Land Non-Homesite Value: | + | $340,000 | |
| (+) Curr Use (HS): | + | $0 | $0 |
| (+) Curr Use (NHS): | + | $0 | $0 |
| | | -------------------------- | |
| (=) Market Value: | = | $473,760 | |
| (–) Productivity Loss: | – | $0 | |
| | | -------------------------- | |
| (=) Subtotal: | = | $473,760 | |
| (+) Senior Appraised Value: | + | $0 | |
| (+) Non-Senior Appraised Value: | + | $473,760 | |
| | | -------------------------- | |
| (=) Total Appraised Value: | = | $473,760 | |
| (–) Senior Exemption Loss: | – | $0 | |
| (–) Exemption Loss: | – | $0 | |
| | | -------------------------- | |
| (=) Taxable Value: | = | $473,760 | |
Taxing Jurisdiction
| Owner: | GRIMM, DAVID NASH | | |
| % Ownership: | 100.0000000000% | | |
| Total Value: | $473,760 | | |
| Tax Area: | 312 - APPRAISER-Cpvl Schl Dist, outside Cpvl, improved, greater than 1 acre |
| CF | Conservation Futures | 0.0316035091 | $473,760 | $473,760 | $14.97 | | |
| CEM2 | Cemetery #2 | 0.0095056933 | $473,760 | $473,760 | $4.50 | | |
| FIRE5 | Fire & Rescue Dist #5 C Whidbey GEN | 1.2008080668 | $473,760 | $473,760 | $568.89 | | |
| FIRE5BOND | Fire & Rescue Dist #5 C Whidbey BOND | 0.1400090713 | $473,760 | $473,760 | $66.33 | | |
| HOBOND | Hospital BOND | 0.1910887512 | $473,760 | $473,760 | $90.53 | | |
| HOGEN | Hospital GEN | 0.3902502903 | $473,760 | $473,760 | $184.88 | | |
| CE | County Current Expense | 0.3708482477 | $473,760 | $473,760 | $175.69 | | |
| CR | County Roads | 0.4584763726 | $473,760 | $473,760 | $217.21 | | |
| ISLANDEMS | Hospital GEN (EMS) | 0.5000000000 | $473,760 | $473,760 | $236.88 | | |
| LIB | Library Sno-Isle GEN | 0.3153421757 | $473,760 | $473,760 | $149.40 | | |
| LIBCAP | Library Sno-Isle BOND (Cap Fac Imp Area) | 0.0543427938 | $473,760 | $473,760 | $25.75 | | |
| POCOUP | Port of Coupeville GEN | 0.1093371703 | $473,760 | $473,760 | $51.80 | | |
| POCOUPIDD | Port of Coupeville IDD | 0.3409740022 | $473,760 | $473,760 | $161.54 | | |
| COUPSDTECH | School 204 CP (TECH) | 0.7545480007 | $473,760 | $473,760 | $357.47 | | |
| SCH204MO | School 204 Enrichment | 0.6716186034 | $473,760 | $473,760 | $318.19 | | |
| ST | State School | 1.3035497053 | $473,760 | $473,760 | $617.57 | | |
| ST2 | State School Part 2 | 0.8169543533 | $473,760 | $473,760 | $387.04 | | |
| | Total Tax Rate: | 7.6592568070 | | | | | |
| | | | | Taxes w/Current Exemptions: | $3,628.64 | | |
| | | | | Taxes w/o Exemptions: | $3,628.64 | | |
Improvement / Building
| Improvement #1: | MANUFACTURED HOME | State Code: | Y | 1344.0 sqft | Value: | $133,760 |
| Bathrooms: | 0 | Bedrooms: | 0 | | Ceiling: | PLASTER PAINTED | Cooling: | EVAP NO DUCT | | Exterior Wall/Cover: | VINYL | Floor Covering: | CARPET 100% | | Floor Structure: | SLAB ON GRADE | Foundation: | SLAB | | Heating: | FHA ELECTRIC | Interior Finish: | PLASTER | | Plumbing Fixture Cnt: | 1 | Roof Slope: | FLAT | | Roof Structure/Cover: | CJ ALUMINIUM HEAVY |   |   |
|
| | Type | Description | Class CD | Sub Class CD | Year Built | Area |
| | BAS | BASE/MAIN FLOOR | 4 | 0 | 1979 | 1344.0 |
| | CPD | OPEN CARPORT DIRT FLOOR | 4 | 0 | 1979 | 3600.0 |
| | UTY | STORAGE/UTILITY | 4 | 0 | 1979 | 2160.0 |
Sketch
Property Image
Land
| 1 | HS | HOMESITE | 1.0000 | 43560.00 | 0.00 | 0.00 | 1.00 | $220,000 | $0 |
| 2 | 91 | UNDEVELOPED LAND-METES AND BOUNDS | 4.0000 | 174240.00 | 0.00 | 0.00 | 1.00 | $120,000 | $0 |
Roll Value History
| 2026 | N/A | N/A | N/A | N/A | N/A |
| 2025 | $133,760 | $340,000 | $0 | $473,760 | $473,760 |
| 2024 | $130,819 | $300,000 | $0 | $430,819 | $430,819 |
| 2023 | $125,705 | $280,000 | $0 | $405,705 | $405,705 |
| 2022 | $122,946 | $260,000 | $0 | $382,946 | $382,946 |
| 2021 | $118,312 | $150,000 | $0 | $268,312 | $268,312 |
| 2020 | $118,913 | $140,000 | $0 | $258,913 | $258,913 |
| 2019 | $111,269 | $180,000 | $0 | $291,269 | $291,269 |
| 2018 | $83,406 | $150,000 | $0 | $233,406 | $233,406 |
| 2017 | $84,753 | $150,000 | $0 | $234,753 | $234,753 |
| 2016 | $86,101 | $120,000 | $0 | $206,101 | $206,101 |
| 2015 | $87,448 | $125,000 | $0 | $212,448 | $212,448 |
| 2014 | $89,469 | $125,000 | $0 | $214,469 | $214,469 |
| 2013 | $90,817 | $121,500 | $0 | $212,317 | $212,317 |
| 2012 | $98,873 | $121,500 | $0 | $220,373 | $220,373 |
| 2011 | $100,221 | $135,000 | $0 | $235,221 | $235,221 |
| 2010 | $102,138 | $135,000 | $0 | $237,138 | $237,138 |
| 2009 | $107,372 | $150,000 | $0 | $257,372 | $257,372 |
| 2008 | $111,208 | $167,500 | $0 | $278,708 | $278,708 |
| 2007 | $114,047 | $150,000 | $0 | $264,047 | $264,047 |
Deed and Sales History
| 1 | 04/18/2023 | EZ | Easement | GRIMM, DAVID NASH | TOWN OF COUPEVILLE | | | $0.00 | 56523 | 4559281 |
| 2 | 07/09/2020 | WD | Warranty Deed | MCCRELESS, JOHN A | GRIMM, DAVID NASH | | | $325,000.00 | 43745 | 4490973 |
| 3 | 09/14/1998 | OTHER | Other - Misc. Documents | MCCRELESS, JOHN A AND VICKIE R | MCCRELESS, JOHN A AND VICKIE R | | | $24,641.00 | 83664 | 0 |
| 4 | 09/09/1998 | WD | Warranty Deed | GALLOWAY, CAROL S | MCCRELESS, JOHN A AND VICKIE R | | | $100,359.00 | 83663 | 98019116 |
| 5 | 07/17/1998 | DECREE | Divorce Decree/Legal Separation | HAMANN, DAVID N | GALLOWAY, CAROL S | | | $0.00 | 82842 | 98014871 |
| 6 | 06/01/1985 | WD | Warranty Deed | ELLSWORTH, RONALD E | HAMANN, DAVID N | | | $17,946.00 | 51725 | 85006856 |
| 7 | 03/01/1979 | OTHER | Other - Misc. Documents | GALLOWAY, CAROL S | ELLSWORTH, RONALD E | | | $22,000.00 | 90889 | 348241 |
| 8 | 01/01/1900 | OTHER | Other - Misc. Documents | HAMANN, DAVID N | MATHIS, HOWARD | | | $0.00 | 0 | 0 |
| 9 | 01/01/1900 | OTHER | Other - Misc. Documents | Unknown | HAMANN, DAVID N | | | $0.00 | 0 | 0 |
| 10 | 01/01/1900 | OTHER | Other - Misc. Documents | MATHIS, HOWARD | GALLOWAY, CAROL S | | | $0.00 | 82842 | 98014871 |
Payout Agreement
| No payout information available.. |