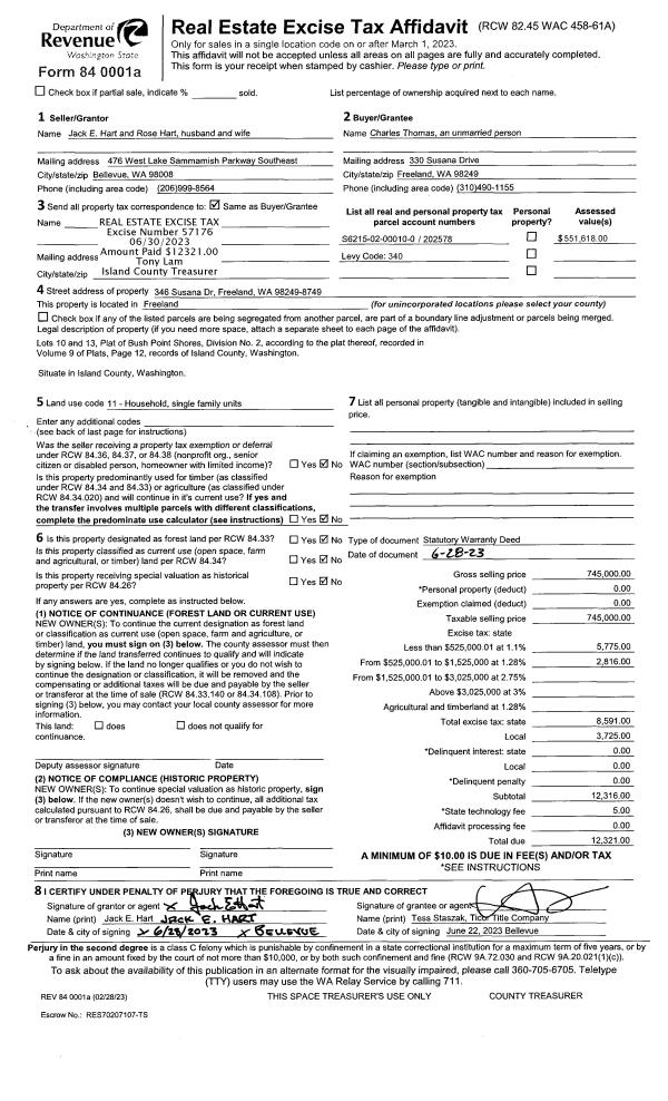
Property
Account |
| Property ID: | 90813 | Abbreviated Legal Description: | 97 - N/2 SW SE NE SW SUB EZ |
| Geographic ID: | R23223-157-2120 | Agent Code: | |
| Type: | Real | | |
| Tax Area: | 512 - APPRAISER-Stan/Cam Schl Dist, improved, greater than 1 acre | Land Use Code | 11 |
| Open Space: | N | DFL | N |
| Historic Property: | N | Remodel Property: | N |
| Multi-Family Redevelopment: | N | | |
| Township: | 32 | Section: | 23 |
| Range: | R2 |
Location |
| Address: | 917 MILAN LN CAMANO ISLAND, WA 98282 | Mapsco: | |
| Neighborhood: | North Camano | Map ID: | 554 |
| Neighborhood CD: | 06-C |
Owner |
| Name: | RASMUSSEN, JOHN C | Owner ID: | 276985 |
| Mailing Address: | ROBERTA M READY-RASMUSSEN 917 MILAN LN CAMANO ISLAND, WA 98282 | % Ownership: | 100.0000000000% |
| | | Exemptions: | |
Taxes and Assessment Details
Values
| (+) Improvement Homesite Value: | + | $0 | |
| (+) Improvement Non-Homesite Value: | + | $268,839 | |
| (+) Land Homesite Value: | + | $0 | |
| (+) Land Non-Homesite Value: | + | $305,000 | |
| (+) Curr Use (HS): | + | $0 | $0 |
| (+) Curr Use (NHS): | + | $0 | $0 |
| | | -------------------------- | |
| (=) Market Value: | = | $573,839 | |
| (–) Productivity Loss: | – | $0 | |
| | | -------------------------- | |
| (=) Subtotal: | = | $573,839 | |
| (+) Senior Appraised Value: | + | $0 | |
| (+) Non-Senior Appraised Value: | + | $573,839 | |
| | | -------------------------- | |
| (=) Total Appraised Value: | = | $573,839 | |
| (–) Senior Exemption Loss: | – | $0 | |
| (–) Exemption Loss: | – | $0 | |
| | | -------------------------- | |
| (=) Taxable Value: | = | $573,839 | |
Taxing Jurisdiction
| Owner: | RASMUSSEN, JOHN C | | |
| % Ownership: | 100.0000000000% | | |
| Total Value: | $573,839 | | |
| Tax Area: | 512 - APPRAISER-Stan/Cam Schl Dist, improved, greater than 1 acre |
| CF | Conservation Futures | 0.0316035091 | $573,839 | $573,839 | $18.14 | | |
| EMS1 | Fire & Rescue Dist #1 Camano GEN (EMS) | 0.3677864386 | $573,839 | $573,839 | $211.05 | | |
| FIRE1 | Fire & Rescue Dist #1 Camano GEN | 1.2502910536 | $573,839 | $573,839 | $717.47 | | |
| FIRE1BOND | Fire & Rescue Dist #1 Camano BOND | 0.1570001679 | $573,839 | $573,839 | $90.09 | | |
| CE | County Current Expense | 0.3708482477 | $573,839 | $573,839 | $212.81 | | |
| CR | County Roads | 0.4584763726 | $573,839 | $573,839 | $263.09 | | |
| LCIB | Library Sno-Isle BOND (Camano Island) | 0.0396325772 | $573,839 | $573,839 | $22.74 | | |
| LIB | Library Sno-Isle GEN | 0.3153421757 | $573,839 | $573,839 | $180.96 | | |
| SCH205_401 | School 205-401 Enrichment | 1.2698420524 | $573,839 | $573,839 | $728.68 | | |
| SCH205BOND | School 205-401 BOND | 0.9396497583 | $573,839 | $573,839 | $539.21 | | |
| ST | State School | 1.3035497053 | $573,839 | $573,839 | $748.03 | | |
| ST2 | State School Part 2 | 0.8169543533 | $573,839 | $573,839 | $468.80 | | |
| | Total Tax Rate: | 7.3209764117 | | | | | |
| | | | | Taxes w/Current Exemptions: | $4,201.07 | | |
| | | | | Taxes w/o Exemptions: | $4,201.07 | | |
Improvement / Building
| Improvement #1: | RESIDENTIAL | State Code: | Y | 1625.0 sqft | Value: | $268,839 |
| Bathrooms: | 2 | Bedrooms: | 3 | | Ceiling: | DRYWALL PAINTED | Exterior Wall/Cover: | 12" COM BRICK/WD FRM | | Floor Covering: | HARDWOOD/CARP 20-80 | Floor Structure: | WOOD W/SUBFLOOR | | Foundation: | SLAB/CONCRETE | Heating: | FHA GAS | | Interior Finish: | DRYWALL PAINT | Plumbing Fixture Cnt: | 9 | | Roof Slope: | 5" IN 12" | Roof Structure/Cover: | CJ ASPHALT |
|
| | Type | Description | Class CD | Sub Class CD | Year Built | Area |
| | BAS | BASE/MAIN FLOOR | 3 | 0 | 1996 | 1625.0 |
| | OP2 | OPEN PORCH W/STEPS | 3 | 0 | 1996 | 36.0 |
| | AGR | ATTACHED GARAGE | 3 | 0 | 1996 | 576.0 |
| | OWP | OPEN WOOD PORCH W/STEPS | 3 | 0 | 1996 | 400.0 |
| | UB8 | BASEMENT UNFINISHED 8" | 3 | 0 | 1996 | 867.0 |
| | DGR | DETACHED GARAGE | 3 | 0 | 1996 | 480.0 |
| | CPD | OPEN CARPORT DIRT FLOOR | 3 | 0 | 1996 | 200.0 |
Sketch
Property Image
Land
| 1 | 17 | AC (01.01-02.00) | 0.0000 | 0.00 | 0.00 | 0.00 | 1.00 | $305,000 | $0 |
Roll Value History
| 2026 | N/A | N/A | N/A | N/A | N/A |
| 2025 | $268,839 | $305,000 | $0 | $573,839 | $573,839 |
| 2024 | $272,319 | $290,000 | $0 | $562,319 | $562,319 |
| 2023 | $275,799 | $290,000 | $0 | $565,799 | $565,799 |
| 2022 | $309,239 | $260,000 | $0 | $569,239 | $569,239 |
| 2021 | $272,353 | $230,000 | $0 | $502,353 | $502,353 |
| 2020 | $265,601 | $150,000 | $0 | $415,601 | $415,601 |
| 2019 | $194,674 | $180,000 | $0 | $374,674 | $374,674 |
| 2018 | $195,273 | $170,000 | $0 | $365,273 | $365,273 |
| 2017 | $196,239 | $150,000 | $0 | $346,239 | $346,239 |
| 2016 | $190,497 | $110,000 | $0 | $300,497 | $300,497 |
| 2015 | $192,849 | $100,000 | $0 | $292,849 | $292,849 |
| 2014 | $179,272 | $64,000 | $0 | $243,272 | $243,272 |
| 2013 | $181,487 | $64,000 | $0 | $245,487 | $245,487 |
| 2012 | $183,699 | $64,000 | $0 | $247,699 | $247,699 |
| 2011 | $185,911 | $80,000 | $0 | $265,911 | $265,911 |
| 2010 | $168,649 | $80,000 | $0 | $248,649 | $248,649 |
| 2009 | $179,960 | $100,000 | $0 | $279,960 | $279,960 |
| 2008 | $182,118 | $100,000 | $0 | $282,118 | $282,118 |
| 2007 | $184,274 | $100,000 | $0 | $284,274 | $284,274 |
Deed and Sales History
| 1 | 09/23/2016 | CCOMPROP | Create Community Property | READY-RASMUSSEN, ROBERTA | RASMUSSEN, JOHN C | | | $0.00 | 26355 | 4408352 |
| 2 | 04/07/2006 | QCD | Quit Claim Deed | READY-RASMUSSEN, ROBERTA | READY-RASMUSSEN, ROBERTA | | | $0.00 | 61656 | 4167794 |
| 3 | 04/07/2006 | ESTSEPPROP | Establish Separate Property | READY, ROBERTA M | READY-RASMUSSEN, ROBERTA | | | $0.00 | 61619 | 4167554 |
| 4 | 07/16/2003 | WD | Warranty Deed | BASTI, ZOLTAN/MARIA | READY, ROBERTA M | | | $230,000.00 | 33191 | 4068175 |
| 5 | 12/01/1992 | WD | Warranty Deed | RUDOLPH, PETER | BASTI, ZOLTAN/MARIA | | | $25,000.00 | 24804 | 92023725 |
| 6 | 05/01/1980 | EXECUTORD | Executor Deed | COX, VERA H | RUDOLPH, PETER | | | $6,250.00 | 1766 | 369105 |
Payout Agreement
| No payout information available.. |