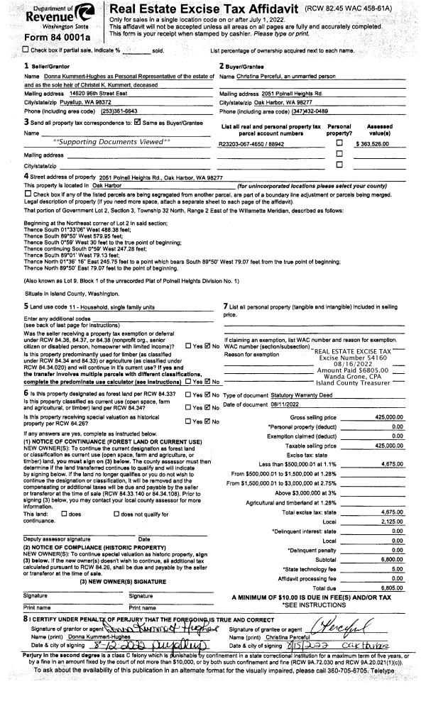
Property
Account |
| Property ID: | 91064 | Abbreviated Legal Description: | 71 - BG SW CR SE NW NELY 285'TP 17' N OF RD TPB N ALG FENCE TO NEWHOUSE RD SELY ALG RD TO NLN OF RD NWLY TPB |
| Geographic ID: | R23223-270-1660 | Agent Code: | |
| Type: | Real | | |
| Tax Area: | 510 - APPRAISER-Stan/Cam Schl Dist, improved & 1 acre or less | Land Use Code | 59 |
| Open Space: | N | DFL | N |
| Historic Property: | N | Remodel Property: | N |
| Multi-Family Redevelopment: | N | | |
| Township: | 32 | Section: | 23 |
| Range: | R2 |
Location |
| Address: | 671 BROKAW RD CAMANO ISLAND, WA 98282 | Mapsco: | |
| Neighborhood: | 52cRR-necamano rd | Map ID: | 554 |
| Neighborhood CD: | 52cRRnecam |
Owner |
| Name: | BLACKFORD, SHANE | Owner ID: | 317158 |
| Mailing Address: | AUTUMN BLACKFORD HUNTINGTONS CORNER GROCERY LLC 41 EDGEWATER DR CAMANO ISLAND, WA 98282 | % Ownership: | 100.0000000000% |
| | | Exemptions: | |
Taxes and Assessment Details
Values
| (+) Improvement Homesite Value: | + | $0 | |
| (+) Improvement Non-Homesite Value: | + | $148,838 | |
| (+) Land Homesite Value: | + | $0 | |
| (+) Land Non-Homesite Value: | + | $240,000 | |
| (+) Curr Use (HS): | + | $0 | $0 |
| (+) Curr Use (NHS): | + | $0 | $0 |
| | | -------------------------- | |
| (=) Market Value: | = | $388,838 | |
| (–) Productivity Loss: | – | $0 | |
| | | -------------------------- | |
| (=) Subtotal: | = | $388,838 | |
| (+) Senior Appraised Value: | + | $0 | |
| (+) Non-Senior Appraised Value: | + | $388,838 | |
| | | -------------------------- | |
| (=) Total Appraised Value: | = | $388,838 | |
| (–) Senior Exemption Loss: | – | $0 | |
| (–) Exemption Loss: | – | $0 | |
| | | -------------------------- | |
| (=) Taxable Value: | = | $388,838 | |
Taxing Jurisdiction
| Owner: | BLACKFORD, SHANE | | |
| % Ownership: | 100.0000000000% | | |
| Total Value: | $388,838 | | |
| Tax Area: | 510 - APPRAISER-Stan/Cam Schl Dist, improved & 1 acre or less |
| CF | Conservation Futures | 0.0316035091 | $388,838 | $388,838 | $12.29 | | |
| EMS1 | Fire & Rescue Dist #1 Camano GEN (EMS) | 0.3677864386 | $388,838 | $388,838 | $143.01 | | |
| FIRE1 | Fire & Rescue Dist #1 Camano GEN | 1.2502910536 | $388,838 | $388,838 | $486.16 | | |
| FIRE1BOND | Fire & Rescue Dist #1 Camano BOND | 0.1570001679 | $388,838 | $388,838 | $61.05 | | |
| CE | County Current Expense | 0.3708482477 | $388,838 | $388,838 | $144.20 | | |
| CR | County Roads | 0.4584763726 | $388,838 | $388,838 | $178.27 | | |
| LCIB | Library Sno-Isle BOND (Camano Island) | 0.0396325772 | $388,838 | $388,838 | $15.41 | | |
| LIB | Library Sno-Isle GEN | 0.3153421757 | $388,838 | $388,838 | $122.62 | | |
| SCH205_401 | School 205-401 Enrichment | 1.2698420524 | $388,838 | $388,838 | $493.76 | | |
| SCH205BOND | School 205-401 BOND | 0.9396497583 | $388,838 | $388,838 | $365.37 | | |
| ST | State School | 1.3035497053 | $388,838 | $388,838 | $506.87 | | |
| ST2 | State School Part 2 | 0.8169543533 | $388,838 | $388,838 | $317.66 | | |
| | Total Tax Rate: | 7.3209764117 | | | | | |
| | | | | Taxes w/Current Exemptions: | $2,846.67 | | |
| | | | | Taxes w/o Exemptions: | $2,846.67 | | |
Improvement / Building
| Improvement #1: | COMMERCIAL | State Code: | F1 | 1890.0 sqft | Value: | $148,838 |
| Bathrooms: | 0 | Bedrooms: | 0 | | Ceiling: | PAINT OPEN FLOOR BAS | Exterior Wall/Cover: | 8" CONC BLK/CON FRAM | | Floor Covering: | COMPOSITION TILE | Floor Structure: | CONCRETE ON GROUND | | Foundation: | SLAB | Heating: | SPACE HEATERS | | Interior Finish: | CONVENIENCE STORE | Plumbing Fixture Cnt: | 1 | | Roof Structure/Cover: | METAL/OPEN WOOD |   |   |
|
| | Type | Description | Class CD | Sub Class CD | Year Built | Area |
| | BAS | BASE/MAIN FLOOR | 3 | 0 | 1951 | 1792.0 |
| | STG | STORAGE | 3 | 0 | 1951 | 98.0 |
| | oPV1 | PV/ASPH 2" | 3 | 0 | 1951 | 0.0 |
Sketch
Property Image
Land
| 1 | 68 | COMMERCIAL RETAIL | 0.1900 | 8276.40 | 0.00 | 0.00 | 1.00 | $240,000 | $0 |
Roll Value History
| 2026 | N/A | N/A | N/A | N/A | N/A |
| 2025 | $148,838 | $240,000 | $0 | $388,838 | $388,838 |
| 2024 | $158,856 | $240,000 | $0 | $398,856 | $398,856 |
| 2023 | $168,876 | $210,000 | $0 | $378,876 | $378,876 |
| 2022 | $132,543 | $210,000 | $0 | $342,543 | $342,543 |
| 2021 | $75,041 | $170,000 | $0 | $245,041 | $245,041 |
| 2020 | $74,920 | $170,000 | $0 | $244,920 | $244,920 |
| 2019 | $88,707 | $170,000 | $0 | $258,707 | $258,707 |
| 2018 | $88,733 | $150,000 | $0 | $238,733 | $238,733 |
| 2017 | $88,784 | $100,000 | $0 | $188,784 | $188,784 |
| 2016 | $88,886 | $100,000 | $0 | $188,886 | $188,886 |
| 2015 | $129,115 | $88,057 | $0 | $217,172 | $217,172 |
| 2014 | $129,115 | $88,057 | $0 | $217,172 | $217,172 |
| 2013 | $129,115 | $88,057 | $0 | $217,172 | $217,172 |
| 2012 | $129,115 | $88,057 | $0 | $217,172 | $217,172 |
| 2011 | $129,115 | $88,057 | $0 | $217,172 | $217,172 |
| 2010 | $97,149 | $88,057 | $0 | $185,206 | $185,206 |
| 2009 | $102,391 | $96,250 | $0 | $198,641 | $198,641 |
| 2008 | $104,586 | $101,298 | $0 | $205,884 | $205,884 |
| 2007 | $108,975 | $101,298 | $0 | $210,273 | $210,273 |
Deed and Sales History
| 1 | 06/26/2025 | WD | Warranty Deed | OLSEN, LARA | BLACKFORD, SHANE | | | $1,277,721.00 | 63984 | 4587586 |
| 2 | 05/29/2001 | WD | Warranty Deed | SOLIE, GARY A | OLSEN, LARA | | | $625,000.00 | 11920 | 20033520 |
| 3 | 07/01/1980 | EXECUTORD | Executor Deed | PATRICK, HAROLD A | SOLIE, GARY A | | | $100,000.00 | 370817 | 2278 |
| 4 | 01/01/1900 | OTHER | Other - Misc. Documents | Unknown | PATRICK, HAROLD A | | | $0.00 | 0 | 0 |
Payout Agreement
| No payout information available.. |