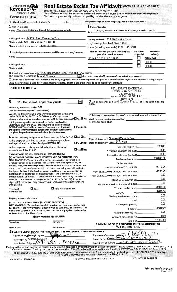
Property
Account |
| Property ID: | 91242 | Abbreviated Legal Description: | 100 - IN GL1: S200' OF E90' OF: BG SWCR LOT 87 MAPLE GROVE BCH #3 S1*W40' TPB S1*W415' S89*E210' N1*E415' N89*W210' TPB TGW EZ |
| Geographic ID: | R23223-325-0650 | Agent Code: | |
| Type: | Real | | |
| Tax Area: | 510 - APPRAISER-Stan/Cam Schl Dist, improved & 1 acre or less | Land Use Code | 11 |
| Open Space: | N | DFL | N |
| Historic Property: | N | Remodel Property: | N |
| Multi-Family Redevelopment: | N | | |
| Township: | 32 | Section: | 23 |
| Range: | R2 |
Location |
| Address: | 755 BROWN RD CAMANO ISLAND, WA 98282 | Mapsco: | |
| Neighborhood: | North Camano | Map ID: | 556 |
| Neighborhood CD: | 06-C |
Owner |
| Name: | COSTELLO, WALTER P | Owner ID: | 269766 |
| Mailing Address: | SHILA R COSTELLO 794 MAPLE GROVE RD CAMANO ISLAND, WA 98282 | % Ownership: | 100.0000000000% |
| | | Exemptions: | |
Taxes and Assessment Details
Values
| (+) Improvement Homesite Value: | + | $0 | |
| (+) Improvement Non-Homesite Value: | + | $351,385 | |
| (+) Land Homesite Value: | + | $0 | |
| (+) Land Non-Homesite Value: | + | $330,000 | |
| (+) Curr Use (HS): | + | $0 | $0 |
| (+) Curr Use (NHS): | + | $0 | $0 |
| | | -------------------------- | |
| (=) Market Value: | = | $681,385 | |
| (–) Productivity Loss: | – | $0 | |
| | | -------------------------- | |
| (=) Subtotal: | = | $681,385 | |
| (+) Senior Appraised Value: | + | $0 | |
| (+) Non-Senior Appraised Value: | + | $681,385 | |
| | | -------------------------- | |
| (=) Total Appraised Value: | = | $681,385 | |
| (–) Senior Exemption Loss: | – | $0 | |
| (–) Exemption Loss: | – | $0 | |
| | | -------------------------- | |
| (=) Taxable Value: | = | $681,385 | |
Taxing Jurisdiction
| Owner: | COSTELLO, WALTER P | | |
| % Ownership: | 100.0000000000% | | |
| Total Value: | $681,385 | | |
| Tax Area: | 510 - APPRAISER-Stan/Cam Schl Dist, improved & 1 acre or less |
| CF | Conservation Futures | 0.0316035091 | $681,385 | $681,385 | $21.53 | | |
| EMS1 | Fire & Rescue Dist #1 Camano GEN (EMS) | 0.3677864386 | $681,385 | $681,385 | $250.60 | | |
| FIRE1 | Fire & Rescue Dist #1 Camano GEN | 1.2502910536 | $681,385 | $681,385 | $851.93 | | |
| FIRE1BOND | Fire & Rescue Dist #1 Camano BOND | 0.1570001679 | $681,385 | $681,385 | $106.98 | | |
| CE | County Current Expense | 0.3708482477 | $681,385 | $681,385 | $252.69 | | |
| CR | County Roads | 0.4584763726 | $681,385 | $681,385 | $312.40 | | |
| LCIB | Library Sno-Isle BOND (Camano Island) | 0.0396325772 | $681,385 | $681,385 | $27.01 | | |
| LIB | Library Sno-Isle GEN | 0.3153421757 | $681,385 | $681,385 | $214.87 | | |
| SCH205_401 | School 205-401 Enrichment | 1.2698420524 | $681,385 | $681,385 | $865.25 | | |
| SCH205BOND | School 205-401 BOND | 0.9396497583 | $681,385 | $681,385 | $640.26 | | |
| ST | State School | 1.3035497053 | $681,385 | $681,385 | $888.22 | | |
| ST2 | State School Part 2 | 0.8169543533 | $681,385 | $681,385 | $556.66 | | |
| | Total Tax Rate: | 7.3209764117 | | | | | |
| | | | | Taxes w/Current Exemptions: | $4,988.40 | | |
| | | | | Taxes w/o Exemptions: | $4,988.40 | | |
Improvement / Building
| Improvement #1: | RESIDENTIAL | State Code: | Y | 1120.0 sqft | Value: | $351,385 |
| Bathrooms: | 2 | Bedrooms: | 2 | | Ceiling: | DRYWALL PAINTED | Cooling: | HEAT PUMP/CONV/V | | Exterior Wall/Cover: | PLY/HARDBOARD T-111 | Floor Covering: | HARDWOOD 100% | | Floor Structure: | SLAB ON GRADE | Foundation: | CONCRETE | | Interior Finish: | DRYWALL PAINT | Plumbing Fixture Cnt: | 9 | | Roof Slope: | 5" IN 12" | Roof Structure/Cover: | BEAM ASPHALT |
|
| | Type | Description | Class CD | Sub Class CD | Year Built | Area |
| | BAS | BASE/MAIN FLOOR | 3 | 0 | 2016 | 1120.0 |
| | BGR | BASEMENT GARAGE | 3 | 0 | 2016 | 2128.0 |
| | OWC | OPEN WOOD PORCH W/STEPS/ROOF/C | 3 | 0 | 2016 | 252.0 |
Sketch
Property Image
Land
| 1 | 15 | SQ (12001-21780) | 0.0000 | 0.00 | 0.00 | 0.00 | 1.00 | $330,000 | $0 |
Roll Value History
| 2026 | N/A | N/A | N/A | N/A | N/A |
| 2025 | $351,385 | $330,000 | $0 | $681,385 | $681,385 |
| 2024 | $354,174 | $320,000 | $0 | $674,174 | $674,174 |
| 2023 | $357,892 | $300,000 | $0 | $657,892 | $657,892 |
| 2022 | $313,118 | $260,000 | $0 | $573,118 | $573,118 |
| 2021 | $274,484 | $200,000 | $0 | $474,484 | $474,484 |
| 2020 | $265,869 | $160,000 | $0 | $425,869 | $425,869 |
| 2019 | $191,745 | $190,000 | $0 | $381,745 | $381,745 |
| 2018 | $192,239 | $150,000 | $0 | $342,239 | $342,239 |
| 2017 | $193,224 | $150,000 | $0 | $343,224 | $343,224 |
| 2016 | $99,600 | $70,000 | $0 | $169,600 | $169,600 |
| 2015 | $0 | $70,000 | $0 | $70,000 | $70,000 |
| 2014 | $0 | $30,000 | $0 | $30,000 | $30,000 |
| 2013 | $0 | $46,500 | $0 | $46,500 | $46,500 |
| 2012 | $0 | $46,500 | $0 | $46,500 | $46,500 |
| 2011 | $0 | $46,500 | $0 | $46,500 | $46,500 |
| 2010 | $0 | $46,500 | $0 | $46,500 | $46,500 |
| 2009 | $0 | $75,000 | $0 | $75,000 | $75,000 |
| 2008 | $0 | $40,000 | $0 | $40,000 | $40,000 |
| 2007 | $0 | $40,000 | $0 | $40,000 | $40,000 |
Deed and Sales History
| 1 | 04/02/2015 | WD | Warranty Deed | WAGNER, RICHARD P | COSTELLO, WALTER P | | | $70,000.00 | 19087 | 4376306 |
| 2 | 01/01/1995 | QCD | Quit Claim Deed | WAGNER, RICHARD P | WAGNER, RICHARD P | | | $0.00 | 50238 | 95001120 |
| 3 | 01/01/1900 | OTHER | Other - Misc. Documents | Unknown | WAGNER, RICHARD P | | | $0.00 | 0 | 0 |
Payout Agreement
| No payout information available.. |