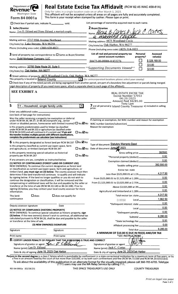
Property
Account |
| Property ID: | 91313 | Abbreviated Legal Description: | 61 - IN GL 1: BG PT ELN TR 75 MAPLE GROVE BCH #3 20'N OF SECR S89*E209' S1*W172' N89*W209'TO ELN LOT 71 SD PLAT N1*E TPB EX: BG SECR LOT 73 MAPLE GROVE BCH #3 E20' S20' W20'TO ELN SD PLAT N20'TPB ALSO EX: BG PT 20'S OF SECR LOT 73 MAP GROVE BCH #3 TPB E |
| Geographic ID: | R23223-337-0350 | Agent Code: | |
| Type: | Real | | |
| Tax Area: | 510 - APPRAISER-Stan/Cam Schl Dist, improved & 1 acre or less | Land Use Code | 11 |
| Open Space: | N | DFL | N |
| Historic Property: | N | Remodel Property: | N |
| Multi-Family Redevelopment: | N | | |
| Township: | 32 | Section: | 23 |
| Range: | R2 |
Location |
| Address: | CAMANO ISLAND, WA 98282 | Mapsco: | |
| Neighborhood: | North Camano | Map ID: | 556 |
| Neighborhood CD: | 06-C |
Owner |
| Name: | KREWSON, DENISE | Owner ID: | 309705 |
| Mailing Address: | DAN KREWSON 777 BROWN RD CAMANO ISLAND, WA 98282 | % Ownership: | 100.0000000000% |
| | | Exemptions: | |
Taxes and Assessment Details
Values
| (+) Improvement Homesite Value: | + | $0 | |
| (+) Improvement Non-Homesite Value: | + | $18,750 | |
| (+) Land Homesite Value: | + | $0 | |
| (+) Land Non-Homesite Value: | + | $17,000 | |
| (+) Curr Use (HS): | + | $0 | $0 |
| (+) Curr Use (NHS): | + | $0 | $0 |
| | | -------------------------- | |
| (=) Market Value: | = | $35,750 | |
| (–) Productivity Loss: | – | $0 | |
| | | -------------------------- | |
| (=) Subtotal: | = | $35,750 | |
| (+) Senior Appraised Value: | + | $0 | |
| (+) Non-Senior Appraised Value: | + | $35,750 | |
| | | -------------------------- | |
| (=) Total Appraised Value: | = | $35,750 | |
| (–) Senior Exemption Loss: | – | $0 | |
| (–) Exemption Loss: | – | $0 | |
| | | -------------------------- | |
| (=) Taxable Value: | = | $35,750 | |
Taxing Jurisdiction
| Owner: | KREWSON, DENISE | | |
| % Ownership: | 100.0000000000% | | |
| Total Value: | $35,750 | | |
| Tax Area: | 510 - APPRAISER-Stan/Cam Schl Dist, improved & 1 acre or less |
| CF | Conservation Futures | 0.0316035091 | $35,750 | $35,750 | $1.13 | | |
| EMS1 | Fire & Rescue Dist #1 Camano GEN (EMS) | 0.3677864386 | $35,750 | $35,750 | $13.15 | | |
| FIRE1 | Fire & Rescue Dist #1 Camano GEN | 1.2502910536 | $35,750 | $35,750 | $44.70 | | |
| FIRE1BOND | Fire & Rescue Dist #1 Camano BOND | 0.1570001679 | $35,750 | $35,750 | $5.61 | | |
| CE | County Current Expense | 0.3708482477 | $35,750 | $35,750 | $13.26 | | |
| CR | County Roads | 0.4584763726 | $35,750 | $35,750 | $16.39 | | |
| LCIB | Library Sno-Isle BOND (Camano Island) | 0.0396325772 | $35,750 | $35,750 | $1.42 | | |
| LIB | Library Sno-Isle GEN | 0.3153421757 | $35,750 | $35,750 | $11.27 | | |
| SCH205_401 | School 205-401 Enrichment | 1.2698420524 | $35,750 | $35,750 | $45.40 | | |
| SCH205BOND | School 205-401 BOND | 0.9396497583 | $35,750 | $35,750 | $33.59 | | |
| ST | State School | 1.3035497053 | $35,750 | $35,750 | $46.60 | | |
| ST2 | State School Part 2 | 0.8169543533 | $35,750 | $35,750 | $29.21 | | |
| | Total Tax Rate: | 7.3209764117 | | | | | |
| | | | | Taxes w/Current Exemptions: | $261.73 | | |
| | | | | Taxes w/o Exemptions: | $261.73 | | |
Improvement / Building
| Improvement #1: | RESIDENTIAL | State Code: | Y | 0.0 sqft | Value: | $18,750 |
Sketch
| No sketches available for this property. |
Property Image
Land
| 1 | 16 | AC (00.51-01.00) | 0.0000 | 0.00 | 0.00 | 0.00 | 1.00 | $17,000 | $0 |
Roll Value History
| 2026 | N/A | N/A | N/A | N/A | N/A |
| 2025 | $18,750 | $17,000 | $0 | $35,750 | $35,750 |
| 2024 | $18,750 | $17,000 | $0 | $35,750 | $35,750 |
| 2023 | $18,750 | $9,000 | $0 | $27,750 | $27,750 |
| 2022 | $15,000 | $9,000 | $0 | $24,000 | $24,000 |
| 2021 | $15,000 | $7,000 | $0 | $22,000 | $22,000 |
| 2020 | $15,000 | $7,000 | $0 | $22,000 | $22,000 |
| 2019 | $15,000 | $5,000 | $0 | $20,000 | $20,000 |
| 2018 | $15,000 | $5,000 | $0 | $20,000 | $20,000 |
| 2017 | $15,000 | $5,000 | $0 | $20,000 | $20,000 |
| 2016 | $10,000 | $5,000 | $0 | $15,000 | $15,000 |
| 2015 | $10,000 | $5,000 | $0 | $15,000 | $15,000 |
| 2014 | $10,000 | $33,200 | $0 | $43,200 | $43,200 |
| 2013 | $10,000 | $33,200 | $0 | $43,200 | $43,200 |
| 2012 | $10,000 | $33,200 | $0 | $43,200 | $43,200 |
| 2011 | $10,000 | $41,500 | $0 | $51,500 | $51,500 |
| 2010 | $11,732 | $41,500 | $0 | $53,232 | $53,232 |
| 2009 | $12,012 | $50,000 | $0 | $62,012 | $62,012 |
| 2008 | $12,292 | $51,000 | $0 | $63,292 | $63,292 |
| 2007 | $12,572 | $51,000 | $0 | $63,572 | $63,572 |
Deed and Sales History
| 1 | 06/23/2023 | PRD | Personal Representatives Deed | MACK, SANDY | KREWSON, DENISE | | | $0.00 | 57660 | 4563664 |
| 2 | 02/20/2005 | QCD | Quit Claim Deed | LEVANG, MARK B | MACK, SANDY | | | $0.00 | 50843 | 4127926 |
| 3 | 08/11/2004 | QCD | Quit Claim Deed | GROTHE, ALLEN J | LEVANG, MARK B | | | $22,000.00 | 43728 | 4109784 |
| 4 | 08/01/1973 | EXECUTORD | Executor Deed | ETHIER, RALPH | GROTHE, ALLEN J | | | $19,000.00 | 48428 | 0 |
| 5 | 01/01/1900 | OTHER | Other - Misc. Documents | Unknown | ETHIER, RALPH | | | $0.00 | 0 | 0 |
Payout Agreement
| No payout information available.. |