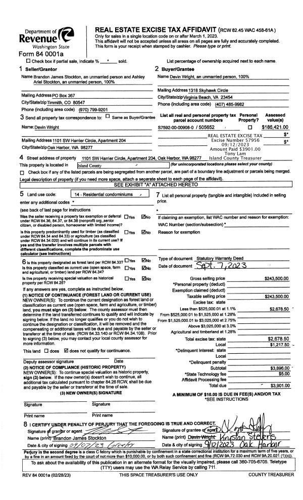
Property
Account |
| Property ID: | 91830 | Abbreviated Legal Description: | 12-BG NW CR NW SW E726' TPB E198' S1106.65' TO NLN S220 W198' N1105.21' TPB |
| Geographic ID: | R23224-212-0800 | Agent Code: | |
| Type: | Real | | |
| Tax Area: | 512 - APPRAISER-Stan/Cam Schl Dist, improved, greater than 1 acre | Land Use Code | 11 |
| Open Space: | N | DFL | N |
| Historic Property: | N | Remodel Property: | N |
| Multi-Family Redevelopment: | N | | |
| Township: | 32 | Section: | 24 |
| Range: | R2 |
Location |
| Address: | 342 ECHO RIDGE WAY CAMANO ISLAND, WA 98282 | Mapsco: | |
| Neighborhood: | North Camano | Map ID: | 558 |
| Neighborhood CD: | 06-C |
Owner |
| Name: | SEATON TTEE, JOHN T | Owner ID: | 303922 |
| Mailing Address: | W LYNN SEATON TTEE 342 ECHO RIDGE WAY CAMANO ISLAND, WA 98282 | % Ownership: | 100.0000000000% |
| | | Exemptions: | |
Taxes and Assessment Details
Values
| (+) Improvement Homesite Value: | + | $0 | |
| (+) Improvement Non-Homesite Value: | + | $531,123 | |
| (+) Land Homesite Value: | + | $0 | |
| (+) Land Non-Homesite Value: | + | $380,000 | |
| (+) Curr Use (HS): | + | $0 | $0 |
| (+) Curr Use (NHS): | + | $0 | $0 |
| | | -------------------------- | |
| (=) Market Value: | = | $911,123 | |
| (–) Productivity Loss: | – | $0 | |
| | | -------------------------- | |
| (=) Subtotal: | = | $911,123 | |
| (+) Senior Appraised Value: | + | $0 | |
| (+) Non-Senior Appraised Value: | + | $911,123 | |
| | | -------------------------- | |
| (=) Total Appraised Value: | = | $911,123 | |
| (–) Senior Exemption Loss: | – | $0 | |
| (–) Exemption Loss: | – | $0 | |
| | | -------------------------- | |
| (=) Taxable Value: | = | $911,123 | |
Taxing Jurisdiction
| Owner: | SEATON TTEE, JOHN T | | |
| % Ownership: | 100.0000000000% | | |
| Total Value: | $911,123 | | |
| Tax Area: | 512 - APPRAISER-Stan/Cam Schl Dist, improved, greater than 1 acre |
| CF | Conservation Futures | 0.0316035091 | $911,123 | $911,123 | $28.79 | | |
| EMS1 | Fire & Rescue Dist #1 Camano GEN (EMS) | 0.3677864386 | $911,123 | $911,123 | $335.10 | | |
| FIRE1 | Fire & Rescue Dist #1 Camano GEN | 1.2502910536 | $911,123 | $911,123 | $1,139.17 | | |
| FIRE1BOND | Fire & Rescue Dist #1 Camano BOND | 0.1570001679 | $911,123 | $911,123 | $143.05 | | |
| CE | County Current Expense | 0.3708482477 | $911,123 | $911,123 | $337.89 | | |
| CR | County Roads | 0.4584763726 | $911,123 | $911,123 | $417.73 | | |
| LCIB | Library Sno-Isle BOND (Camano Island) | 0.0396325772 | $911,123 | $911,123 | $36.11 | | |
| LIB | Library Sno-Isle GEN | 0.3153421757 | $911,123 | $911,123 | $287.32 | | |
| SCH205_401 | School 205-401 Enrichment | 1.2698420524 | $911,123 | $911,123 | $1,156.98 | | |
| SCH205BOND | School 205-401 BOND | 0.9396497583 | $911,123 | $911,123 | $856.14 | | |
| ST | State School | 1.3035497053 | $911,123 | $911,123 | $1,187.69 | | |
| ST2 | State School Part 2 | 0.8169543533 | $911,123 | $911,123 | $744.35 | | |
| | Total Tax Rate: | 7.3209764117 | | | | | |
| | | | | Taxes w/Current Exemptions: | $6,670.32 | | |
| | | | | Taxes w/o Exemptions: | $6,670.32 | | |
Improvement / Building
| Improvement #1: | RESIDENTIAL | State Code: | Y | 3334.1 sqft | Value: | $531,123 |
| Bathrooms: | 4 | Bedrooms: | 4 | | Ceiling: | DRY WALL SPRAYED | Cooling: | HEAT PUMP/CONV/V | | Exterior Wall/Cover: | CEMENT FIBER | Floor Covering: | HARDWOOD/CARP 20-80 | | Floor Structure: | WOOD W/SUBFLOOR | Foundation: | CONCRETE | | Interior Finish: | DRYWALL PAINT | Plumbing Fixture Cnt: | 18 | | Roof Slope: | 6" IN 12" | Roof Structure/Cover: | CJ ASPHALT |
|
| | Type | Description | Class CD | Sub Class CD | Year Built | Area |
| | BAS | BASE/MAIN FLOOR | 4 | 0 | 2001 | 1349.3 |
| | DWN | DOWNSTAIRS LIVING AREA | 4 | 0 | 2001 | 641.1 |
| | UPS | UPPER STORY | 4 | 0 | 2001 | 755.7 |
| | OWP | OPEN WOOD PORCH W/STEPS | 4 | 0 | 2001 | 1119.7 |
| | DGR | DETACHED GARAGE | 4 | 0 | 2001 | 624.0 |
| | UPH | HALF STORY | 4 | 0 | 2001 | 588.0 |
Sketch
Property Image
Land
| 1 | 32 | AC (03.01-09.99) | 5.0200 | 0.00 | 0.00 | 0.00 | 1.00 | $380,000 | $0 |
Roll Value History
| 2026 | N/A | N/A | N/A | N/A | N/A |
| 2025 | $531,123 | $380,000 | $0 | $911,123 | $911,123 |
| 2024 | $537,661 | $390,000 | $0 | $927,661 | $927,661 |
| 2023 | $544,198 | $380,000 | $0 | $924,198 | $924,198 |
| 2022 | $492,538 | $350,000 | $0 | $842,538 | $842,538 |
| 2021 | $433,388 | $240,000 | $0 | $673,388 | $673,388 |
| 2020 | $422,183 | $200,000 | $0 | $622,183 | $622,183 |
| 2019 | $265,250 | $240,000 | $0 | $505,250 | $505,250 |
| 2018 | $266,026 | $220,000 | $0 | $486,026 | $486,026 |
| 2017 | $267,650 | $200,000 | $0 | $467,650 | $467,650 |
| 2016 | $267,650 | $150,000 | $0 | $417,650 | $417,650 |
| 2015 | $270,763 | $150,000 | $0 | $420,763 | $420,763 |
| 2014 | $240,280 | $150,000 | $0 | $390,280 | $390,280 |
| 2013 | $243,074 | $150,000 | $0 | $393,074 | $393,074 |
| 2012 | $245,867 | $168,672 | $0 | $414,539 | $414,539 |
| 2011 | $248,662 | $210,840 | $0 | $459,502 | $459,502 |
| 2010 | $252,822 | $210,840 | $0 | $463,662 | $463,662 |
| 2009 | $263,469 | $276,100 | $0 | $539,569 | $539,569 |
| 2008 | $263,605 | $276,100 | $0 | $539,705 | $539,705 |
| 2007 | $266,516 | $225,900 | $0 | $492,416 | $492,416 |
Deed and Sales History
| 1 | 04/25/2022 | WD | Warranty Deed | ERW, LLC | SEATON TTEE, JOHN T | | | $1,100,000.00 | 52882 | 4544203 |
| 2 | 02/27/2020 | WD | Warranty Deed | SPOONER, CALVIN | ERW, LLC | | | $640,000.00 | 42277 | 4482337 |
| 3 | 08/28/2013 | WD | Warranty Deed | BAKKE, GORDON T / ANNE E | SPOONER, CALVIN | | | $400,000.00 | 12763 | 4347901 |
| 4 | 02/01/1998 | WD | Warranty Deed | SPANE, VICTOR | BAKKE, GORDON T | | | $47,500.00 | 80626 | 98003339 |
| 5 | 02/01/1981 | EXECUTORD | Executor Deed | KOCH, RICHARD M | SPANE, VICTOR | | | $18,000.00 | 10484 | 379621 |
| 6 | 08/01/1978 | OTHER | Other - Misc. Documents | Unknown | KOCH, RICHARD M | | | $0.00 | 84108 | 3386480 |
Payout Agreement
| No payout information available.. |