Property
Account |
| Property ID: | 92009 | Abbreviated Legal Description: | 15 - IN GL 3 INCL ADJ TIDELANDS |
| Geographic ID: | R23224-378-4670 | Agent Code: | |
| Type: | Real | | |
| Tax Area: | 510 - APPRAISER-Stan/Cam Schl Dist, improved & 1 acre or less | Land Use Code | 11 |
| Open Space: | N | DFL | N |
| Historic Property: | N | Remodel Property: | N |
| Multi-Family Redevelopment: | N | | |
| Township: | 32 | Section: | 24 |
| Range: | R2 |
Location |
| Address: | 46 E NORTH CAMANO DR CAMANO ISLAND, WA 98282 | Mapsco: | |
| Neighborhood: | North Camano | Map ID: | 561 |
| Neighborhood CD: | 06-C |
Owner |
| Name: | PISEL, JENNA | Owner ID: | 281867 |
| Mailing Address: | 46 W NORTH CAMANO DR CAMANO ISLAND, WA 98282 | % Ownership: | 100.0000000000% |
| | | Exemptions: | |
Taxes and Assessment Details
Values
| (+) Improvement Homesite Value: | + | $0 | |
| (+) Improvement Non-Homesite Value: | + | $46,907 | |
| (+) Land Homesite Value: | + | $0 | |
| (+) Land Non-Homesite Value: | + | $950,480 | |
| (+) Curr Use (HS): | + | $0 | $0 |
| (+) Curr Use (NHS): | + | $0 | $0 |
| | | -------------------------- | |
| (=) Market Value: | = | $997,387 | |
| (–) Productivity Loss: | – | $0 | |
| | | -------------------------- | |
| (=) Subtotal: | = | $997,387 | |
| (+) Senior Appraised Value: | + | $0 | |
| (+) Non-Senior Appraised Value: | + | $997,387 | |
| | | -------------------------- | |
| (=) Total Appraised Value: | = | $997,387 | |
| (–) Senior Exemption Loss: | – | $0 | |
| (–) Exemption Loss: | – | $0 | |
| | | -------------------------- | |
| (=) Taxable Value: | = | $997,387 | |
Taxing Jurisdiction
| Owner: | PISEL, JENNA | | |
| % Ownership: | 100.0000000000% | | |
| Total Value: | $997,387 | | |
| Tax Area: | 510 - APPRAISER-Stan/Cam Schl Dist, improved & 1 acre or less |
| CF | Conservation Futures | 0.0316035091 | $997,387 | $997,387 | $31.52 | | |
| EMS1 | Fire & Rescue Dist #1 Camano GEN (EMS) | 0.3677864386 | $997,387 | $997,387 | $366.83 | | |
| FIRE1 | Fire & Rescue Dist #1 Camano GEN | 1.2502910536 | $997,387 | $997,387 | $1,247.02 | | |
| FIRE1BOND | Fire & Rescue Dist #1 Camano BOND | 0.1570001679 | $997,387 | $997,387 | $156.59 | | |
| CE | County Current Expense | 0.3708482477 | $997,387 | $997,387 | $369.88 | | |
| CR | County Roads | 0.4584763726 | $997,387 | $997,387 | $457.28 | | |
| LCIB | Library Sno-Isle BOND (Camano Island) | 0.0396325772 | $997,387 | $997,387 | $39.53 | | |
| LIB | Library Sno-Isle GEN | 0.3153421757 | $997,387 | $997,387 | $314.52 | | |
| SCH205_401 | School 205-401 Enrichment | 1.2698420524 | $997,387 | $997,387 | $1,266.52 | | |
| SCH205BOND | School 205-401 BOND | 0.9396497583 | $997,387 | $997,387 | $937.19 | | |
| ST | State School | 1.3035497053 | $997,387 | $997,387 | $1,300.14 | | |
| ST2 | State School Part 2 | 0.8169543533 | $997,387 | $997,387 | $814.82 | | |
| | Total Tax Rate: | 7.3209764117 | | | | | |
| | | | | Taxes w/Current Exemptions: | $7,301.84 | | |
| | | | | Taxes w/o Exemptions: | $7,301.84 | | |
Improvement / Building
| Improvement #1: | RESIDENTIAL | State Code: | Y | 336.0 sqft | Value: | $46,907 |
| Bathrooms: | 0.75 | Bedrooms: | 0 | | Ceiling: | DRYWALL PAINTED | Exterior Wall/Cover: | WOOD SIDING | | Floor Covering: | CARPET/VINYL 60-40 | Floor Structure: | SLAB ON GRADE | | Foundation: | CONCRETE | Heating: | WALL HEAT ELECTRIC | | Interior Finish: | DRYWALL PAINT | Plumbing Fixture Cnt: | 6 | | Roof Slope: | 4" IN 12" | Roof Structure/Cover: | CJ WOOD SHAKES |
|
| | Type | Description | Class CD | Sub Class CD | Year Built | Area |
| | BAS | BASE/MAIN FLOOR | 2 | 0 | 1960 | 336.0 |
| | AGR | ATTACHED GARAGE | 2 | 0 | 1960 | 336.0 |
Sketch
Property Image
Land
| 1 | LB | LOW BANK | 0.2000 | 8712.00 | 48.00 | 0.00 | 1.00 | $950,000 | $0 |
| 2 | 55 | TIDES | 0.0000 | 0.00 | 48.00 | 0.00 | 1.00 | $480 | $0 |
Roll Value History
| 2026 | N/A | N/A | N/A | N/A | N/A |
| 2025 | $46,907 | $950,480 | $0 | $997,387 | $997,387 |
| 2024 | $47,788 | $875,480 | $0 | $923,268 | $923,268 |
| 2023 | $48,669 | $800,480 | $0 | $849,149 | $849,149 |
| 2022 | $42,475 | $700,480 | $0 | $742,955 | $742,955 |
| 2021 | $37,630 | $475,480 | $0 | $513,110 | $513,110 |
| 2020 | $36,685 | $450,480 | $0 | $487,165 | $487,165 |
| 2019 | $25,872 | $450,480 | $0 | $476,352 | $476,352 |
| 2018 | $25,988 | $450,480 | $0 | $476,468 | $476,468 |
| 2017 | $26,217 | $450,480 | $0 | $476,697 | $476,697 |
| 2016 | $24,037 | $450,480 | $0 | $474,517 | $474,517 |
| 2015 | $24,490 | $450,480 | $0 | $474,970 | $474,970 |
| 2014 | $24,945 | $450,480 | $0 | $475,425 | $475,425 |
| 2013 | $25,398 | $450,480 | $0 | $475,878 | $475,878 |
| 2012 | $25,852 | $452,782 | $0 | $478,634 | $478,634 |
| 2011 | $26,305 | $476,587 | $0 | $502,892 | $502,892 |
| 2010 | $25,603 | $476,587 | $0 | $502,190 | $502,190 |
| 2009 | $26,722 | $536,894 | $0 | $563,616 | $563,616 |
| 2008 | $27,130 | $648,780 | $0 | $675,910 | $675,910 |
| 2007 | $28,343 | $538,519 | $0 | $566,862 | $566,862 |
Deed and Sales History
| 1 | 08/29/2017 | WD | Warranty Deed | FOSS TRUSTEE, ADRIANNA | PISEL, JENNA | | | $445,000.00 | 31036 | 4429945 |
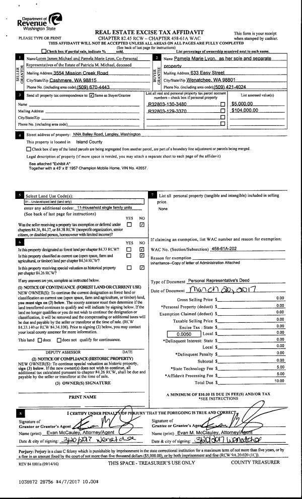
| 2 | 03/29/2017 | PRD | Personal Representatives Deed | TAYLOR, CLYDE A | FOSS TRUSTEE, ADRIANNA | | | $0.00 | 28749 | 4420260 |
Payout Agreement
| No payout information available.. |