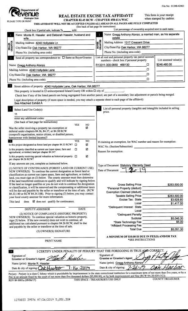
Property
Account |
| Property ID: | 9298 | Abbreviated Legal Description: | 12 - IN GL2 & IN SW NE: BG 705'N OF SECR GL2 N878.56' SWLY 979.48' TO CO RD SELY ALG RD 367.61' E572.04' TPB |
| Geographic ID: | R13114-262-3640 | Agent Code: | |
| Type: | Real | | |
| Tax Area: | 312 - APPRAISER-Cpvl Schl Dist, outside Cpvl, improved, greater than 1 acre | Land Use Code | 11 |
| Open Space: | N | DFL | N |
| Historic Property: | N | Remodel Property: | N |
| Multi-Family Redevelopment: | N | | |
| Township: | 31 | Section: | 14 |
| Range: | R1 |
Location |
| Address: | 550 WANAMAKER RD COUPEVILLE, WA 98239 | Mapsco: | |
| Neighborhood: | Cycle 2 | Map ID: | 63 |
| Neighborhood CD: | 2 |
Owner |
| Name: | BARTEL, BEAU JASON | Owner ID: | 291651 |
| Mailing Address: | SAHARA L F BAUER 550 WANAMAKER RD COUPEVILLE, WA 98239 | % Ownership: | 100.0000000000% |
| | | Exemptions: | |
Taxes and Assessment Details
Values
| (+) Improvement Homesite Value: | + | $0 | |
| (+) Improvement Non-Homesite Value: | + | $551,221 | |
| (+) Land Homesite Value: | + | $0 | |
| (+) Land Non-Homesite Value: | + | $349,556 | |
| (+) Curr Use (HS): | + | $0 | $0 |
| (+) Curr Use (NHS): | + | $0 | $0 |
| | | -------------------------- | |
| (=) Market Value: | = | $900,777 | |
| (–) Productivity Loss: | – | $0 | |
| | | -------------------------- | |
| (=) Subtotal: | = | $900,777 | |
| (+) Senior Appraised Value: | + | $0 | |
| (+) Non-Senior Appraised Value: | + | $900,777 | |
| | | -------------------------- | |
| (=) Total Appraised Value: | = | $900,777 | |
| (–) Senior Exemption Loss: | – | $0 | |
| (–) Exemption Loss: | – | $0 | |
| | | -------------------------- | |
| (=) Taxable Value: | = | $900,777 | |
Taxing Jurisdiction
| Owner: | BARTEL, BEAU JASON | | |
| % Ownership: | 100.0000000000% | | |
| Total Value: | $900,777 | | |
| Tax Area: | 312 - APPRAISER-Cpvl Schl Dist, outside Cpvl, improved, greater than 1 acre |
| CF | Conservation Futures | 0.0316035091 | $900,777 | $900,777 | $28.47 | | |
| CEM2 | Cemetery #2 | 0.0095056933 | $900,777 | $900,777 | $8.56 | | |
| FIRE5 | Fire & Rescue Dist #5 C Whidbey GEN | 1.2008080668 | $900,777 | $900,777 | $1,081.66 | | |
| FIRE5BOND | Fire & Rescue Dist #5 C Whidbey BOND | 0.1400090713 | $900,777 | $900,777 | $126.12 | | |
| HOBOND | Hospital BOND | 0.1910887512 | $900,777 | $900,777 | $172.13 | | |
| HOGEN | Hospital GEN | 0.3902502903 | $900,777 | $900,777 | $351.53 | | |
| CE | County Current Expense | 0.3708482477 | $900,777 | $900,777 | $334.05 | | |
| CR | County Roads | 0.4584763726 | $900,777 | $900,777 | $412.98 | | |
| ISLANDEMS | Hospital GEN (EMS) | 0.5000000000 | $900,777 | $900,777 | $450.39 | | |
| LIB | Library Sno-Isle GEN | 0.3153421757 | $900,777 | $900,777 | $284.05 | | |
| LIBCAP | Library Sno-Isle BOND (Cap Fac Imp Area) | 0.0543427938 | $900,777 | $900,777 | $48.95 | | |
| POCOUP | Port of Coupeville GEN | 0.1093371703 | $900,777 | $900,777 | $98.49 | | |
| POCOUPIDD | Port of Coupeville IDD | 0.3409740022 | $900,777 | $900,777 | $307.14 | | |
| COUPSDTECH | School 204 CP (TECH) | 0.7545480007 | $900,777 | $900,777 | $679.68 | | |
| SCH204MO | School 204 Enrichment | 0.6716186034 | $900,777 | $900,777 | $604.98 | | |
| ST | State School | 1.3035497053 | $900,777 | $900,777 | $1,174.21 | | |
| ST2 | State School Part 2 | 0.8169543533 | $900,777 | $900,777 | $735.89 | | |
| | Total Tax Rate: | 7.6592568070 | | | | | |
| | | | | Taxes w/Current Exemptions: | $6,899.28 | | |
| | | | | Taxes w/o Exemptions: | $6,899.28 | | |
Improvement / Building
| Improvement #1: | RESIDENTIAL | State Code: | Y | 2304.0 sqft | Value: | $223,988 |
| Bathrooms: | 2 | Bedrooms: | 2 | | Ceiling: | DRYWALL PAINTED | Exterior Wall/Cover: | WOOD SIDING | | Floor Covering: | CARPET/VINYL 20-80 | Floor Structure: | WOOD W/SUBFLOOR | | Foundation: | CONCRETE BLOCKS | Heating: | FHA GAS | | Interior Finish: | DRYWALL PAINT | Plumbing Fixture Cnt: | 9 | | Roof Slope: | 4" IN 12" | Roof Structure/Cover: | CJ ASPHALT |
|
| | Type | Description | Class CD | Sub Class CD | Year Built | Area |
| | BAS | BASE/MAIN FLOOR | 3 | 0 | 1958 | 1152.0 |
| | DWN | DOWNSTAIRS LIVING AREA | 3 | 0 | 1958 | 1152.0 |
| | OP3 | OPEN PORCH W/ROOF | 3 | 0 | 1958 | 40.0 |
| | UTY | STORAGE/UTILITY | 3 | 0 | 1958 | 576.0 |
| | oPOL | POLE BARN | 2 | 0 | 1958 | 800.0 |
| Improvement #2: | RESIDENTIAL | State Code: | Y | 1596.0 sqft | Value: | $327,233 |
| Bathrooms: | 1 | Bedrooms: | 1 | | Ceiling: | DRYWALL PAINTED | Cooling: | HEAT PUMP/CONV/V | | Exterior Wall/Cover: | WOOD SIDING | Floor Covering: | HARDWOOD/CARP 80-20 | | Floor Structure: | SLAB ON GRADE | Foundation: | SLAB | | Interior Finish: | DRYWALL PAINT | Plumbing Fixture Cnt: | 6 | | Roof Slope: | 5" IN 12" | Roof Structure/Cover: | CJ ALUMINIUM HEAVY |
|
| | Type | Description | Class CD | Sub Class CD | Year Built | Area |
| | BAS | BASE/MAIN FLOOR | 3 | 0 | 2022 | 1596.0 |
| | OWC | OPEN WOOD PORCH W/STEPS/ROOF/C | 3 | 0 | 2022 | 360.0 |
| | OCP | OPEN CARPORT | 3 | 0 | 2022 | 400.0 |
| | OCP | OPEN CARPORT | 3 | 0 | 2022 | 200.0 |
Sketch
Property Image
Land
| 1 | HS | HOMESITE | 1.0000 | 43560.00 | 0.00 | 0.00 | 1.00 | $220,000 | $0 |
| 2 | 91 | UNDEVELOPED LAND-METES AND BOUNDS | 8.5900 | 374180.40 | 0.00 | 0.00 | 1.00 | $129,556 | $0 |
Roll Value History
| 2026 | N/A | N/A | N/A | N/A | N/A |
| 2025 | $551,221 | $349,556 | $0 | $900,777 | $900,777 |
| 2024 | $554,311 | $300,000 | $0 | $854,311 | $854,311 |
| 2023 | $563,918 | $280,000 | $0 | $843,918 | $843,918 |
| 2022 | $219,033 | $260,000 | $0 | $479,033 | $479,033 |
| 2021 | $184,590 | $170,000 | $0 | $354,590 | $354,590 |
| 2020 | $180,913 | $160,000 | $0 | $340,913 | $340,913 |
| 2019 | $127,130 | $230,000 | $0 | $357,130 | $357,130 |
| 2018 | $81,728 | $200,000 | $0 | $281,728 | $281,728 |
| 2017 | $82,591 | $200,000 | $0 | $282,591 | $282,591 |
| 2016 | $84,318 | $170,000 | $0 | $254,318 | $254,318 |
| 2015 | $85,527 | $161,055 | $0 | $246,582 | $246,582 |
| 2014 | $87,242 | $161,055 | $0 | $248,297 | $248,297 |
| 2013 | $88,957 | $161,055 | $0 | $250,012 | $250,012 |
| 2012 | $91,160 | $161,055 | $0 | $252,215 | $252,215 |
| 2011 | $92,874 | $178,950 | $0 | $271,824 | $271,824 |
| 2010 | $106,365 | $178,950 | $0 | $285,315 | $285,315 |
| 2009 | $0 | $218,600 | $8,044 | $8,044 | $8,044 |
| 2008 | $0 | $109,300 | $8,044 | $8,044 | $8,044 |
| 2007 | $0 | $90,063 | $8,044 | $8,044 | $8,044 |
Deed and Sales History
| 1 | 08/22/2019 | WD | Warranty Deed | ELLSWORTH JR, D STEPHEN | BARTEL, BEAU JASON | | | $440,000.00 | 40143 | 4470870 |
| 2 | 08/27/2015 | WD | Warranty Deed | ELLSWORTH, JOANNE | ELLSWORTH JR, D STEPHEN | | | $300,000.00 | 21213 | 4385291 |
|   | |
| 3 | 10/23/2014 | TOD | Transfer On Death Deed | ELLSWORTH, DAVID S | ELLSWORTH, JOANNE | | | | 85025 | 4360277 |
Payout Agreement
| No payout information available.. |