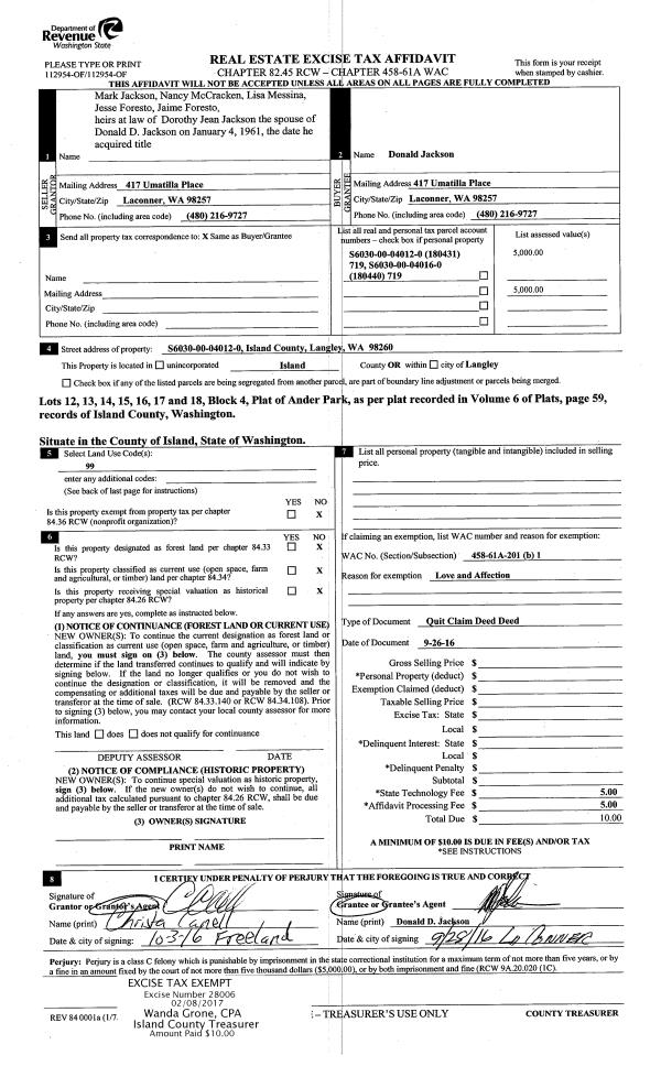
Property
Account |
| Property ID: | 93062 | Abbreviated Legal Description: | 33 - E/2 NW SE NW EX RD |
| Geographic ID: | R23225-368-1840 | Agent Code: | |
| Type: | Real | | |
| Tax Area: | 512 - APPRAISER-Stan/Cam Schl Dist, improved, greater than 1 acre | Land Use Code | 11 |
| Open Space: | N | DFL | N |
| Historic Property: | N | Remodel Property: | N |
| Multi-Family Redevelopment: | N | | |
| Township: | 32 | Section: | 25 |
| Range: | R2 |
Location |
| Address: | | Mapsco: | |
| Neighborhood: | North Camano | Map ID: | 564 |
| Neighborhood CD: | 06-C |
Owner |
| Name: | SANDVEN, JASON | Owner ID: | 286225 |
| Mailing Address: | ALYCIA SANDVEN 242 MILE HIGH DR CAMANO ISLAND, WA 98282 | % Ownership: | 100.0000000000% |
| | | Exemptions: | |
Taxes and Assessment Details
Values
| (+) Improvement Homesite Value: | + | $0 | |
| (+) Improvement Non-Homesite Value: | + | $604,546 | |
| (+) Land Homesite Value: | + | $0 | |
| (+) Land Non-Homesite Value: | + | $330,000 | |
| (+) Curr Use (HS): | + | $0 | $0 |
| (+) Curr Use (NHS): | + | $0 | $0 |
| | | -------------------------- | |
| (=) Market Value: | = | $934,546 | |
| (–) Productivity Loss: | – | $0 | |
| | | -------------------------- | |
| (=) Subtotal: | = | $934,546 | |
| (+) Senior Appraised Value: | + | $0 | |
| (+) Non-Senior Appraised Value: | + | $934,546 | |
| | | -------------------------- | |
| (=) Total Appraised Value: | = | $934,546 | |
| (–) Senior Exemption Loss: | – | $0 | |
| (–) Exemption Loss: | – | $0 | |
| | | -------------------------- | |
| (=) Taxable Value: | = | $934,546 | |
Taxing Jurisdiction
| Owner: | SANDVEN, JASON | | |
| % Ownership: | 100.0000000000% | | |
| Total Value: | $934,546 | | |
| Tax Area: | 512 - APPRAISER-Stan/Cam Schl Dist, improved, greater than 1 acre |
| CF | Conservation Futures | 0.0316035091 | $934,546 | $934,546 | $29.53 | | |
| EMS1 | Fire & Rescue Dist #1 Camano GEN (EMS) | 0.3677864386 | $934,546 | $934,546 | $343.71 | | |
| FIRE1 | Fire & Rescue Dist #1 Camano GEN | 1.2502910536 | $934,546 | $934,546 | $1,168.45 | | |
| FIRE1BOND | Fire & Rescue Dist #1 Camano BOND | 0.1570001679 | $934,546 | $934,546 | $146.72 | | |
| CE | County Current Expense | 0.3708482477 | $934,546 | $934,546 | $346.57 | | |
| CR | County Roads | 0.4584763726 | $934,546 | $934,546 | $428.47 | | |
| LCIB | Library Sno-Isle BOND (Camano Island) | 0.0396325772 | $934,546 | $934,546 | $37.04 | | |
| LIB | Library Sno-Isle GEN | 0.3153421757 | $934,546 | $934,546 | $294.70 | | |
| SCH205_401 | School 205-401 Enrichment | 1.2698420524 | $934,546 | $934,546 | $1,186.73 | | |
| SCH205BOND | School 205-401 BOND | 0.9396497583 | $934,546 | $934,546 | $878.15 | | |
| ST | State School | 1.3035497053 | $934,546 | $934,546 | $1,218.23 | | |
| ST2 | State School Part 2 | 0.8169543533 | $934,546 | $934,546 | $763.48 | | |
| | Total Tax Rate: | 7.3209764117 | | | | | |
| | | | | Taxes w/Current Exemptions: | $6,841.78 | | |
| | | | | Taxes w/o Exemptions: | $6,841.78 | | |
Improvement / Building
| Improvement #1: | RESIDENTIAL | State Code: | Y | 3940.8 sqft | Value: | $604,546 |
| Bathrooms: | 4 | Bedrooms: | 4 | | Ceiling: | DRYWALL PAINTED | Cooling: | HEAT PUMP/CONV/V | | Exterior Wall/Cover: | PLY/HARDBOARD T-111 | Floor Covering: | HARDWOOD/CARP 60-40 | | Floor Structure: | WOOD W/SUBFLOOR | Foundation: | CONCRETE | | Interior Finish: | DRYWALL PAINT | Plumbing Fixture Cnt: | 15 | | Roof Slope: | 12" IN 12" | Roof Structure/Cover: | CJ ASPHALT |
|
| | Type | Description | Class CD | Sub Class CD | Year Built | Area |
| | BAS | BASE/MAIN FLOOR | 3 | 0 | 2021 | 2412.8 |
| | UPS | UPPER STORY | 3 | 0 | 2021 | 1528.0 |
| | AGR | ATTACHED GARAGE | 3 | 0 | 2021 | 842.8 |
| | OWC | OPEN WOOD PORCH W/STEPS/ROOF/C | 3 | 0 | 2021 | 437.0 |
| | OWC | OPEN WOOD PORCH W/STEPS/ROOF/C | 3 | 0 | 2021 | 658.0 |
| | CPD | OPEN CARPORT DIRT FLOOR | 3 | 0 | 2021 | 400.0 |
| | DGR | DETACHED GARAGE | 3 | 0 | 2021 | 400.0 |
Sketch
Property Image
Land
| 1 | 32 | AC (03.01-09.99) | 4.7800 | 0.00 | 0.00 | 0.00 | 1.00 | $330,000 | $0 |
Roll Value History
| 2026 | N/A | N/A | N/A | N/A | N/A |
| 2025 | $604,546 | $330,000 | $0 | $934,546 | $934,546 |
| 2024 | $609,345 | $340,000 | $0 | $949,345 | $949,345 |
| 2023 | $615,742 | $320,000 | $0 | $935,742 | $935,742 |
| 2022 | $0 | $180,000 | $0 | $180,000 | $180,000 |
| 2021 | $0 | $130,000 | $0 | $130,000 | $130,000 |
| 2020 | $0 | $130,000 | $0 | $130,000 | $130,000 |
| 2019 | $0 | $140,000 | $0 | $140,000 | $140,000 |
| 2018 | $0 | $120,000 | $0 | $120,000 | $120,000 |
| 2017 | $0 | $90,000 | $0 | $90,000 | $90,000 |
| 2016 | $0 | $90,000 | $0 | $90,000 | $90,000 |
| 2015 | $0 | $95,600 | $0 | $95,600 | $95,600 |
| 2014 | $0 | $95,600 | $0 | $95,600 | $95,600 |
| 2013 | $0 | $116,154 | $0 | $116,154 | $116,154 |
| 2012 | $0 | $116,154 | $0 | $116,154 | $116,154 |
| 2011 | $0 | $116,154 | $0 | $116,154 | $116,154 |
| 2010 | $0 | $116,154 | $0 | $116,154 | $116,154 |
| 2009 | $0 | $143,400 | $0 | $143,400 | $143,400 |
| 2008 | $0 | $157,740 | $0 | $157,740 | $157,740 |
| 2007 | $0 | $157,740 | $0 | $157,740 | $157,740 |
Deed and Sales History
| 1 | 07/07/2018 | REC | Real Estate Contract | DOUGHERTY, JOHN | SANDVEN, JASON | | | $80,000.00 | 35237 | 4449012 |
| 2 | 07/21/2009 | QCD | Quit Claim Deed | DOUGHERTY, MARJORIE A | DOUGHERTY, JOHN | | | $0.00 | 91636 | 4256821 |
| 3 | 10/19/2006 | 5 | DNU - Marriage License/Name Change | DOUGHERTY, MARJORIE | DOUGHERTY, MARJORIE A | | | $0.00 | 64835 | 4186828 |
| 4 | 10/31/2001 | 5 | DNU - Marriage License/Name Change | DOUGHERTY, EDMUND/MARJORIE | DOUGHERTY, MARJORIE | | | $0.00 | 69177 | 0 |
| 5 | 08/01/1994 | QCD | Quit Claim Deed | DOUGHERTY, EDMUND | DOUGHERTY, EDMUND/MARJORIE | | | $0.00 | 62372 | 96011751 |
| 6 | 01/01/1900 | OTHER | Other - Misc. Documents | Unknown | DOUGHERTY, EDMUND | | | $0.00 | 0 | 0 |
Payout Agreement
| No payout information available.. |