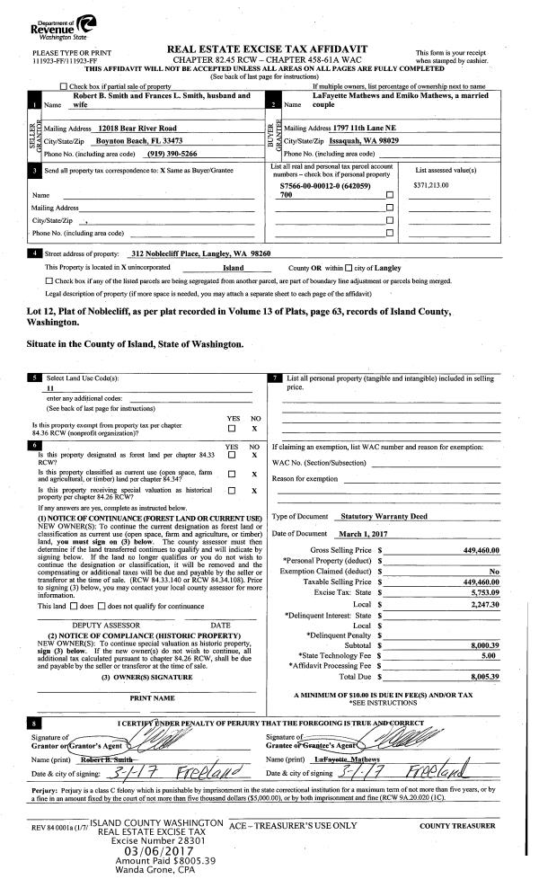
Property
Account |
| Property ID: | 93071 | Abbreviated Legal Description: | 37 - W/2 NE SE NW EX RD |
| Geographic ID: | R23225-368-2170 | Agent Code: | |
| Type: | Real | | |
| Tax Area: | 512 - APPRAISER-Stan/Cam Schl Dist, improved, greater than 1 acre | Land Use Code | 11 |
| Open Space: | N | DFL | N |
| Historic Property: | N | Remodel Property: | N |
| Multi-Family Redevelopment: | N | | |
| Township: | 32 | Section: | 25 |
| Range: | R2 |
Location |
| Address: | 242 MILE HIGH DR CAMANO ISLAND, WA 98282 | Mapsco: | |
| Neighborhood: | North Camano | Map ID: | 564 |
| Neighborhood CD: | 06-C |
Owner |
| Name: | FOGELSONGER, TODD | Owner ID: | 300981 |
| Mailing Address: | NICOLE CHRISTY 242 MILE HIGH DR CAMANO ISLAND, WA 98282 | % Ownership: | 100.0000000000% |
| | | Exemptions: | |
Taxes and Assessment Details
Values
| (+) Improvement Homesite Value: | + | $0 | |
| (+) Improvement Non-Homesite Value: | + | $682,380 | |
| (+) Land Homesite Value: | + | $0 | |
| (+) Land Non-Homesite Value: | + | $330,000 | |
| (+) Curr Use (HS): | + | $0 | $0 |
| (+) Curr Use (NHS): | + | $0 | $0 |
| | | -------------------------- | |
| (=) Market Value: | = | $1,012,380 | |
| (–) Productivity Loss: | – | $0 | |
| | | -------------------------- | |
| (=) Subtotal: | = | $1,012,380 | |
| (+) Senior Appraised Value: | + | $0 | |
| (+) Non-Senior Appraised Value: | + | $1,012,380 | |
| | | -------------------------- | |
| (=) Total Appraised Value: | = | $1,012,380 | |
| (–) Senior Exemption Loss: | – | $0 | |
| (–) Exemption Loss: | – | $0 | |
| | | -------------------------- | |
| (=) Taxable Value: | = | $1,012,380 | |
Taxing Jurisdiction
| Owner: | FOGELSONGER, TODD | | |
| % Ownership: | 100.0000000000% | | |
| Total Value: | $1,012,380 | | |
| Tax Area: | 512 - APPRAISER-Stan/Cam Schl Dist, improved, greater than 1 acre |
| CF | Conservation Futures | 0.0316035091 | $1,012,380 | $1,012,380 | $31.99 | | |
| EMS1 | Fire & Rescue Dist #1 Camano GEN (EMS) | 0.3677864386 | $1,012,380 | $1,012,380 | $372.34 | | |
| FIRE1 | Fire & Rescue Dist #1 Camano GEN | 1.2502910536 | $1,012,380 | $1,012,380 | $1,265.77 | | |
| FIRE1BOND | Fire & Rescue Dist #1 Camano BOND | 0.1570001679 | $1,012,380 | $1,012,380 | $158.94 | | |
| CE | County Current Expense | 0.3708482477 | $1,012,380 | $1,012,380 | $375.44 | | |
| CR | County Roads | 0.4584763726 | $1,012,380 | $1,012,380 | $464.15 | | |
| LCIB | Library Sno-Isle BOND (Camano Island) | 0.0396325772 | $1,012,380 | $1,012,380 | $40.12 | | |
| LIB | Library Sno-Isle GEN | 0.3153421757 | $1,012,380 | $1,012,380 | $319.25 | | |
| SCH205_401 | School 205-401 Enrichment | 1.2698420524 | $1,012,380 | $1,012,380 | $1,285.56 | | |
| SCH205BOND | School 205-401 BOND | 0.9396497583 | $1,012,380 | $1,012,380 | $951.28 | | |
| ST | State School | 1.3035497053 | $1,012,380 | $1,012,380 | $1,319.69 | | |
| ST2 | State School Part 2 | 0.8169543533 | $1,012,380 | $1,012,380 | $827.07 | | |
| | Total Tax Rate: | 7.3209764117 | | | | | |
| | | | | Taxes w/Current Exemptions: | $7,411.60 | | |
| | | | | Taxes w/o Exemptions: | $7,411.60 | | |
Improvement / Building
| Improvement #1: | RESIDENTIAL | State Code: | Y | 3756.3 sqft | Value: | $682,380 |
| Bathrooms: | 2.5 | Bedrooms: | 3 | | Ceiling: | DRYWALL PAINTED | Exterior Wall/Cover: | CEMENT FIBER | | Floor Covering: | HARDWOOD/CARP 20-80 | Floor Structure: | WOOD W/SUBFLOOR | | Foundation: | CONCRETE | Heating: | FHA GAS | | Interior Finish: | DRYWALL PAINT | Plumbing Fixture Cnt: | 14 | | Roof Slope: | 10" IN 12" | Roof Structure/Cover: | CJ ASPHALT |
|
| | Type | Description | Class CD | Sub Class CD | Year Built | Area |
| | BAS | BASE/MAIN FLOOR | 4 | 0 | 2015 | 2369.3 |
| | UPS | UPPER STORY | 4 | 0 | 2015 | 1387.0 |
| | BIG | BUILT IN GARAGE | 4 | 0 | 2015 | 777.7 |
| | OWC | OPEN WOOD PORCH W/STEPS/ROOF/C | 4 | 0 | 2015 | 108.0 |
| | OWP | OPEN WOOD PORCH W/STEPS | 4 | 0 | 2015 | 54.0 |
| | OWP | OPEN WOOD PORCH W/STEPS | 4 | 0 | 2015 | 109.5 |
| | OP4 | OPEN PORCH W/CEILING-ROOF | 4 | 0 | 2015 | 153.0 |
Sketch
Property Image
Land
| 1 | 32 | AC (03.01-09.99) | 4.7800 | 0.00 | 0.00 | 0.00 | 1.00 | $330,000 | $0 |
Roll Value History
| 2026 | N/A | N/A | N/A | N/A | N/A |
| 2025 | $682,380 | $330,000 | $0 | $1,012,380 | $1,012,380 |
| 2024 | $687,884 | $340,000 | $0 | $1,027,884 | $1,027,884 |
| 2023 | $693,386 | $320,000 | $0 | $1,013,386 | $1,013,386 |
| 2022 | $612,916 | $300,000 | $0 | $912,916 | $912,916 |
| 2021 | $537,291 | $190,000 | $0 | $727,291 | $727,291 |
| 2020 | $522,825 | $190,000 | $0 | $712,825 | $712,825 |
| 2019 | $435,097 | $220,000 | $0 | $655,097 | $655,097 |
| 2018 | $436,227 | $190,000 | $0 | $626,227 | $626,227 |
| 2017 | $438,487 | $170,000 | $0 | $608,487 | $608,487 |
| 2016 | $443,008 | $135,000 | $0 | $578,008 | $578,008 |
| 2015 | $452,049 | $120,000 | $0 | $572,049 | $572,049 |
| 2014 | $0 | $95,600 | $0 | $95,600 | $95,600 |
| 2013 | $0 | $95,600 | $0 | $95,600 | $95,600 |
| 2012 | $0 | $95,600 | $0 | $95,600 | $95,600 |
| 2011 | $0 | $95,600 | $0 | $95,600 | $95,600 |
| 2010 | $0 | $95,600 | $0 | $95,600 | $95,600 |
| 2009 | $0 | $143,400 | $0 | $143,400 | $143,400 |
| 2008 | $0 | $157,740 | $0 | $157,740 | $157,740 |
| 2007 | $0 | $157,740 | $0 | $157,740 | $157,740 |
Deed and Sales History
| 1 | 08/26/2021 | WD | Warranty Deed | SANDVEN, JASON A | FOGELSONGER, TODD | | | $1,250,000.00 | 49866 | 4528151 |
| 2 | 02/06/2017 | WD | Warranty Deed | CORSTONE CONTRACTORS, LLC | SANDVEN, JASON A | | | $442,627.00 | 28015 | 4416728 |
| 3 | 03/23/2016 | WD | Warranty Deed | BUTTERFIELD, STANLEY D | CORSTONE CONTRACTORS, LLC | | | $44,795.00 | 23742 | 4396808 |
| 4 | 05/24/2012 | WD | Warranty Deed | JUHNKE, JACQUELYN L | BUTTERFIELD, STANLEY D | | | $90,000.00 | 7851 | 4316556 |
| 5 | 02/01/1980 | EZ | Easement | JUHNKE, RICHARD L | JUHNKE, JACQUELYN L | | | $0.00 | 486 | 365055 |
Payout Agreement
| No payout information available.. |