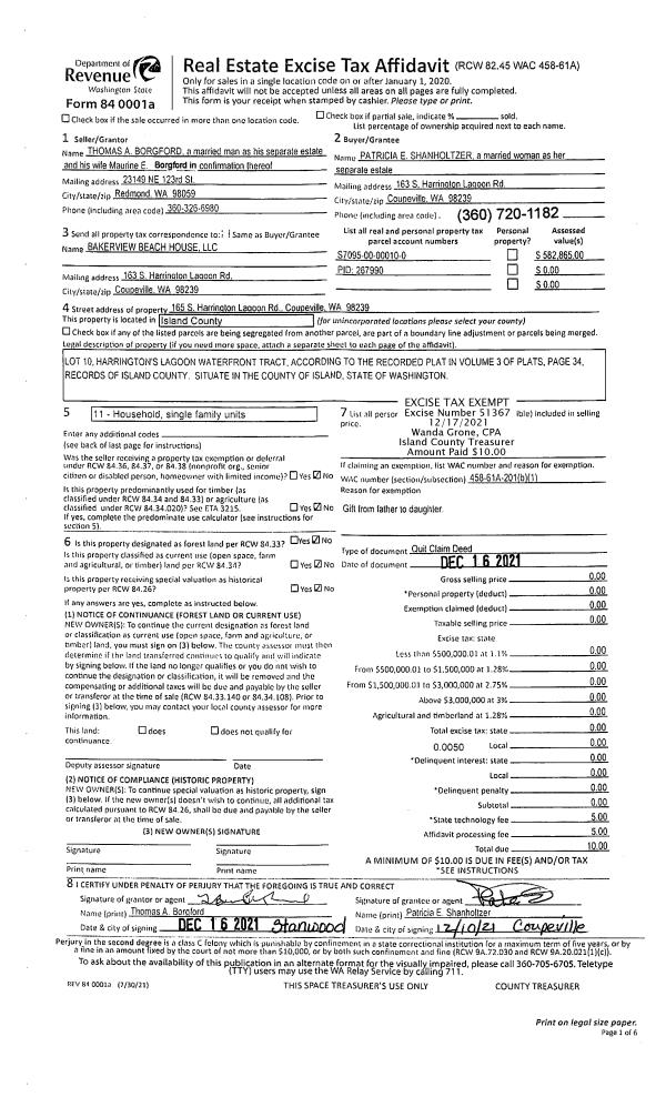
Property
Account |
| Property ID: | 93124 | Abbreviated Legal Description: | 61 - S/2 SE SW SW EX E30' |
| Geographic ID: | R23226-022-1040 | Agent Code: | |
| Type: | Real | | |
| Tax Area: | 512 - APPRAISER-Stan/Cam Schl Dist, improved, greater than 1 acre | Land Use Code | 11 |
| Open Space: | N | DFL | N |
| Historic Property: | N | Remodel Property: | N |
| Multi-Family Redevelopment: | N | | |
| Township: | 32 | Section: | 26 |
| Range: | R2 |
Location |
| Address: | 401 EVERGREEN PARK RD CAMANO ISLAND, WA 98282 | Mapsco: | |
| Neighborhood: | North Camano | Map ID: | 566 |
| Neighborhood CD: | 06-C |
Owner |
| Name: | SWARTZ, JEREMIAH ISRAEL | Owner ID: | 301218 |
| Mailing Address: | MARESHA LYNN SWARTZ 401 EVERGREEN PARK RD CAMANO ISLAND, WA 98282 | % Ownership: | 100.0000000000% |
| | | Exemptions: | |
Taxes and Assessment Details
Values
| (+) Improvement Homesite Value: | + | $0 | |
| (+) Improvement Non-Homesite Value: | + | $135,459 | |
| (+) Land Homesite Value: | + | $0 | |
| (+) Land Non-Homesite Value: | + | $360,000 | |
| (+) Curr Use (HS): | + | $0 | $0 |
| (+) Curr Use (NHS): | + | $0 | $0 |
| | | -------------------------- | |
| (=) Market Value: | = | $495,459 | |
| (–) Productivity Loss: | – | $0 | |
| | | -------------------------- | |
| (=) Subtotal: | = | $495,459 | |
| (+) Senior Appraised Value: | + | $0 | |
| (+) Non-Senior Appraised Value: | + | $495,459 | |
| | | -------------------------- | |
| (=) Total Appraised Value: | = | $495,459 | |
| (–) Senior Exemption Loss: | – | $0 | |
| (–) Exemption Loss: | – | $0 | |
| | | -------------------------- | |
| (=) Taxable Value: | = | $495,459 | |
Taxing Jurisdiction
| Owner: | SWARTZ, JEREMIAH ISRAEL | | |
| % Ownership: | 100.0000000000% | | |
| Total Value: | $495,459 | | |
| Tax Area: | 512 - APPRAISER-Stan/Cam Schl Dist, improved, greater than 1 acre |
| CF | Conservation Futures | 0.0316035091 | $495,459 | $495,459 | $15.66 | | |
| EMS1 | Fire & Rescue Dist #1 Camano GEN (EMS) | 0.3677864386 | $495,459 | $495,459 | $182.22 | | |
| FIRE1 | Fire & Rescue Dist #1 Camano GEN | 1.2502910536 | $495,459 | $495,459 | $619.47 | | |
| FIRE1BOND | Fire & Rescue Dist #1 Camano BOND | 0.1570001679 | $495,459 | $495,459 | $77.79 | | |
| CE | County Current Expense | 0.3708482477 | $495,459 | $495,459 | $183.74 | | |
| CR | County Roads | 0.4584763726 | $495,459 | $495,459 | $227.16 | | |
| LCIB | Library Sno-Isle BOND (Camano Island) | 0.0396325772 | $495,459 | $495,459 | $19.64 | | |
| LIB | Library Sno-Isle GEN | 0.3153421757 | $495,459 | $495,459 | $156.24 | | |
| SCH205_401 | School 205-401 Enrichment | 1.2698420524 | $495,459 | $495,459 | $629.15 | | |
| SCH205BOND | School 205-401 BOND | 0.9396497583 | $495,459 | $495,459 | $465.56 | | |
| ST | State School | 1.3035497053 | $495,459 | $495,459 | $645.86 | | |
| ST2 | State School Part 2 | 0.8169543533 | $495,459 | $495,459 | $404.77 | | |
| | Total Tax Rate: | 7.3209764117 | | | | | |
| | | | | Taxes w/Current Exemptions: | $3,627.26 | | |
| | | | | Taxes w/o Exemptions: | $3,627.26 | | |
Improvement / Building
| Improvement #1: | MANUFACTURED HOME | State Code: | Y | 1776.0 sqft | Value: | $135,459 |
| Bathrooms: | 0 | Bedrooms: | 3 | | Ceiling: | PLASTER PAINTED | Cooling: | EVAP NO DUCT | | Exterior Wall/Cover: | VINYL | Floor Covering: | CARPET 100% | | Floor Structure: | SLAB ON GRADE | Foundation: | SLAB | | Heating: | FHA ELECTRIC | Interior Finish: | PLASTER | | Plumbing Fixture Cnt: | 1 | Roof Slope: | FLAT | | Roof Structure/Cover: | CJ ALUMINIUM HEAVY |   |   |
|
| | Type | Description | Class CD | Sub Class CD | Year Built | Area |
| | BAS | BASE/MAIN FLOOR | 4 | 0 | 1990 | 1776.0 |
| | OWR | OPEN WOOD PORCH W/STEPS/ROOF | 4 | 0 | 1990 | 106.0 |
| | OWP | OPEN WOOD PORCH W/STEPS | 4 | 0 | 1990 | 192.0 |
| | oPOL | POLE BARN | 4 | 0 | 1990 | 800.0 |
| | oUTI | UTILITY | 4 | 0 | 1990 | 312.0 |
Sketch
Property Image
Land
| 1 | 32 | AC (03.01-09.99) | 4.7800 | 0.00 | 0.00 | 0.00 | 1.00 | $360,000 | $0 |
Roll Value History
| 2026 | N/A | N/A | N/A | N/A | N/A |
| 2025 | $135,459 | $360,000 | $0 | $495,459 | $495,459 |
| 2024 | $139,513 | $340,000 | $0 | $479,513 | $479,513 |
| 2023 | $126,646 | $320,000 | $0 | $446,646 | $446,646 |
| 2022 | $87,846 | $300,000 | $0 | $387,846 | $387,846 |
| 2021 | $80,611 | $230,000 | $0 | $310,611 | $310,611 |
| 2020 | $81,025 | $190,000 | $0 | $271,025 | $271,025 |
| 2019 | $69,541 | $220,000 | $0 | $289,541 | $289,541 |
| 2018 | $71,399 | $175,000 | $0 | $246,399 | $246,399 |
| 2017 | $73,258 | $150,000 | $0 | $223,258 | $223,258 |
| 2016 | $67,058 | $150,000 | $0 | $217,058 | $217,058 |
| 2015 | $68,726 | $107,072 | $0 | $175,798 | $175,798 |
| 2014 | $70,395 | $107,072 | $0 | $177,467 | $177,467 |
| 2013 | $72,063 | $107,072 | $0 | $179,135 | $179,135 |
| 2012 | $72,897 | $107,072 | $0 | $179,969 | $179,969 |
| 2011 | $74,566 | $133,840 | $0 | $208,406 | $208,406 |
| 2010 | $74,338 | $133,840 | $0 | $208,178 | $208,178 |
| 2009 | $78,720 | $160,130 | $0 | $238,850 | $238,850 |
| 2008 | $80,864 | $207,930 | $0 | $288,794 | $288,794 |
| 2007 | $83,116 | $207,930 | $0 | $291,046 | $291,046 |
Deed and Sales History
| 1 | 08/30/2021 | BARGSLD | Bargain And Sale Deed | TOLMAN, ROYCE A | SWARTZ, JEREMIAH ISRAEL | | | $475,000.00 | 50092 | 4529481 |
| 2 | 05/01/1990 | OTHER | Other - Misc. Documents | TOLMAN, ROYCE A | TOLMAN, ROYCE / | | | $38,945.00 | 11111111 | 0 |
| 3 | 02/01/1990 | WD | Warranty Deed | WILFONG, CHARLES C | TOLMAN, ROYCE A | | | $45,000.00 | 1025 | 90003376 |
| 4 | 01/01/1990 | WD | Warranty Deed | COLE, CHARLES T | WILFONG, CHARLES C | | | $32,500.00 | 622 | 90002018 |
| 5 | 10/01/1989 | TRUSTEED | Trustee's Deed | BODEN, WAYNE W | COLE, CHARLES T | | | $0.00 | 94671 | 89015221 |
| 6 | 07/01/1988 | WD | Warranty Deed | HEPPELL, MARJORIE R | BODEN, WAYNE W | | | $32,500.00 | 82164 | 88007965 |
| 7 | 05/01/1987 | OTHER | Other - Misc. Documents | CANTRELL, JUDY A | HEPPELL, MARJORIE R | | | $0.00 | 62230 | 87006814 |
| 8 | 01/01/1987 | OTHER | Other - Misc. Documents | CANTRELL, JUDY A | CANTRELL, JUDY A | | | $0.00 | 62229 | 87000672 |
| 9 | 01/01/1986 | OTHER | Other - Misc. Documents | CANTRELL, JACK W | CANTRELL, JUDY A | | | $0.00 | 61473 | 426093 |
| 10 | 06/01/1984 | PACD | Purchaser's Assignment | CANTRELL, OTTO W | CANTRELL, JACK W | | | $0.00 | 41884 | 84000078 |
| 11 | 11/01/1981 | EXECUTORD | Executor Deed | JACOBSEN, ROBERT M | CANTRELL, OTTO W | | | $24,000.00 | 13732 | 390975 |
| 12 | 01/01/1900 | OTHER | Other - Misc. Documents | Unknown | JACOBSEN, ROBERT M | | | $0.00 | 0 | 0 |
Payout Agreement
| No payout information available.. |