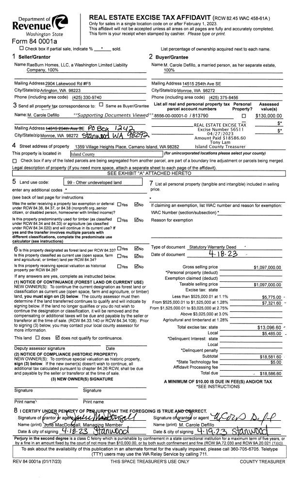
Property
Account |
| Property ID: | 93133 | Abbreviated Legal Description: | S/2 SW SE SW TGW & SUB TO EZ AF#87009602 |
| Geographic ID: | R23226-023-1700 | Agent Code: | |
| Type: | Real | | |
| Tax Area: | 512 - APPRAISER-Stan/Cam Schl Dist, improved, greater than 1 acre | Land Use Code | 11 |
| Open Space: | N | DFL | N |
| Historic Property: | N | Remodel Property: | N |
| Multi-Family Redevelopment: | N | | |
| Township: | 32 | Section: | 26 |
| Range: | R2 |
Location |
| Address: | 411 TRADEWIND LN CAMANO ISLAND, WA 98282 | Mapsco: | |
| Neighborhood: | North Camano | Map ID: | 566 |
| Neighborhood CD: | 06-C |
Owner |
| Name: | BECKER, BARNEY JOE | Owner ID: | 314105 |
| Mailing Address: | 411 TRADEWIND LN CAMANO ISLAND, WA 98282 | % Ownership: | 100.0000000000% |
| | | Exemptions: | |
Taxes and Assessment Details
Values
| (+) Improvement Homesite Value: | + | $0 | |
| (+) Improvement Non-Homesite Value: | + | $463,890 | |
| (+) Land Homesite Value: | + | $0 | |
| (+) Land Non-Homesite Value: | + | $360,000 | |
| (+) Curr Use (HS): | + | $0 | $0 |
| (+) Curr Use (NHS): | + | $0 | $0 |
| | | -------------------------- | |
| (=) Market Value: | = | $823,890 | |
| (–) Productivity Loss: | – | $0 | |
| | | -------------------------- | |
| (=) Subtotal: | = | $823,890 | |
| (+) Senior Appraised Value: | + | $0 | |
| (+) Non-Senior Appraised Value: | + | $823,890 | |
| | | -------------------------- | |
| (=) Total Appraised Value: | = | $823,890 | |
| (–) Senior Exemption Loss: | – | $0 | |
| (–) Exemption Loss: | – | $0 | |
| | | -------------------------- | |
| (=) Taxable Value: | = | $823,890 | |
Taxing Jurisdiction
| Owner: | BECKER, BARNEY JOE | | |
| % Ownership: | 100.0000000000% | | |
| Total Value: | $823,890 | | |
| Tax Area: | 512 - APPRAISER-Stan/Cam Schl Dist, improved, greater than 1 acre |
| CF | Conservation Futures | 0.0316035091 | $823,890 | $823,890 | $26.04 | | |
| EMS1 | Fire & Rescue Dist #1 Camano GEN (EMS) | 0.3677864386 | $823,890 | $823,890 | $303.02 | | |
| FIRE1 | Fire & Rescue Dist #1 Camano GEN | 1.2502910536 | $823,890 | $823,890 | $1,030.10 | | |
| FIRE1BOND | Fire & Rescue Dist #1 Camano BOND | 0.1570001679 | $823,890 | $823,890 | $129.35 | | |
| CE | County Current Expense | 0.3708482477 | $823,890 | $823,890 | $305.54 | | |
| CR | County Roads | 0.4584763726 | $823,890 | $823,890 | $377.73 | | |
| LCIB | Library Sno-Isle BOND (Camano Island) | 0.0396325772 | $823,890 | $823,890 | $32.65 | | |
| LIB | Library Sno-Isle GEN | 0.3153421757 | $823,890 | $823,890 | $259.81 | | |
| SCH205_401 | School 205-401 Enrichment | 1.2698420524 | $823,890 | $823,890 | $1,046.21 | | |
| SCH205BOND | School 205-401 BOND | 0.9396497583 | $823,890 | $823,890 | $774.17 | | |
| ST | State School | 1.3035497053 | $823,890 | $823,890 | $1,073.98 | | |
| ST2 | State School Part 2 | 0.8169543533 | $823,890 | $823,890 | $673.08 | | |
| | Total Tax Rate: | 7.3209764117 | | | | | |
| | | | | Taxes w/Current Exemptions: | $6,031.68 | | |
| | | | | Taxes w/o Exemptions: | $6,031.68 | | |
Improvement / Building
| Improvement #1: | RESIDENTIAL | State Code: | Y | 2102.2 sqft | Value: | $463,890 |
| Bathrooms: | 4 | Bedrooms: | 3 | | Ceiling: | BEAM PAINTED | Exterior Wall/Cover: | WOOD SIDING | | Floor Covering: | HARDWOOD/CARP 20-80 | Floor Structure: | WOOD W/SUBFLOOR | | Foundation: | CONCRETE | Heating: | FHA GAS | | Interior Finish: | DRYWALL PAINT | Plumbing Fixture Cnt: | 16 | | Roof Slope: | 6" IN 12" | Roof Structure/Cover: | BEAM ASPHALT |
|
| | Type | Description | Class CD | Sub Class CD | Year Built | Area |
| | BAS | BASE/MAIN FLOOR | 4 | 0 | 1994 | 1322.2 |
| | OP1 | OPEN PORCH SLAB | 4 | 0 | 1994 | 30.0 |
| | AGR | ATTACHED GARAGE | 4 | 0 | 1994 | 234.0 |
| | BIG | BUILT IN GARAGE | 4 | 0 | 1994 | 390.0 |
| | UPS | UPPER STORY | 4 | 0 | 1994 | 780.0 |
| | BAW | BALCONY WOOD RAIL | 4 | 0 | 1994 | 70.0 |
| | OWP | OPEN WOOD PORCH W/STEPS | 4 | 0 | 1994 | 672.0 |
| | OWR | OPEN WOOD PORCH W/STEPS/ROOF | 4 | 0 | 1994 | 60.0 |
| | oPOL | POLE BARN | 4 | 0 | 1994 | 720.0 |
Sketch
| No sketches available for this property. |
Property Image
Land
| 1 | 32 | AC (03.01-09.99) | 4.8200 | 0.00 | 0.00 | 0.00 | 1.00 | $360,000 | $0 |
Roll Value History
| 2026 | N/A | N/A | N/A | N/A | N/A |
| 2025 | $463,890 | $360,000 | $0 | $823,890 | $823,890 |
| 2024 | $318,541 | $340,000 | $0 | $658,541 | $658,541 |
| 2023 | $322,589 | $320,000 | $0 | $642,589 | $642,589 |
| 2022 | $297,464 | $300,000 | $0 | $597,464 | $597,464 |
| 2021 | $264,193 | $230,000 | $0 | $494,193 | $494,193 |
| 2020 | $258,382 | $190,000 | $0 | $448,382 | $448,382 |
| 2019 | $202,053 | $220,000 | $0 | $422,053 | $422,053 |
| 2018 | $202,633 | $175,000 | $0 | $377,633 | $377,633 |
| 2017 | $203,795 | $150,000 | $0 | $353,795 | $353,795 |
| 2016 | $193,937 | $150,000 | $0 | $343,937 | $343,937 |
| 2015 | $196,203 | $107,968 | $0 | $304,171 | $304,171 |
| 2014 | $198,468 | $107,968 | $0 | $306,436 | $306,436 |
| 2013 | $200,735 | $107,968 | $0 | $308,703 | $308,703 |
| 2012 | $203,003 | $107,968 | $0 | $310,971 | $310,971 |
| 2011 | $205,269 | $134,960 | $0 | $340,229 | $340,229 |
| 2010 | $213,464 | $134,960 | $0 | $348,424 | $348,424 |
| 2009 | $222,278 | $161,470 | $0 | $383,748 | $383,748 |
| 2008 | $225,757 | $209,670 | $0 | $435,427 | $435,427 |
| 2007 | $229,234 | $209,670 | $0 | $438,904 | $438,904 |
Deed and Sales History
| 1 | 10/03/2024 | WD | Warranty Deed | FREDRICKSON, JACK C | BECKER, BARNEY JOE | | | $774,950.00 | 61479 | 4577884 |
| 2 | 06/01/1998 | WD | Warranty Deed | FLINN, STEPHEN B | FREDICKSON, JACK C | | | $215,000.00 | 82183 | 98011325 |
| 3 | 06/01/1987 | WD | Warranty Deed | SANDE, WILLIAM N | FLINN, STEPHEN B | | | $17,000.00 | 72126 | 87009603 |
| 4 | 04/01/1979 | OTHER | Other - Misc. Documents | FREDRICKSON, JACK C | SANDE, WILLIAM N | | | $0.00 | 92191 | 352141 |
| 5 | 01/01/1900 | OTHER | Other - Misc. Documents | Unknown | FREDRICKSON, JACK C | | | $0.00 | 82183 | 98011325 |
Payout Agreement
| No payout information available.. |