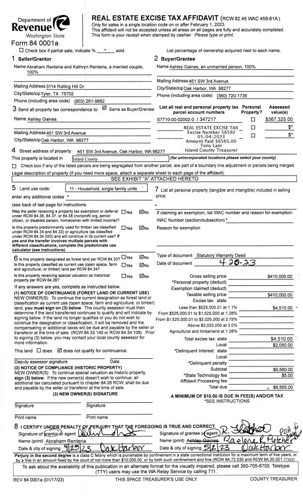
Property
Account |
| Property ID: | 93197 | Abbreviated Legal Description: | 71 - IN SW SE: BG S/4 CR SEC 26 N88*E330.85' N347.49 S88*W180.50' TPB S88*W150' S317.65' TO NLN RD ELY ALG NLN 150' TP S FR TPB N317 .58' TPB (TR A SP 73-020) |
| Geographic ID: | R23226-025-2750 | Agent Code: | |
| Type: | Real | | |
| Tax Area: | 512 - APPRAISER-Stan/Cam Schl Dist, improved, greater than 1 acre | Land Use Code | 11 |
| Open Space: | N | DFL | N |
| Historic Property: | N | Remodel Property: | N |
| Multi-Family Redevelopment: | N | | |
| Township: | 32 | Section: | 26 |
| Range: | R2 |
Location |
| Address: | 594 W CROSS ISLAND RD CAMANO ISLAND, WA 98282 | Mapsco: | |
| Neighborhood: | North Camano | Map ID: | 567 |
| Neighborhood CD: | 06-C |
Owner |
| Name: | PARRY, EDWARD L | Owner ID: | 265639 |
| Mailing Address: | VERONICA M PARRY 594 W CROSS ISLAND RD CAMANO ISLAND, WA 98282-8664 | % Ownership: | 100.0000000000% |
| | | Exemptions: | |
Taxes and Assessment Details
Values
| (+) Improvement Homesite Value: | + | $0 | |
| (+) Improvement Non-Homesite Value: | + | $146,035 | |
| (+) Land Homesite Value: | + | $0 | |
| (+) Land Non-Homesite Value: | + | $300,000 | |
| (+) Curr Use (HS): | + | $0 | $0 |
| (+) Curr Use (NHS): | + | $0 | $0 |
| | | -------------------------- | |
| (=) Market Value: | = | $446,035 | |
| (–) Productivity Loss: | – | $0 | |
| | | -------------------------- | |
| (=) Subtotal: | = | $446,035 | |
| (+) Senior Appraised Value: | + | $0 | |
| (+) Non-Senior Appraised Value: | + | $446,035 | |
| | | -------------------------- | |
| (=) Total Appraised Value: | = | $446,035 | |
| (–) Senior Exemption Loss: | – | $0 | |
| (–) Exemption Loss: | – | $0 | |
| | | -------------------------- | |
| (=) Taxable Value: | = | $446,035 | |
Taxing Jurisdiction
| Owner: | PARRY, EDWARD L | | |
| % Ownership: | 100.0000000000% | | |
| Total Value: | $446,035 | | |
| Tax Area: | 512 - APPRAISER-Stan/Cam Schl Dist, improved, greater than 1 acre |
| CF | Conservation Futures | 0.0316035091 | $446,035 | $446,035 | $14.10 | | |
| EMS1 | Fire & Rescue Dist #1 Camano GEN (EMS) | 0.3677864386 | $446,035 | $446,035 | $164.05 | | |
| FIRE1 | Fire & Rescue Dist #1 Camano GEN | 1.2502910536 | $446,035 | $446,035 | $557.67 | | |
| FIRE1BOND | Fire & Rescue Dist #1 Camano BOND | 0.1570001679 | $446,035 | $446,035 | $70.03 | | |
| CE | County Current Expense | 0.3708482477 | $446,035 | $446,035 | $165.41 | | |
| CR | County Roads | 0.4584763726 | $446,035 | $446,035 | $204.50 | | |
| LCIB | Library Sno-Isle BOND (Camano Island) | 0.0396325772 | $446,035 | $446,035 | $17.68 | | |
| LIB | Library Sno-Isle GEN | 0.3153421757 | $446,035 | $446,035 | $140.65 | | |
| SCH205_401 | School 205-401 Enrichment | 1.2698420524 | $446,035 | $446,035 | $566.39 | | |
| SCH205BOND | School 205-401 BOND | 0.9396497583 | $446,035 | $446,035 | $419.12 | | |
| ST | State School | 1.3035497053 | $446,035 | $446,035 | $581.43 | | |
| ST2 | State School Part 2 | 0.8169543533 | $446,035 | $446,035 | $364.39 | | |
| | Total Tax Rate: | 7.3209764117 | | | | | |
| | | | | Taxes w/Current Exemptions: | $3,265.42 | | |
| | | | | Taxes w/o Exemptions: | $3,265.42 | | |
Improvement / Building
| Improvement #1: | MANUFACTURED HOME | State Code: | Y | 1552.5 sqft | Value: | $146,035 |
| Bathrooms: | 0 | Bedrooms: | 0 | | Ceiling: | PLASTER PAINTED | Cooling: | EVAP NO DUCT | | Exterior Wall/Cover: | VINYL | Floor Covering: | CARPET 100% | | Floor Structure: | SLAB ON GRADE | Foundation: | SLAB | | Heating: | FHA ELECTRIC | Interior Finish: | PLASTER | | Plumbing Fixture Cnt: | 1 | Roof Slope: | FLAT | | Roof Structure/Cover: | CJ ALUMINIUM HEAVY |   |   |
|
| | Type | Description | Class CD | Sub Class CD | Year Built | Area |
| | BAS | BASE/MAIN FLOOR | 4 | 0 | 1997 | 1552.5 |
| | DGR | DETACHED GARAGE | 4 | 0 | 1997 | 688.0 |
| | UTY | STORAGE/UTILITY | 4 | 0 | 1997 | 288.0 |
| | OWP | OPEN WOOD PORCH W/STEPS | 4 | 0 | 1997 | 416.0 |
| | OP3 | OPEN PORCH W/ROOF | 4 | 0 | 1997 | 202.5 |
| | OP1 | OPEN PORCH SLAB | 4 | 0 | 1997 | 30.0 |
| | OP1 | OPEN PORCH SLAB | 4 | 0 | 1997 | 208.0 |
| | OWR | OPEN WOOD PORCH W/STEPS/ROOF | 4 | 0 | 1997 | 85.0 |
| | OWP | OPEN WOOD PORCH W/STEPS | 4 | 0 | 1997 | 25.0 |
Sketch
Property Image
Land
| 1 | 17 | AC (01.01-02.00) | 1.1000 | 47916.00 | 0.00 | 0.00 | 1.00 | $300,000 | $0 |
Roll Value History
| 2026 | N/A | N/A | N/A | N/A | N/A |
| 2025 | $146,035 | $300,000 | $0 | $446,035 | $446,035 |
| 2024 | $150,330 | $290,000 | $0 | $440,330 | $440,330 |
| 2023 | $134,452 | $290,000 | $0 | $424,452 | $424,452 |
| 2022 | $108,006 | $260,000 | $0 | $368,006 | $368,006 |
| 2021 | $96,486 | $190,000 | $0 | $286,486 | $286,486 |
| 2020 | $96,172 | $150,000 | $0 | $246,172 | $246,172 |
| 2019 | $77,726 | $180,000 | $0 | $257,726 | $257,726 |
| 2018 | $79,693 | $150,000 | $0 | $229,693 | $229,693 |
| 2017 | $81,662 | $120,000 | $0 | $201,662 | $201,662 |
| 2016 | $74,034 | $130,000 | $0 | $204,034 | $204,034 |
| 2015 | $75,421 | $74,400 | $0 | $149,821 | $149,821 |
| 2014 | $76,809 | $74,400 | $0 | $151,209 | $151,209 |
| 2013 | $78,196 | $74,400 | $0 | $152,596 | $152,596 |
| 2012 | $79,584 | $74,400 | $0 | $153,984 | $153,984 |
| 2011 | $80,971 | $93,000 | $0 | $173,971 | $173,971 |
| 2010 | $92,352 | $93,000 | $0 | $185,352 | $185,352 |
| 2009 | $96,349 | $113,900 | $0 | $210,249 | $210,249 |
| 2008 | $98,807 | $115,000 | $0 | $213,807 | $213,807 |
| 2007 | $100,655 | $115,000 | $0 | $215,655 | $215,655 |
Deed and Sales History
| 1 | 07/07/2014 | EZ | Easement | PARRY, EDWARD L | PARRY, EDWARD L | | | $500.00 | 16321 | 4363558 |
| 2 | 04/04/2014 | WD | Warranty Deed | MLEEK LLC | PARRY, EDWARD L | | | $199,000.00 | 14894 | 4357886 |
| 3 | 10/17/2013 | TRUSTEED | Trustee's Deed | TOMA, GEORGE & KATHLEEN R | MLEEK LLC | | | $92,000.00 | 13137 | 4349919 |
| 4 | 07/01/1997 | WD | Warranty Deed | TOMA, GEORGE / | TOMA, GEORGE & | | | $33,000.00 | 72498 | 97011819 |
| 5 | 06/01/1997 | OTHER | Other - Misc. Documents | GARTIN, JACK D | TOMA, GEORGE / | | | $57,226.00 | 11111111 | 0 |
| 6 | 10/01/1994 | WD | Warranty Deed | FATKIN, GARY L | GARTIN, JACK D | | | $23,500.00 | 44254 | 94021988 |
| 7 | 03/01/1986 | WD | Warranty Deed | HANEGRAAF, THEODORE | FATKIN, GARY L | | | $9,000.00 | 60710 | 86003410 |
| 8 | 01/01/1900 | OTHER | Other - Misc. Documents | Unknown | HANEGRAAF, THEODORE | | | $0.00 | 0 | 0 |
Payout Agreement
| No payout information available.. |