Property
Account |
| Property ID: | 93240 | Abbreviated Legal Description: | 7 - W/2 S/2 E/2 E/2 SW SE SUB EZ |
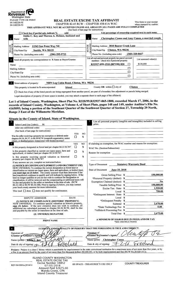
| Geographic ID: | R23226-040-3740 | Agent Code: | |
| Type: | Real | | |
| Tax Area: | 512 - APPRAISER-Stan/Cam Schl Dist, improved, greater than 1 acre | Land Use Code | 11 |
| Open Space: | N | DFL | N |
| Historic Property: | N | Remodel Property: | N |
| Multi-Family Redevelopment: | N | | |
| Township: | 32 | Section: | 26 |
| Range: | R2 |
Location |
| Address: | 512 W CROSS ISLAND RD CAMANO ISLAND, WA 98282 | Mapsco: | |
| Neighborhood: | North Camano | Map ID: | 567 |
| Neighborhood CD: | 06-C |
Owner |
| Name: | CIBERT, RYAN | Owner ID: | 284953 |
| Mailing Address: | HEIDI L CIBERT 512 CROSS ISLAND RD CAMANO ISLAND, WA 98282 | % Ownership: | 100.0000000000% |
| | | Exemptions: | |
Taxes and Assessment Details
Values
| (+) Improvement Homesite Value: | + | $0 | |
| (+) Improvement Non-Homesite Value: | + | $527,836 | |
| (+) Land Homesite Value: | + | $0 | |
| (+) Land Non-Homesite Value: | + | $310,000 | |
| (+) Curr Use (HS): | + | $0 | $0 |
| (+) Curr Use (NHS): | + | $0 | $0 |
| | | -------------------------- | |
| (=) Market Value: | = | $837,836 | |
| (–) Productivity Loss: | – | $0 | |
| | | -------------------------- | |
| (=) Subtotal: | = | $837,836 | |
| (+) Senior Appraised Value: | + | $0 | |
| (+) Non-Senior Appraised Value: | + | $837,836 | |
| | | -------------------------- | |
| (=) Total Appraised Value: | = | $837,836 | |
| (–) Senior Exemption Loss: | – | $0 | |
| (–) Exemption Loss: | – | $0 | |
| | | -------------------------- | |
| (=) Taxable Value: | = | $837,836 | |
Taxing Jurisdiction
| Owner: | CIBERT, RYAN | | |
| % Ownership: | 100.0000000000% | | |
| Total Value: | $837,836 | | |
| Tax Area: | 512 - APPRAISER-Stan/Cam Schl Dist, improved, greater than 1 acre |
| CF | Conservation Futures | 0.0316035091 | $837,836 | $837,836 | $26.48 | | |
| EMS1 | Fire & Rescue Dist #1 Camano GEN (EMS) | 0.3677864386 | $837,836 | $837,836 | $308.14 | | |
| FIRE1 | Fire & Rescue Dist #1 Camano GEN | 1.2502910536 | $837,836 | $837,836 | $1,047.54 | | |
| FIRE1BOND | Fire & Rescue Dist #1 Camano BOND | 0.1570001679 | $837,836 | $837,836 | $131.54 | | |
| CE | County Current Expense | 0.3708482477 | $837,836 | $837,836 | $310.71 | | |
| CR | County Roads | 0.4584763726 | $837,836 | $837,836 | $384.13 | | |
| LCIB | Library Sno-Isle BOND (Camano Island) | 0.0396325772 | $837,836 | $837,836 | $33.21 | | |
| LIB | Library Sno-Isle GEN | 0.3153421757 | $837,836 | $837,836 | $264.21 | | |
| SCH205_401 | School 205-401 Enrichment | 1.2698420524 | $837,836 | $837,836 | $1,063.92 | | |
| SCH205BOND | School 205-401 BOND | 0.9396497583 | $837,836 | $837,836 | $787.27 | | |
| ST | State School | 1.3035497053 | $837,836 | $837,836 | $1,092.16 | | |
| ST2 | State School Part 2 | 0.8169543533 | $837,836 | $837,836 | $684.47 | | |
| | Total Tax Rate: | 7.3209764117 | | | | | |
| | | | | Taxes w/Current Exemptions: | $6,133.78 | | |
| | | | | Taxes w/o Exemptions: | $6,133.78 | | |
Improvement / Building
| Improvement #1: | RESIDENTIAL | State Code: | Y | 2461.1 sqft | Value: | $527,836 |
| Bathrooms: | 3 | Bedrooms: | 3 | | Ceiling: | DRYWALL PAINTED | Cooling: | HEAT PUMP/CONV/V | | Exterior Wall/Cover: | CEMENT FIBER | Floor Covering: | CARPET/VINYL 20-80 | | Floor Structure: | WOOD W/SUBFLOOR | Foundation: | CONCRETE | | Interior Finish: | DRYWALL PAINT | Plumbing Fixture Cnt: | 12 | | Roof Slope: | 12" IN 12" | Roof Structure/Cover: | CJ ASPHALT |
|
| | Type | Description | Class CD | Sub Class CD | Year Built | Area |
| | BAS | BASE/MAIN FLOOR | 4 | 0 | 2020 | 1831.1 |
| | AGR | ATTACHED GARAGE | 4 | 0 | 2020 | 797.0 |
| | OP4 | OPEN PORCH W/CEILING-ROOF | 4 | 0 | 2020 | 198.1 |
| | OP4 | OPEN PORCH W/CEILING-ROOF | 4 | 0 | 2020 | 90.0 |
| | UPH | HALF STORY | 4 | 0 | 2020 | 630.0 |
Sketch
Property Image
Land
| 1 | 18 | AC (02.01-03.00) | 2.3900 | 104108.40 | 0.00 | 0.00 | 1.00 | $310,000 | $0 |
Roll Value History
| 2026 | N/A | N/A | N/A | N/A | N/A |
| 2025 | $527,836 | $310,000 | $0 | $837,836 | $837,836 |
| 2024 | $532,058 | $300,000 | $0 | $832,058 | $832,058 |
| 2023 | $536,280 | $300,000 | $0 | $836,280 | $836,280 |
| 2022 | $485,561 | $260,000 | $0 | $745,561 | $745,561 |
| 2021 | $429,911 | $190,000 | $0 | $619,911 | $619,911 |
| 2020 | $320,080 | $190,000 | $0 | $510,080 | $510,080 |
| 2019 | $0 | $100,000 | $0 | $100,000 | $100,000 |
| 2018 | $0 | $80,000 | $0 | $80,000 | $80,000 |
| 2017 | $0 | $90,000 | $0 | $90,000 | $90,000 |
| 2016 | $0 | $75,000 | $0 | $75,000 | $75,000 |
| 2015 | $0 | $67,096 | $0 | $67,096 | $67,096 |
| 2014 | $0 | $67,096 | $0 | $67,096 | $67,096 |
| 2013 | $0 | $67,096 | $0 | $67,096 | $67,096 |
| 2012 | $0 | $67,096 | $0 | $67,096 | $67,096 |
| 2011 | $0 | $82,400 | $0 | $82,400 | $82,400 |
| 2010 | $0 | $82,400 | $0 | $82,400 | $82,400 |
| 2009 | $0 | $90,900 | $0 | $90,900 | $90,900 |
| 2008 | $0 | $89,500 | $0 | $89,500 | $89,500 |
| 2007 | $0 | $89,500 | $0 | $89,500 | $89,500 |
Deed and Sales History
| 1 | 05/10/2018 | WD | Warranty Deed | SIMUNDS, GREGORY M & WENDY | CIBERT, RYAN | | | $105,000.00 | 34033 | 4444085 |
| 2 | 05/01/1991 | WD | Warranty Deed | LINDHOLM, RAYMOND J | SIMUNDS, GREGORY M | | | $15,750.00 | 11561 | 91006610 |
| 3 | 01/01/1990 | WD | Warranty Deed | HOLMES, RUSSELL A | LINDHOLM, RAYMOND J | | | $11,000.00 | 576 | 90001878 |
| 4 | 04/01/1978 | OTHER | Other - Misc. Documents | Unknown | HOLMES, RUSSELL A | | | $4,950.00 | 81992 | 3322330 |
Payout Agreement
| No payout information available.. |