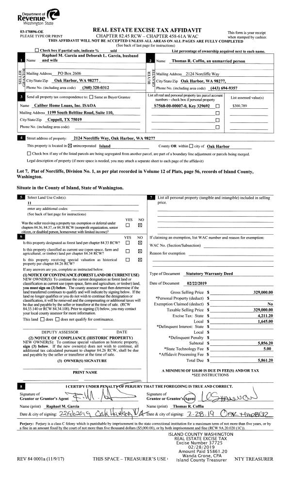
Property
Account |
| Property ID: | 93419 | Abbreviated Legal Description: | 38 - S/2 NE SE SE SUB EZ TGW & SUB EZ AF#95002155 |
| Geographic ID: | R23226-089-4990 | Agent Code: | |
| Type: | Real | | |
| Tax Area: | 512 - APPRAISER-Stan/Cam Schl Dist, improved, greater than 1 acre | Land Use Code | 11 |
| Open Space: | N | DFL | N |
| Historic Property: | N | Remodel Property: | N |
| Multi-Family Redevelopment: | N | | |
| Township: | 32 | Section: | 26 |
| Range: | R2 |
Location |
| Address: | 456 STEIN LN CAMANO ISLAND, WA 98282 | Mapsco: | |
| Neighborhood: | North Camano | Map ID: | 567 |
| Neighborhood CD: | 06-C |
Owner |
| Name: | GILES TTEE, STEPHEN BRUCE | Owner ID: | 288553 |
| Mailing Address: | LOIS MARUEEN GILES, TTEE DONNA ESTELLE GROUT, TTEE 456 STEIN LN CAMANO ISLAND, WA 98282 | % Ownership: | 100.0000000000% |
| | | Exemptions: | |
Taxes and Assessment Details
Values
| (+) Improvement Homesite Value: | + | $0 | |
| (+) Improvement Non-Homesite Value: | + | $630,921 | |
| (+) Land Homesite Value: | + | $0 | |
| (+) Land Non-Homesite Value: | + | $360,000 | |
| (+) Curr Use (HS): | + | $0 | $0 |
| (+) Curr Use (NHS): | + | $0 | $0 |
| | | -------------------------- | |
| (=) Market Value: | = | $990,921 | |
| (–) Productivity Loss: | – | $0 | |
| | | -------------------------- | |
| (=) Subtotal: | = | $990,921 | |
| (+) Senior Appraised Value: | + | $0 | |
| (+) Non-Senior Appraised Value: | + | $990,921 | |
| | | -------------------------- | |
| (=) Total Appraised Value: | = | $990,921 | |
| (–) Senior Exemption Loss: | – | $0 | |
| (–) Exemption Loss: | – | $0 | |
| | | -------------------------- | |
| (=) Taxable Value: | = | $990,921 | |
Taxing Jurisdiction
| Owner: | GILES TTEE, STEPHEN BRUCE | | |
| % Ownership: | 100.0000000000% | | |
| Total Value: | $990,921 | | |
| Tax Area: | 512 - APPRAISER-Stan/Cam Schl Dist, improved, greater than 1 acre |
| CF | Conservation Futures | 0.0316035091 | $990,921 | $990,921 | $31.32 | | |
| EMS1 | Fire & Rescue Dist #1 Camano GEN (EMS) | 0.3677864386 | $990,921 | $990,921 | $364.45 | | |
| FIRE1 | Fire & Rescue Dist #1 Camano GEN | 1.2502910536 | $990,921 | $990,921 | $1,238.94 | | |
| FIRE1BOND | Fire & Rescue Dist #1 Camano BOND | 0.1570001679 | $990,921 | $990,921 | $155.57 | | |
| CE | County Current Expense | 0.3708482477 | $990,921 | $990,921 | $367.48 | | |
| CR | County Roads | 0.4584763726 | $990,921 | $990,921 | $454.31 | | |
| LCIB | Library Sno-Isle BOND (Camano Island) | 0.0396325772 | $990,921 | $990,921 | $39.27 | | |
| LIB | Library Sno-Isle GEN | 0.3153421757 | $990,921 | $990,921 | $312.48 | | |
| SCH205_401 | School 205-401 Enrichment | 1.2698420524 | $990,921 | $990,921 | $1,258.31 | | |
| SCH205BOND | School 205-401 BOND | 0.9396497583 | $990,921 | $990,921 | $931.12 | | |
| ST | State School | 1.3035497053 | $990,921 | $990,921 | $1,291.71 | | |
| ST2 | State School Part 2 | 0.8169543533 | $990,921 | $990,921 | $809.54 | | |
| | Total Tax Rate: | 7.3209764117 | | | | | |
| | | | | Taxes w/Current Exemptions: | $7,254.50 | | |
| | | | | Taxes w/o Exemptions: | $7,254.50 | | |
Improvement / Building
| Improvement #1: | RESIDENTIAL | State Code: | Y | 1543.6 sqft | Value: | $396,649 |
| Bathrooms: | 1.5 | Bedrooms: | 1 | | Ceiling: | DRYWALL PAINTED | Cooling: | HEAT PUMP/CONV/V | | Exterior Wall/Cover: | CEMENT FIBER | Floor Covering: | CARPET/VINYL 60-40 | | Floor Structure: | WOOD W/SUBFLOOR | Foundation: | CONCRETE | | Interior Finish: | DRYWALL PAINT | Plumbing Fixture Cnt: | 9 | | Roof Slope: | 4" IN 12" | Roof Structure/Cover: | CJ ASPHALT |
|
| | Type | Description | Class CD | Sub Class CD | Year Built | Area |
| | BAS | BASE/MAIN FLOOR | 3 | 0 | 2007 | 1543.6 |
| | OP4 | OPEN PORCH W/CEILING-ROOF | 3 | 0 | 2007 | 651.0 |
| | AGR | ATTACHED GARAGE | 3 | 0 | 2007 | 1607.6 |
| | CPD | OPEN CARPORT DIRT FLOOR | 3 | 0 | 2007 | 785.4 |
| Improvement #2: | RESIDENTIAL | State Code: | Y | 1035.6 sqft | Value: | $234,272 |
| Bathrooms: | 1.5 | Bedrooms: | 2 | | Ceiling: | DRYWALL PAINTED | Cooling: | HEAT PUMP/CONV/V | | Exterior Wall/Cover: | CEMENT FIBER | Floor Covering: | CARPET/VINYL 80-20 | | Floor Structure: | WOOD W/SUBFLOOR | Foundation: | CONCRETE | | Interior Finish: | DRYWALL PAINT | Plumbing Fixture Cnt: | 8 | | Roof Slope: | 4" IN 12" | Roof Structure/Cover: | CJ ASPHALT |
|
| | Type | Description | Class CD | Sub Class CD | Year Built | Area |
| | BAS | BASE/MAIN FLOOR | 3 | 0 | 2007 | 1035.6 |
| | OP4 | OPEN PORCH W/CEILING-ROOF | 3 | 0 | 2007 | 16.0 |
| | AGR | ATTACHED GARAGE | 3 | 0 | 2007 | 623.1 |
Sketch
Property Image
Land
| 1 | 32 | AC (03.01-09.99) | 5.0000 | 0.00 | 0.00 | 0.00 | 1.00 | $360,000 | $0 |
Roll Value History
| 2026 | N/A | N/A | N/A | N/A | N/A |
| 2025 | $630,921 | $360,000 | $0 | $990,921 | $990,921 |
| 2024 | $636,223 | $340,000 | $0 | $976,223 | $976,223 |
| 2023 | $641,878 | $320,000 | $0 | $961,878 | $961,878 |
| 2022 | $565,809 | $300,000 | $0 | $865,809 | $865,809 |
| 2021 | $478,966 | $230,000 | $0 | $708,966 | $708,966 |
| 2020 | $465,860 | $190,000 | $0 | $655,860 | $655,860 |
| 2019 | $335,373 | $220,000 | $0 | $555,373 | $555,373 |
| 2018 | $336,302 | $175,000 | $0 | $511,302 | $511,302 |
| 2017 | $338,159 | $150,000 | $0 | $488,159 | $488,159 |
| 2016 | $337,513 | $150,000 | $0 | $487,513 | $267,345 |
| 2015 | $341,263 | $112,000 | $0 | $453,263 | $254,448 |
| 2014 | $345,013 | $112,000 | $0 | $457,013 | $387,013 |
| 2013 | $348,765 | $112,000 | $0 | $460,765 | $390,765 |
| 2012 | $352,515 | $112,000 | $0 | $464,515 | $394,515 |
| 2011 | $356,264 | $140,000 | $0 | $496,264 | $496,264 |
| 2010 | $367,513 | $140,000 | $0 | $507,513 | $507,513 |
| 2009 | $382,710 | $167,500 | $0 | $550,210 | $550,210 |
| 2008 | $382,992 | $217,500 | $0 | $600,492 | $600,492 |
| 2007 | $280,982 | $217,500 | $0 | $498,482 | $498,482 |
Deed and Sales History
| 1 | 01/14/2019 | QCD | Quit Claim Deed | GILES, STEPHEN B. | GILES TTEE, STEPHEN BRUCE | | | $0.00 | 37357 | 4458180 |
| 2 | 04/28/2017 | WD | Warranty Deed | KENNAUGH, CRAIG | GILES, STEPHEN B. | | | $725,000.00 | 29094 | 4421647 |
| 3 | 11/07/2005 | WD | Warranty Deed | BALLESTRASSE, ROY/PATRICIA& | KENNAUGH, CRAIG | | | $149,000.00 | 55771 | 4154360 |
| 4 | 02/01/1995 | WD | Warranty Deed | PRINSEN, MAX P | BALLESTRASSE, ROY/PATRICIA& | | | $45,000.00 | 50445 | 95002156 |
| 5 | 10/01/1994 | QCD | Quit Claim Deed | PRINSEN, MAX C | PRINSEN, MAX P | | | $0.00 | 44177 | 94021726 |
| 6 | 04/01/1978 | OTHER | Other - Misc. Documents | Unknown | PRINSEN, MAX C | | | $10,500.00 | 81532 | 3308160 |
Payout Agreement
| No payout information available.. |