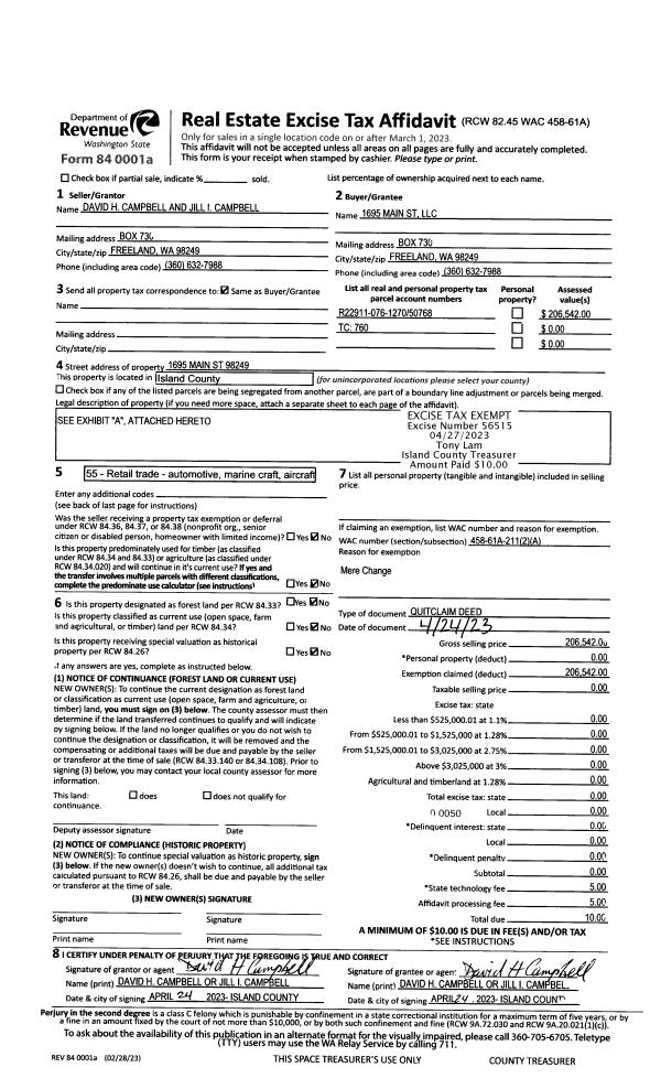
Property
Account |
| Property ID: | 93437 | Abbreviated Legal Description: | 5.0000 Acres ins Section 26s Township 32s Range R2s BLA 025/21 AF#4545216;s |
| Geographic ID: | R23226-105-2840 | Agent Code: | |
| Type: | Real | | |
| Tax Area: | 512 - APPRAISER-Stan/Cam Schl Dist, improved, greater than 1 acre | Land Use Code | 11 |
| Open Space: | N | DFL | N |
| Historic Property: | N | Remodel Property: | N |
| Multi-Family Redevelopment: | N | | |
| Township: | 32 | Section: | 26 |
| Range: | R2 |
Location |
| Address: | 465 THUMPER LN CAMANO ISLAND, WA 98282 | Mapsco: | |
| Neighborhood: | North Camano | Map ID: | 567 |
| Neighborhood CD: | 06-C |
Owner |
| Name: | FLAKE, DAVID A | Owner ID: | 26358 |
| Mailing Address: | SHERILYN FLAKE 465 THUMPER LN CAMANO ISLAND, WA 98282 | % Ownership: | 100.0000000000% |
| | | Exemptions: | |
Taxes and Assessment Details
Values
| (+) Improvement Homesite Value: | + | $0 | |
| (+) Improvement Non-Homesite Value: | + | $308,210 | |
| (+) Land Homesite Value: | + | $0 | |
| (+) Land Non-Homesite Value: | + | $360,000 | |
| (+) Curr Use (HS): | + | $0 | $0 |
| (+) Curr Use (NHS): | + | $0 | $0 |
| | | -------------------------- | |
| (=) Market Value: | = | $668,210 | |
| (–) Productivity Loss: | – | $0 | |
| | | -------------------------- | |
| (=) Subtotal: | = | $668,210 | |
| (+) Senior Appraised Value: | + | $0 | |
| (+) Non-Senior Appraised Value: | + | $668,210 | |
| | | -------------------------- | |
| (=) Total Appraised Value: | = | $668,210 | |
| (–) Senior Exemption Loss: | – | $0 | |
| (–) Exemption Loss: | – | $0 | |
| | | -------------------------- | |
| (=) Taxable Value: | = | $668,210 | |
Taxing Jurisdiction
| Owner: | FLAKE, DAVID A | | |
| % Ownership: | 100.0000000000% | | |
| Total Value: | $668,210 | | |
| Tax Area: | 512 - APPRAISER-Stan/Cam Schl Dist, improved, greater than 1 acre |
| CF | Conservation Futures | 0.0316035091 | $668,210 | $668,210 | $21.12 | | |
| EMS1 | Fire & Rescue Dist #1 Camano GEN (EMS) | 0.3677864386 | $668,210 | $668,210 | $245.76 | | |
| FIRE1 | Fire & Rescue Dist #1 Camano GEN | 1.2502910536 | $668,210 | $668,210 | $835.46 | | |
| FIRE1BOND | Fire & Rescue Dist #1 Camano BOND | 0.1570001679 | $668,210 | $668,210 | $104.91 | | |
| CE | County Current Expense | 0.3708482477 | $668,210 | $668,210 | $247.80 | | |
| CR | County Roads | 0.4584763726 | $668,210 | $668,210 | $306.36 | | |
| LCIB | Library Sno-Isle BOND (Camano Island) | 0.0396325772 | $668,210 | $668,210 | $26.48 | | |
| LIB | Library Sno-Isle GEN | 0.3153421757 | $668,210 | $668,210 | $210.71 | | |
| SCH205_401 | School 205-401 Enrichment | 1.2698420524 | $668,210 | $668,210 | $848.52 | | |
| SCH205BOND | School 205-401 BOND | 0.9396497583 | $668,210 | $668,210 | $627.88 | | |
| ST | State School | 1.3035497053 | $668,210 | $668,210 | $871.04 | | |
| ST2 | State School Part 2 | 0.8169543533 | $668,210 | $668,210 | $545.90 | | |
| | Total Tax Rate: | 7.3209764117 | | | | | |
| | | | | Taxes w/Current Exemptions: | $4,891.94 | | |
| | | | | Taxes w/o Exemptions: | $4,891.94 | | |
Improvement / Building
| Improvement #1: | RESIDENTIAL | State Code: | Y | 2757.0 sqft | Value: | $308,210 |
| Bathrooms: | 2.5 | Bedrooms: | 3 | | Ceiling: | BEAM PAINTED | Exterior Wall/Cover: | CEMENT FIBER | | Floor Covering: | CARPET/VINYL 80-20 | Floor Structure: | SLAB ON GRADE | | Foundation: | SLAB | Heating: | WALL HEAT ELECTRIC | | Interior Finish: | DRYWALL PAINT | Plumbing Fixture Cnt: | 11 | | Roof Slope: | 6" IN 12" | Roof Structure/Cover: | BEAM ASPHALT |
|
| | Type | Description | Class CD | Sub Class CD | Year Built | Area |
| | BAS | BASE/MAIN FLOOR | 3 | 0 | 1980 | 1226.0 |
| | UB8 | BASEMENT UNFINISHED 8" | 3 | 0 | 1980 | 450.0 |
| | BIG | BUILT IN GARAGE | 3 | 0 | 1980 | 1008.0 |
| | UPS | UPPER STORY | 3 | 0 | 1980 | 544.0 |
| | UPS | UPPER STORY | 3 | 0 | 1980 | 624.0 |
| | BAW | BALCONY WOOD RAIL | 3 | 0 | 1980 | 60.0 |
| | ATU | ATTIC UNFINISHED | 3 | 0 | 1980 | 330.0 |
| | OWP | OPEN WOOD PORCH W/STEPS | 3 | 0 | 1980 | 882.0 |
| | oUTI | UTILITY | 3 | 0 | 1980 | 360.0 |
| | DWN | DOWNSTAIRS LIVING AREA | 3 | 0 | 1980 | 363.0 |
Sketch
Property Image
Land
| 1 | 32 | AC (03.01-09.99) | 5.0000 | 217800.00 | 0.00 | 0.00 | 1.00 | $360,000 | $0 |
Roll Value History
| 2026 | N/A | N/A | N/A | N/A | N/A |
| 2025 | $308,210 | $360,000 | $0 | $668,210 | $668,210 |
| 2024 | $305,991 | $340,000 | $0 | $645,991 | $645,991 |
| 2023 | $310,210 | $320,000 | $0 | $630,210 | $630,210 |
| 2022 | $271,334 | $300,000 | $0 | $571,334 | $571,334 |
| 2021 | $239,326 | $230,000 | $0 | $469,326 | $469,326 |
| 2020 | $234,092 | $190,000 | $0 | $424,092 | $424,092 |
| 2019 | $182,177 | $220,000 | $0 | $402,177 | $402,177 |
| 2018 | $182,780 | $175,000 | $0 | $357,780 | $357,780 |
| 2017 | $183,983 | $150,000 | $0 | $333,983 | $333,983 |
| 2016 | $170,313 | $150,000 | $0 | $320,313 | $320,313 |
| 2015 | $172,677 | $108,864 | $0 | $281,541 | $281,541 |
| 2014 | $175,043 | $108,864 | $0 | $283,907 | $283,907 |
| 2013 | $177,410 | $108,864 | $0 | $286,274 | $286,274 |
| 2012 | $179,773 | $108,864 | $0 | $288,637 | $288,637 |
| 2011 | $182,139 | $136,080 | $0 | $318,219 | $318,219 |
| 2010 | $184,821 | $136,080 | $0 | $320,901 | $320,901 |
| 2009 | $192,232 | $163,753 | $0 | $355,985 | $355,985 |
| 2008 | $185,750 | $209,463 | $0 | $395,213 | $395,213 |
| 2007 | $156,065 | $206,878 | $0 | $362,943 | $362,943 |
Deed and Sales History
| 1 | 04/07/2009 | BLA | DNU - Boundary Line Adjustment | FLAKE, DAVID A | FLAKE, DAVID A | | | $0.00 | 81150 | 4216342 |
| 2 | 10/24/2000 | WD | Warranty Deed | TILTON, SONJA | FLAKE, DAVID A | | | $164,000.00 | 4283 | 20019587 |
| 3 | 07/01/1989 | QCD | Quit Claim Deed | TILTON, SONJA & | TILTON, SONJA | | | $0.00 | 92948 | 89009897 |
| 4 | 01/01/1900 | OTHER | Other - Misc. Documents | Unknown | TILTON, SONJA & | | | $0.00 | 0 | 0 |
Payout Agreement
| No payout information available.. |