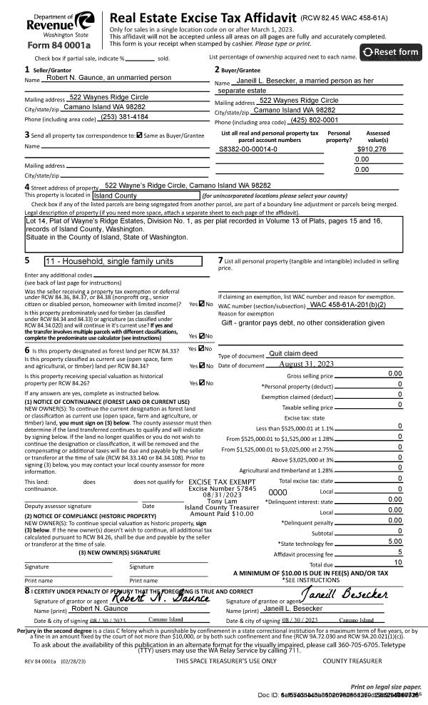
Property
Account |
| Property ID: | 93570 | Abbreviated Legal Description: | 36 - SE NE SE EX N30' & EX E20' FOR RDS |
| Geographic ID: | R23226-170-4990 | Agent Code: | |
| Type: | Real | | |
| Tax Area: | 519 - APPRAISER-Stan/Cam Schl Dist, vacant & 50 acres or less | Land Use Code | 91 |
| Open Space: | N | DFL | N |
| Historic Property: | N | Remodel Property: | N |
| Multi-Family Redevelopment: | N | | |
| Township: | 32 | Section: | 26 |
| Range: | R2 |
Location |
| Address: | | Mapsco: | |
| Neighborhood: | North Camano | Map ID: | 567 |
| Neighborhood CD: | 06-C |
Owner |
| Name: | RUSSELL, M PAUL & REGINA M | Owner ID: | 58965 |
| Mailing Address: | CO-TRUSTEES C/O JOANNA DOOLEY 7710 FOREST DR NE SEATTLE, WA 98115 | % Ownership: | 100.0000000000% |
| | | Exemptions: | |
Taxes and Assessment Details
Values
| (+) Improvement Homesite Value: | + | $0 | |
| (+) Improvement Non-Homesite Value: | + | $0 | |
| (+) Land Homesite Value: | + | $0 | |
| (+) Land Non-Homesite Value: | + | $260,000 | |
| (+) Curr Use (HS): | + | $0 | $0 |
| (+) Curr Use (NHS): | + | $0 | $0 |
| | | -------------------------- | |
| (=) Market Value: | = | $260,000 | |
| (–) Productivity Loss: | – | $0 | |
| | | -------------------------- | |
| (=) Subtotal: | = | $260,000 | |
| (+) Senior Appraised Value: | + | $0 | |
| (+) Non-Senior Appraised Value: | + | $260,000 | |
| | | -------------------------- | |
| (=) Total Appraised Value: | = | $260,000 | |
| (–) Senior Exemption Loss: | – | $0 | |
| (–) Exemption Loss: | – | $0 | |
| | | -------------------------- | |
| (=) Taxable Value: | = | $260,000 | |
Taxing Jurisdiction
| Owner: | RUSSELL, M PAUL & REGINA M | | |
| % Ownership: | 100.0000000000% | | |
| Total Value: | $260,000 | | |
| Tax Area: | 519 - APPRAISER-Stan/Cam Schl Dist, vacant & 50 acres or less |
| CF | Conservation Futures | 0.0316035091 | $260,000 | $260,000 | $8.22 | | |
| EMS1 | Fire & Rescue Dist #1 Camano GEN (EMS) | 0.3677864386 | $260,000 | $260,000 | $95.62 | | |
| CE | County Current Expense | 0.3708482477 | $260,000 | $260,000 | $96.42 | | |
| CR | County Roads | 0.4584763726 | $260,000 | $260,000 | $119.20 | | |
| LCIB | Library Sno-Isle BOND (Camano Island) | 0.0396325772 | $260,000 | $260,000 | $10.30 | | |
| LIB | Library Sno-Isle GEN | 0.3153421757 | $260,000 | $260,000 | $81.99 | | |
| SCH205_401 | School 205-401 Enrichment | 1.2698420524 | $260,000 | $260,000 | $330.16 | | |
| SCH205BOND | School 205-401 BOND | 0.9396497583 | $260,000 | $260,000 | $244.31 | | |
| ST | State School | 1.3035497053 | $260,000 | $260,000 | $338.92 | | |
| ST2 | State School Part 2 | 0.8169543533 | $260,000 | $260,000 | $212.41 | | |
| | Total Tax Rate: | 5.9136851902 | | | | | |
| | | | | Taxes w/Current Exemptions: | $1,537.55 | | |
| | | | | Taxes w/o Exemptions: | $1,537.55 | | |
Improvement / Building
Sketch
| No sketches available for this property. |
Property Image
Land
| 1 | 32 | AC (03.01-09.99) | 9.2700 | 403801.20 | 0.00 | 0.00 | 1.00 | $260,000 | $0 |
Roll Value History
| 2026 | N/A | N/A | N/A | N/A | N/A |
| 2025 | $0 | $260,000 | $0 | $260,000 | $260,000 |
| 2024 | $0 | $240,000 | $0 | $240,000 | $240,000 |
| 2023 | $0 | $200,000 | $0 | $200,000 | $200,000 |
| 2022 | $0 | $180,000 | $0 | $180,000 | $180,000 |
| 2021 | $0 | $160,000 | $0 | $160,000 | $160,000 |
| 2020 | $0 | $130,000 | $0 | $130,000 | $130,000 |
| 2019 | $0 | $140,000 | $0 | $140,000 | $140,000 |
| 2018 | $0 | $120,000 | $0 | $120,000 | $120,000 |
| 2017 | $0 | $140,000 | $0 | $140,000 | $140,000 |
| 2016 | $0 | $140,000 | $0 | $140,000 | $140,000 |
| 2015 | $0 | $120,510 | $0 | $120,510 | $120,510 |
| 2014 | $0 | $120,510 | $0 | $120,510 | $120,510 |
| 2013 | $0 | $120,510 | $0 | $120,510 | $120,510 |
| 2012 | $0 | $120,510 | $0 | $120,510 | $120,510 |
| 2011 | $0 | $120,510 | $0 | $120,510 | $120,510 |
| 2010 | $0 | $120,510 | $0 | $120,510 | $120,510 |
| 2009 | $0 | $185,400 | $0 | $185,400 | $185,400 |
| 2008 | $0 | $206,910 | $0 | $206,910 | $206,910 |
| 2007 | $0 | $120,000 | $0 | $120,000 | $120,000 |
Deed and Sales History
| 1 | 06/10/2002 | WD | Warranty Deed | RUSSELL, M P | RUSSELL, M PAUL & REGINA M | | | $0.00 | 22282 | 4023953 |
| 2 | 06/01/1988 | OTHER | Other - Misc. Documents | CLARKE, CASSIMEAR J | RUSSELL, M P | | | $0.00 | 62685 | 88000716 |
| 3 | 08/01/1983 | PACD | Purchaser's Assignment | CONN, THOMAS A | CLARKE, CASSIMEAR J | | | $0.00 | 32481 | 414404 |
| 4 | 05/01/1981 | EXECUTORD | Executor Deed | ANDERSON, ROBERT W | CONN, THOMAS A | | | $35,000.00 | 11639 | 383551 |
| 5 | 09/01/1978 | OTHER | Other - Misc. Documents | Unknown | ANDERSON, ROBERT W | | | $17,500.00 | 85117 | 341445 |
Payout Agreement
| No payout information available.. |