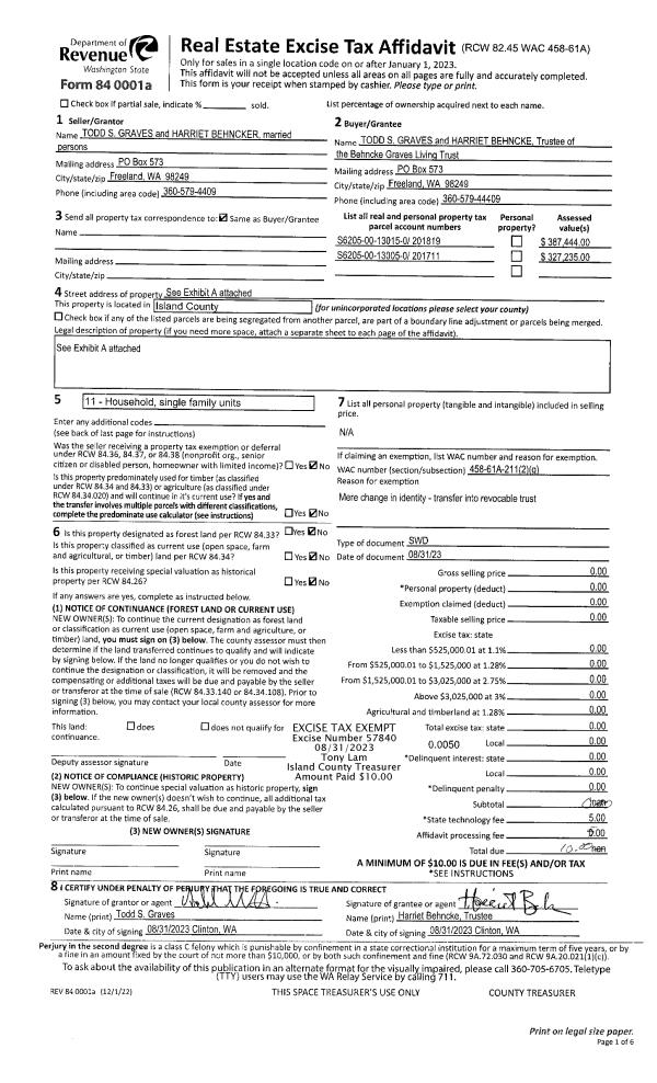
Property
Account |
| Property ID: | 93703 | Abbreviated Legal Description: | 81 - N/2 NE NW SW |
| Geographic ID: | R23226-255-1080 | Agent Code: | |
| Type: | Real | | |
| Tax Area: | 512 - APPRAISER-Stan/Cam Schl Dist, improved, greater than 1 acre | Land Use Code | 11 |
| Open Space: | N | DFL | N |
| Historic Property: | N | Remodel Property: | N |
| Multi-Family Redevelopment: | N | | |
| Township: | 32 | Section: | 26 |
| Range: | R2 |
Location |
| Address: | 585 N WEST CAMANO DR CAMANO ISLAND, WA 98282 | Mapsco: | |
| Neighborhood: | North Camano | Map ID: | 566 |
| Neighborhood CD: | 06-C |
Owner |
| Name: | AANONSON, LOUIS A | Owner ID: | 181215 |
| Mailing Address: | DAYNA A AANONSON 585 N WEST CAMANO DR CAMANO ISLAND, WA 98282-8649 | % Ownership: | 100.0000000000% |
| | | Exemptions: | |
Taxes and Assessment Details
Values
| (+) Improvement Homesite Value: | + | $0 | |
| (+) Improvement Non-Homesite Value: | + | $134,981 | |
| (+) Land Homesite Value: | + | $0 | |
| (+) Land Non-Homesite Value: | + | $360,000 | |
| (+) Curr Use (HS): | + | $0 | $0 |
| (+) Curr Use (NHS): | + | $0 | $0 |
| | | -------------------------- | |
| (=) Market Value: | = | $494,981 | |
| (–) Productivity Loss: | – | $0 | |
| | | -------------------------- | |
| (=) Subtotal: | = | $494,981 | |
| (+) Senior Appraised Value: | + | $0 | |
| (+) Non-Senior Appraised Value: | + | $494,981 | |
| | | -------------------------- | |
| (=) Total Appraised Value: | = | $494,981 | |
| (–) Senior Exemption Loss: | – | $0 | |
| (–) Exemption Loss: | – | $0 | |
| | | -------------------------- | |
| (=) Taxable Value: | = | $494,981 | |
Taxing Jurisdiction
| Owner: | AANONSON, LOUIS A | | |
| % Ownership: | 100.0000000000% | | |
| Total Value: | $494,981 | | |
| Tax Area: | 512 - APPRAISER-Stan/Cam Schl Dist, improved, greater than 1 acre |
| CF | Conservation Futures | 0.0316035091 | $494,981 | $494,981 | $15.64 | | |
| EMS1 | Fire & Rescue Dist #1 Camano GEN (EMS) | 0.3677864386 | $494,981 | $494,981 | $182.05 | | |
| FIRE1 | Fire & Rescue Dist #1 Camano GEN | 1.2502910536 | $494,981 | $494,981 | $618.87 | | |
| FIRE1BOND | Fire & Rescue Dist #1 Camano BOND | 0.1570001679 | $494,981 | $494,981 | $77.71 | | |
| CE | County Current Expense | 0.3708482477 | $494,981 | $494,981 | $183.56 | | |
| CR | County Roads | 0.4584763726 | $494,981 | $494,981 | $226.94 | | |
| LCIB | Library Sno-Isle BOND (Camano Island) | 0.0396325772 | $494,981 | $494,981 | $19.62 | | |
| LIB | Library Sno-Isle GEN | 0.3153421757 | $494,981 | $494,981 | $156.09 | | |
| SCH205_401 | School 205-401 Enrichment | 1.2698420524 | $494,981 | $494,981 | $628.55 | | |
| SCH205BOND | School 205-401 BOND | 0.9396497583 | $494,981 | $494,981 | $465.11 | | |
| ST | State School | 1.3035497053 | $494,981 | $494,981 | $645.23 | | |
| ST2 | State School Part 2 | 0.8169543533 | $494,981 | $494,981 | $404.38 | | |
| | Total Tax Rate: | 7.3209764117 | | | | | |
| | | | | Taxes w/Current Exemptions: | $3,623.75 | | |
| | | | | Taxes w/o Exemptions: | $3,623.75 | | |
Improvement / Building
| Improvement #1: | MANUFACTURED HOME | State Code: | Y | 1080.0 sqft | Value: | $134,981 |
| Bathrooms: | 0 | Bedrooms: | 0 | | Ceiling: | PLASTER PAINTED | Cooling: | EVAP NO DUCT | | Exterior Wall/Cover: | VINYL | Floor Covering: | CARPET 100% | | Floor Structure: | SLAB ON GRADE | Foundation: | SLAB | | Heating: | FHA ELECTRIC | Interior Finish: | PLASTER | | Plumbing Fixture Cnt: | 1 | Roof Slope: | FLAT | | Roof Structure/Cover: | CJ ALUMINIUM HEAVY |   |   |
|
| | Type | Description | Class CD | Sub Class CD | Year Built | Area |
| | BAS | BASE/MAIN FLOOR | 4 | 0 | 1998 | 1080.0 |
| | oOBD | Out Buildings | 3 | 0 | 1998 | 0.0 |
| | OWP | OPEN WOOD PORCH W/STEPS | 3 | 0 | 1998 | 120.0 |
| | ENP | ENCLOSED PORCH | 3 | 0 | 1998 | 270.0 |
Sketch
Property Image
Land
| 1 | 32 | AC (03.01-09.99) | 4.7700 | 207781.20 | 0.00 | 0.00 | 1.00 | $360,000 | $0 |
Roll Value History
| 2026 | N/A | N/A | N/A | N/A | N/A |
| 2025 | $134,981 | $360,000 | $0 | $494,981 | $494,981 |
| 2024 | $136,439 | $340,000 | $0 | $476,439 | $476,439 |
| 2023 | $125,093 | $320,000 | $0 | $445,093 | $445,093 |
| 2022 | $107,351 | $300,000 | $0 | $407,351 | $407,351 |
| 2021 | $99,016 | $230,000 | $0 | $329,016 | $329,016 |
| 2020 | $98,691 | $190,000 | $0 | $288,691 | $288,691 |
| 2019 | $85,448 | $220,000 | $0 | $305,448 | $305,448 |
| 2018 | $86,785 | $175,000 | $0 | $261,785 | $261,785 |
| 2017 | $87,453 | $150,000 | $0 | $237,453 | $237,453 |
| 2016 | $80,372 | $140,800 | $0 | $221,172 | $221,172 |
| 2015 | $81,530 | $107,648 | $0 | $189,178 | $189,178 |
| 2014 | $82,109 | $107,648 | $0 | $189,757 | $189,757 |
| 2013 | $83,267 | $107,648 | $0 | $190,915 | $190,915 |
| 2012 | $83,846 | $107,648 | $0 | $191,494 | $191,494 |
| 2011 | $84,425 | $93,800 | $0 | $178,225 | $178,225 |
| 2010 | $83,910 | $93,800 | $0 | $177,710 | $177,710 |
| 2009 | $87,058 | $115,800 | $0 | $202,858 | $202,858 |
| 2008 | $89,074 | $121,295 | $0 | $210,369 | $210,369 |
| 2007 | $91,633 | $121,295 | $0 | $212,928 | $212,928 |
Deed and Sales History
| 1 | 08/11/1999 | OTHER | Other - Misc. Documents | WATKINS, KENNETH R | AANONSON, LOUIS A | | | $37,500.00 | 93320 | 0 |
| 2 | 08/11/1999 | WD | Warranty Deed | AANONSON, LOUIS A | AANONSON, LOUIS A | | | $90,000.00 | 93313 | 99019045 |
| 3 | 01/01/1997 | ESTSEPPROP | Establish Separate Property | WATKINS, NORMA C | WATKINS, KENNETH R | | | $0.00 | 70363 | 97001566 |
| 4 | 08/01/1994 | QCD | Quit Claim Deed | WATKINS, KENNETH R | WATKINS, NORMA C | | | $0.00 | 43429 | 94018221 |
| 5 | 10/01/1993 | WD | Warranty Deed | WILSON, CLEO J | WATKINS, KENNETH R | | | $23,000.00 | 34132 | 93021610 |
| 6 | 07/01/1986 | DECREE | Divorce Decree/Legal Separation | WATKINS, KENNETH R | WILSON, CLEO J | | | $0.00 | 61720 | 0 |
| 7 | 01/01/1900 | OTHER | Other - Misc. Documents | WILSON, WILLIAM R | WATKINS, KENNETH R | | | $0.00 | 0 | 0 |
| 8 | 01/01/1900 | OTHER | Other - Misc. Documents | Unknown | WILSON, WILLIAM R | | | $0.00 | 0 | 0 |
Payout Agreement
| No payout information available.. |