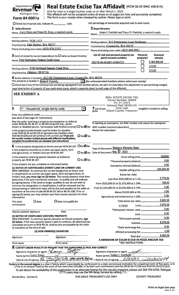
Property
Account |
| Property ID: | 93810 | Abbreviated Legal Description: | 63 - SW SE NW LY NLY OF RD EX W20' & EX N250' OF W368 |
| Geographic ID: | R23226-319-1860 | Agent Code: | |
| Type: | Real | | |
| Tax Area: | 512 - APPRAISER-Stan/Cam Schl Dist, improved, greater than 1 acre | Land Use Code | 11 |
| Open Space: | N | DFL | N |
| Historic Property: | N | Remodel Property: | N |
| Multi-Family Redevelopment: | N | | |
| Township: | 32 | Section: | 26 |
| Range: | R2 |
Location |
| Address: | 660 DODGE RD CAMANO ISLAND, WA 98282 | Mapsco: | |
| Neighborhood: | North Camano | Map ID: | 568 |
| Neighborhood CD: | 06-C |
Owner |
| Name: | FIGLEY, DAVID | Owner ID: | 307293 |
| Mailing Address: | LAURA FERGUSON FIGLEY 660 DODGE RD CAMANO ISLAND, WA 98282 | % Ownership: | 100.0000000000% |
| | | Exemptions: | |
Taxes and Assessment Details
Values
| (+) Improvement Homesite Value: | + | $0 | |
| (+) Improvement Non-Homesite Value: | + | $268,080 | |
| (+) Land Homesite Value: | + | $0 | |
| (+) Land Non-Homesite Value: | + | $360,000 | |
| (+) Curr Use (HS): | + | $0 | $0 |
| (+) Curr Use (NHS): | + | $0 | $0 |
| | | -------------------------- | |
| (=) Market Value: | = | $628,080 | |
| (–) Productivity Loss: | – | $0 | |
| | | -------------------------- | |
| (=) Subtotal: | = | $628,080 | |
| (+) Senior Appraised Value: | + | $0 | |
| (+) Non-Senior Appraised Value: | + | $628,080 | |
| | | -------------------------- | |
| (=) Total Appraised Value: | = | $628,080 | |
| (–) Senior Exemption Loss: | – | $0 | |
| (–) Exemption Loss: | – | $0 | |
| | | -------------------------- | |
| (=) Taxable Value: | = | $628,080 | |
Taxing Jurisdiction
| Owner: | FIGLEY, DAVID | | |
| % Ownership: | 100.0000000000% | | |
| Total Value: | $628,080 | | |
| Tax Area: | 512 - APPRAISER-Stan/Cam Schl Dist, improved, greater than 1 acre |
| CF | Conservation Futures | 0.0316035091 | $628,080 | $628,080 | $19.85 | | |
| EMS1 | Fire & Rescue Dist #1 Camano GEN (EMS) | 0.3677864386 | $628,080 | $628,080 | $231.00 | | |
| FIRE1 | Fire & Rescue Dist #1 Camano GEN | 1.2502910536 | $628,080 | $628,080 | $785.28 | | |
| FIRE1BOND | Fire & Rescue Dist #1 Camano BOND | 0.1570001679 | $628,080 | $628,080 | $98.61 | | |
| CE | County Current Expense | 0.3708482477 | $628,080 | $628,080 | $232.92 | | |
| CR | County Roads | 0.4584763726 | $628,080 | $628,080 | $287.96 | | |
| LCIB | Library Sno-Isle BOND (Camano Island) | 0.0396325772 | $628,080 | $628,080 | $24.89 | | |
| LIB | Library Sno-Isle GEN | 0.3153421757 | $628,080 | $628,080 | $198.06 | | |
| SCH205_401 | School 205-401 Enrichment | 1.2698420524 | $628,080 | $628,080 | $797.56 | | |
| SCH205BOND | School 205-401 BOND | 0.9396497583 | $628,080 | $628,080 | $590.18 | | |
| ST | State School | 1.3035497053 | $628,080 | $628,080 | $818.73 | | |
| ST2 | State School Part 2 | 0.8169543533 | $628,080 | $628,080 | $513.11 | | |
| | Total Tax Rate: | 7.3209764117 | | | | | |
| | | | | Taxes w/Current Exemptions: | $4,598.15 | | |
| | | | | Taxes w/o Exemptions: | $4,598.15 | | |
Improvement / Building
| Improvement #1: | MANUFACTURED HOME | State Code: | Y | 1818.0 sqft | Value: | $268,080 |
| Bathrooms: | 0 | Bedrooms: | 0 | | Ceiling: | PLASTER PAINTED | Cooling: | EVAP NO DUCT | | Exterior Wall/Cover: | VINYL | Floor Covering: | CARPET 100% | | Floor Structure: | SLAB ON GRADE | Foundation: | SLAB | | Heating: | FHA ELECTRIC | Interior Finish: | PLASTER | | Plumbing Fixture Cnt: | 1 | Roof Slope: | FLAT | | Roof Structure/Cover: | CJ ALUMINIUM HEAVY |   |   |
|
| | Type | Description | Class CD | Sub Class CD | Year Built | Area |
| | BAS | BASE/MAIN FLOOR | 4 | 0 | 1996 | 1818.0 |
| | DGR | DETACHED GARAGE | 4 | 0 | 1996 | 780.0 |
| | OCP | OPEN CARPORT | 4 | 0 | 1996 | 364.0 |
| | OCP | OPEN CARPORT | 4 | 0 | 1996 | 550.0 |
| | CPD | OPEN CARPORT DIRT FLOOR | 4 | 0 | 1996 | 228.0 |
| | DGR | DETACHED GARAGE | 4 | 0 | 1996 | 1120.0 |
| | OWR | OPEN WOOD PORCH W/STEPS/ROOF | 4 | 0 | 1996 | 272.0 |
| | OWR | OPEN WOOD PORCH W/STEPS/ROOF | 4 | 0 | 1996 | 76.0 |
Sketch
Property Image
Land
| 1 | 32 | AC (03.01-09.99) | 3.6400 | 158558.40 | 0.00 | 0.00 | 1.00 | $360,000 | $0 |
Roll Value History
| 2026 | N/A | N/A | N/A | N/A | N/A |
| 2025 | $268,080 | $360,000 | $0 | $628,080 | $628,080 |
| 2024 | $271,196 | $340,000 | $0 | $611,196 | $611,196 |
| 2023 | $241,250 | $320,000 | $0 | $561,250 | $561,250 |
| 2022 | $179,183 | $300,000 | $0 | $479,183 | $479,183 |
| 2021 | $160,072 | $230,000 | $0 | $390,072 | $390,072 |
| 2020 | $159,569 | $190,000 | $0 | $349,569 | $349,569 |
| 2019 | $128,944 | $220,000 | $0 | $348,944 | $348,944 |
| 2018 | $106,600 | $175,000 | $0 | $281,600 | $281,600 |
| 2017 | $109,232 | $150,000 | $0 | $259,232 | $259,232 |
| 2016 | $110,600 | $150,000 | $0 | $260,600 | $260,600 |
| 2015 | $112,532 | $81,536 | $0 | $194,068 | $194,068 |
| 2014 | $113,498 | $81,536 | $0 | $195,034 | $195,034 |
| 2013 | $115,429 | $81,536 | $0 | $196,965 | $196,965 |
| 2012 | $117,360 | $81,536 | $0 | $198,896 | $198,896 |
| 2011 | $119,292 | $93,000 | $0 | $212,292 | $212,292 |
| 2010 | $131,703 | $93,000 | $0 | $224,703 | $224,703 |
| 2009 | $136,792 | $121,940 | $0 | $258,732 | $258,732 |
| 2008 | $140,888 | $158,340 | $0 | $299,228 | $299,228 |
| 2007 | $143,819 | $158,340 | $0 | $302,159 | $302,159 |
Deed and Sales History
| 1 | 01/13/2023 | WD | Warranty Deed | FORSBERG, AREN-EARL REINHOLD | FIGLEY, DAVID | | | $590,000.00 | 55624 | 4555735 |
| 2 | 12/21/2018 | WD | Warranty Deed | DODGE TRUSTEE, DANIEL D | FORSBERG, AREN-EARL REINHOLD | | | $349,500.00 | 37191 | 4457475 |
| 3 | 08/15/2006 | 5 | DNU - Marriage License/Name Change | DODGE, SHARON | DODGE TRUSTEE, DANIEL D | | | $0.00 | 63528 | 4179097 |
| 4 | 05/07/2004 | PRD | Personal Representatives Deed | ROTHROCK, OPAL F | DODGE, SHARON | | | $0.00 | 42432 | 4102904 |
| 5 | 11/17/2000 | OTHER | Other - Misc. Documents | ROTHROCK, OPAL | ROTHROCK, OPAL F | | | $0.00 | 68850 | 0 |
| 6 | 09/01/2000 | OTHER | Other - Misc. Documents | ROTHROCK, CHARLES / | ROTHROCK, OPAL | | | $0.00 | 3356 | 0 |
| 7 | 04/01/1996 | OTHER | Other - Misc. Documents | ROTHROCK, CHARLES W | ROTHROCK, CHARLES / | | | $0.00 | 11111111 | 0 |
| 8 | 01/01/1900 | OTHER | Other - Misc. Documents | Unknown | ROTHROCK, CHARLES W | | | $0.00 | 0 | 0 |
Payout Agreement
| No payout information available.. |