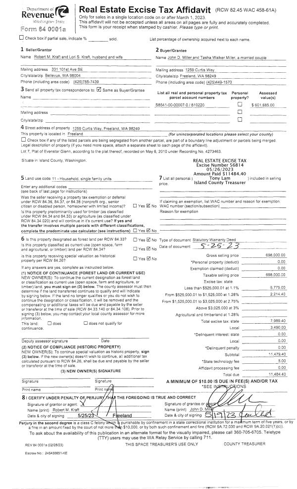
Property
Account |
| Property ID: | 94392 | Abbreviated Legal Description: | EXCESS TO 327-4811 IN SE NE:BG E/4 CR SEC 27 N533.7' TPB S87*W925.33' N8 *W250' N88*E967.3' S237.11' TPB TGW SUB EZ TGW WELLSITE TGW RD EZ |
| Geographic ID: | R23227-327-4810 | Agent Code: | |
| Type: | Real | | |
| Tax Area: | 512 - APPRAISER-Stan/Cam Schl Dist, improved, greater than 1 acre | Land Use Code | 11 |
| Open Space: | N | DFL | N |
| Historic Property: | N | Remodel Property: | N |
| Multi-Family Redevelopment: | N | | |
| Township: | 32 | Section: | 27 |
| Range: | R2 |
Location |
| Address: | 644 SCANDIA PKWY CAMANO ISLAND, WA 98282 | Mapsco: | |
| Neighborhood: | North Camano | Map ID: | 571 |
| Neighborhood CD: | 06-C |
Owner |
| Name: | SHAW TTEE, GRANT D | Owner ID: | 295095 |
| Mailing Address: | T'NA R SHAW, TTEE 644 SCANDIA PKWY CAMANO ISLAND, WA 98282 | % Ownership: | 100.0000000000% |
| | | Exemptions: | |
Taxes and Assessment Details
Values
| (+) Improvement Homesite Value: | + | $0 | |
| (+) Improvement Non-Homesite Value: | + | $1,093,058 | |
| (+) Land Homesite Value: | + | $0 | |
| (+) Land Non-Homesite Value: | + | $410,000 | |
| (+) Curr Use (HS): | + | $0 | $0 |
| (+) Curr Use (NHS): | + | $0 | $0 |
| | | -------------------------- | |
| (=) Market Value: | = | $1,503,058 | |
| (–) Productivity Loss: | – | $0 | |
| | | -------------------------- | |
| (=) Subtotal: | = | $1,503,058 | |
| (+) Senior Appraised Value: | + | $0 | |
| (+) Non-Senior Appraised Value: | + | $1,503,058 | |
| | | -------------------------- | |
| (=) Total Appraised Value: | = | $1,503,058 | |
| (–) Senior Exemption Loss: | – | $0 | |
| (–) Exemption Loss: | – | $0 | |
| | | -------------------------- | |
| (=) Taxable Value: | = | $1,503,058 | |
Taxing Jurisdiction
| Owner: | SHAW TTEE, GRANT D | | |
| % Ownership: | 100.0000000000% | | |
| Total Value: | $1,503,058 | | |
| Tax Area: | 512 - APPRAISER-Stan/Cam Schl Dist, improved, greater than 1 acre |
| CF | Conservation Futures | 0.0316035091 | $1,503,058 | $1,503,058 | $47.50 | | |
| EMS1 | Fire & Rescue Dist #1 Camano GEN (EMS) | 0.3677864386 | $1,503,058 | $1,503,058 | $552.80 | | |
| FIRE1 | Fire & Rescue Dist #1 Camano GEN | 1.2502910536 | $1,503,058 | $1,503,058 | $1,879.26 | | |
| FIRE1BOND | Fire & Rescue Dist #1 Camano BOND | 0.1570001679 | $1,503,058 | $1,503,058 | $235.98 | | |
| CE | County Current Expense | 0.3708482477 | $1,503,058 | $1,503,058 | $557.41 | | |
| CR | County Roads | 0.4584763726 | $1,503,058 | $1,503,058 | $689.12 | | |
| LCIB | Library Sno-Isle BOND (Camano Island) | 0.0396325772 | $1,503,058 | $1,503,058 | $59.57 | | |
| LIB | Library Sno-Isle GEN | 0.3153421757 | $1,503,058 | $1,503,058 | $473.98 | | |
| SCH205_401 | School 205-401 Enrichment | 1.2698420524 | $1,503,058 | $1,503,058 | $1,908.65 | | |
| SCH205BOND | School 205-401 BOND | 0.9396497583 | $1,503,058 | $1,503,058 | $1,412.35 | | |
| ST | State School | 1.3035497053 | $1,503,058 | $1,503,058 | $1,959.31 | | |
| ST2 | State School Part 2 | 0.8169543533 | $1,503,058 | $1,503,058 | $1,227.93 | | |
| | Total Tax Rate: | 7.3209764117 | | | | | |
| | | | | Taxes w/Current Exemptions: | $11,003.86 | | |
| | | | | Taxes w/o Exemptions: | $11,003.86 | | |
Improvement / Building
| Improvement #1: | RESIDENTIAL | State Code: | Y | 6458.2 sqft | Value: | $1,093,058 |
| Bathrooms: | 4.5 | Bedrooms: | 4 | | Ceiling: | DRYWALL PAINTED | Exterior Wall/Cover: | CEMENT FIBER | | Floor Covering: | HARDWOOD 100% | Floor Structure: | WOOD W/SUBFLOOR | | Foundation: | CONCRETE | Heating: | RADIANT FLOOR | | Interior Finish: | DRYWALL PAINT | Plumbing Fixture Cnt: | 24 | | Roof Slope: | 10" IN 12" | Roof Structure/Cover: | CJ ASPHALT |
|
| | Type | Description | Class CD | Sub Class CD | Year Built | Area |
| | BAS | BASE/MAIN FLOOR | 5 | 0 | 2007 | 2610.5 |
| | DWN | DOWNSTAIRS LIVING AREA | 5 | 0 | 2007 | 1307.7 |
| | OP1 | OPEN PORCH SLAB | 5 | 0 | 2007 | 853.6 |
| | OP4 | OPEN PORCH W/CEILING-ROOF | 5 | 0 | 2007 | 44.8 |
| | AGR | ATTACHED GARAGE | 5 | 0 | 2007 | 901.5 |
| | OWP | OPEN WOOD PORCH W/STEPS | 5 | 0 | 2007 | 677.4 |
| | OWC | OPEN WOOD PORCH W/STEPS/ROOF/C | 5 | 0 | 2007 | 71.4 |
| | DGR | DETACHED GARAGE | 5 | 0 | 2007 | 2684.0 |
| | LOF | LOFT | 5 | 0 | 2007 | 2540.0 |
| | OWP | OPEN WOOD PORCH W/STEPS | 5 | 0 | 2007 | 320.0 |
| | OP4 | OPEN PORCH W/CEILING-ROOF | 5 | 0 | 2007 | 363.0 |
| | OP4 | OPEN PORCH W/CEILING-ROOF | 5 | 0 | 2007 | 363.0 |
Sketch
Property Image
Land
| 1 | 32 | AC (03.01-09.99) | 5.2700 | 0.00 | 0.00 | 0.00 | 1.00 | $410,000 | $0 |
Roll Value History
| 2026 | N/A | N/A | N/A | N/A | N/A |
| 2025 | $1,093,058 | $410,000 | $0 | $1,503,058 | $1,503,058 |
| 2024 | $1,102,243 | $390,000 | $0 | $1,492,243 | $1,492,243 |
| 2023 | $1,112,040 | $380,000 | $0 | $1,492,040 | $1,492,040 |
| 2022 | $978,652 | $350,000 | $0 | $1,328,652 | $1,328,652 |
| 2021 | $860,671 | $240,000 | $0 | $1,100,671 | $1,100,671 |
| 2020 | $837,447 | $200,000 | $0 | $1,037,447 | $1,037,447 |
| 2019 | $786,948 | $240,000 | $0 | $1,026,948 | $1,026,948 |
| 2018 | $789,107 | $220,000 | $0 | $1,009,107 | $1,009,107 |
| 2017 | $793,416 | $200,000 | $0 | $993,416 | $993,416 |
| 2016 | $771,139 | $160,000 | $0 | $931,139 | $931,139 |
| 2015 | $546,584 | $155,992 | $0 | $702,576 | $702,576 |
| 2014 | $552,590 | $155,992 | $0 | $708,582 | $708,582 |
| 2013 | $558,599 | $155,992 | $0 | $714,591 | $714,591 |
| 2012 | $518,345 | $155,992 | $0 | $674,337 | $674,337 |
| 2011 | $523,860 | $194,990 | $0 | $718,850 | $718,850 |
| 2010 | $524,419 | $194,990 | $0 | $719,409 | $719,409 |
| 2009 | $546,208 | $237,150 | $0 | $783,358 | $783,358 |
| 2008 | $546,697 | $269,245 | $0 | $815,942 | $815,942 |
| 2007 | $343,912 | $269,245 | $0 | $613,157 | $613,157 |
Deed and Sales History
| 1 | 07/06/2020 | WD | Warranty Deed | SHAW, GRANT | SHAW TTEE, GRANT D | | | $0.00 | 43707 | 4490826 |
| 2 | 01/29/2020 | QCD | Quit Claim Deed | CASTLE COVE LLC | SHAW, GRANT | | | $0.00 | 42041 | 4481003 |
| 3 | 04/02/2016 | QCD | Quit Claim Deed | SHAW, GRANT D | CASTLE COVE LLC | | | $0.00 | 23760 | 4396905 |
| 4 | 08/20/2014 | WD | Warranty Deed | CARPENTER, DAVID F | SHAW, GRANT D | | | $756,000.00 | 16695 | 4365077 |
| 5 | 11/07/2003 | WD | Warranty Deed | NOREN, RICHARD E | CARPENTER, DAVID F | | | $144,500.00 | 40116 | 4088224 |
| 6 | 07/01/1986 | WD | Warranty Deed | PACKER, CHESLEY C | NOREN, RICHARD E | | | $39,000.00 | 62043 | 86009561 |
| 7 | 03/01/1983 | EZ | Easement | PACKER, CHESLEY C | PACKER, CHESLEY C | | | $0.00 | 40968 | 423208 |
| 8 | 11/01/1981 | OTHER | Other - Misc. Documents | PACKER, CHESLEY C | PACKER, CHESLEY C | | | $0.00 | 13692 | 390818 |
| 9 | 11/01/1981 | OTHER | Other - Misc. Documents | PACKER, CHESLEY C | PACKER, CHESLEY C | | | $0.00 | 13693 | 390819 |
| 10 | 01/01/1979 | EXECUTORD | Executor Deed | FIELD, & S | PACKER, CHESLEY C | | | $25,000.00 | 90142 | 345772 |
| 11 | 01/01/1900 | OTHER | Other - Misc. Documents | Unknown | FIELD, & S | | | $0.00 | 0 | 0 |
Payout Agreement
| No payout information available.. |