Property
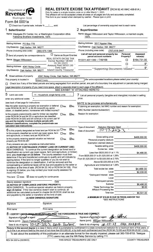
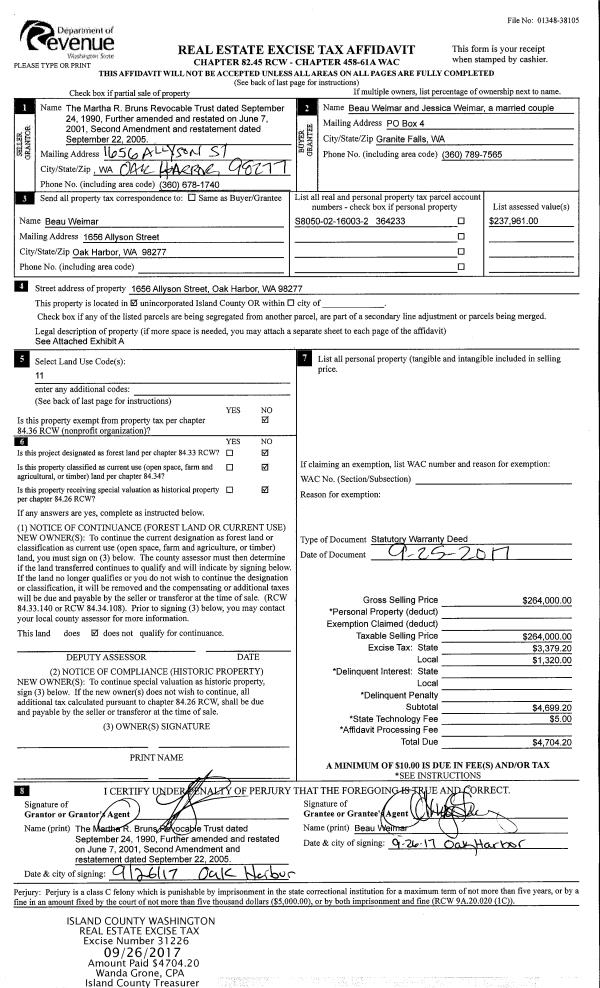
Account |
| Property ID: | 94640 | Abbreviated Legal Description: | 32 - S100' OF N450' OF GL4 TGW ADJ TIDELANDS SUB TO EZ |
| Geographic ID: | R23227-490-3650 | Agent Code: | |
| Type: | Real | | |
| Tax Area: | 512 - APPRAISER-Stan/Cam Schl Dist, improved, greater than 1 acre | Land Use Code | 11 |
| Open Space: | N | DFL | N |
| Historic Property: | N | Remodel Property: | N |
| Multi-Family Redevelopment: | N | | |
| Township: | 32 | Section: | 27 |
| Range: | R2 |
Location |
| Address: | 769 N SUNSET DR CAMANO ISLAND, WA 98282 | Mapsco: | |
| Neighborhood: | North Camano | Map ID: | 571 |
| Neighborhood CD: | 06-C |
Owner |
| Name: | HUME, CLIFFORD R | Owner ID: | 282371 |
| Mailing Address: | 1502 N 40TH ST SEATTLE, WA 98103 | % Ownership: | 100.0000000000% |
| | | Exemptions: | |
Taxes and Assessment Details
Values
| (+) Improvement Homesite Value: | + | $0 | |
| (+) Improvement Non-Homesite Value: | + | $442,690 | |
| (+) Land Homesite Value: | + | $0 | |
| (+) Land Non-Homesite Value: | + | $576,000 | |
| (+) Curr Use (HS): | + | $0 | $0 |
| (+) Curr Use (NHS): | + | $0 | $0 |
| | | -------------------------- | |
| (=) Market Value: | = | $1,018,690 | |
| (–) Productivity Loss: | – | $0 | |
| | | -------------------------- | |
| (=) Subtotal: | = | $1,018,690 | |
| (+) Senior Appraised Value: | + | $0 | |
| (+) Non-Senior Appraised Value: | + | $1,018,690 | |
| | | -------------------------- | |
| (=) Total Appraised Value: | = | $1,018,690 | |
| (–) Senior Exemption Loss: | – | $0 | |
| (–) Exemption Loss: | – | $0 | |
| | | -------------------------- | |
| (=) Taxable Value: | = | $1,018,690 | |
Taxing Jurisdiction
| Owner: | HUME, CLIFFORD R | | |
| % Ownership: | 100.0000000000% | | |
| Total Value: | $1,018,690 | | |
| Tax Area: | 512 - APPRAISER-Stan/Cam Schl Dist, improved, greater than 1 acre |
| CF | Conservation Futures | 0.0316035091 | $1,018,690 | $1,018,690 | $32.19 | | |
| EMS1 | Fire & Rescue Dist #1 Camano GEN (EMS) | 0.3677864386 | $1,018,690 | $1,018,690 | $374.66 | | |
| FIRE1 | Fire & Rescue Dist #1 Camano GEN | 1.2502910536 | $1,018,690 | $1,018,690 | $1,273.66 | | |
| FIRE1BOND | Fire & Rescue Dist #1 Camano BOND | 0.1570001679 | $1,018,690 | $1,018,690 | $159.93 | | |
| CE | County Current Expense | 0.3708482477 | $1,018,690 | $1,018,690 | $377.78 | | |
| CR | County Roads | 0.4584763726 | $1,018,690 | $1,018,690 | $467.05 | | |
| LCIB | Library Sno-Isle BOND (Camano Island) | 0.0396325772 | $1,018,690 | $1,018,690 | $40.37 | | |
| LIB | Library Sno-Isle GEN | 0.3153421757 | $1,018,690 | $1,018,690 | $321.24 | | |
| SCH205_401 | School 205-401 Enrichment | 1.2698420524 | $1,018,690 | $1,018,690 | $1,293.58 | | |
| SCH205BOND | School 205-401 BOND | 0.9396497583 | $1,018,690 | $1,018,690 | $957.21 | | |
| ST | State School | 1.3035497053 | $1,018,690 | $1,018,690 | $1,327.91 | | |
| ST2 | State School Part 2 | 0.8169543533 | $1,018,690 | $1,018,690 | $832.22 | | |
| | Total Tax Rate: | 7.3209764117 | | | | | |
| | | | | Taxes w/Current Exemptions: | $7,457.80 | | |
| | | | | Taxes w/o Exemptions: | $7,457.80 | | |
Improvement / Building
| Improvement #1: | RESIDENTIAL | State Code: | Y | 1467.9 sqft | Value: | $442,690 |
| Bathrooms: | 2 | Bedrooms: | 2 | | Ceiling: | DRYWALL PAINTED | Cooling: | HEAT PUMP/CONV/V | | Exterior Wall/Cover: | CEMENT FIBER | Floor Covering: | VINYL 100% | | Floor Structure: | WOOD W/SUBFLOOR | Foundation: | CONCRETE | | Interior Finish: | DRYWALL PAINT | Plumbing Fixture Cnt: | 9 | | Roof Slope: | 3" IN 12" | Roof Structure/Cover: | CJ ALUMINIUM HEAVY |
|
| | Type | Description | Class CD | Sub Class CD | Year Built | Area |
| | BAS | BASE/MAIN FLOOR | 4 | 0 | 2019 | 1467.9 |
| | OWP | OPEN WOOD PORCH W/STEPS | 4 | 0 | 2019 | 60.0 |
| | DGR | DETACHED GARAGE | 4 | 0 | 2019 | 1296.0 |
| | OWP | OPEN WOOD PORCH W/STEPS | 4 | 0 | 2019 | 60.0 |
| | OWP | OPEN WOOD PORCH W/STEPS | 4 | 0 | 2019 | 105.0 |
Sketch
Property Image
Land
| 1 | HB | HIGH BLUFF | 0.0000 | 0.00 | 100.00 | 0.00 | 1.00 | $575,000 | $0 |
| 2 | 55 | TIDES | 0.0000 | 0.00 | 100.00 | 0.00 | 1.00 | $1,000 | $0 |
Roll Value History
| 2026 | N/A | N/A | N/A | N/A | N/A |
| 2025 | $442,690 | $576,000 | $0 | $1,018,690 | $1,018,690 |
| 2024 | $446,260 | $576,000 | $0 | $1,022,260 | $1,022,260 |
| 2023 | $449,828 | $576,000 | $0 | $1,025,828 | $1,025,828 |
| 2022 | $358,243 | $551,000 | $0 | $909,243 | $909,243 |
| 2021 | $314,782 | $401,000 | $0 | $715,782 | $715,782 |
| 2020 | $308,698 | $301,000 | $0 | $609,698 | $609,698 |
| 2019 | $0 | $301,000 | $0 | $301,000 | $301,000 |
| 2018 | $0 | $251,000 | $0 | $251,000 | $251,000 |
| 2017 | $0 | $251,000 | $0 | $251,000 | $251,000 |
| 2016 | $0 | $251,000 | $0 | $251,000 | $251,000 |
| 2015 | $0 | $251,000 | $0 | $251,000 | $251,000 |
| 2014 | $0 | $251,000 | $0 | $251,000 | $251,000 |
| 2013 | $0 | $267,886 | $0 | $267,886 | $267,886 |
| 2012 | $0 | $267,886 | $0 | $267,886 | $267,886 |
| 2011 | $0 | $334,608 | $0 | $334,608 | $334,608 |
| 2010 | $0 | $334,608 | $0 | $334,608 | $334,608 |
| 2009 | $0 | $350,309 | $0 | $350,309 | $350,309 |
| 2008 | $0 | $335,310 | $0 | $335,310 | $335,310 |
| 2007 | $0 | $334,610 | $0 | $334,610 | $334,610 |
Deed and Sales History
| 1 | 10/04/2017 | WD | Warranty Deed | KRAMER, BRIAN L | HUME, CLIFFORD R | | | $375,000.00 | 31457 | 4431814 |
| 2 | 04/11/2014 | WD | Warranty Deed | BARKER, BRUCE L | KRAMER, BRIAN L | | | $277,500.00 | 14934 | 4357991 |
| 3 | 07/01/1986 | WD | Warranty Deed | RODGERS, WALTER R | BARKER, BRUCE L | | | $65,000.00 | 62031 | 86009522 |
| 4 | 08/01/1983 | EZ | Easement | RODGERS, WALTER R | RODGERS, WALTER R | | | $0.00 | 60920 | 413179 |
| 5 | 01/01/1900 | OTHER | Other - Misc. Documents | Unknown | RODGERS, WALTER R | | | $0.00 | 0 | 0 |
Payout Agreement
| No payout information available.. |