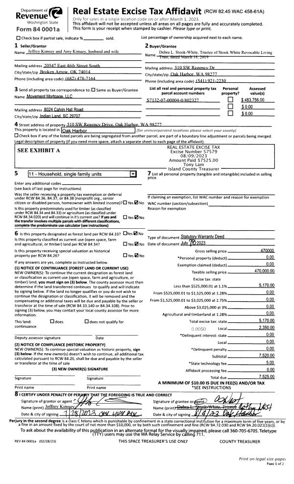
Property
Account |
| Property ID: | 94784 | Abbreviated Legal Description: | 103 - IN S/2 SE SE: BG NECR S/2 SE SE S230' W100' TPB W100' S TO NLN CO RD ELY ALG SD RD TP 100' FR ELN SD S/2 N TPB |
| Geographic ID: | R23234-031-5150 | Agent Code: | |
| Type: | Real | | |
| Tax Area: | 510 - APPRAISER-Stan/Cam Schl Dist, improved & 1 acre or less | Land Use Code | 11 |
| Open Space: | N | DFL | N |
| Historic Property: | N | Remodel Property: | N |
| Multi-Family Redevelopment: | N | | |
| Township: | 32 | Section: | 34 |
| Range: | R2 |
Location |
| Address: | 808 MADRONA BEACH RD CAMANO ISLAND, WA 98282 | Mapsco: | |
| Neighborhood: | North Camano | Map ID: | 573 |
| Neighborhood CD: | 06-C |
Owner |
| Name: | MCKENZIE, DAVID E & KATHRYN | Owner ID: | 59112 |
| Mailing Address: | 808 MADRONA BEACH RD CAMANO ISLAND, WA 98282-6604 | % Ownership: | 100.0000000000% |
| | | Exemptions: | |
Taxes and Assessment Details
Values
| (+) Improvement Homesite Value: | + | $0 | |
| (+) Improvement Non-Homesite Value: | + | $346,208 | |
| (+) Land Homesite Value: | + | $0 | |
| (+) Land Non-Homesite Value: | + | $330,000 | |
| (+) Curr Use (HS): | + | $0 | $0 |
| (+) Curr Use (NHS): | + | $0 | $0 |
| | | -------------------------- | |
| (=) Market Value: | = | $676,208 | |
| (–) Productivity Loss: | – | $0 | |
| | | -------------------------- | |
| (=) Subtotal: | = | $676,208 | |
| (+) Senior Appraised Value: | + | $0 | |
| (+) Non-Senior Appraised Value: | + | $676,208 | |
| | | -------------------------- | |
| (=) Total Appraised Value: | = | $676,208 | |
| (–) Senior Exemption Loss: | – | $0 | |
| (–) Exemption Loss: | – | $0 | |
| | | -------------------------- | |
| (=) Taxable Value: | = | $676,208 | |
Taxing Jurisdiction
| Owner: | MCKENZIE, DAVID E & KATHRYN | | |
| % Ownership: | 100.0000000000% | | |
| Total Value: | $676,208 | | |
| Tax Area: | 510 - APPRAISER-Stan/Cam Schl Dist, improved & 1 acre or less |
| CF | Conservation Futures | 0.0316035091 | $676,208 | $676,208 | $21.37 | | |
| EMS1 | Fire & Rescue Dist #1 Camano GEN (EMS) | 0.3677864386 | $676,208 | $676,208 | $248.70 | | |
| FIRE1 | Fire & Rescue Dist #1 Camano GEN | 1.2502910536 | $676,208 | $676,208 | $845.46 | | |
| FIRE1BOND | Fire & Rescue Dist #1 Camano BOND | 0.1570001679 | $676,208 | $676,208 | $106.16 | | |
| CE | County Current Expense | 0.3708482477 | $676,208 | $676,208 | $250.77 | | |
| CR | County Roads | 0.4584763726 | $676,208 | $676,208 | $310.03 | | |
| LCIB | Library Sno-Isle BOND (Camano Island) | 0.0396325772 | $676,208 | $676,208 | $26.80 | | |
| LIB | Library Sno-Isle GEN | 0.3153421757 | $676,208 | $676,208 | $213.24 | | |
| SCH205_401 | School 205-401 Enrichment | 1.2698420524 | $676,208 | $676,208 | $858.68 | | |
| SCH205BOND | School 205-401 BOND | 0.9396497583 | $676,208 | $676,208 | $635.40 | | |
| ST | State School | 1.3035497053 | $676,208 | $676,208 | $881.47 | | |
| ST2 | State School Part 2 | 0.8169543533 | $676,208 | $676,208 | $552.43 | | |
| | Total Tax Rate: | 7.3209764117 | | | | | |
| | | | | Taxes w/Current Exemptions: | $4,950.51 | | |
| | | | | Taxes w/o Exemptions: | $4,950.51 | | |
Improvement / Building
| Improvement #1: | RESIDENTIAL | State Code: | Y | 1714.5 sqft | Value: | $346,208 |
| Bathrooms: | 2 | Bedrooms: | 3 | | Ceiling: | DRYWALL PAINTED | Exterior Wall/Cover: | WOOD SIDING | | Floor Covering: | CARPET/VINYL 80-20 | Floor Structure: | WOOD W/SUBFLOOR | | Foundation: | CONCRETE | Heating: | WALL HEAT ELECTRIC | | Interior Finish: | DRYWALL PAINT | Plumbing Fixture Cnt: | 10 | | Roof Slope: | 6" IN 12" | Roof Structure/Cover: | CJ ASPHALT |
|
| | Type | Description | Class CD | Sub Class CD | Year Built | Area |
| | BAS | BASE/MAIN FLOOR | 3 | 0 | 1990 | 1714.5 |
| | OP4 | OPEN PORCH W/CEILING-ROOF | 3 | 0 | 1990 | 64.0 |
| | AGR | ATTACHED GARAGE | 3 | 0 | 1990 | 462.0 |
| | OWP | OPEN WOOD PORCH W/STEPS | 3 | 0 | 1990 | 401.0 |
| | DGR | DETACHED GARAGE | 3 | 0 | 1990 | 1598.8 |
Sketch
Property Image
Land
| 1 | 16 | AC (00.51-01.00) | 0.0000 | 0.00 | 0.00 | 0.00 | 1.00 | $330,000 | $0 |
Roll Value History
| 2026 | N/A | N/A | N/A | N/A | N/A |
| 2025 | $346,208 | $330,000 | $0 | $676,208 | $676,208 |
| 2024 | $350,577 | $320,000 | $0 | $670,577 | $670,577 |
| 2023 | $354,945 | $310,000 | $0 | $664,945 | $664,945 |
| 2022 | $317,450 | $260,000 | $0 | $577,450 | $577,450 |
| 2021 | $279,488 | $200,000 | $0 | $479,488 | $479,488 |
| 2020 | $272,414 | $160,000 | $0 | $432,414 | $432,414 |
| 2019 | $199,800 | $220,000 | $0 | $419,800 | $419,800 |
| 2018 | $200,401 | $150,000 | $0 | $350,401 | $350,401 |
| 2017 | $201,599 | $150,000 | $0 | $351,599 | $351,599 |
| 2016 | $178,347 | $90,000 | $0 | $268,347 | $268,347 |
| 2015 | $180,288 | $66,400 | $0 | $246,688 | $246,688 |
| 2014 | $182,230 | $66,400 | $0 | $248,630 | $248,630 |
| 2013 | $184,172 | $66,400 | $0 | $250,572 | $250,572 |
| 2012 | $186,112 | $66,400 | $0 | $252,512 | $252,512 |
| 2011 | $188,054 | $83,000 | $0 | $271,054 | $271,054 |
| 2010 | $196,059 | $83,000 | $0 | $279,059 | $279,059 |
| 2009 | $203,768 | $100,000 | $0 | $303,768 | $303,768 |
| 2008 | $207,099 | $100,000 | $0 | $307,099 | $307,099 |
| 2007 | $209,980 | $100,000 | $0 | $309,980 | $309,980 |
Deed and Sales History
| 1 | 06/01/1991 | WD | Warranty Deed | HOPKINS, FORREST O | MCKENZIE, DAVID E | | | $156,000.00 | 12097 | 91008895 |
| 2 | 05/01/1978 | OTHER | Other - Misc. Documents | Unknown | HOPKINS, FORREST O | | | $2,500.00 | 82458 | 333626 |
Payout Agreement
| No payout information available.. |