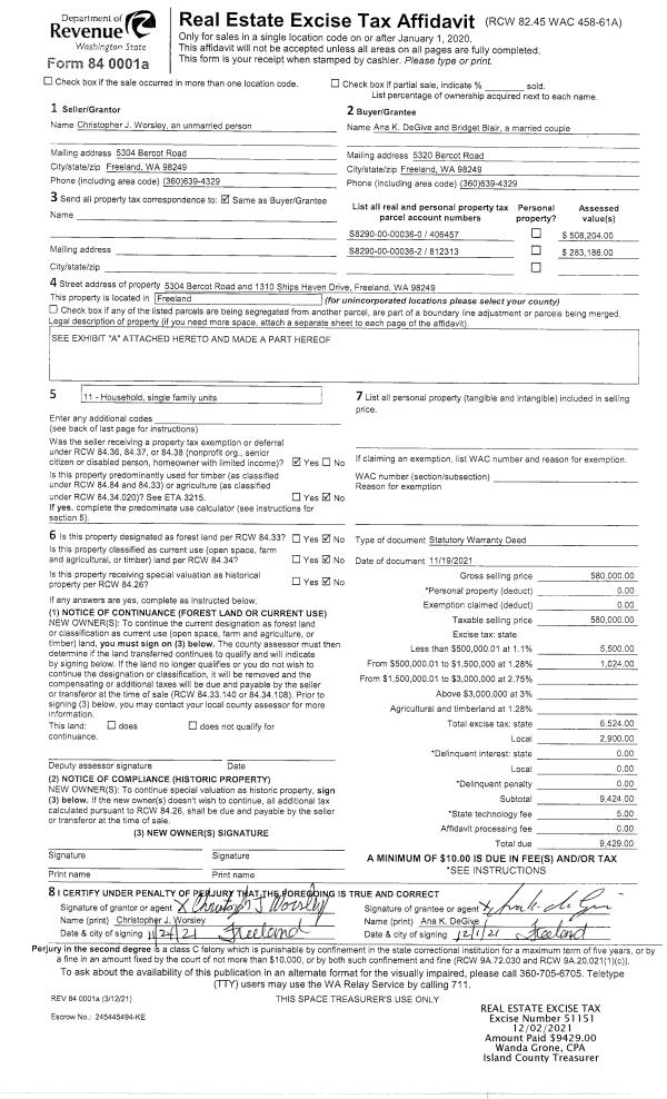
Property
Account |
| Property ID: | 95319 | Abbreviated Legal Description: | 59 - IN GL 1 BG 485'S OF NE CR GL1 N70*W521.5' TPB S137' ALG ELN RD E100' N84' N70*W112.5' TPB |
| Geographic ID: | R23234-099-3560 | Agent Code: | |
| Type: | Real | | |
| Tax Area: | 510 - APPRAISER-Stan/Cam Schl Dist, improved & 1 acre or less | Land Use Code | 11 |
| Open Space: | N | DFL | N |
| Historic Property: | N | Remodel Property: | N |
| Multi-Family Redevelopment: | N | | |
| Township: | 32 | Section: | 34 |
| Range: | R2 |
Location |
| Address: | 925 HIGH RD CAMANO ISLAND, WA 98282 | Mapsco: | |
| Neighborhood: | North Camano | Map ID: | 573 |
| Neighborhood CD: | 06-C |
Owner |
| Name: | VILLALOBOS, GLECY | Owner ID: | 299967 |
| Mailing Address: | 925 HIGH RD CAMANO ISLAND, WA 98282 | % Ownership: | 100.0000000000% |
| | | Exemptions: | |
Taxes and Assessment Details
Values
| (+) Improvement Homesite Value: | + | $0 | |
| (+) Improvement Non-Homesite Value: | + | $287,324 | |
| (+) Land Homesite Value: | + | $0 | |
| (+) Land Non-Homesite Value: | + | $250,000 | |
| (+) Curr Use (HS): | + | $0 | $0 |
| (+) Curr Use (NHS): | + | $0 | $0 |
| | | -------------------------- | |
| (=) Market Value: | = | $537,324 | |
| (–) Productivity Loss: | – | $0 | |
| | | -------------------------- | |
| (=) Subtotal: | = | $537,324 | |
| (+) Senior Appraised Value: | + | $0 | |
| (+) Non-Senior Appraised Value: | + | $537,324 | |
| | | -------------------------- | |
| (=) Total Appraised Value: | = | $537,324 | |
| (–) Senior Exemption Loss: | – | $0 | |
| (–) Exemption Loss: | – | $0 | |
| | | -------------------------- | |
| (=) Taxable Value: | = | $537,324 | |
Taxing Jurisdiction
| Owner: | VILLALOBOS, GLECY | | |
| % Ownership: | 100.0000000000% | | |
| Total Value: | $537,324 | | |
| Tax Area: | 510 - APPRAISER-Stan/Cam Schl Dist, improved & 1 acre or less |
| CF | Conservation Futures | 0.0316035091 | $537,324 | $537,324 | $16.98 | | |
| EMS1 | Fire & Rescue Dist #1 Camano GEN (EMS) | 0.3677864386 | $537,324 | $537,324 | $197.62 | | |
| FIRE1 | Fire & Rescue Dist #1 Camano GEN | 1.2502910536 | $537,324 | $537,324 | $671.81 | | |
| FIRE1BOND | Fire & Rescue Dist #1 Camano BOND | 0.1570001679 | $537,324 | $537,324 | $84.36 | | |
| CE | County Current Expense | 0.3708482477 | $537,324 | $537,324 | $199.27 | | |
| CR | County Roads | 0.4584763726 | $537,324 | $537,324 | $246.35 | | |
| LCIB | Library Sno-Isle BOND (Camano Island) | 0.0396325772 | $537,324 | $537,324 | $21.30 | | |
| LIB | Library Sno-Isle GEN | 0.3153421757 | $537,324 | $537,324 | $169.44 | | |
| SCH205_401 | School 205-401 Enrichment | 1.2698420524 | $537,324 | $537,324 | $682.32 | | |
| SCH205BOND | School 205-401 BOND | 0.9396497583 | $537,324 | $537,324 | $504.90 | | |
| ST | State School | 1.3035497053 | $537,324 | $537,324 | $700.43 | | |
| ST2 | State School Part 2 | 0.8169543533 | $537,324 | $537,324 | $438.97 | | |
| | Total Tax Rate: | 7.3209764117 | | | | | |
| | | | | Taxes w/Current Exemptions: | $3,933.75 | | |
| | | | | Taxes w/o Exemptions: | $3,933.75 | | |
Improvement / Building
| Improvement #1: | RESIDENTIAL | State Code: | Y | 1387.7 sqft | Value: | $287,324 |
| Bathrooms: | 2 | Bedrooms: | 2 | | Ceiling: | DRYWALL PAINTED | Cooling: | HEAT PUMP/CONV/V | | Exterior Wall/Cover: | HARDBOARD/WOOD FRAME | Floor Covering: | CARPET/VINYL 60-40 | | Floor Structure: | WOOD W/SUBFLOOR | Foundation: | CONCRETE | | Interior Finish: | DRYWALL PAINT | Plumbing Fixture Cnt: | 11 | | Roof Slope: | 3" IN 12" | Roof Structure/Cover: | CJ ALUMINIUM HEAVY |
|
| | Type | Description | Class CD | Sub Class CD | Year Built | Area |
| | BAS | BASE/MAIN FLOOR | 4 | 0 | 2023 | 1387.7 |
| | AGR | ATTACHED GARAGE | 4 | 0 | 2023 | 350.0 |
| | OWP | OPEN WOOD PORCH W/STEPS | 4 | 0 | 2023 | 298.8 |
Sketch
Property Image
Land
| 1 | 14 | SQ (08001-12000) | 0.0000 | 0.00 | 0.00 | 0.00 | 1.00 | $250,000 | $0 |
Roll Value History
| 2026 | N/A | N/A | N/A | N/A | N/A |
| 2025 | $287,324 | $250,000 | $0 | $537,324 | $537,324 |
| 2024 | $292,549 | $240,000 | $0 | $532,549 | $532,549 |
| 2023 | $164,481 | $120,000 | $0 | $284,481 | $284,481 |
| 2022 | $0 | $100,000 | $0 | $100,000 | $100,000 |
| 2021 | $0 | $80,000 | $0 | $80,000 | $80,000 |
| 2020 | $0 | $80,000 | $0 | $80,000 | $80,000 |
| 2019 | $0 | $80,000 | $0 | $80,000 | $80,000 |
| 2018 | $0 | $70,000 | $0 | $70,000 | $70,000 |
| 2017 | $0 | $70,000 | $0 | $70,000 | $70,000 |
| 2016 | $0 | $50,000 | $0 | $50,000 | $50,000 |
| 2015 | $0 | $59,096 | $0 | $59,096 | $59,096 |
| 2014 | $0 | $59,096 | $0 | $59,096 | $59,096 |
| 2013 | $0 | $59,096 | $0 | $59,096 | $59,096 |
| 2012 | $0 | $59,096 | $0 | $59,096 | $59,096 |
| 2011 | $0 | $73,870 | $0 | $73,870 | $73,870 |
| 2010 | $0 | $73,870 | $0 | $73,870 | $73,870 |
| 2009 | $0 | $74,000 | $0 | $74,000 | $74,000 |
| 2008 | $0 | $74,500 | $0 | $74,500 | $74,500 |
| 2007 | $0 | $74,500 | $0 | $74,500 | $74,500 |
Deed and Sales History
| 1 | 06/22/2021 | WD | Warranty Deed | SMITH, ALICE C | VILLALOBOS, GLECY | | | $169,000.00 | 48877 | 4522885 |
| 2 | 10/01/1960 | OTHER | Other - Misc. Documents | Unknown | SMITH, ALICE C | | | $0.00 | 9001 | 0 |
Payout Agreement
| No payout information available.. |