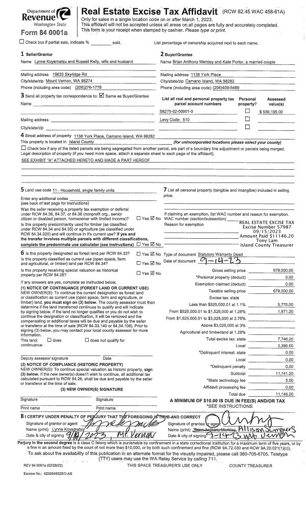
Property
Account |
| Property ID: | 95523 | Abbreviated Legal Description: | 123 - IN GL1:BG NLN GL1 & ML SWLY ALG ML 80' TO SLN BCH RD SELY ALG RD 318' TO RD TPB SWLY 60'11-1/4 |
| Geographic ID: | R23234-118-3010 | Agent Code: | |
| Type: | Real | | |
| Tax Area: | 510 - APPRAISER-Stan/Cam Schl Dist, improved & 1 acre or less | Land Use Code | 11 |
| Open Space: | N | DFL | N |
| Historic Property: | N | Remodel Property: | N |
| Multi-Family Redevelopment: | N | | |
| Township: | 32 | Section: | 34 |
| Range: | R2 |
Location |
| Address: | 973 HIGH RD CAMANO ISLAND, WA 98282 | Mapsco: | |
| Neighborhood: | North Camano | Map ID: | 573 |
| Neighborhood CD: | 06-C |
Owner |
| Name: | SMITH, SHARON L. | Owner ID: | 316551 |
| Mailing Address: | 973 HIGH RD CAMANO ISLAND, WA 98282 | % Ownership: | 100.0000000000% |
| | | Exemptions: | SNR/DSBL |
Taxes and Assessment Details
Values
| (+) Improvement Homesite Value: | + | $313,534 | |
| (+) Improvement Non-Homesite Value: | + | $0 | |
| (+) Land Homesite Value: | + | $300,000 | |
| (+) Land Non-Homesite Value: | + | $0 | |
| (+) Curr Use (HS): | + | $0 | $0 |
| (+) Curr Use (NHS): | + | $0 | $0 |
| | | -------------------------- | |
| (=) Market Value: | = | $613,534 | |
| (–) Productivity Loss: | – | $0 | |
| | | -------------------------- | |
| (=) Subtotal: | = | $613,534 | |
| (+) Senior Appraised Value: | + | $430,541 | |
| (+) Non-Senior Appraised Value: | + | $0 | |
| | | -------------------------- | |
| (=) Total Appraised Value: | = | $430,541 | |
| (–) Senior Exemption Loss: | – | $258,325 | |
| (–) Exemption Loss: | – | $0 | |
| | | -------------------------- | |
| (=) Taxable Value: | = | $172,216 | |
Taxing Jurisdiction
| Owner: | SMITH, SHARON L. | | |
| % Ownership: | 100.0000000000% | | |
| Total Value: | $613,534 | | |
| Tax Area: | 510 - APPRAISER-Stan/Cam Schl Dist, improved & 1 acre or less |
| CF | Conservation Futures | 0.0316035091 | $613,534 | $172,216 | $5.44 | | |
| EMS1 | Fire & Rescue Dist #1 Camano GEN (EMS) | 0.3677864386 | $613,534 | $172,216 | $63.34 | | |
| FIRE1 | Fire & Rescue Dist #1 Camano GEN | 1.2502910536 | $613,534 | $172,216 | $215.32 | | |
| FIRE1BOND | Fire & Rescue Dist #1 Camano BOND | 0.0000000000 | $613,534 | $0 | $0.00 | | |
| CE | County Current Expense | 0.3708482477 | $613,534 | $172,216 | $63.87 | | |
| CR | County Roads | 0.4584763726 | $613,534 | $172,216 | $78.96 | | |
| LCIB | Library Sno-Isle BOND (Camano Island) | 0.0000000000 | $613,534 | $0 | $0.00 | | |
| LIB | Library Sno-Isle GEN | 0.3153421757 | $613,534 | $172,216 | $54.31 | | |
| SCH205_401 | School 205-401 Enrichment | 0.0000000000 | $613,534 | $0 | $0.00 | | |
| SCH205BOND | School 205-401 BOND | 0.0000000000 | $613,534 | $0 | $0.00 | | |
| ST | State School | 1.3035497053 | $613,534 | $172,216 | $224.49 | | |
| ST2 | State School Part 2 | 0.0000000000 | $613,534 | $0 | $0.00 | | |
| | Total Tax Rate: | 4.0978975026 | | | | | |
| | | | | Taxes w/Current Exemptions: | $705.73 | | |
| | | | | Taxes w/o Exemptions: | $4,491.67 | | |
Improvement / Building
| Improvement #1: | RESIDENTIAL | State Code: | Y | 2036.0 sqft | Value: | $313,534 |
| Bathrooms: | 2 | Bedrooms: | 2 | | Ceiling: | DRYWALL PAINTED | Exterior Wall/Cover: | WOOD SIDING | | Floor Covering: | CARPET/VINYL 80-20 | Floor Structure: | WOOD W/SUBFLOOR | | Foundation: | CONCRETE | Heating: | FHA GAS | | Interior Finish: | DRYWALL PAINT | Plumbing Fixture Cnt: | 12 | | Roof Slope: | 5" IN 12" | Roof Structure/Cover: | CJ ASPHALT |
|
| | Type | Description | Class CD | Sub Class CD | Year Built | Area |
| | BAS | BASE/MAIN FLOOR | 3 | 0 | 1993 | 1106.0 |
| | UB8 | BASEMENT UNFINISHED 8" | 3 | 0 | 1993 | 512.0 |
| | BIG | BUILT IN GARAGE | 3 | 0 | 1993 | 576.0 |
| | UPS | UPPER STORY | 3 | 0 | 1993 | 930.0 |
| | OWP | OPEN WOOD PORCH W/STEPS | 3 | 0 | 1993 | 414.0 |
| | OWP | OPEN WOOD PORCH W/STEPS | 3 | 0 | 1993 | 189.4 |
| | OWC | OPEN WOOD PORCH W/STEPS/ROOF/C | 3 | 0 | 1993 | 56.0 |
Sketch
Property Image
Land
| 1 | 12 | SQ (00000-06000) | 0.0000 | 0.00 | 0.00 | 0.00 | 1.00 | $300,000 | $0 |
Roll Value History
| 2026 | N/A | N/A | N/A | N/A | N/A |
| 2025 | $313,534 | $300,000 | $0 | $613,534 | $172,216 |
| 2024 | $317,703 | $300,000 | $0 | $617,703 | $172,216 |
| 2023 | $321,866 | $300,000 | $0 | $621,866 | $172,216 |
| 2022 | $261,553 | $260,000 | $0 | $521,553 | $172,216 |
| 2021 | $230,541 | $200,000 | $0 | $430,541 | $172,216 |
| 2020 | $224,988 | $160,000 | $0 | $384,988 | $384,988 |
| 2019 | $171,005 | $190,000 | $0 | $361,005 | $361,005 |
| 2018 | $171,564 | $150,000 | $0 | $321,564 | $321,564 |
| 2017 | $172,628 | $130,000 | $0 | $302,628 | $302,628 |
| 2016 | $175,934 | $130,000 | $0 | $305,934 | $305,934 |
| 2015 | $178,190 | $92,800 | $0 | $270,990 | $270,990 |
| 2014 | $180,445 | $92,800 | $0 | $273,245 | $273,245 |
| 2013 | $182,700 | $92,800 | $0 | $275,500 | $275,500 |
| 2012 | $184,957 | $92,800 | $0 | $277,757 | $175,052 |
| 2011 | $187,213 | $116,000 | $0 | $303,213 | $175,052 |
| 2010 | $181,905 | $116,000 | $0 | $297,905 | $175,052 |
| 2009 | $189,726 | $200,000 | $0 | $389,726 | $175,052 |
| 2008 | $192,158 | $200,001 | $0 | $392,159 | $175,052 |
| 2007 | $185,499 | $209,179 | $0 | $394,678 | $394,678 |
Deed and Sales History
| 1 | 12/05/2021 | QCD | Quit Claim Deed | SMITH, LEONARD L | SMITH, SHARON L. | | | $0.00 | 51801 | 4543270 |
| 2 | 04/01/1984 | PACD | Purchaser's Assignment | WALLACE, BERNICE | SMITH, LEONARD L | | | $0.00 | 40850 | 422824 |
| 3 | 04/01/1978 | OTHER | Other - Misc. Documents | Unknown | WALLACE, BERNICE | | | $25,000.00 | 82019 | 3323180 |
Payout Agreement
| No payout information available.. |