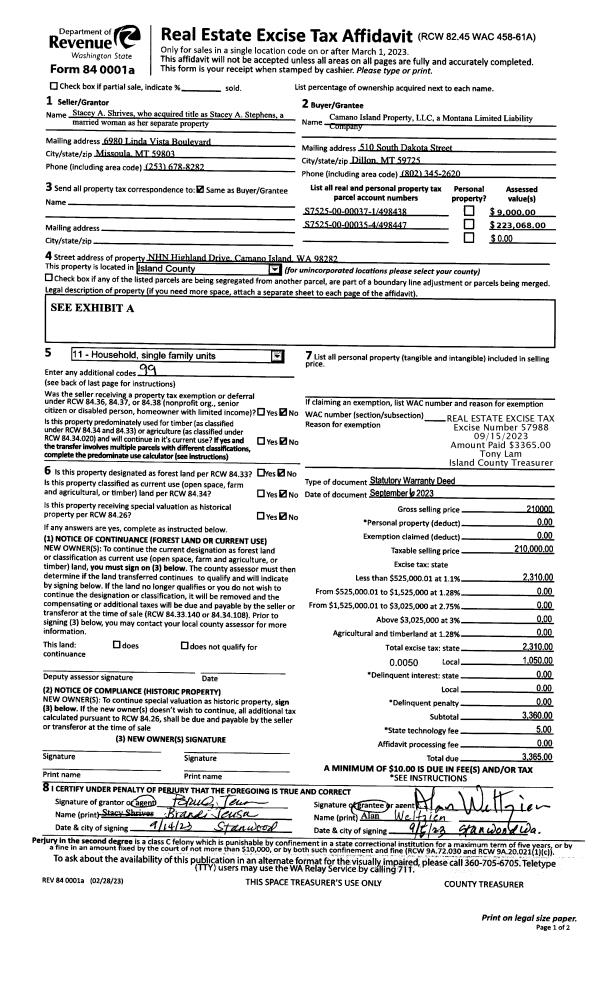
Property
Account |
| Property ID: | 95532 | Abbreviated Legal Description: | 109 - IN GL1: BG NECR GL1 W831' S20*W156.40' S19*W25 .80' N73*W92' TPB S16*W98 .66' N67*W40' TP 1046.50'W & 224.10'S OF NECR GL1 N77*W67.90' N15*E50.40' N72*W TO ML NE ALG ML TO SLN BCH RD EXT W SELY ALG SD RD TPB TGW: BG NECR GL1 W831' S20*W156.40' S19* |
| Geographic ID: | R23234-120-2920 | Agent Code: | |
| Type: | Real | | |
| Tax Area: | 510 - APPRAISER-Stan/Cam Schl Dist, improved & 1 acre or less | Land Use Code | 11 |
| Open Space: | N | DFL | N |
| Historic Property: | N | Remodel Property: | N |
| Multi-Family Redevelopment: | N | | |
| Township: | 32 | Section: | 34 |
| Range: | R2 |
Location |
| Address: | 977 HIGH RD CAMANO ISLAND, WA 98282 | Mapsco: | |
| Neighborhood: | North Camano | Map ID: | 573 |
| Neighborhood CD: | 06-C |
Owner |
| Name: | KLEIN, JAMES C | Owner ID: | 263314 |
| Mailing Address: | BEVERLY A KLEIN 6101 152ND ST NE MARYSVILLE, WA 98271 | % Ownership: | 100.0000000000% |
| | | Exemptions: | |
Taxes and Assessment Details
Values
| (+) Improvement Homesite Value: | + | $0 | |
| (+) Improvement Non-Homesite Value: | + | $435,835 | |
| (+) Land Homesite Value: | + | $0 | |
| (+) Land Non-Homesite Value: | + | $675,000 | |
| (+) Curr Use (HS): | + | $0 | $0 |
| (+) Curr Use (NHS): | + | $0 | $0 |
| | | -------------------------- | |
| (=) Market Value: | = | $1,110,835 | |
| (–) Productivity Loss: | – | $0 | |
| | | -------------------------- | |
| (=) Subtotal: | = | $1,110,835 | |
| (+) Senior Appraised Value: | + | $0 | |
| (+) Non-Senior Appraised Value: | + | $1,110,835 | |
| | | -------------------------- | |
| (=) Total Appraised Value: | = | $1,110,835 | |
| (–) Senior Exemption Loss: | – | $0 | |
| (–) Exemption Loss: | – | $0 | |
| | | -------------------------- | |
| (=) Taxable Value: | = | $1,110,835 | |
Taxing Jurisdiction
| Owner: | KLEIN, JAMES C | | |
| % Ownership: | 100.0000000000% | | |
| Total Value: | $1,110,835 | | |
| Tax Area: | 510 - APPRAISER-Stan/Cam Schl Dist, improved & 1 acre or less |
| CF | Conservation Futures | 0.0316035091 | $1,110,835 | $1,110,835 | $35.11 | | |
| EMS1 | Fire & Rescue Dist #1 Camano GEN (EMS) | 0.3677864386 | $1,110,835 | $1,110,835 | $408.55 | | |
| FIRE1 | Fire & Rescue Dist #1 Camano GEN | 1.2502910536 | $1,110,835 | $1,110,835 | $1,388.87 | | |
| FIRE1BOND | Fire & Rescue Dist #1 Camano BOND | 0.1570001679 | $1,110,835 | $1,110,835 | $174.40 | | |
| CE | County Current Expense | 0.3708482477 | $1,110,835 | $1,110,835 | $411.95 | | |
| CR | County Roads | 0.4584763726 | $1,110,835 | $1,110,835 | $509.29 | | |
| LCIB | Library Sno-Isle BOND (Camano Island) | 0.0396325772 | $1,110,835 | $1,110,835 | $44.03 | | |
| LIB | Library Sno-Isle GEN | 0.3153421757 | $1,110,835 | $1,110,835 | $350.29 | | |
| SCH205_401 | School 205-401 Enrichment | 1.2698420524 | $1,110,835 | $1,110,835 | $1,410.58 | | |
| SCH205BOND | School 205-401 BOND | 0.9396497583 | $1,110,835 | $1,110,835 | $1,043.80 | | |
| ST | State School | 1.3035497053 | $1,110,835 | $1,110,835 | $1,448.03 | | |
| ST2 | State School Part 2 | 0.8169543533 | $1,110,835 | $1,110,835 | $907.50 | | |
| | Total Tax Rate: | 7.3209764117 | | | | | |
| | | | | Taxes w/Current Exemptions: | $8,132.40 | | |
| | | | | Taxes w/o Exemptions: | $8,132.40 | | |
Improvement / Building
| Improvement #1: | RESIDENTIAL | State Code: | Y | 1704.0 sqft | Value: | $239,984 |
| Bathrooms: | 1.75 | Bedrooms: | 1 | | Ceiling: | BEAM PAINTED | Cooling: | HEAT PUMP/CONV/V | | Exterior Wall/Cover: | WOOD SIDING | Floor Covering: | CARPET 100% | | Floor Structure: | WOOD W/SUBFLOOR | Foundation: | CONCRETE | | Interior Finish: | DRYWALL PAINT | Plumbing Fixture Cnt: | 9 | | Roof Slope: | 5" IN 12" | Roof Structure/Cover: | CJ ALUMINIUM HEAVY |
|
| | Type | Description | Class CD | Sub Class CD | Year Built | Area |
| | BAS | BASE/MAIN FLOOR | 3 | 0 | 1930 | 1032.0 |
| | UB6 | BASEMENT UNFINISHED 6" | 3 | 0 | 1930 | 360.0 |
| | DWN | DOWNSTAIRS LIVING AREA | 3 | 0 | 1930 | 672.0 |
| | OWP | OPEN WOOD PORCH W/STEPS | 3 | 0 | 1930 | 464.0 |
| | OWP | OPEN WOOD PORCH W/STEPS | 3 | 0 | 1930 | 385.2 |
| Improvement #2: | RESIDENTIAL | State Code: | Y | 1136.0 sqft | Value: | $195,851 |
| Bathrooms: | 1 | Bedrooms: | 1 | | Ceiling: | DRYWALL PAINTED | Exterior Wall/Cover: | PLY/HARDBOARD T-111 | | Floor Covering: | TILE CERAMIC | Floor Structure: | SLAB ON GRADE | | Foundation: | SLAB | Heating: | WALL HEAT ELECTRIC | | Interior Finish: | DRYWALL PAINT | Plumbing Fixture Cnt: | 6 | | Roof Slope: | 4" IN 12" | Roof Structure/Cover: | CJ ASPHALT |
|
Sketch
Property Image
Land
| 1 | LB | LOW BANK | 0.3700 | 16117.20 | 55.00 | 0.00 | 1.00 | $675,000 | $0 |
Roll Value History
| 2026 | N/A | N/A | N/A | N/A | N/A |
| 2025 | $435,835 | $675,000 | $0 | $1,110,835 | $1,110,835 |
| 2024 | $436,531 | $675,000 | $0 | $1,111,531 | $1,111,531 |
| 2023 | $441,354 | $675,000 | $0 | $1,116,354 | $1,116,354 |
| 2022 | $398,190 | $700,000 | $0 | $1,098,190 | $1,098,190 |
| 2021 | $350,067 | $300,000 | $0 | $650,067 | $650,067 |
| 2020 | $340,978 | $300,000 | $0 | $640,978 | $640,978 |
| 2019 | $248,776 | $300,000 | $0 | $548,776 | $548,776 |
| 2018 | $249,503 | $300,000 | $0 | $549,503 | $549,503 |
| 2017 | $244,957 | $300,000 | $0 | $544,957 | $544,957 |
| 2016 | $158,712 | $300,000 | $0 | $458,712 | $458,712 |
| 2015 | $92,986 | $300,000 | $0 | $392,986 | $392,986 |
| 2014 | $80,374 | $290,000 | $0 | $370,374 | $370,374 |
| 2013 | $86,608 | $290,000 | $0 | $376,608 | $376,608 |
| 2012 | $88,154 | $431,184 | $0 | $519,338 | $519,338 |
| 2011 | $89,700 | $538,980 | $0 | $628,680 | $628,680 |
| 2010 | $79,928 | $538,980 | $0 | $618,908 | $618,908 |
| 2009 | $83,903 | $580,175 | $0 | $664,078 | $664,078 |
| 2008 | $85,486 | $701,188 | $0 | $786,674 | $786,674 |
| 2007 | $87,070 | $621,371 | $0 | $708,441 | $708,441 |
Deed and Sales History
| 1 | 08/02/2013 | SPWARDEED | Special Warranty Deed | WASHINGTON TRUST BANK TTEE | KLEIN, JAMES C | | | $370,000.00 | 12279 | 4345744 |
| 2 | 10/26/2007 | 5 | DNU - Marriage License/Name Change | HOLTZINGER, SANDRA F | WASHINGTON TRUST BANK TTEE, | | | $0.00 | 80944 | 4226525 |
| 3 | 10/26/2007 | PRD | Personal Representatives Deed | HOLTZINGER, CHARLES/SANDRA | HOLTZINGER, SANDRA F | | | $0.00 | 80943 | 4226524 |
| 4 | 09/01/1993 | WD | Warranty Deed | NAFF, ROBERT T | HOLTZINGER, CHARLES/SANDRA | | | $250,000.00 | 33716 | 93019299 |
| 5 | 03/01/1990 | QCD | Quit Claim Deed | NAFF, ROBERT T | NAFF, ROBERT T | | | $0.00 | 1698 | 90005468 |
| 6 | 06/01/1984 | OTHER | Other - Misc. Documents | NAFF, ROBERT T | NAFF, ROBERT T | | | $0.00 | 60664 | 426019 |
| 7 | 09/01/1974 | EXECUTORD | Executor Deed | Unknown | NAFF, ROBERT T | | | $31,500.00 | 52982 | 0 |
Payout Agreement
| No payout information available.. |