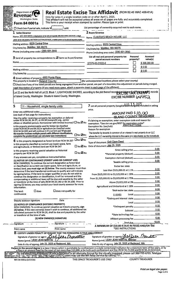
Property
Account |
| Property ID: | 95578 | Abbreviated Legal Description: | 98 - IN SE SE: BG 143'E OF NWCR SE SE S46*E191' E307.8 N59*W244' W238' TPB |
| Geographic ID: | R23234-127-4340 | Agent Code: | |
| Type: | Real | | |
| Tax Area: | 512 - APPRAISER-Stan/Cam Schl Dist, improved, greater than 1 acre | Land Use Code | 11 |
| Open Space: | N | DFL | N |
| Historic Property: | N | Remodel Property: | N |
| Multi-Family Redevelopment: | N | | |
| Township: | 32 | Section: | 34 |
| Range: | R2 |
Location |
| Address: | 890 MADRONA BEACH RD CAMANO ISLAND, WA 98282 | Mapsco: | |
| Neighborhood: | North Camano | Map ID: | 573 |
| Neighborhood CD: | 06-C |
Owner |
| Name: | MORGAN, JOHN | Owner ID: | 315274 |
| Mailing Address: | SARA MORGAN 890 MADRONA BEACH RD CAMANO ISLAND, WA 98282 | % Ownership: | 100.0000000000% |
| | | Exemptions: | |
Taxes and Assessment Details
Values
| (+) Improvement Homesite Value: | + | $0 | |
| (+) Improvement Non-Homesite Value: | + | $856,341 | |
| (+) Land Homesite Value: | + | $0 | |
| (+) Land Non-Homesite Value: | + | $330,000 | |
| (+) Curr Use (HS): | + | $0 | $0 |
| (+) Curr Use (NHS): | + | $0 | $0 |
| | | -------------------------- | |
| (=) Market Value: | = | $1,186,341 | |
| (–) Productivity Loss: | – | $0 | |
| | | -------------------------- | |
| (=) Subtotal: | = | $1,186,341 | |
| (+) Senior Appraised Value: | + | $0 | |
| (+) Non-Senior Appraised Value: | + | $1,186,341 | |
| | | -------------------------- | |
| (=) Total Appraised Value: | = | $1,186,341 | |
| (–) Senior Exemption Loss: | – | $0 | |
| (–) Exemption Loss: | – | $0 | |
| | | -------------------------- | |
| (=) Taxable Value: | = | $1,186,341 | |
Taxing Jurisdiction
| Owner: | MORGAN, JOHN | | |
| % Ownership: | 100.0000000000% | | |
| Total Value: | $1,186,341 | | |
| Tax Area: | 512 - APPRAISER-Stan/Cam Schl Dist, improved, greater than 1 acre |
| CF | Conservation Futures | 0.0316035091 | $1,186,341 | $1,186,341 | $37.49 | | |
| EMS1 | Fire & Rescue Dist #1 Camano GEN (EMS) | 0.3677864386 | $1,186,341 | $1,186,341 | $436.32 | | |
| FIRE1 | Fire & Rescue Dist #1 Camano GEN | 1.2502910536 | $1,186,341 | $1,186,341 | $1,483.27 | | |
| FIRE1BOND | Fire & Rescue Dist #1 Camano BOND | 0.1570001679 | $1,186,341 | $1,186,341 | $186.26 | | |
| CE | County Current Expense | 0.3708482477 | $1,186,341 | $1,186,341 | $439.95 | | |
| CR | County Roads | 0.4584763726 | $1,186,341 | $1,186,341 | $543.91 | | |
| LCIB | Library Sno-Isle BOND (Camano Island) | 0.0396325772 | $1,186,341 | $1,186,341 | $47.02 | | |
| LIB | Library Sno-Isle GEN | 0.3153421757 | $1,186,341 | $1,186,341 | $374.10 | | |
| SCH205_401 | School 205-401 Enrichment | 1.2698420524 | $1,186,341 | $1,186,341 | $1,506.47 | | |
| SCH205BOND | School 205-401 BOND | 0.9396497583 | $1,186,341 | $1,186,341 | $1,114.75 | | |
| ST | State School | 1.3035497053 | $1,186,341 | $1,186,341 | $1,546.45 | | |
| ST2 | State School Part 2 | 0.8169543533 | $1,186,341 | $1,186,341 | $969.19 | | |
| | Total Tax Rate: | 7.3209764117 | | | | | |
| | | | | Taxes w/Current Exemptions: | $8,685.18 | | |
| | | | | Taxes w/o Exemptions: | $8,685.18 | | |
Improvement / Building
| Improvement #1: | RESIDENTIAL | State Code: | Y | 2410.2 sqft | Value: | $856,341 |
| Bathrooms: | 3 | Bedrooms: | 3 | | Ceiling: | DRYWALL PAINTED | Cooling: | HEAT PUMP/CONV/V | | Exterior Wall/Cover: | CEMENT FIBER | Floor Covering: | LAMINATE/LVP | | Floor Structure: | WOOD W/SUBFLOOR | Foundation: | CONCRETE | | Interior Finish: | DRYWALL PAINT | Plumbing Fixture Cnt: | 16 | | Roof Slope: | 5" IN 12" | Roof Structure/Cover: | CJ ASPHALT |
|
| | Type | Description | Class CD | Sub Class CD | Year Built | Area |
| | BAS | BASE/MAIN FLOOR | 5 | 0 | 2025 | 2410.2 |
| | ENP | ENCLOSED PORCH | 5 | 0 | 2025 | 360.8 |
| | AGR | ATTACHED GARAGE | 5 | 0 | 2025 | 851.3 |
| | OP4 | OPEN PORCH W/CEILING-ROOF | 5 | 0 | 2025 | 62.5 |
| | OWP | OPEN WOOD PORCH W/STEPS | 5 | 0 | 2025 | 477.9 |
Sketch
| No sketches available for this property. |
Property Image
Land
| 1 | 16 | AC (00.51-01.00) | 0.7933 | 34556.15 | 0.00 | 0.00 | 1.00 | $330,000 | $0 |
Roll Value History
| 2026 | N/A | N/A | N/A | N/A | N/A |
| 2025 | $856,341 | $330,000 | $0 | $1,186,341 | $1,186,341 |
| 2024 | $10,000 | $170,000 | $0 | $180,000 | $180,000 |
| 2023 | $0 | $120,000 | $0 | $120,000 | $120,000 |
| 2022 | $0 | $110,000 | $0 | $110,000 | $110,000 |
| 2021 | $0 | $80,000 | $0 | $80,000 | $80,000 |
| 2020 | $0 | $80,000 | $0 | $80,000 | $80,000 |
| 2019 | $0 | $80,000 | $0 | $80,000 | $80,000 |
| 2018 | $0 | $7,000 | $0 | $7,000 | $7,000 |
| 2017 | $0 | $5,000 | $0 | $5,000 | $5,000 |
| 2016 | $0 | $5,000 | $0 | $5,000 | $5,000 |
| 2015 | $0 | $13,020 | $0 | $13,020 | $13,020 |
| 2014 | $0 | $13,020 | $0 | $13,020 | $13,020 |
| 2013 | $0 | $13,020 | $0 | $13,020 | $13,020 |
| 2012 | $0 | $13,020 | $0 | $13,020 | $13,020 |
| 2011 | $0 | $13,020 | $0 | $13,020 | $13,020 |
| 2010 | $0 | $13,020 | $0 | $13,020 | $13,020 |
| 2009 | $0 | $14,000 | $0 | $14,000 | $14,000 |
| 2008 | $0 | $15,000 | $0 | $15,000 | $15,000 |
| 2007 | $0 | $15,000 | $0 | $15,000 | $15,000 |
Deed and Sales History
| 1 | 01/29/2025 | WD | Warranty Deed | GETTER FINE HOMES, LLC | MORGAN, JOHN | | | $1,399,950.00 | 62435 | 4581766 |
| 2 | 06/06/2024 | WD | Warranty Deed | KENNING, BARRIE | GETTER FINE HOMES, LLC | | | $400,000.00 | 60263 | 4573257 |
| 3 | 04/05/2023 | WD | Warranty Deed | DEDONKER, MIKE | KENNING, BARRIE | | | $285,000.00 | 56328 | 4558509 |
| 4 | 04/23/2019 | WD | Warranty Deed | SMITH, LEONARD L | DEDONKER, MIKE | | | $30,000.00 | 38121 | 4461597 |
| 5 | 02/08/2002 | WD | Warranty Deed | LDS CHURCH REALESTATE DIV., | SMITH, LEONARD L | | | $32,500.00 | 20898 | 4013573 |
| 6 | 02/17/2000 | WD | Warranty Deed | BELLESSA, JAMES & | LDS CHURCH REALESTATE DIV., | | | $0.00 | 1216 | 20006023 |
| 7 | 02/01/1994 | WD | Warranty Deed | BELLESSA, JAMES L | BELLESSA, JAMES & | | | $0.00 | 40654 | 94004196 |
| 8 | 01/01/1900 | OTHER | Other - Misc. Documents | Unknown | BELLESSA, JAMES L | | | $0.00 | 0 | 0 |
Payout Agreement
| No payout information available.. |