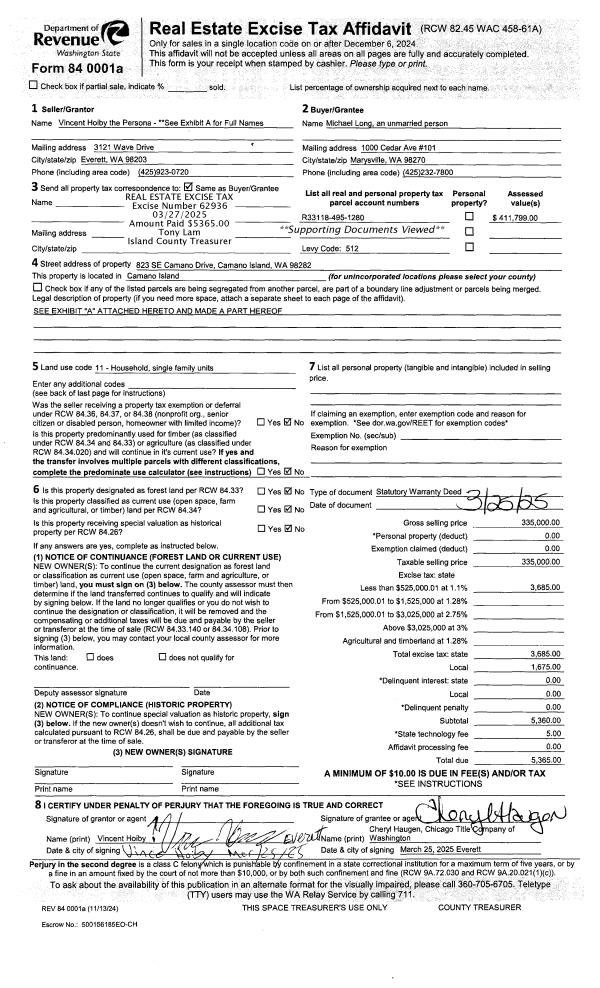
Property
Account |
| Property ID: | 95809 | Abbreviated Legal Description: | 115 - IN GL2: BG SECR LOT 77 2ND ADD MADRONA BCH S74*E TO ELN HIGHLAND DR N15*E60' TPB S74*E100' N15*E60' N74*W100' TO ELN HIGHLAND DR S15*W60' TPB |
| Geographic ID: | R23234-183-3820 | Agent Code: | |
| Type: | Real | | |
| Tax Area: | 510 - APPRAISER-Stan/Cam Schl Dist, improved & 1 acre or less | Land Use Code | 11 |
| Open Space: | N | DFL | N |
| Historic Property: | N | Remodel Property: | N |
| Multi-Family Redevelopment: | N | | |
| Township: | 32 | Section: | 34 |
| Range: | R2 |
Location |
| Address: | 138 TARRAGON AVE CAMANO ISLAND, WA 98282 | Mapsco: | |
| Neighborhood: | North Camano | Map ID: | 573 |
| Neighborhood CD: | 06-C |
Owner |
| Name: | JOHNSON, JUSTIN LUCAS | Owner ID: | 313781 |
| Mailing Address: | 138 TARRAGON AVE CAMANO ISLAND, WA 98282 | % Ownership: | 100.0000000000% |
| | | Exemptions: | |
Taxes and Assessment Details
Values
| (+) Improvement Homesite Value: | + | $0 | |
| (+) Improvement Non-Homesite Value: | + | $34,947 | |
| (+) Land Homesite Value: | + | $0 | |
| (+) Land Non-Homesite Value: | + | $220,000 | |
| (+) Curr Use (HS): | + | $0 | $0 |
| (+) Curr Use (NHS): | + | $0 | $0 |
| | | -------------------------- | |
| (=) Market Value: | = | $254,947 | |
| (–) Productivity Loss: | – | $0 | |
| | | -------------------------- | |
| (=) Subtotal: | = | $254,947 | |
| (+) Senior Appraised Value: | + | $0 | |
| (+) Non-Senior Appraised Value: | + | $254,947 | |
| | | -------------------------- | |
| (=) Total Appraised Value: | = | $254,947 | |
| (–) Senior Exemption Loss: | – | $0 | |
| (–) Exemption Loss: | – | $0 | |
| | | -------------------------- | |
| (=) Taxable Value: | = | $254,947 | |
Taxing Jurisdiction
| Owner: | JOHNSON, JUSTIN LUCAS | | |
| % Ownership: | 100.0000000000% | | |
| Total Value: | $254,947 | | |
| Tax Area: | 510 - APPRAISER-Stan/Cam Schl Dist, improved & 1 acre or less |
| CF | Conservation Futures | 0.0316035091 | $254,947 | $254,947 | $8.06 | | |
| EMS1 | Fire & Rescue Dist #1 Camano GEN (EMS) | 0.3677864386 | $254,947 | $254,947 | $93.77 | | |
| FIRE1 | Fire & Rescue Dist #1 Camano GEN | 1.2502910536 | $254,947 | $254,947 | $318.76 | | |
| FIRE1BOND | Fire & Rescue Dist #1 Camano BOND | 0.1570001679 | $254,947 | $254,947 | $40.03 | | |
| CE | County Current Expense | 0.3708482477 | $254,947 | $254,947 | $94.55 | | |
| CR | County Roads | 0.4584763726 | $254,947 | $254,947 | $116.89 | | |
| LCIB | Library Sno-Isle BOND (Camano Island) | 0.0396325772 | $254,947 | $254,947 | $10.10 | | |
| LIB | Library Sno-Isle GEN | 0.3153421757 | $254,947 | $254,947 | $80.40 | | |
| SCH205_401 | School 205-401 Enrichment | 1.2698420524 | $254,947 | $254,947 | $323.74 | | |
| SCH205BOND | School 205-401 BOND | 0.9396497583 | $254,947 | $254,947 | $239.56 | | |
| ST | State School | 1.3035497053 | $254,947 | $254,947 | $332.34 | | |
| ST2 | State School Part 2 | 0.8169543533 | $254,947 | $254,947 | $208.28 | | |
| | Total Tax Rate: | 7.3209764117 | | | | | |
| | | | | Taxes w/Current Exemptions: | $1,866.48 | | |
| | | | | Taxes w/o Exemptions: | $1,866.48 | | |
Improvement / Building
| Improvement #1: | MANUFACTURED HOME | State Code: | Y | 825.0 sqft | Value: | $34,947 |
| Bathrooms: | 0 | Bedrooms: | 0 | | Ceiling: | PLASTER PAINTED | Cooling: | EVAP NO DUCT | | Exterior Wall/Cover: | VINYL | Floor Covering: | CARPET 100% | | Floor Structure: | SLAB ON GRADE | Foundation: | SLAB | | Heating: | FHA ELECTRIC | Interior Finish: | PLASTER | | Plumbing Fixture Cnt: | 1 | Roof Slope: | FLAT | | Roof Structure/Cover: | CJ ALUMINIUM HEAVY |   |   |
|
| | Type | Description | Class CD | Sub Class CD | Year Built | Area |
| | BAS | BASE/MAIN FLOOR | 3 | 0 | 1968 | 825.0 |
| | OWC | OPEN WOOD PORCH W/STEPS/ROOF/C | 3 | 0 | 1968 | 389.0 |
| | UTY | STORAGE/UTILITY | 3 | 0 | 1968 | 216.0 |
| | OWP | OPEN WOOD PORCH W/STEPS | 3 | 0 | 1968 | 60.0 |
Sketch
| No sketches available for this property. |
Property Image
Land
| 1 | 12 | SQ (00000-06000) | 0.0000 | 0.00 | 0.00 | 0.00 | 1.00 | $220,000 | $0 |
Roll Value History
| 2026 | N/A | N/A | N/A | N/A | N/A |
| 2025 | $34,947 | $220,000 | $0 | $254,947 | $254,947 |
| 2024 | $37,709 | $210,000 | $0 | $247,709 | $247,709 |
| 2023 | $33,841 | $210,000 | $0 | $243,841 | $243,841 |
| 2022 | $15,795 | $210,000 | $0 | $225,795 | $225,795 |
| 2021 | $14,421 | $160,000 | $0 | $174,421 | $174,421 |
| 2020 | $14,669 | $130,000 | $0 | $144,669 | $144,669 |
| 2019 | $12,081 | $170,000 | $0 | $182,081 | $182,081 |
| 2018 | $8,906 | $120,000 | $0 | $128,906 | $128,906 |
| 2017 | $9,462 | $100,000 | $0 | $109,462 | $109,462 |
| 2016 | $4,599 | $90,000 | $0 | $94,599 | $94,599 |
| 2015 | $4,599 | $66,400 | $0 | $70,999 | $70,999 |
| 2014 | $4,599 | $66,400 | $0 | $70,999 | $70,999 |
| 2013 | $4,599 | $66,400 | $0 | $70,999 | $70,999 |
| 2012 | $4,859 | $66,400 | $0 | $71,259 | $71,259 |
| 2011 | $5,119 | $83,000 | $0 | $88,119 | $88,119 |
| 2010 | $11,734 | $83,000 | $0 | $94,734 | $94,734 |
| 2009 | $11,921 | $114,000 | $0 | $125,921 | $125,921 |
| 2008 | $11,921 | $100,000 | $0 | $111,921 | $111,921 |
| 2007 | $11,921 | $100,000 | $0 | $111,921 | $111,921 |
Deed and Sales History
| 1 | 09/06/2024 | MANHOME | Manufactured Home | OWREY, JOSHUA J | JOHNSON, JUSTIN LUCAS | | | $33,841.00 | 61180 | |
| 2 | 09/04/2024 | WD | Warranty Deed | OWREY, JOSHUA J | JOHNSON, JUSTIN LUCAS | | | $266,159.00 | 61178 | 4576738 |
| 3 | 06/15/2022 | MANHOME | Manufactured Home | RECTOR TTEE, MARY J | OWREY, JOSHUA J | | | $4,599.00 | 53479 | |
| 4 | 06/15/2022 | BARGSLD | Bargain And Sale Deed | RECTOR TTEE, MARY J | OWREY, JOSHUA J | | | $175,401.00 | 53478 | 4546712 |
| 5 | 06/13/2018 | WD | Warranty Deed | KUTROVICS, CSABA | RECTOR TTEE, MARY J | | | $155,000.00 | 34539 | 4446216 |
| 6 | 09/02/2014 | WD | Warranty Deed | ERDAHL, JAY M | KUTROVICS, CSABA | | | $59,000.00 | 16855 | 4365752 |
| 7 | 08/27/2004 | ESTSEPPROP | Establish Separate Property | ERDAHL, JAY M | ERDAHL, JAY M | | | $9,000.00 | 43979 | 4111199 |
| 8 | 04/01/1994 | OTHER | Other - Misc. Documents | ERDAHL, JAY M | ERDAHL, JAY M | | | $2,000.00 | 41660 | 0 |
| 9 | 04/01/1994 | WD | Warranty Deed | DONALDSON, MARYANN | ERDAHL, JAY M | | | $21,000.00 | 41661 | 94009992 |
| 10 | 10/01/1985 | OTHER | Other - Misc. Documents | DONALDSON, MARY A | DONALDSON, MARYANN | | | $0.00 | 61323 | 0 |
| 11 | 01/01/1900 | OTHER | Other - Misc. Documents | DONALDSON, JACK L | DONALDSON, MARY A | | | $0.00 | 0 | 0 |
| 12 | 01/01/1900 | OTHER | Other - Misc. Documents | Unknown | DONALDSON, JACK L | | | $0.00 | 0 | 0 |
Payout Agreement
| No payout information available.. |