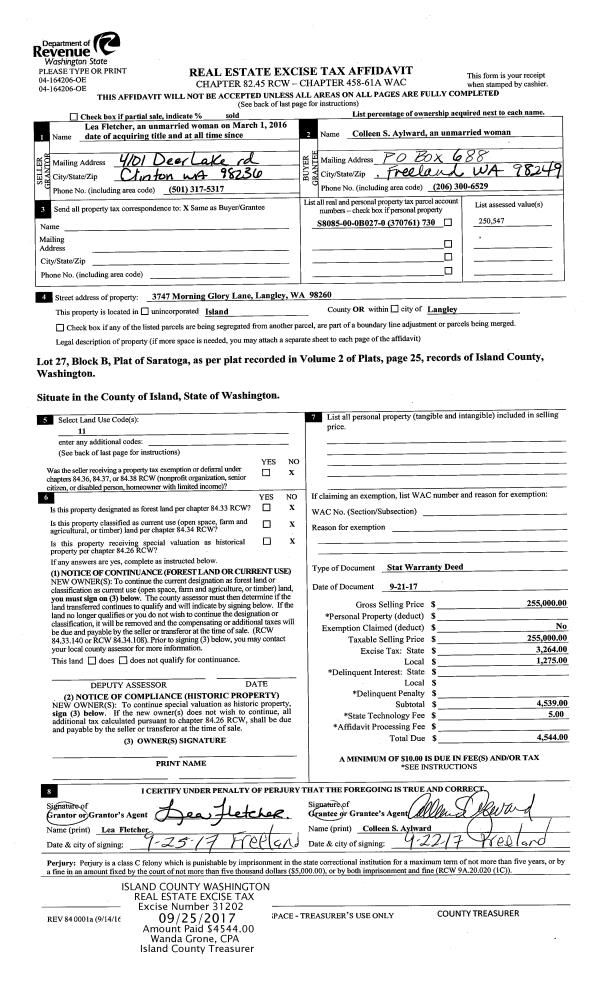
Property
Account |
| Property ID: | 95863 | Abbreviated Legal Description: | 128 - IN GL2: BG SE CR L70 2ND ADD MAD BCH S74*E TO ELN RD TPB S74*E100' S15*W 60' N74*W100' N15*E60' TPB |
| Geographic ID: | R23234-201-3870 | Agent Code: | |
| Type: | Real | | |
| Tax Area: | 510 - APPRAISER-Stan/Cam Schl Dist, improved & 1 acre or less | Land Use Code | 11 |
| Open Space: | N | DFL | N |
| Historic Property: | N | Remodel Property: | N |
| Multi-Family Redevelopment: | N | | |
| Township: | 32 | Section: | 34 |
| Range: | R2 |
Location |
| Address: | 150 TARRAGON AVE CAMANO ISLAND, WA 98282 | Mapsco: | |
| Neighborhood: | North Camano | Map ID: | 573 |
| Neighborhood CD: | 06-C |
Owner |
| Name: | BEAULAC, PENELOPE C | Owner ID: | 281965 |
| Mailing Address: | 150 TARRAGON AVE CAMANO ISLAND, WA 98282 | % Ownership: | 100.0000000000% |
| | | Exemptions: | |
Taxes and Assessment Details
Values
| (+) Improvement Homesite Value: | + | $0 | |
| (+) Improvement Non-Homesite Value: | + | $132,594 | |
| (+) Land Homesite Value: | + | $0 | |
| (+) Land Non-Homesite Value: | + | $220,000 | |
| (+) Curr Use (HS): | + | $0 | $0 |
| (+) Curr Use (NHS): | + | $0 | $0 |
| | | -------------------------- | |
| (=) Market Value: | = | $352,594 | |
| (–) Productivity Loss: | – | $0 | |
| | | -------------------------- | |
| (=) Subtotal: | = | $352,594 | |
| (+) Senior Appraised Value: | + | $0 | |
| (+) Non-Senior Appraised Value: | + | $352,594 | |
| | | -------------------------- | |
| (=) Total Appraised Value: | = | $352,594 | |
| (–) Senior Exemption Loss: | – | $0 | |
| (–) Exemption Loss: | – | $0 | |
| | | -------------------------- | |
| (=) Taxable Value: | = | $352,594 | |
Taxing Jurisdiction
| Owner: | BEAULAC, PENELOPE C | | |
| % Ownership: | 100.0000000000% | | |
| Total Value: | $352,594 | | |
| Tax Area: | 510 - APPRAISER-Stan/Cam Schl Dist, improved & 1 acre or less |
| CF | Conservation Futures | 0.0316035091 | $352,594 | $352,594 | $11.14 | | |
| EMS1 | Fire & Rescue Dist #1 Camano GEN (EMS) | 0.3677864386 | $352,594 | $352,594 | $129.68 | | |
| FIRE1 | Fire & Rescue Dist #1 Camano GEN | 1.2502910536 | $352,594 | $352,594 | $440.85 | | |
| FIRE1BOND | Fire & Rescue Dist #1 Camano BOND | 0.1570001679 | $352,594 | $352,594 | $55.36 | | |
| CE | County Current Expense | 0.3708482477 | $352,594 | $352,594 | $130.76 | | |
| CR | County Roads | 0.4584763726 | $352,594 | $352,594 | $161.66 | | |
| LCIB | Library Sno-Isle BOND (Camano Island) | 0.0396325772 | $352,594 | $352,594 | $13.97 | | |
| LIB | Library Sno-Isle GEN | 0.3153421757 | $352,594 | $352,594 | $111.19 | | |
| SCH205_401 | School 205-401 Enrichment | 1.2698420524 | $352,594 | $352,594 | $447.74 | | |
| SCH205BOND | School 205-401 BOND | 0.9396497583 | $352,594 | $352,594 | $331.31 | | |
| ST | State School | 1.3035497053 | $352,594 | $352,594 | $459.62 | | |
| ST2 | State School Part 2 | 0.8169543533 | $352,594 | $352,594 | $288.05 | | |
| | Total Tax Rate: | 7.3209764117 | | | | | |
| | | | | Taxes w/Current Exemptions: | $2,581.33 | | |
| | | | | Taxes w/o Exemptions: | $2,581.33 | | |
Improvement / Building
| Improvement #1: | RESIDENTIAL | State Code: | Y | 936.0 sqft | Value: | $132,594 |
| Bathrooms: | 1 | Bedrooms: | 2 | | Ceiling: | DRY WALL SPRAYED | Exterior Wall/Cover: | WOOD SIDING | | Floor Covering: | CARPET/VINYL 60-40 | Floor Structure: | WOOD W/SUBFLOOR | | Foundation: | CONCRETE | Heating: | BASEBOARD ELECTRIC | | Interior Finish: | DRYWALL PAINT | Plumbing Fixture Cnt: | 6 | | Roof Slope: | 3" IN 12" | Roof Structure/Cover: | BEAM ROLL COMPOSITION |
|
| | Type | Description | Class CD | Sub Class CD | Year Built | Area |
| | BAS | BASE/MAIN FLOOR | 3 | 0 | 1963 | 936.0 |
| | UTY | STORAGE/UTILITY | 3 | 0 | 1963 | 68.0 |
| | OWP | OPEN WOOD PORCH W/STEPS | 3 | 0 | 1963 | 268.0 |
Sketch
Property Image
Land
| 1 | 12 | SQ (00000-06000) | 0.0000 | 6098.40 | 0.00 | 0.00 | 1.00 | $220,000 | $0 |
Roll Value History
| 2026 | N/A | N/A | N/A | N/A | N/A |
| 2025 | $132,594 | $220,000 | $0 | $352,594 | $352,594 |
| 2024 | $137,482 | $210,000 | $0 | $347,482 | $347,482 |
| 2023 | $139,334 | $210,000 | $0 | $349,334 | $349,334 |
| 2022 | $105,540 | $210,000 | $0 | $315,540 | $315,540 |
| 2021 | $93,243 | $160,000 | $0 | $253,243 | $253,243 |
| 2020 | $91,072 | $130,000 | $0 | $221,072 | $221,072 |
| 2019 | $64,294 | $170,000 | $0 | $234,294 | $234,294 |
| 2018 | $64,539 | $120,000 | $0 | $184,539 | $184,539 |
| 2017 | $57,941 | $100,000 | $0 | $157,941 | $157,941 |
| 2016 | $50,386 | $90,000 | $0 | $140,386 | $140,386 |
| 2015 | $51,356 | $66,400 | $0 | $117,756 | $117,756 |
| 2014 | $52,324 | $66,400 | $0 | $118,724 | $118,724 |
| 2013 | $53,294 | $66,400 | $0 | $119,694 | $119,694 |
| 2012 | $54,262 | $66,400 | $0 | $120,662 | $120,662 |
| 2011 | $55,232 | $83,000 | $0 | $138,232 | $138,232 |
| 2010 | $58,158 | $83,000 | $0 | $141,158 | $141,158 |
| 2009 | $60,919 | $114,000 | $0 | $174,919 | $174,919 |
| 2008 | $61,906 | $100,000 | $0 | $161,906 | $161,906 |
| 2007 | $62,893 | $100,000 | $0 | $162,893 | $162,893 |
Deed and Sales History
| 1 | 09/13/2017 | WD | Warranty Deed | ODOM, DWIGHT M | BEAULAC, PENELOPE C | | | $245,000.00 | 31102 | 4430219 |
| 2 | 08/04/2004 | WD | Warranty Deed | MARTIN, MARY A | ODOM, DWIGHT M | | | $138,000.00 | 43678 | 4109562 |
| 3 | 08/17/1998 | WD | Warranty Deed | IWASAKI, JOHN S | MARTIN, MARY A | | | $92,500.00 | 83331 | 98017413 |
| 4 | 04/01/1987 | WD | Warranty Deed | SONDERLAND, ALBERTA M | IWASAKI, JOHN S | | | $32,000.00 | 71202 | 87005962 |
| 5 | 12/01/1982 | QCD | Quit Claim Deed | CARLSON, MABEL H | SONDERLAND, ALBERTA M | | | $0.00 | 30176 | 405101 |
| 6 | 01/01/1900 | OTHER | Other - Misc. Documents | Unknown | MARTIN, MARY A | | | $0.00 | 83331 | 98017413 |
| 7 | 01/01/1900 | OTHER | Other - Misc. Documents | MARTIN, MARY A | CARLSON, MABEL H | | | $0.00 | 0 | 0 |
Payout Agreement
| No payout information available.. |