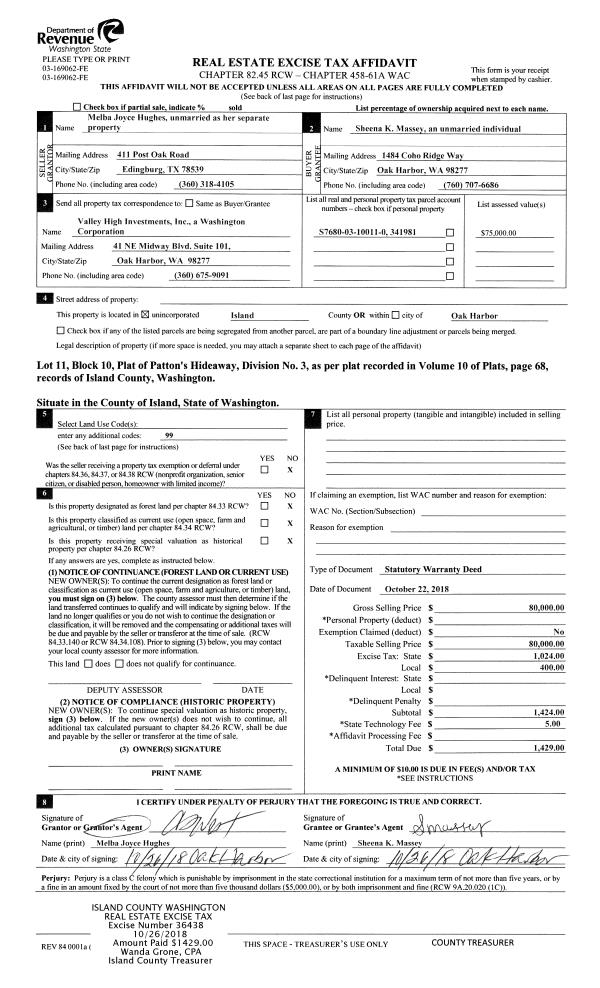
Property
Account |
| Property ID: | 95907 | Abbreviated Legal Description: | 120 - IN GL2: BG SECR LOT 68 2ND ADD TO MADRONA BCH S74*E TO ELN TARRAGON AVE NLY ALG SD ELN 20' TPB S77*E100' N12*E60' N77*W100 TO ELN SD RD S12*W ALG SD ELN 60' TPB |
| Geographic ID: | R23234-218-3910 | Agent Code: | |
| Type: | Real | | |
| Tax Area: | 510 - APPRAISER-Stan/Cam Schl Dist, improved & 1 acre or less | Land Use Code | 11 |
| Open Space: | N | DFL | N |
| Historic Property: | N | Remodel Property: | N |
| Multi-Family Redevelopment: | N | | |
| Township: | 32 | Section: | 34 |
| Range: | R2 |
Location |
| Address: | 164 TARRAGON AVE CAMANO ISLAND, WA 98282 | Mapsco: | |
| Neighborhood: | North Camano | Map ID: | 573 |
| Neighborhood CD: | 06-C |
Owner |
| Name: | MILLER MICHELE | Owner ID: | 283222 |
| Mailing Address: | 164 TARRAGON AVE CAMANO ISLAND, WA 98282 | % Ownership: | 100.0000000000% |
| | | Exemptions: | SNR/DSBL |
Taxes and Assessment Details
Values
| (+) Improvement Homesite Value: | + | $250,940 | |
| (+) Improvement Non-Homesite Value: | + | $0 | |
| (+) Land Homesite Value: | + | $220,000 | |
| (+) Land Non-Homesite Value: | + | $0 | |
| (+) Curr Use (HS): | + | $0 | $0 |
| (+) Curr Use (NHS): | + | $0 | $0 |
| | | -------------------------- | |
| (=) Market Value: | = | $470,940 | |
| (–) Productivity Loss: | – | $0 | |
| | | -------------------------- | |
| (=) Subtotal: | = | $470,940 | |
| (+) Senior Appraised Value: | + | $446,971 | |
| (+) Non-Senior Appraised Value: | + | $0 | |
| | | -------------------------- | |
| (=) Total Appraised Value: | = | $446,971 | |
| (–) Senior Exemption Loss: | – | $268,183 | |
| (–) Exemption Loss: | – | $0 | |
| | | -------------------------- | |
| (=) Taxable Value: | = | $178,788 | |
Taxing Jurisdiction
| Owner: | MILLER MICHELE | | |
| % Ownership: | 100.0000000000% | | |
| Total Value: | $470,940 | | |
| Tax Area: | 510 - APPRAISER-Stan/Cam Schl Dist, improved & 1 acre or less |
| CF | Conservation Futures | 0.0316035091 | $470,940 | $178,788 | $5.65 | | |
| EMS1 | Fire & Rescue Dist #1 Camano GEN (EMS) | 0.3677864386 | $470,940 | $178,788 | $65.76 | | |
| FIRE1 | Fire & Rescue Dist #1 Camano GEN | 1.2502910536 | $470,940 | $178,788 | $223.54 | | |
| FIRE1BOND | Fire & Rescue Dist #1 Camano BOND | 0.0000000000 | $470,940 | $0 | $0.00 | | |
| CE | County Current Expense | 0.3708482477 | $470,940 | $178,788 | $66.30 | | |
| CR | County Roads | 0.4584763726 | $470,940 | $178,788 | $81.97 | | |
| LCIB | Library Sno-Isle BOND (Camano Island) | 0.0000000000 | $470,940 | $0 | $0.00 | | |
| LIB | Library Sno-Isle GEN | 0.3153421757 | $470,940 | $178,788 | $56.38 | | |
| SCH205_401 | School 205-401 Enrichment | 0.0000000000 | $470,940 | $0 | $0.00 | | |
| SCH205BOND | School 205-401 BOND | 0.0000000000 | $470,940 | $0 | $0.00 | | |
| ST | State School | 1.3035497053 | $470,940 | $178,788 | $233.06 | | |
| ST2 | State School Part 2 | 0.0000000000 | $470,940 | $0 | $0.00 | | |
| | Total Tax Rate: | 4.0978975026 | | | | | |
| | | | | Taxes w/Current Exemptions: | $732.66 | | |
| | | | | Taxes w/o Exemptions: | $3,447.74 | | |
Improvement / Building
| Improvement #1: | RESIDENTIAL | State Code: | Y | 875.0 sqft | Value: | $250,940 |
| Bathrooms: | 1.5 | Bedrooms: | 1 | | Ceiling: | DRYWALL PAINTED | Exterior Wall/Cover: | CEMENT FIBER | | Floor Covering: | HARDWOOD 100% | Floor Structure: | WOOD W/SUBFLOOR | | Foundation: | CONCRETE | Heating: | WALL HEAT ELECTRIC | | Interior Finish: | DRYWALL PAINT | Plumbing Fixture Cnt: | 9 | | Roof Slope: | 4" IN 12" | Roof Structure/Cover: | CJ ASPHALT |
|
| | Type | Description | Class CD | Sub Class CD | Year Built | Area |
| | BAS | BASE/MAIN FLOOR | 3 | 0 | 2015 | 875.0 |
| | OP4 | OPEN PORCH W/CEILING-ROOF | 3 | 0 | 2015 | 220.0 |
| | DGR | DETACHED GARAGE | 3 | 0 | 2015 | 448.0 |
Sketch
Property Image
Land
| 1 | 12 | SQ (00000-06000) | 0.0000 | 6098.40 | 0.00 | 0.00 | 1.00 | $220,000 | $0 |
Roll Value History
| 2026 | N/A | N/A | N/A | N/A | N/A |
| 2025 | $250,940 | $220,000 | $0 | $470,940 | $178,788 |
| 2024 | $252,875 | $210,000 | $0 | $462,875 | $178,788 |
| 2023 | $254,948 | $210,000 | $0 | $464,948 | $178,788 |
| 2022 | $236,971 | $210,000 | $0 | $446,971 | $178,788 |
| 2021 | $207,743 | $160,000 | $0 | $367,743 | $367,743 |
| 2020 | $200,740 | $130,000 | $0 | $330,740 | $330,740 |
| 2019 | $141,648 | $170,000 | $0 | $311,648 | $311,648 |
| 2018 | $142,015 | $120,000 | $0 | $262,015 | $262,015 |
| 2017 | $139,340 | $100,000 | $0 | $239,340 | $239,340 |
| 2016 | $135,936 | $90,000 | $0 | $225,936 | $225,936 |
| 2015 | $138,710 | $66,400 | $0 | $205,110 | $205,110 |
| 2014 | $4,000 | $66,400 | $0 | $70,400 | $70,400 |
| 2013 | $4,000 | $66,400 | $0 | $70,400 | $70,400 |
| 2012 | $4,000 | $66,400 | $0 | $70,400 | $70,400 |
| 2011 | $4,000 | $83,000 | $0 | $87,000 | $87,000 |
| 2010 | $4,000 | $83,000 | $0 | $87,000 | $87,000 |
| 2009 | $7,995 | $114,000 | $0 | $121,995 | $121,995 |
| 2008 | $8,217 | $100,000 | $0 | $108,217 | $108,217 |
| 2007 | $8,441 | $100,000 | $0 | $108,441 | $108,441 |
Deed and Sales History
| 1 | 12/07/2017 | WD | Warranty Deed | CARLSON, MARK J | MILLER MICHELE | | | $350,000.00 | 32224 | 4435553 |
| 2 | 09/22/2015 | CCOMPROP | Create Community Property | CARLSON, MARK | CARLSON, MARK J | | | $0.00 | 21546 | 4386827 |
| 3 | 04/02/2015 | ESTSEPPROP | Establish Separate Property | CARLSON, MARK | CARLSON, MARK | | | $0.00 | 19054 | 4376184 |
| 4 | 11/14/2013 | WD | Warranty Deed | CHAPMAN, RONALD F | CARLSON, MARK | | | $67,000.00 | 13416 | 4351325 |
| 5 | 04/12/2007 | OTHER | Other - Misc. Documents | CHAPMAN, LAVENA & | CHAPMAN, LAVENA | | | $0.00 | 80167 | 0 |
| 6 | 04/09/2007 | QCD | Quit Claim Deed | CHAPMAN, LAVENA | CHAPMAN, RONALD F | | | $0.00 | 71243 | 4199708 |
| 7 | 06/01/1997 | WD | Warranty Deed | ROLL, DORMAN | CHAPMAN, LAVENA & | | | $45,000.00 | 71900 | 97008717 |
| 8 | 01/01/1900 | OTHER | Other - Misc. Documents | BUSSEY, DALE & | ROLL, DORMAN | | | $0.00 | 0 | 0 |
Payout Agreement
| No payout information available.. |