Property
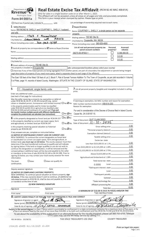
Account |
| Property ID: | 9608 | Abbreviated Legal Description: | OUT 2 W CROCKETT - BG NWCR W CROCKETT DLC S01*W404.74' S88*E997.25' S01*W1669.55' TPB S01*W200.17' S88*E290' S01*W440' TO NLY LN FT CASEY RD ELY ALG SD RD TO ELN W/2 SD DC N01*E ALG ELN TP S88*E FR TPB N88*W540.64 TPB TGW & SUB EZ AF#93021878 |
| Geographic ID: | R13115-287-2080 | Agent Code: | |
| Type: | Real | | |
| Tax Area: | 312 - APPRAISER-Cpvl Schl Dist, outside Cpvl, improved, greater than 1 acre | Land Use Code | 11 |
| Open Space: | N | DFL | N |
| Historic Property: | N | Remodel Property: | N |
| Multi-Family Redevelopment: | N | | |
| Township: | 31 | Section: | 15 |
| Range: | R1 |
Location |
| Address: | 987 BLOCKHOUSE RD COUPEVILLE, WA 98239 | Mapsco: | |
| Neighborhood: | Cycle 2 | Map ID: | 68 |
| Neighborhood CD: | 2 |
Owner |
| Name: | O'BRIEN, DEBORAH G | Owner ID: | 197240 |
| Mailing Address: | WILLIAM J O'BRIEN 987 BLOCKHOUSE RD COUPEVILLE, WA 98239-3508 | % Ownership: | 100.0000000000% |
| | | Exemptions: | |
Taxes and Assessment Details
Values
| (+) Improvement Homesite Value: | + | $0 | |
| (+) Improvement Non-Homesite Value: | + | $523,574 | |
| (+) Land Homesite Value: | + | $0 | |
| (+) Land Non-Homesite Value: | + | $325,353 | |
| (+) Curr Use (HS): | + | $0 | $0 |
| (+) Curr Use (NHS): | + | $0 | $0 |
| | | -------------------------- | |
| (=) Market Value: | = | $848,927 | |
| (–) Productivity Loss: | – | $0 | |
| | | -------------------------- | |
| (=) Subtotal: | = | $848,927 | |
| (+) Senior Appraised Value: | + | $0 | |
| (+) Non-Senior Appraised Value: | + | $848,927 | |
| | | -------------------------- | |
| (=) Total Appraised Value: | = | $848,927 | |
| (–) Senior Exemption Loss: | – | $0 | |
| (–) Exemption Loss: | – | $0 | |
| | | -------------------------- | |
| (=) Taxable Value: | = | $848,927 | |
Taxing Jurisdiction
| Owner: | O'BRIEN, DEBORAH G | | |
| % Ownership: | 100.0000000000% | | |
| Total Value: | $848,927 | | |
| Tax Area: | 312 - APPRAISER-Cpvl Schl Dist, outside Cpvl, improved, greater than 1 acre |
| CF | Conservation Futures | 0.0316035091 | $848,927 | $848,927 | $26.83 | | |
| CEM2 | Cemetery #2 | 0.0095056933 | $848,927 | $848,927 | $8.07 | | |
| FIRE5 | Fire & Rescue Dist #5 C Whidbey GEN | 1.2008080668 | $848,927 | $848,927 | $1,019.40 | | |
| FIRE5BOND | Fire & Rescue Dist #5 C Whidbey BOND | 0.1400090713 | $848,927 | $848,927 | $118.86 | | |
| HOBOND | Hospital BOND | 0.1910887512 | $848,927 | $848,927 | $162.22 | | |
| HOGEN | Hospital GEN | 0.3902502903 | $848,927 | $848,927 | $331.29 | | |
| CE | County Current Expense | 0.3708482477 | $848,927 | $848,927 | $314.82 | | |
| CR | County Roads | 0.4584763726 | $848,927 | $848,927 | $389.21 | | |
| ISLANDEMS | Hospital GEN (EMS) | 0.5000000000 | $848,927 | $848,927 | $424.46 | | |
| LIB | Library Sno-Isle GEN | 0.3153421757 | $848,927 | $848,927 | $267.70 | | |
| LIBCAP | Library Sno-Isle BOND (Cap Fac Imp Area) | 0.0543427938 | $848,927 | $848,927 | $46.13 | | |
| POCOUP | Port of Coupeville GEN | 0.1093371703 | $848,927 | $848,927 | $92.82 | | |
| POCOUPIDD | Port of Coupeville IDD | 0.3409740022 | $848,927 | $848,927 | $289.46 | | |
| COUPSDTECH | School 204 CP (TECH) | 0.7545480007 | $848,927 | $848,927 | $640.56 | | |
| SCH204MO | School 204 Enrichment | 0.6716186034 | $848,927 | $848,927 | $570.16 | | |
| ST | State School | 1.3035497053 | $848,927 | $848,927 | $1,106.62 | | |
| ST2 | State School Part 2 | 0.8169543533 | $848,927 | $848,927 | $693.53 | | |
| | Total Tax Rate: | 7.6592568070 | | | | | |
| | | | | Taxes w/Current Exemptions: | $6,502.14 | | |
| | | | | Taxes w/o Exemptions: | $6,502.14 | | |
Improvement / Building
| Improvement #1: | RESIDENTIAL | State Code: | Y | 1558.0 sqft | Value: | $446,528 |
| Bathrooms: | 2.5 | Bedrooms: | 2 | | Ceiling: | DRYWALL PAINTED | Exterior Wall/Cover: | WOOD SIDING | | Floor Covering: | CERAMIC TILE/CPT 40-60 | Floor Structure: | WOOD W/SUBFLOOR | | Foundation: | CONCRETE | Heating: | FHA GAS | | Interior Finish: | DRYWALL PAINT | Plumbing Fixture Cnt: | 14 | | Roof Slope: | 6" IN 12" | Roof Structure/Cover: | CJ ALUMINIUM HEAVY |
|
| | Type | Description | Class CD | Sub Class CD | Year Built | Area |
| | BAS | BASE/MAIN FLOOR | 3 | 0 | 1991 | 1558.0 |
| | DGR | DETACHED GARAGE | 3 | 0 | 1991 | 864.0 |
| | UTY | STORAGE/UTILITY | 3 | 0 | 1991 | 810.0 |
| | OWP | OPEN WOOD PORCH W/STEPS | 3 | 0 | 1991 | 1338.7 |
| | OWC | OPEN WOOD PORCH W/STEPS/ROOF/C | 3 | 0 | 1991 | 126.0 |
| Improvement #2: | RESIDENTIAL | State Code: | Y | 1000.0 sqft | Value: | $77,046 |
| Bathrooms: | 1 | Bedrooms: | 1 | | Ceiling: | DRYWALL PAINTED | Exterior Wall/Cover: | WOOD SIDING | | Floor Covering: | (NONE) | Floor Structure: | WOOD W/SUBFLOOR | | Foundation: | CONCRETE | Heating: | FHA GAS | | Interior Finish: | DRYWALL PAINT | Plumbing Fixture Cnt: | 4 | | Roof Slope: | 6" IN 12" | Roof Structure/Cover: | CJ ALUMINIUM HEAVY |
|
Sketch
Property Image
Land
| 1 | HS | HOMESITE | 1.0000 | 43560.00 | 0.00 | 0.00 | 1.00 | $270,000 | $0 |
| 2 | 91 | UNDEVELOPED LAND-METES AND BOUNDS | 2.7500 | 119790.00 | 0.00 | 0.00 | 1.00 | $55,353 | $0 |
Roll Value History
| 2026 | N/A | N/A | N/A | N/A | N/A |
| 2025 | $523,574 | $325,353 | $0 | $848,927 | $848,927 |
| 2024 | $424,812 | $320,000 | $0 | $744,812 | $744,812 |
| 2023 | $430,242 | $310,000 | $0 | $740,242 | $740,242 |
| 2022 | $394,518 | $290,000 | $0 | $684,518 | $684,518 |
| 2021 | $347,330 | $220,000 | $0 | $567,330 | $567,330 |
| 2020 | $337,686 | $200,000 | $0 | $537,686 | $537,686 |
| 2019 | $242,112 | $250,000 | $0 | $492,112 | $492,112 |
| 2018 | $225,643 | $210,000 | $0 | $435,643 | $435,643 |
| 2017 | $227,002 | $200,000 | $0 | $427,002 | $427,002 |
| 2016 | $229,721 | $200,000 | $0 | $429,721 | $429,721 |
| 2015 | $232,437 | $180,000 | $0 | $412,437 | $412,437 |
| 2014 | $235,156 | $180,000 | $0 | $415,156 | $415,156 |
| 2013 | $237,875 | $180,000 | $0 | $417,875 | $417,875 |
| 2012 | $240,592 | $180,000 | $0 | $420,592 | $420,592 |
| 2011 | $243,310 | $225,000 | $0 | $468,310 | $468,310 |
| 2010 | $253,654 | $225,000 | $0 | $478,654 | $478,654 |
| 2009 | $264,577 | $243,750 | $0 | $508,327 | $508,327 |
| 2008 | $257,722 | $300,000 | $0 | $557,722 | $557,722 |
| 2007 | $261,288 | $300,000 | $0 | $561,288 | $561,288 |
Deed and Sales History
| 1 | 07/26/2006 | WD | Warranty Deed | Unknown | O'BRIEN, DEBORAH G | | | $579,400.00 | 61611 | 4167562 |
| 2 | 05/01/1989 | WD | Warranty Deed | ERICKSON, RODNEY E | ERICKSON, RODNEY E | | | $28,950.00 | 91620 | 89005619 |
| 3 | 05/01/1989 | WD | Warranty Deed | MASER, GEORGE D | ERICKSON, RODNEY E | | | $0.00 | 91835 | 89006397 |
| 4 | 03/01/1988 | QCD | Quit Claim Deed | MASER, GEORGE L | MASER, GEORGE D | | | $0.00 | 80843 | 88003319 |
| 5 | 02/01/1985 | QCD | Quit Claim Deed | MASER, GEORGE D | MASER, GEORGE L | | | $0.00 | 50358 | 85001632 |
| 6 | 06/01/1983 | REC | Real Estate Contract | MERKLE, VERNON J | MASER, GEORGE D | | | $24,000.00 | 31651 | 411139 |
| 7 | 01/01/1979 | OTHER | Other - Misc. Documents | Unknown | MERKLE, VERNON J | | | $0.00 | 91461 | 350056 |
| 8 | 01/01/1900 | OTHER | Other - Misc. Documents | ERICKSON, RODNEY E | ERICKSON, MARY M | | | $0.00 | 70619 | 0 |
Payout Agreement
| No payout information available.. |