Property
Account |
| Property ID: | 96130 | Abbreviated Legal Description: | 19 - S/2 S/2 SE SE LY W OF CAMANO RIDGE RD & S OF CARP LAKE RD |
| Geographic ID: | R23235-009-4280 | Agent Code: | |
| Type: | Real | | |
| Tax Area: | 519 - APPRAISER-Stan/Cam Schl Dist, vacant & 50 acres or less | Land Use Code | 91 |
| Open Space: | N | DFL | N |
| Historic Property: | N | Remodel Property: | N |
| Multi-Family Redevelopment: | N | | |
| Township: | 32 | Section: | 35 |
| Range: | R2 |
Location |
| Address: | 467 CARP LAKE RD CAMANO ISLAND, WA 98282 | Mapsco: | |
| Neighborhood: | North Camano | Map ID: | 576 |
| Neighborhood CD: | 06-C |
Owner |
| Name: | HESTER, KERRY A | Owner ID: | 286163 |
| Mailing Address: | 20 NORTH CAMA RIDGE RD CAMANO ISLAND, WA 98282 | % Ownership: | 100.0000000000% |
| | | Exemptions: | |
Taxes and Assessment Details
Values
| (+) Improvement Homesite Value: | + | $0 | |
| (+) Improvement Non-Homesite Value: | + | $0 | |
| (+) Land Homesite Value: | + | $0 | |
| (+) Land Non-Homesite Value: | + | $180,000 | |
| (+) Curr Use (HS): | + | $0 | $0 |
| (+) Curr Use (NHS): | + | $0 | $0 |
| | | -------------------------- | |
| (=) Market Value: | = | $180,000 | |
| (–) Productivity Loss: | – | $0 | |
| | | -------------------------- | |
| (=) Subtotal: | = | $180,000 | |
| (+) Senior Appraised Value: | + | $0 | |
| (+) Non-Senior Appraised Value: | + | $180,000 | |
| | | -------------------------- | |
| (=) Total Appraised Value: | = | $180,000 | |
| (–) Senior Exemption Loss: | – | $0 | |
| (–) Exemption Loss: | – | $0 | |
| | | -------------------------- | |
| (=) Taxable Value: | = | $180,000 | |
Taxing Jurisdiction
| Owner: | HESTER, KERRY A | | |
| % Ownership: | 100.0000000000% | | |
| Total Value: | $180,000 | | |
| Tax Area: | 519 - APPRAISER-Stan/Cam Schl Dist, vacant & 50 acres or less |
| CF | Conservation Futures | 0.0316035091 | $180,000 | $180,000 | $5.69 | | |
| EMS1 | Fire & Rescue Dist #1 Camano GEN (EMS) | 0.3677864386 | $180,000 | $180,000 | $66.20 | | |
| CE | County Current Expense | 0.3708482477 | $180,000 | $180,000 | $66.75 | | |
| CR | County Roads | 0.4584763726 | $180,000 | $180,000 | $82.53 | | |
| LCIB | Library Sno-Isle BOND (Camano Island) | 0.0396325772 | $180,000 | $180,000 | $7.13 | | |
| LIB | Library Sno-Isle GEN | 0.3153421757 | $180,000 | $180,000 | $56.76 | | |
| SCH205_401 | School 205-401 Enrichment | 1.2698420524 | $180,000 | $180,000 | $228.57 | | |
| SCH205BOND | School 205-401 BOND | 0.9396497583 | $180,000 | $180,000 | $169.14 | | |
| ST | State School | 1.3035497053 | $180,000 | $180,000 | $234.64 | | |
| ST2 | State School Part 2 | 0.8169543533 | $180,000 | $180,000 | $147.05 | | |
| | Total Tax Rate: | 5.9136851902 | | | | | |
| | | | | Taxes w/Current Exemptions: | $1,064.46 | | |
| | | | | Taxes w/o Exemptions: | $1,064.46 | | |
Improvement / Building
Sketch
| No sketches available for this property. |
Property Image
Land
| 1 | 18 | AC (02.01-03.00) | 2.8500 | 124146.00 | 0.00 | 0.00 | 1.00 | $180,000 | $0 |
Roll Value History
| 2026 | N/A | N/A | N/A | N/A | N/A |
| 2025 | $0 | $180,000 | $0 | $180,000 | $180,000 |
| 2024 | $0 | $160,000 | $0 | $160,000 | $160,000 |
| 2023 | $0 | $140,000 | $0 | $140,000 | $140,000 |
| 2022 | $0 | $170,000 | $0 | $170,000 | $170,000 |
| 2021 | $0 | $100,000 | $0 | $100,000 | $100,000 |
| 2020 | $0 | $100,000 | $0 | $100,000 | $100,000 |
| 2019 | $0 | $100,000 | $0 | $100,000 | $100,000 |
| 2018 | $14,203 | $150,000 | $0 | $164,203 | $164,203 |
| 2017 | $14,677 | $120,000 | $0 | $134,677 | $134,677 |
| 2016 | $34,275 | $150,000 | $0 | $184,275 | $184,275 |
| 2015 | $35,034 | $74,400 | $0 | $109,434 | $109,434 |
| 2014 | $35,792 | $74,400 | $0 | $110,192 | $110,192 |
| 2013 | $36,551 | $74,400 | $0 | $110,951 | $110,951 |
| 2012 | $37,310 | $74,400 | $0 | $111,710 | $111,710 |
| 2011 | $37,689 | $93,000 | $0 | $130,689 | $130,689 |
| 2010 | $43,728 | $93,000 | $0 | $136,728 | $136,728 |
| 2009 | $45,738 | $118,000 | $0 | $163,738 | $163,738 |
| 2008 | $46,524 | $115,000 | $0 | $161,524 | $161,524 |
| 2007 | $47,747 | $115,000 | $0 | $162,747 | $162,747 |
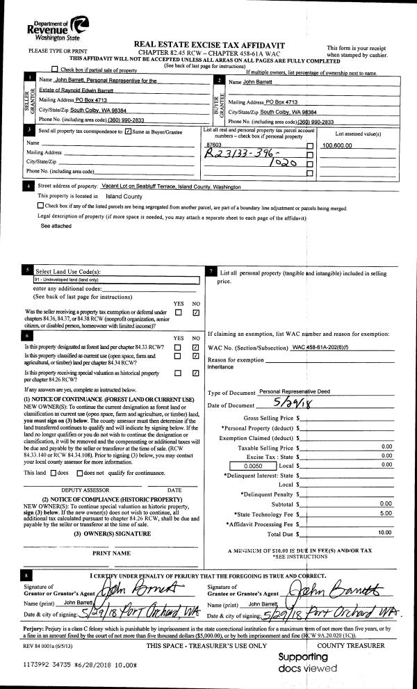
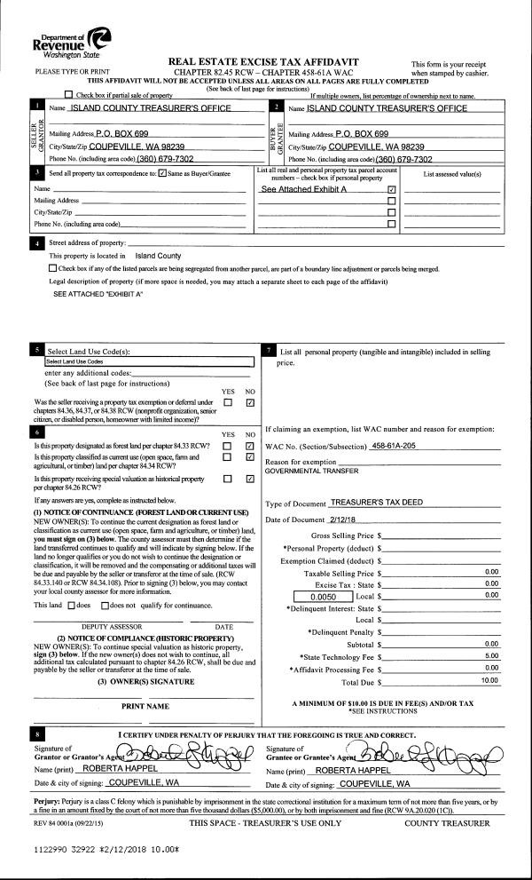
Deed and Sales History
| 1 | 07/09/2018 | WD | Warranty Deed | SELENE FINANCE LP | HESTER, KERRY A | | | $125,000.00 | 35159 | 4448673 |
| 2 | 05/07/2018 | SHERIFFD | Sheriff Deed | GERRARD, HEATHER L | SELENE FINANCE LP | | | $0.00 | 34178 | 4444764 |
| 3 | 03/12/2008 | WD | Warranty Deed | EGGERT, ERIK J | GERRARD, HEATHER L | | | $170,000.00 | 80599 | 4223877 |
| 4 | 10/01/1992 | WD | Warranty Deed | HOLZKNECT, EVAN & | EGGERT, ERIK J | | | $29,000.00 | 24085 | 92019891 |
| 5 | 05/01/1991 | QCD | Quit Claim Deed | HENRICKSON, CRAIG E | HOLZKNECT, EVAN & | | | $0.00 | 20027 | 92000133 |
| 6 | 05/01/1990 | WD | Warranty Deed | DAY, MARVIN A | HENRICKSON, CRAIG E | | | $26,500.00 | 2891 | 90009377 |
| 7 | 06/01/1978 | OTHER | Other - Misc. Documents | Unknown | DAY, MARVIN A | | | $6,000.00 | 82799 | 334602 |
Payout Agreement
| No payout information available.. |