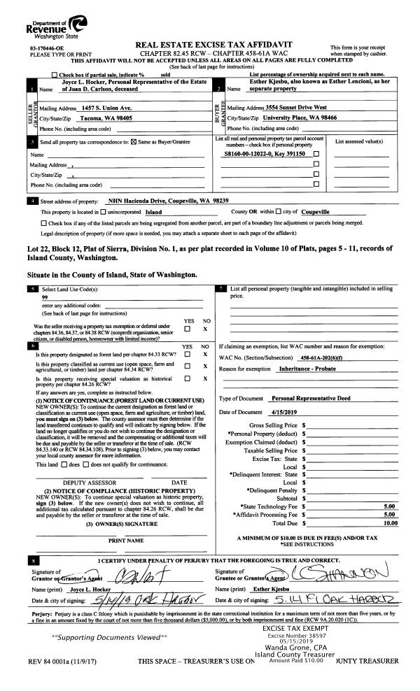
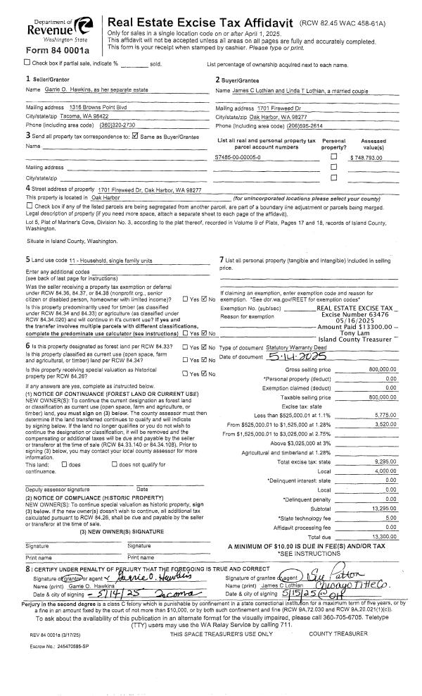
Property
Account |
| Property ID: | 9626 | Abbreviated Legal Description: | OUT 2 W CROCKETT - BG NW CR W CROCKETT DC S1*W1689.49' TPB S88*E380' S1*W597.44' N64*W119.27' N88*W270.7' TO SECR N D HILL DLC N64*W 21.83' N1*E540.95' S88*E20' TPB TGW & SUB EZ |
| Geographic ID: | R13115-322-0850 | Agent Code: | |
| Type: | Real | | |
| Tax Area: | 312 - APPRAISER-Cpvl Schl Dist, outside Cpvl, improved, greater than 1 acre | Land Use Code | 11 |
| Open Space: | N | DFL | N |
| Historic Property: | N | Remodel Property: | N |
| Multi-Family Redevelopment: | N | | |
| Township: | 31 | Section: | 15 |
| Range: | R1 |
Location |
| Address: | | Mapsco: | |
| Neighborhood: | Cycle 2 | Map ID: | 68 |
| Neighborhood CD: | 2 |
Owner |
| Name: | EGGERS, RYAN M | Owner ID: | 312876 |
| Mailing Address: | REGAN M EGGERS 1202 RIVERSTONE CIR ST GEORGE, UT 84790 | % Ownership: | 100.0000000000% |
| | | Exemptions: | |
Taxes and Assessment Details
Values
| (+) Improvement Homesite Value: | + | $0 | |
| (+) Improvement Non-Homesite Value: | + | $4,000 | |
| (+) Land Homesite Value: | + | $0 | |
| (+) Land Non-Homesite Value: | + | $260,485 | |
| (+) Curr Use (HS): | + | $0 | $0 |
| (+) Curr Use (NHS): | + | $0 | $0 |
| | | -------------------------- | |
| (=) Market Value: | = | $264,485 | |
| (–) Productivity Loss: | – | $0 | |
| | | -------------------------- | |
| (=) Subtotal: | = | $264,485 | |
| (+) Senior Appraised Value: | + | $0 | |
| (+) Non-Senior Appraised Value: | + | $264,485 | |
| | | -------------------------- | |
| (=) Total Appraised Value: | = | $264,485 | |
| (–) Senior Exemption Loss: | – | $0 | |
| (–) Exemption Loss: | – | $0 | |
| | | -------------------------- | |
| (=) Taxable Value: | = | $264,485 | |
Taxing Jurisdiction
| Owner: | EGGERS, RYAN M | | |
| % Ownership: | 100.0000000000% | | |
| Total Value: | $264,485 | | |
| Tax Area: | 312 - APPRAISER-Cpvl Schl Dist, outside Cpvl, improved, greater than 1 acre |
| CF | Conservation Futures | 0.0316035091 | $264,485 | $264,485 | $8.36 | | |
| CEM2 | Cemetery #2 | 0.0095056933 | $264,485 | $264,485 | $2.51 | | |
| FIRE5 | Fire & Rescue Dist #5 C Whidbey GEN | 1.2008080668 | $264,485 | $264,485 | $317.60 | | |
| FIRE5BOND | Fire & Rescue Dist #5 C Whidbey BOND | 0.1400090713 | $264,485 | $264,485 | $37.03 | | |
| HOBOND | Hospital BOND | 0.1910887512 | $264,485 | $264,485 | $50.54 | | |
| HOGEN | Hospital GEN | 0.3902502903 | $264,485 | $264,485 | $103.22 | | |
| CE | County Current Expense | 0.3708482477 | $264,485 | $264,485 | $98.08 | | |
| CR | County Roads | 0.4584763726 | $264,485 | $264,485 | $121.26 | | |
| ISLANDEMS | Hospital GEN (EMS) | 0.5000000000 | $264,485 | $264,485 | $132.24 | | |
| LIB | Library Sno-Isle GEN | 0.3153421757 | $264,485 | $264,485 | $83.40 | | |
| LIBCAP | Library Sno-Isle BOND (Cap Fac Imp Area) | 0.0543427938 | $264,485 | $264,485 | $14.37 | | |
| POCOUP | Port of Coupeville GEN | 0.1093371703 | $264,485 | $264,485 | $28.92 | | |
| POCOUPIDD | Port of Coupeville IDD | 0.3409740022 | $264,485 | $264,485 | $90.18 | | |
| COUPSDTECH | School 204 CP (TECH) | 0.7545480007 | $264,485 | $264,485 | $199.57 | | |
| SCH204MO | School 204 Enrichment | 0.6716186034 | $264,485 | $264,485 | $177.63 | | |
| ST | State School | 1.3035497053 | $264,485 | $264,485 | $344.77 | | |
| ST2 | State School Part 2 | 0.8169543533 | $264,485 | $264,485 | $216.07 | | |
| | Total Tax Rate: | 7.6592568070 | | | | | |
| | | | | Taxes w/Current Exemptions: | $2,025.75 | | |
| | | | | Taxes w/o Exemptions: | $2,025.75 | | |
Improvement / Building
| Improvement #1: | RESIDENTIAL | State Code: | Y | 0.0 sqft | Value: | $4,000 |
Sketch
| No sketches available for this property. |
Property Image
Land
| 1 | 91 | UNDEVELOPED LAND-METES AND BOUNDS | 5.1100 | 0.00 | 0.00 | 0.00 | 1.00 | $260,485 | $0 |
Roll Value History
| 2026 | N/A | N/A | N/A | N/A | N/A |
| 2025 | $4,000 | $260,485 | $0 | $264,485 | $264,485 |
| 2024 | $4,000 | $260,000 | $0 | $264,000 | $264,000 |
| 2023 | $4,000 | $250,000 | $0 | $254,000 | $254,000 |
| 2022 | $4,000 | $310,000 | $0 | $314,000 | $314,000 |
| 2021 | $4,000 | $220,000 | $0 | $224,000 | $224,000 |
| 2020 | $4,000 | $220,000 | $0 | $224,000 | $224,000 |
| 2019 | $4,000 | $200,000 | $0 | $204,000 | $204,000 |
| 2018 | $4,000 | $200,000 | $0 | $204,000 | $204,000 |
| 2017 | $4,000 | $200,000 | $0 | $204,000 | $204,000 |
| 2016 | $4,000 | $200,000 | $0 | $204,000 | $204,000 |
| 2015 | $4,000 | $178,850 | $0 | $182,850 | $182,850 |
| 2014 | $4,000 | $178,850 | $0 | $182,850 | $182,850 |
| 2013 | $4,000 | $252,945 | $0 | $256,945 | $256,945 |
| 2012 | $4,000 | $252,945 | $0 | $256,945 | $256,945 |
| 2011 | $4,000 | $281,050 | $0 | $285,050 | $285,050 |
| 2010 | $4,000 | $281,050 | $0 | $285,050 | $285,050 |
| 2009 | $4,000 | $306,600 | $0 | $310,600 | $310,600 |
| 2008 | $4,000 | $304,045 | $0 | $308,045 | $308,045 |
| 2007 | $4,000 | $202,111 | $0 | $206,111 | $206,111 |
Deed and Sales History
| 1 | 05/03/2024 | QCD | Quit Claim Deed | EGGERS, JOHN R | EGGERS, RYAN M | | | $176,228.00 | 60423 | 4573834 |
| 2 | 05/29/2019 | WD | Warranty Deed | THOMAS, THOMAS L | EGGERS, JOHN R | | | $240,000.00 | 38840 | 4464777 |
| 3 | 04/13/2016 | WD | Warranty Deed | JOHNSTON, CHRISTOPHER B | THOMAS, THOMAS L | | | $215,000.00 | 23868 | 4397468 |
| 4 | 11/24/2015 | QCD | Quit Claim Deed | JOHNSTON, VIOLET I | JOHNSTON, CHRISTOPHER B | | | $0.00 | 22484 | 4391064 |
| 5 | 08/24/2000 | QCD | Quit Claim Deed | JOHNSTON, GARRETT S | JOHNSTON, VIOLET I | | | $0.00 | 3439 | 20015912 |
| 6 | 09/01/1986 | WD | Warranty Deed | NYHOLM, KAY | JOHNSTON, GARRETT S | | | $39,950.00 | 62807 | 86012691 |
| 7 | 07/01/1982 | CD | DNU - Correction Deed | CLUMPNER, BARRIE J | NYHOLM, KAY | | | $0.00 | 21746 | 398626 |
| 8 | 08/01/1978 | OTHER | Other - Misc. Documents | Unknown | CLUMPNER, BARRIE J | | | $25,950.00 | 85878 | 343986 |
Payout Agreement
| No payout information available.. |