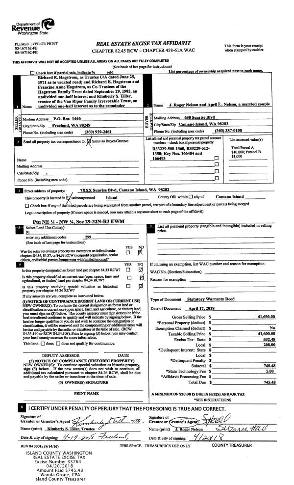
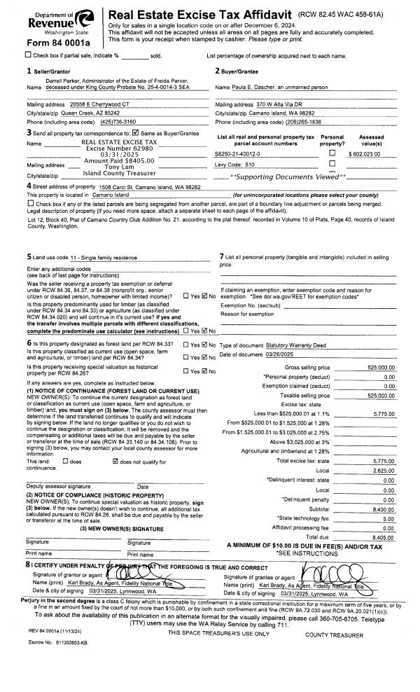
Property
Account |
| Property ID: | 9644 | Abbreviated Legal Description: | OUT 2 W CROCKETT - BG NWCR W CROCKETT DC S1*W404.74' S88*E997.25' S1*W1266.93' TPB s1*W402.62' S88*E540.64 N1*E402.62' N88*W541.32' TPB (TR 29 V5 SUR P11 AF#362772) |
| Geographic ID: | R13115-330-1920 | Agent Code: | |
| Type: | Real | | |
| Tax Area: | 312 - APPRAISER-Cpvl Schl Dist, outside Cpvl, improved, greater than 1 acre | Land Use Code | 11 |
| Open Space: | N | DFL | N |
| Historic Property: | N | Remodel Property: | N |
| Multi-Family Redevelopment: | N | | |
| Township: | 31 | Section: | 15 |
| Range: | R1 |
Location |
| Address: | | Mapsco: | |
| Neighborhood: | Cycle 2 | Map ID: | 68 |
| Neighborhood CD: | 2 |
Owner |
| Name: | GOVE TTEE, CHARLES A | Owner ID: | 312660 |
| Mailing Address: | SUSAN A GOVE TTEE 903 BLOCKHOUSE RD COUPEVILLE, WA 98239 | % Ownership: | 100.0000000000% |
| | | Exemptions: | |
Taxes and Assessment Details
Values
| (+) Improvement Homesite Value: | + | $0 | |
| (+) Improvement Non-Homesite Value: | + | $4,000 | |
| (+) Land Homesite Value: | + | $0 | |
| (+) Land Non-Homesite Value: | + | $250,000 | |
| (+) Curr Use (HS): | + | $0 | $0 |
| (+) Curr Use (NHS): | + | $0 | $0 |
| | | -------------------------- | |
| (=) Market Value: | = | $254,000 | |
| (–) Productivity Loss: | – | $0 | |
| | | -------------------------- | |
| (=) Subtotal: | = | $254,000 | |
| (+) Senior Appraised Value: | + | $0 | |
| (+) Non-Senior Appraised Value: | + | $254,000 | |
| | | -------------------------- | |
| (=) Total Appraised Value: | = | $254,000 | |
| (–) Senior Exemption Loss: | – | $0 | |
| (–) Exemption Loss: | – | $0 | |
| | | -------------------------- | |
| (=) Taxable Value: | = | $254,000 | |
Taxing Jurisdiction
| Owner: | GOVE TTEE, CHARLES A | | |
| % Ownership: | 100.0000000000% | | |
| Total Value: | $254,000 | | |
| Tax Area: | 312 - APPRAISER-Cpvl Schl Dist, outside Cpvl, improved, greater than 1 acre |
| CF | Conservation Futures | 0.0316035091 | $254,000 | $254,000 | $8.03 | | |
| CEM2 | Cemetery #2 | 0.0095056933 | $254,000 | $254,000 | $2.41 | | |
| FIRE5 | Fire & Rescue Dist #5 C Whidbey GEN | 1.2008080668 | $254,000 | $254,000 | $305.01 | | |
| FIRE5BOND | Fire & Rescue Dist #5 C Whidbey BOND | 0.1400090713 | $254,000 | $254,000 | $35.56 | | |
| HOBOND | Hospital BOND | 0.1910887512 | $254,000 | $254,000 | $48.54 | | |
| HOGEN | Hospital GEN | 0.3902502903 | $254,000 | $254,000 | $99.12 | | |
| CE | County Current Expense | 0.3708482477 | $254,000 | $254,000 | $94.20 | | |
| CR | County Roads | 0.4584763726 | $254,000 | $254,000 | $116.45 | | |
| ISLANDEMS | Hospital GEN (EMS) | 0.5000000000 | $254,000 | $254,000 | $127.00 | | |
| LIB | Library Sno-Isle GEN | 0.3153421757 | $254,000 | $254,000 | $80.10 | | |
| LIBCAP | Library Sno-Isle BOND (Cap Fac Imp Area) | 0.0543427938 | $254,000 | $254,000 | $13.80 | | |
| POCOUP | Port of Coupeville GEN | 0.1093371703 | $254,000 | $254,000 | $27.77 | | |
| POCOUPIDD | Port of Coupeville IDD | 0.3409740022 | $254,000 | $254,000 | $86.61 | | |
| COUPSDTECH | School 204 CP (TECH) | 0.7545480007 | $254,000 | $254,000 | $191.66 | | |
| SCH204MO | School 204 Enrichment | 0.6716186034 | $254,000 | $254,000 | $170.59 | | |
| ST | State School | 1.3035497053 | $254,000 | $254,000 | $331.10 | | |
| ST2 | State School Part 2 | 0.8169543533 | $254,000 | $254,000 | $207.51 | | |
| | Total Tax Rate: | 7.6592568070 | | | | | |
| | | | | Taxes w/Current Exemptions: | $1,945.46 | | |
| | | | | Taxes w/o Exemptions: | $1,945.46 | | |
Improvement / Building
| Improvement #1: | RESIDENTIAL | State Code: | Y | 0.0 sqft | Value: | $4,000 |
Sketch
| No sketches available for this property. |
Property Image
Land
| 1 | 91 | UNDEVELOPED LAND-METES AND BOUNDS | 5.0000 | 0.00 | 0.00 | 0.00 | 1.00 | $250,000 | $0 |
Roll Value History
| 2026 | N/A | N/A | N/A | N/A | N/A |
| 2025 | $4,000 | $250,000 | $0 | $254,000 | $254,000 |
| 2024 | $4,000 | $240,000 | $0 | $244,000 | $244,000 |
| 2023 | $4,000 | $230,000 | $0 | $234,000 | $234,000 |
| 2022 | $4,000 | $200,000 | $0 | $204,000 | $204,000 |
| 2021 | $4,000 | $220,000 | $0 | $224,000 | $224,000 |
| 2020 | $4,000 | $200,000 | $0 | $204,000 | $204,000 |
| 2019 | $4,000 | $200,000 | $0 | $204,000 | $204,000 |
| 2018 | $4,000 | $200,000 | $0 | $204,000 | $204,000 |
| 2017 | $4,000 | $200,000 | $0 | $204,000 | $204,000 |
| 2016 | $4,000 | $200,000 | $0 | $204,000 | $204,000 |
| 2015 | $4,000 | $200,000 | $0 | $204,000 | $204,000 |
| 2014 | $4,000 | $200,000 | $0 | $204,000 | $204,000 |
| 2013 | $4,000 | $247,500 | $0 | $251,500 | $251,500 |
| 2012 | $4,000 | $247,500 | $0 | $251,500 | $251,500 |
| 2011 | $4,000 | $275,000 | $0 | $279,000 | $279,000 |
| 2010 | $4,000 | $275,000 | $0 | $279,000 | $279,000 |
| 2009 | $4,000 | $300,000 | $0 | $304,000 | $304,000 |
| 2008 | $4,000 | $297,500 | $0 | $301,500 | $301,500 |
| 2007 | $4,000 | $197,760 | $0 | $201,760 | $201,760 |
Deed and Sales History
| 1 | 05/14/2024 | QCD | Quit Claim Deed | GOVE, CHARLES ALVIN | GOVE TTEE, CHARLES A | | | $0.00 | 60233 | 4573232 |
| 2 | 04/23/2018 | WD | Warranty Deed | DUMOUCHEL, LARRY / MARGARET | GOVE, CHARLES ALVIN | | | $230,000.00 | 33888 | 4443485 |
| 3 | 12/01/1995 | WD | Warranty Deed | FORT, CASEY I | DUMOUCHEL, LARRY/MARGARET | | | $70,000.00 | 54548 | 95020865 |
| 4 | 11/01/1981 | CD | DNU - Correction Deed | MARTELL, CARROLL L | FORT, CASEY I | | | $32,500.00 | 13782 | 391167 |
| 5 | 11/01/1981 | EXECUTORD | Executor Deed | BINA, GEORGE A | MARTELL, CARROLL L | | | $32,500.00 | 13783 | 391168 |
| 6 | 01/01/1979 | OTHER | Other - Misc. Documents | Unknown | BINA, GEORGE A | | | $0.00 | 91460 | 350055 |
Payout Agreement
| No payout information available.. |