Property
Account |
| Property ID: | 96461 | Abbreviated Legal Description: | 38 - N/2 NW NW SE TGW EZ EX E30' |
| Geographic ID: | R23235-240-2940 | Agent Code: | |
| Type: | Real | | |
| Tax Area: | 512 - APPRAISER-Stan/Cam Schl Dist, improved, greater than 1 acre | Land Use Code | 11 |
| Open Space: | N | DFL | N |
| Historic Property: | N | Remodel Property: | N |
| Multi-Family Redevelopment: | N | | |
| Township: | 32 | Section: | 35 |
| Range: | R2 |
Location |
| Address: | 183 GILBERTSON RD CAMANO ISLAND, WA 98282 | Mapsco: | |
| Neighborhood: | North Camano | Map ID: | 576 |
| Neighborhood CD: | 06-C |
Owner |
| Name: | STANAVITCH, MARK | Owner ID: | 284643 |
| Mailing Address: | ANNA STANAVITCH 183 GILBERTSON RD CAMANO ISLAND, WA 98282 | % Ownership: | 100.0000000000% |
| | | Exemptions: | |
Taxes and Assessment Details
Values
| (+) Improvement Homesite Value: | + | $0 | |
| (+) Improvement Non-Homesite Value: | + | $280,669 | |
| (+) Land Homesite Value: | + | $0 | |
| (+) Land Non-Homesite Value: | + | $360,000 | |
| (+) Curr Use (HS): | + | $0 | $0 |
| (+) Curr Use (NHS): | + | $0 | $0 |
| | | -------------------------- | |
| (=) Market Value: | = | $640,669 | |
| (–) Productivity Loss: | – | $0 | |
| | | -------------------------- | |
| (=) Subtotal: | = | $640,669 | |
| (+) Senior Appraised Value: | + | $0 | |
| (+) Non-Senior Appraised Value: | + | $640,669 | |
| | | -------------------------- | |
| (=) Total Appraised Value: | = | $640,669 | |
| (–) Senior Exemption Loss: | – | $0 | |
| (–) Exemption Loss: | – | $0 | |
| | | -------------------------- | |
| (=) Taxable Value: | = | $640,669 | |
Taxing Jurisdiction
| Owner: | STANAVITCH, MARK | | |
| % Ownership: | 100.0000000000% | | |
| Total Value: | $640,669 | | |
| Tax Area: | 512 - APPRAISER-Stan/Cam Schl Dist, improved, greater than 1 acre |
| CF | Conservation Futures | 0.0316035091 | $640,669 | $640,669 | $20.25 | | |
| EMS1 | Fire & Rescue Dist #1 Camano GEN (EMS) | 0.3677864386 | $640,669 | $640,669 | $235.63 | | |
| FIRE1 | Fire & Rescue Dist #1 Camano GEN | 1.2502910536 | $640,669 | $640,669 | $801.02 | | |
| FIRE1BOND | Fire & Rescue Dist #1 Camano BOND | 0.1570001679 | $640,669 | $640,669 | $100.59 | | |
| CE | County Current Expense | 0.3708482477 | $640,669 | $640,669 | $237.59 | | |
| CR | County Roads | 0.4584763726 | $640,669 | $640,669 | $293.73 | | |
| LCIB | Library Sno-Isle BOND (Camano Island) | 0.0396325772 | $640,669 | $640,669 | $25.39 | | |
| LIB | Library Sno-Isle GEN | 0.3153421757 | $640,669 | $640,669 | $202.03 | | |
| SCH205_401 | School 205-401 Enrichment | 1.2698420524 | $640,669 | $640,669 | $813.55 | | |
| SCH205BOND | School 205-401 BOND | 0.9396497583 | $640,669 | $640,669 | $602.00 | | |
| ST | State School | 1.3035497053 | $640,669 | $640,669 | $835.14 | | |
| ST2 | State School Part 2 | 0.8169543533 | $640,669 | $640,669 | $523.40 | | |
| | Total Tax Rate: | 7.3209764117 | | | | | |
| | | | | Taxes w/Current Exemptions: | $4,690.32 | | |
| | | | | Taxes w/o Exemptions: | $4,690.32 | | |
Improvement / Building
| Improvement #1: | RESIDENTIAL | State Code: | Y | 999.0 sqft | Value: | $280,669 |
| Bathrooms: | 1 | Bedrooms: | 1 | | Ceiling: | DRYWALL PAINTED | Exterior Wall/Cover: | VINYL | | Floor Covering: | VINYL 100% | Floor Structure: | SLAB ON GRADE | | Foundation: | CONCRETE | Heating: | FHA GAS | | Interior Finish: | DRYWALL PAINT | Plumbing Fixture Cnt: | 6 | | Roof Slope: | 3" IN 12" | Roof Structure/Cover: | CJ ALUMINIUM HEAVY |
|
| | Type | Description | Class CD | Sub Class CD | Year Built | Area |
| | BAS | BASE/MAIN FLOOR | 3 | 0 | 2020 | 999.0 |
| | AGR | ATTACHED GARAGE | 3 | 0 | 2020 | 1512.0 |
| | OP3 | OPEN PORCH W/ROOF | 3 | 0 | 2020 | 351.0 |
Sketch
Property Image
Land
| 1 | 32 | AC (03.01-09.99) | 4.7700 | 0.00 | 0.00 | 0.00 | 1.00 | $360,000 | $0 |
Roll Value History
| 2026 | N/A | N/A | N/A | N/A | N/A |
| 2025 | $280,669 | $360,000 | $0 | $640,669 | $640,669 |
| 2024 | $282,915 | $340,000 | $0 | $622,915 | $622,915 |
| 2023 | $285,159 | $320,000 | $0 | $605,159 | $605,159 |
| 2022 | $260,933 | $300,000 | $0 | $560,933 | $560,933 |
| 2021 | $231,020 | $230,000 | $0 | $461,020 | $461,020 |
| 2020 | $226,985 | $190,000 | $0 | $416,985 | $416,985 |
| 2019 | $0 | $140,000 | $0 | $140,000 | $140,000 |
| 2018 | $0 | $120,000 | $0 | $120,000 | $120,000 |
| 2017 | $0 | $90,000 | $0 | $90,000 | $90,000 |
| 2016 | $0 | $90,000 | $0 | $90,000 | $90,000 |
| 2015 | $0 | $91,584 | $0 | $91,584 | $91,584 |
| 2014 | $0 | $91,584 | $0 | $91,584 | $91,584 |
| 2013 | $0 | $91,584 | $0 | $91,584 | $91,584 |
| 2012 | $0 | $91,584 | $0 | $91,584 | $91,584 |
| 2011 | $0 | $114,480 | $0 | $114,480 | $114,480 |
| 2010 | $0 | $114,480 | $0 | $114,480 | $114,480 |
| 2009 | $0 | $143,100 | $0 | $143,100 | $143,100 |
| 2008 | $0 | $157,410 | $0 | $157,410 | $157,410 |
| 2007 | $0 | $125,000 | $0 | $125,000 | $125,000 |
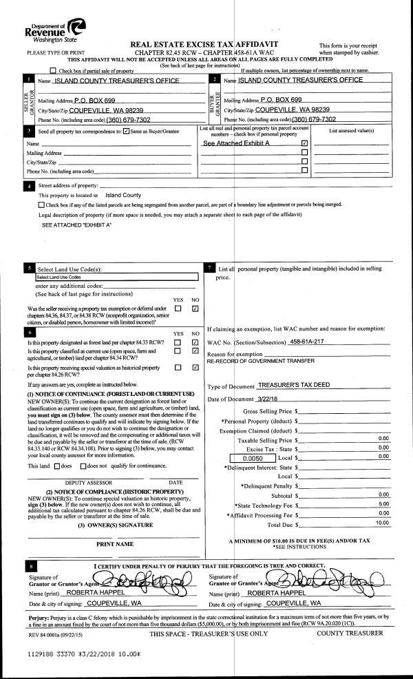
Deed and Sales History
| 1 | 04/12/2018 | WD | Warranty Deed | CHANDLER, JOEL F | STANAVITCH, MARK | | | $110,000.00 | 33719 | 4442812 |
| 2 | 11/02/2005 | WD | Warranty Deed | NICHOLS, SUSAN P | CHANDLER, JOEL F | | | $140,000.00 | 55677 | 4153763 |
| 3 | 02/01/1981 | EXECUTORD | Executor Deed | BALDWIN, CLARK J | NICHOLS, SUSAN P | | | $17,500.00 | 10772 | 380661 |
| 4 | 03/01/1979 | OTHER | Other - Misc. Documents | Unknown | BALDWIN, CLARK J | | | $12,000.00 | 91302 | 349584 |
Payout Agreement
| No payout information available.. |