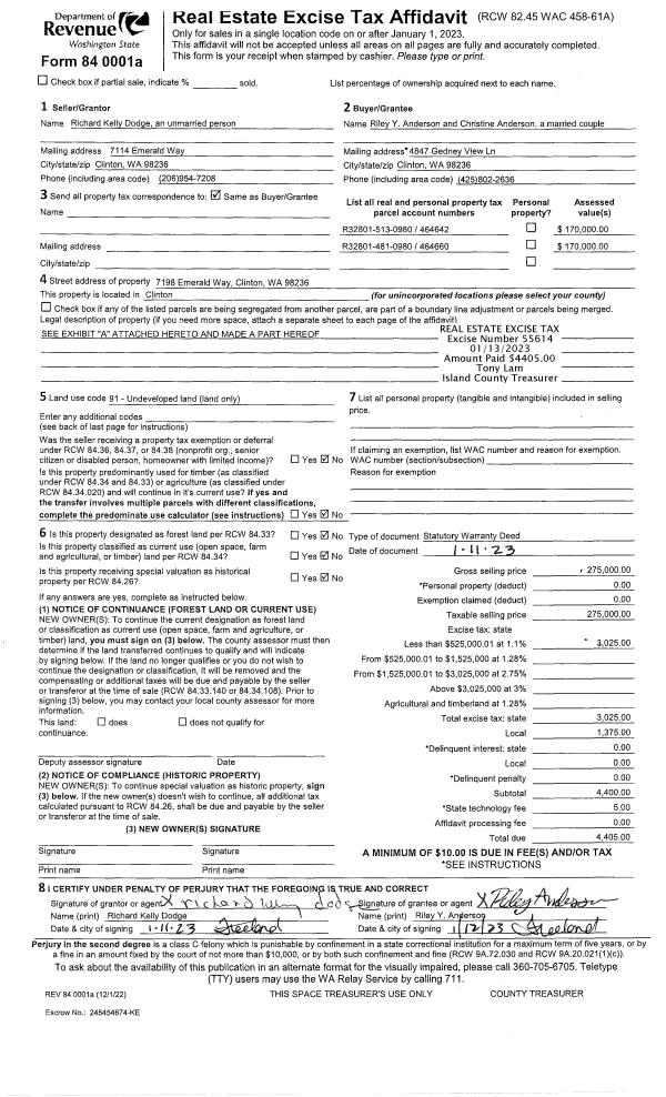
Property
Account |
| Property ID: | 96817 | Abbreviated Legal Description: | 86 - NE SW NE NE EX E30' SUB EZ |
| Geographic ID: | R23235-446-4450 | Agent Code: | |
| Type: | Real | | |
| Tax Area: | 512 - APPRAISER-Stan/Cam Schl Dist, improved, greater than 1 acre | Land Use Code | 11 |
| Open Space: | N | DFL | N |
| Historic Property: | N | Remodel Property: | N |
| Multi-Family Redevelopment: | N | | |
| Township: | 32 | Section: | 35 |
| Range: | R2 |
Location |
| Address: | 345 N CAMANO RIDGE RD CAMANO ISLAND, WA 98282 | Mapsco: | |
| Neighborhood: | North Camano | Map ID: | 578 |
| Neighborhood CD: | 06-C |
Owner |
| Name: | PETERSON, TANNER LEE CARL | Owner ID: | 305378 |
| Mailing Address: | 345 N CAMANO RIDGE RD CAMANO ISLAND, WA 98282 | % Ownership: | 100.0000000000% |
| | | Exemptions: | |
Taxes and Assessment Details
Values
| (+) Improvement Homesite Value: | + | $0 | |
| (+) Improvement Non-Homesite Value: | + | $125,155 | |
| (+) Land Homesite Value: | + | $0 | |
| (+) Land Non-Homesite Value: | + | $310,000 | |
| (+) Curr Use (HS): | + | $0 | $0 |
| (+) Curr Use (NHS): | + | $0 | $0 |
| | | -------------------------- | |
| (=) Market Value: | = | $435,155 | |
| (–) Productivity Loss: | – | $0 | |
| | | -------------------------- | |
| (=) Subtotal: | = | $435,155 | |
| (+) Senior Appraised Value: | + | $0 | |
| (+) Non-Senior Appraised Value: | + | $435,155 | |
| | | -------------------------- | |
| (=) Total Appraised Value: | = | $435,155 | |
| (–) Senior Exemption Loss: | – | $0 | |
| (–) Exemption Loss: | – | $0 | |
| | | -------------------------- | |
| (=) Taxable Value: | = | $435,155 | |
Taxing Jurisdiction
| Owner: | PETERSON, TANNER LEE CARL | | |
| % Ownership: | 100.0000000000% | | |
| Total Value: | $435,155 | | |
| Tax Area: | 512 - APPRAISER-Stan/Cam Schl Dist, improved, greater than 1 acre |
| CF | Conservation Futures | 0.0316035091 | $435,155 | $435,155 | $13.75 | | |
| EMS1 | Fire & Rescue Dist #1 Camano GEN (EMS) | 0.3677864386 | $435,155 | $435,155 | $160.04 | | |
| FIRE1 | Fire & Rescue Dist #1 Camano GEN | 1.2502910536 | $435,155 | $435,155 | $544.07 | | |
| FIRE1BOND | Fire & Rescue Dist #1 Camano BOND | 0.1570001679 | $435,155 | $435,155 | $68.32 | | |
| CE | County Current Expense | 0.3708482477 | $435,155 | $435,155 | $161.38 | | |
| CR | County Roads | 0.4584763726 | $435,155 | $435,155 | $199.51 | | |
| LCIB | Library Sno-Isle BOND (Camano Island) | 0.0396325772 | $435,155 | $435,155 | $17.25 | | |
| LIB | Library Sno-Isle GEN | 0.3153421757 | $435,155 | $435,155 | $137.22 | | |
| SCH205_401 | School 205-401 Enrichment | 1.2698420524 | $435,155 | $435,155 | $552.58 | | |
| SCH205BOND | School 205-401 BOND | 0.9396497583 | $435,155 | $435,155 | $408.89 | | |
| ST | State School | 1.3035497053 | $435,155 | $435,155 | $567.25 | | |
| ST2 | State School Part 2 | 0.8169543533 | $435,155 | $435,155 | $355.50 | | |
| | Total Tax Rate: | 7.3209764117 | | | | | |
| | | | | Taxes w/Current Exemptions: | $3,185.76 | | |
| | | | | Taxes w/o Exemptions: | $3,185.76 | | |
Improvement / Building
| Improvement #1: | MANUFACTURED HOME | State Code: | Y | 1188.0 sqft | Value: | $125,155 |
| Bathrooms: | 2 | Bedrooms: | 3 | | Ceiling: | PLASTER PAINTED | Cooling: | EVAP NO DUCT | | Exterior Wall/Cover: | VINYL | Floor Covering: | CARPET 100% | | Floor Structure: | SLAB ON GRADE | Foundation: | SLAB | | Heating: | FHA ELECTRIC | Interior Finish: | PLASTER | | Plumbing Fixture Cnt: | 1 | Roof Slope: | FLAT | | Roof Structure/Cover: | CJ ALUMINIUM HEAVY |   |   |
|
| | Type | Description | Class CD | Sub Class CD | Year Built | Area |
| | BAS | BASE/MAIN FLOOR | 4 | 0 | 1995 | 1188.0 |
| | oPOL | POLE BARN | 4 | | 1995 | 1728.0 |
| | ENP | ENCLOSED PORCH | 4 | 0 | 1995 | 49.0 |
| | UTY | STORAGE/UTILITY | 4 | 0 | 1995 | 286.0 |
Sketch
Property Image
Land
| 1 | 18 | AC (02.01-03.00) | 2.2800 | 99316.80 | 0.00 | 0.00 | 1.00 | $310,000 | $0 |
Roll Value History
| 2026 | N/A | N/A | N/A | N/A | N/A |
| 2025 | $125,155 | $310,000 | $0 | $435,155 | $435,155 |
| 2024 | $128,251 | $300,000 | $0 | $428,251 | $428,251 |
| 2023 | $120,773 | $300,000 | $0 | $420,773 | $420,773 |
| 2022 | $106,132 | $260,000 | $0 | $366,132 | $366,132 |
| 2021 | $99,363 | $190,000 | $0 | $289,363 | $289,363 |
| 2020 | $99,427 | $150,000 | $0 | $249,427 | $249,427 |
| 2019 | $88,233 | $180,000 | $0 | $268,233 | $268,233 |
| 2018 | $89,652 | $150,000 | $0 | $239,652 | $239,652 |
| 2017 | $91,071 | $120,000 | $0 | $211,071 | $211,071 |
| 2016 | $77,259 | $140,000 | $0 | $217,259 | $217,259 |
| 2015 | $78,649 | $74,400 | $0 | $153,049 | $153,049 |
| 2014 | $80,039 | $74,400 | $0 | $154,439 | $154,439 |
| 2013 | $80,734 | $74,400 | $0 | $155,134 | $155,134 |
| 2012 | $82,124 | $74,400 | $0 | $156,524 | $156,524 |
| 2011 | $83,513 | $93,000 | $0 | $176,513 | $176,513 |
| 2010 | $90,796 | $93,000 | $0 | $183,796 | $183,796 |
| 2009 | $94,215 | $114,000 | $0 | $208,215 | $208,215 |
| 2008 | $96,354 | $115,000 | $0 | $211,354 | $211,354 |
| 2007 | $99,097 | $115,000 | $0 | $214,097 | $214,097 |
Deed and Sales History
| 1 | 08/03/2022 | WD | Warranty Deed | SAN CARTIER, PETER J | PETERSON, TANNER LEE CARL | | | $520,000.00 | 54070 | 4549316 |
| 2 | 05/08/2006 | ESTSEPPROP | Establish Separate Property | SANCARTIER, PETER J | SAN CARTIER, PETER J | | | $0.00 | 62138 | 4170569 |
| 3 | 01/03/2000 | WD | Warranty Deed | SUN MOUNTAIN CONST INC, | SANCARTIER, PETER J | | | $68,000.00 | 144 | 20000849 |
| 4 | 06/15/1999 | WD | Warranty Deed | JOHNSON, ELVIN R | SUN MOUNTAIN CONST INC, | | | $45,000.00 | 92335 | 99014384 |
| 5 | 04/01/1981 | EXECUTORD | Executor Deed | JERRY, L K | JOHNSON, ELVIN R | | | $12,500.00 | 11342 | 382540 |
| 6 | 02/01/1979 | OTHER | Other - Misc. Documents | MA, | JERRY, L K | | | $16,500.00 | 90781 | 347878 |
| 7 | 01/01/1979 | OTHER | Other - Misc. Documents | SANCARTIER, PETER J | MA, | | | $1,950.00 | 915570 | 3503590 |
| 8 | 01/01/1900 | PACD | Purchaser's Assignment | Unknown | SANCARTIER, PETER J | | | $0.00 | 0 | 0 |
Payout Agreement
| No payout information available.. |