Property
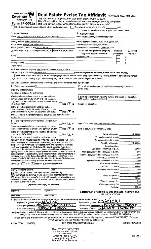
Account |
| Property ID: | 97077 | Abbreviated Legal Description: | 24 - E495' OF W990' OF N440 EX CO RD TGW EZS |
| Geographic ID: | R23236-509-0750 | Agent Code: | |
| Type: | Real | | |
| Tax Area: | 512 - APPRAISER-Stan/Cam Schl Dist, improved, greater than 1 acre | Land Use Code | 11 |
| Open Space: | N | DFL | N |
| Historic Property: | N | Remodel Property: | N |
| Multi-Family Redevelopment: | N | | |
| Township: | 32 | Section: | 36 |
| Range: | R2 |
Location |
| Address: | 381 WINDSUN WAY CAMANO ISLAND, WA 98282 | Mapsco: | |
| Neighborhood: | North Camano | Map ID: | 581 |
| Neighborhood CD: | 06-C |
Owner |
| Name: | DUNN, CHRISTOPHER E | Owner ID: | 300993 |
| Mailing Address: | CRYSTAL DUNN 381 WINDSUN WAY CAMANO ISLAND, WA 98282 | % Ownership: | 100.0000000000% |
| | | Exemptions: | |
Taxes and Assessment Details
Values
| (+) Improvement Homesite Value: | + | $0 | |
| (+) Improvement Non-Homesite Value: | + | $255,159 | |
| (+) Land Homesite Value: | + | $0 | |
| (+) Land Non-Homesite Value: | + | $330,000 | |
| (+) Curr Use (HS): | + | $0 | $0 |
| (+) Curr Use (NHS): | + | $0 | $0 |
| | | -------------------------- | |
| (=) Market Value: | = | $585,159 | |
| (–) Productivity Loss: | – | $0 | |
| | | -------------------------- | |
| (=) Subtotal: | = | $585,159 | |
| (+) Senior Appraised Value: | + | $0 | |
| (+) Non-Senior Appraised Value: | + | $585,159 | |
| | | -------------------------- | |
| (=) Total Appraised Value: | = | $585,159 | |
| (–) Senior Exemption Loss: | – | $0 | |
| (–) Exemption Loss: | – | $0 | |
| | | -------------------------- | |
| (=) Taxable Value: | = | $585,159 | |
Taxing Jurisdiction
| Owner: | DUNN, CHRISTOPHER E | | |
| % Ownership: | 100.0000000000% | | |
| Total Value: | $585,159 | | |
| Tax Area: | 512 - APPRAISER-Stan/Cam Schl Dist, improved, greater than 1 acre |
| CF | Conservation Futures | 0.0316035091 | $585,159 | $585,159 | $18.49 | | |
| EMS1 | Fire & Rescue Dist #1 Camano GEN (EMS) | 0.3677864386 | $585,159 | $585,159 | $215.21 | | |
| FIRE1 | Fire & Rescue Dist #1 Camano GEN | 1.2502910536 | $585,159 | $585,159 | $731.62 | | |
| FIRE1BOND | Fire & Rescue Dist #1 Camano BOND | 0.1570001679 | $585,159 | $585,159 | $91.87 | | |
| CE | County Current Expense | 0.3708482477 | $585,159 | $585,159 | $217.01 | | |
| CR | County Roads | 0.4584763726 | $585,159 | $585,159 | $268.28 | | |
| LCIB | Library Sno-Isle BOND (Camano Island) | 0.0396325772 | $585,159 | $585,159 | $23.19 | | |
| LIB | Library Sno-Isle GEN | 0.3153421757 | $585,159 | $585,159 | $184.53 | | |
| SCH205_401 | School 205-401 Enrichment | 1.2698420524 | $585,159 | $585,159 | $743.06 | | |
| SCH205BOND | School 205-401 BOND | 0.9396497583 | $585,159 | $585,159 | $549.84 | | |
| ST | State School | 1.3035497053 | $585,159 | $585,159 | $762.78 | | |
| ST2 | State School Part 2 | 0.8169543533 | $585,159 | $585,159 | $478.05 | | |
| | Total Tax Rate: | 7.3209764117 | | | | | |
| | | | | Taxes w/Current Exemptions: | $4,283.93 | | |
| | | | | Taxes w/o Exemptions: | $4,283.93 | | |
Improvement / Building
| Improvement #1: | MANUFACTURED HOME | State Code: | Y | 2799.0 sqft | Value: | $255,159 |
| Bathrooms: | 0 | Bedrooms: | 0 | | Ceiling: | PLASTER PAINTED | Cooling: | EVAP NO DUCT | | Exterior Wall/Cover: | PLY/HARDBOARD T-111 | Floor Covering: | CARPET 100% | | Floor Structure: | SLAB ON GRADE | Foundation: | SLAB | | Heating: | FHA ELECTRIC | Interior Finish: | PLASTER | | Plumbing Fixture Cnt: | 1 | Roof Slope: | FLAT | | Roof Structure/Cover: | CJ ALUMINIUM HEAVY |   |   |
|
| | Type | Description | Class CD | Sub Class CD | Year Built | Area |
| | BAS | BASE/MAIN FLOOR | 5 | 0 | 1999 | 2799.0 |
| | OWC | OPEN WOOD PORCH W/STEPS/ROOF/C | 5 | 0 | 1999 | 112.0 |
| | DGR | DETACHED GARAGE | 5 | 0 | 1999 | 952.0 |
| | OWP | OPEN WOOD PORCH W/STEPS | 5 | 0 | 1999 | 288.0 |
| | UTY | STORAGE/UTILITY | 5 | 0 | 1999 | 64.0 |
Sketch
Property Image
Land
| 1 | 32 | AC (03.01-09.99) | 4.6600 | 0.00 | 0.00 | 0.00 | 1.00 | $330,000 | $0 |
Roll Value History
| 2026 | N/A | N/A | N/A | N/A | N/A |
| 2025 | $255,159 | $330,000 | $0 | $585,159 | $585,159 |
| 2024 | $261,786 | $340,000 | $0 | $601,786 | $601,786 |
| 2023 | $233,406 | $320,000 | $0 | $553,406 | $553,406 |
| 2022 | $154,089 | $300,000 | $0 | $454,089 | $454,089 |
| 2021 | $137,669 | $190,000 | $0 | $327,669 | $327,669 |
| 2020 | $137,201 | $190,000 | $0 | $327,201 | $327,201 |
| 2019 | $110,890 | $220,000 | $0 | $330,890 | $330,890 |
| 2018 | $113,698 | $190,000 | $0 | $303,698 | $303,698 |
| 2017 | $116,505 | $170,000 | $0 | $286,505 | $286,505 |
| 2016 | $104,492 | $135,000 | $0 | $239,492 | $239,492 |
| 2015 | $106,745 | $116,500 | $0 | $223,245 | $223,245 |
| 2014 | $108,998 | $116,500 | $0 | $225,498 | $225,498 |
| 2013 | $111,251 | $93,200 | $0 | $204,451 | $204,451 |
| 2012 | $113,504 | $93,200 | $0 | $206,704 | $206,704 |
| 2011 | $115,758 | $116,500 | $0 | $232,258 | $232,258 |
| 2010 | $127,588 | $116,500 | $0 | $244,088 | $244,088 |
| 2009 | $132,817 | $156,110 | $0 | $288,927 | $288,927 |
| 2008 | $136,289 | $163,100 | $0 | $299,389 | $299,389 |
| 2007 | $139,513 | $163,100 | $0 | $302,613 | $302,613 |
Deed and Sales History
| 1 | 08/31/2021 | WD | Warranty Deed | DUNN, WALLACE T | DUNN, CHRISTOPHER E | | | $450,000.00 | 49886 | 4528274 |
| 2 | 01/18/2019 | OTHER | Other - Misc. Documents | DUNN, WALLACE T | DUNN, WALLACE T | | | | 87953 | |
| 3 | 07/17/2018 | QCD | Quit Claim Deed | DUNN, WALLACE T | DUNN, WALLACE T | | | $0.00 | 35152 | 4448649 |
| 4 | 06/13/2018 | TRUSTEED | Trustee's Deed | DUNN, WALLACE T | DUNN, WALLACE T | | | $0.00 | 34559 | 4446312 |
| 5 | 11/03/1998 | OTHER | Other - Misc. Documents | DUNN, WALLACE T | DUNN, WALLACE T | | | $124,065.00 | 0 | 0 |
| 6 | 02/01/1994 | QCD | Quit Claim Deed | DUNN, WALLACE T | DUNN, WALLACE T | | | $0.00 | 40603 | 94003828 |
| 7 | 06/01/1991 | WD | Warranty Deed | TINACCI, MICHAEL L | DUNN, WALLACE T | | | $39,500.00 | 12308 | 91009839 |
| 8 | 04/01/1991 | DECREE | Divorce Decree/Legal Separation | TINACCI, MICHAEL L | TINACCI, MICHAEL L | | | $0.00 | 11772 | 91007602 |
| 9 | 05/01/1990 | WD | Warranty Deed | GRAY, WALTER H | TINACCI, MICHAEL L | | | $30,000.00 | 3171 | 90010268 |
| 10 | 01/01/1900 | OTHER | Other - Misc. Documents | Unknown | GRAY, WALTER H | | | $0.00 | 0 | 0 |
Payout Agreement
| No payout information available.. |