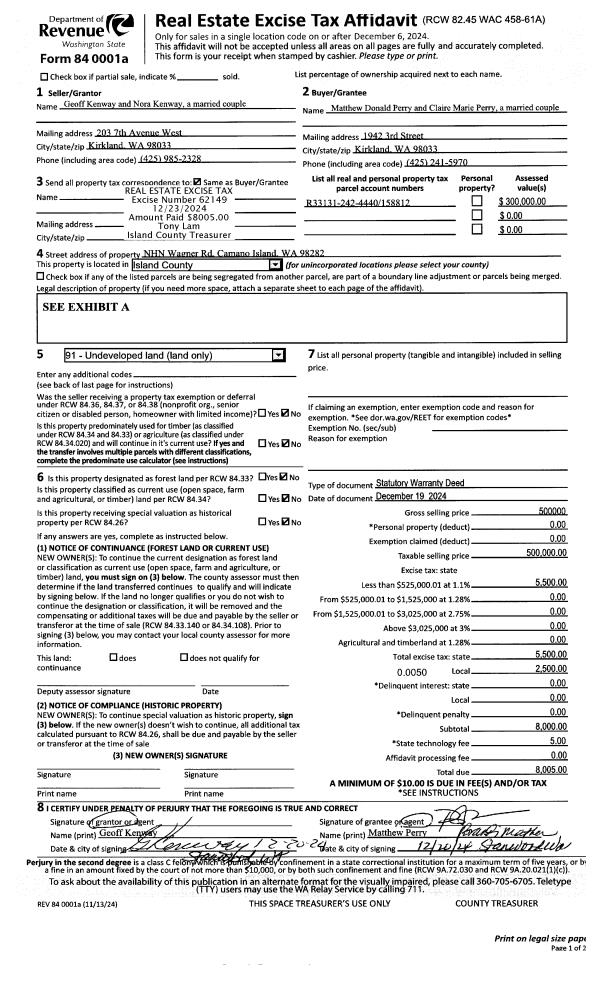
Property
Account |
| Property ID: | 97727 | Abbreviated Legal Description: | 22 - NE NE SE SUBJ TO EZ OVER S30' |
| Geographic ID: | R23306-231-4940 | Agent Code: | |
| Type: | Real | | |
| Tax Area: | 112 - APPRAISER-OH Schl Dist, outside OH, improved, greater than 1 acre | Land Use Code | 11 |
| Open Space: | N | DFL | N |
| Historic Property: | N | Remodel Property: | N |
| Multi-Family Redevelopment: | N | | |
| Township: | 33 | Section: | 06 |
| Range: | R2 |
Location |
| Address: | 387 RICHARD RD OAK HARBOR, WA 98277 | Mapsco: | |
| Neighborhood: | Cycle 6 | Map ID: | 587 |
| Neighborhood CD: | 6 |
Owner |
| Name: | FLANAGAN, JEANNE A | Owner ID: | 311839 |
| Mailing Address: | JANET K DORITY RUTH A LOUNSBERRY 4516 LARSON DR OAK HARBOR, WA 98277 | % Ownership: | 100.0000000000% |
| | | Exemptions: | |
Taxes and Assessment Details
Values
| (+) Improvement Homesite Value: | + | $0 | |
| (+) Improvement Non-Homesite Value: | + | $18,622 | |
| (+) Land Homesite Value: | + | $0 | |
| (+) Land Non-Homesite Value: | + | $240,000 | |
| (+) Curr Use (HS): | + | $0 | $0 |
| (+) Curr Use (NHS): | + | $0 | $0 |
| | | -------------------------- | |
| (=) Market Value: | = | $258,622 | |
| (–) Productivity Loss: | – | $0 | |
| | | -------------------------- | |
| (=) Subtotal: | = | $258,622 | |
| (+) Senior Appraised Value: | + | $0 | |
| (+) Non-Senior Appraised Value: | + | $258,622 | |
| | | -------------------------- | |
| (=) Total Appraised Value: | = | $258,622 | |
| (–) Senior Exemption Loss: | – | $0 | |
| (–) Exemption Loss: | – | $0 | |
| | | -------------------------- | |
| (=) Taxable Value: | = | $258,622 | |
Taxing Jurisdiction
| Owner: | FLANAGAN, JEANNE A | | |
| % Ownership: | 100.0000000000% | | |
| Total Value: | $258,622 | | |
| Tax Area: | 112 - APPRAISER-OH Schl Dist, outside OH, improved, greater than 1 acre |
| CF | Conservation Futures | 0.0316035091 | $258,622 | $258,622 | $8.17 | | |
| CEM1 | Cemetery #1 | 0.0040320932 | $258,622 | $258,622 | $1.04 | | |
| FIRE2 | Fire & Rescue Dist #2 N Whidbey GEN | 0.5475949600 | $258,622 | $258,622 | $141.62 | | |
| HOBOND | Hospital BOND | 0.1910887512 | $258,622 | $258,622 | $49.42 | | |
| HOGEN | Hospital GEN | 0.3902502903 | $258,622 | $258,622 | $100.93 | | |
| CE | County Current Expense | 0.3708482477 | $258,622 | $258,622 | $95.91 | | |
| CR | County Roads | 0.4584763726 | $258,622 | $258,622 | $118.57 | | |
| ISLANDEMS | Hospital GEN (EMS) | 0.5000000000 | $258,622 | $258,622 | $129.31 | | |
| LIB | Library Sno-Isle GEN | 0.3153421757 | $258,622 | $258,622 | $81.55 | | |
| NWHIDPRMT | P & R N Whidbey GEN | 0.2004466701 | $258,622 | $258,622 | $51.84 | | |
| SCH201MO | School 201 Enrichment | 1.8559231640 | $258,622 | $258,622 | $479.98 | | |
| ST | State School | 1.3035497053 | $258,622 | $258,622 | $337.13 | | |
| ST2 | State School Part 2 | 0.8169543533 | $258,622 | $258,622 | $211.28 | | |
| | Total Tax Rate: | 6.9861102925 | | | | | |
| | | | | Taxes w/Current Exemptions: | $1,806.75 | | |
| | | | | Taxes w/o Exemptions: | $1,806.75 | | |
Improvement / Building
| Improvement #1: | MISC | State Code: | Y | 0.0 sqft | Value: | $15,952 |
| Improvement #2: | MISC | State Code: | Y | 0.0 sqft | Value: | $2,670 |
Sketch
| No sketches available for this property. |
Property Image
Land
| 1 | 35 | AC (10.00-30.99) | 10.0000 | 435600.00 | 0.00 | 0.00 | 1.00 | $240,000 | $0 |
Roll Value History
| 2026 | N/A | N/A | N/A | N/A | N/A |
| 2025 | $18,622 | $240,000 | $0 | $258,622 | $258,622 |
| 2024 | $18,622 | $220,000 | $0 | $238,622 | $238,622 |
| 2023 | $18,622 | $220,000 | $0 | $238,622 | $238,622 |
| 2022 | $15,952 | $220,000 | $0 | $235,952 | $235,952 |
| 2021 | $15,952 | $170,000 | $0 | $185,952 | $185,952 |
| 2020 | $15,952 | $160,000 | $0 | $175,952 | $175,952 |
| 2019 | $15,952 | $160,000 | $0 | $175,952 | $175,952 |
| 2018 | $15,952 | $140,000 | $0 | $155,952 | $155,952 |
| 2017 | $15,952 | $110,000 | $0 | $125,952 | $125,952 |
| 2016 | $15,952 | $110,000 | $0 | $125,952 | $125,952 |
| 2015 | $15,952 | $110,000 | $0 | $125,952 | $125,952 |
| 2014 | $15,952 | $117,000 | $0 | $132,952 | $132,952 |
| 2013 | $15,952 | $117,000 | $0 | $132,952 | $132,952 |
| 2012 | $15,952 | $117,000 | $0 | $132,952 | $132,952 |
| 2011 | $15,952 | $130,000 | $0 | $145,952 | $145,952 |
| 2010 | $20,952 | $96,000 | $0 | $116,952 | $116,952 |
| 2009 | $21,168 | $215,000 | $0 | $236,168 | $236,168 |
| 2008 | $21,600 | $205,000 | $0 | $226,600 | $226,600 |
| 2007 | $0 | $146,200 | $0 | $146,200 | $146,200 |
Deed and Sales History
| 1 | 02/23/2024 | PRD | Personal Representatives Deed | LOUNSBERRY, JACK A | FLANAGAN, JEANNE A | | | $0.00 | 59544 | 4570817 |
| 2 | 01/01/1900 | OTHER | Other - Misc. Documents | Unknown | LOUNSBERRY, JACK A | | | $0.00 | 0 | 0 |
Payout Agreement
| No payout information available.. |